(1) (1)
  • Capital Federal

Venta

Terreno

USD 250K-250K

Buscar solo avisos en moneda:

Dorm|Amb

Más filtros Más filtros

Características

Superficie total

Nombre de calle y altura

Tipo de urbanización

Fot

Servicios

Tipo de anunciante

78 Terrenos en Venta en Capital Federal

1/6
Visto

19

USD 250.000

LARRALDE, CRISOLOGO 4400

Terreno en Venta en Nuñez, Capital Federal

ANTONINI MODET NEGOCIOS INMOBILIARIOS
  • Bueno

VENTA DE TERRENO EN NUÑEZ

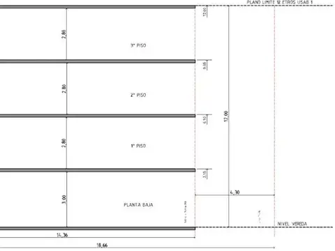
Venta de lote/terreno crisologo larralde 4400, nuñez, ciudad de buenos aires antonini modet vende excelente terreno, el mismo se encuentra ubicado en la calle crisólogo larralde al 4400, ciudad autónoma de buenos aires. Medidas: 8,66 de frente por 18,66 de fondo. Según el código urbanístico de caba (enero 2025) corresponde por disposición la categoría usab1 - usab1 - planta baja + 3 pisos - altura plano limite 12 metros. - Retiro line municipal de 4.30metros - superficie total construible: 500m2 - superficie total vendible 400m2 - superficie geométrica: 18.69x8.66=162m2 en planta baja - uso: local comercial en pb 2 uf por piso. - Superficie total edificable sin necesidad de plusvalia. - Margen bruto proyectable 35% de retorno. Esta es la posibilidad de armar tu proyecto rentable en una de las avenidas y barrios con mayor potencial de caba para más información no deje de consultarnos ja antonini modet negocios inmobiliarios esta propiedad es apta para personas con movilidad reducida. (Ley 5115) cmcpsi 6202 / cucicba 7746 nota importante: las imágenes en este anuncio son meramente ilustrativas no teniendo carácter contractual. El importe de expensas e impuestos anunciados ha sido extraído de la facturación y documentación aportada por el propietario, siendo orientativo y no vinculante, encontrándose sujeto a variaciones sin previa publicidad. Las medidas aportadas en esta publicación son aproximadas y a título informativo. La medida original surgirá de los respectivos planos y/o escritura del inmueble

Contactar
1/8
Visto

6

USD 250.000

Crisólogo Larralde e/ Donado y Machaín

Terreno en Venta en Saavedra, Capital Federal

YACOUB REAL ESTATE
  • 162 m² Total

Terreno en venta - 162Mts2 - Saavedra

_ Terreno en venta ubicado sobre calle crisólogo larralde entre donado y machaín (saavedra, ciudad autónoma de buenos aires). Con disposición frente y orientación al sudeste. _ De medidas regulares, cuenta con 8.63mts de frente por 18.77mts de fondo, contabilizando una superficie total aproximada de 162mts2. Sobre el mismo se emplaza una construcción a demoler de aproximadamente 175mts2 _ acceso por calle de asfalto con todos los servicios disponibles en la zona. Según el código urbanístico de caba (enero 2025) corresponde por disposición la categoría usab 1 - usab1 - planta baja + 3 pisos - altura plano limite 12 metros. - Retiro line municipal de 4.30metros - superficie total construible: 500m2 - superficie total vendible 400m2 - superficie geometrica: 18.69x8.66=162m2 en planta baja - uso: local comercial en pb 2 uf por piso. - Superficie total edificable sin necesidad de plusvalia. - Margen bruto proyectable 35% de retorno. Yacoub | construimos confianza innovación | calidad | sustentabilidad | diseño 70 mil metros cuadrados | 23 torres la información descripta en el presente aviso es meramente orientativa y no forma parte de ningún tipo de documentación contractual. Los datos enunciados fueron proporcionados por los propietarios y pueden arrojar inexactitudes, las superficies definitivas surgirán del título de propiedad del inmueble referido. Se deja constancia de que los valores y/o expensas pueden estar sujetas a verificación o ajuste. Lo que estás buscando lo tenemos | estés donde estés vendemos en todos lados.

Contactar