(2) (1)
  • Lanus Este

  • Lanus

Venta

Terreno

Precio

Buscar solo avisos en moneda:

Dorm|Amb

Más filtros Más filtros

Características

Superficie total

Nombre de calle y altura

Tipo de urbanización

Fot

Servicios

Tipo de anunciante

151 Terrenos en Venta en Lanus Este, Lanus

1/21
Visto

68

USD 118.000

2 De Mayo 3500

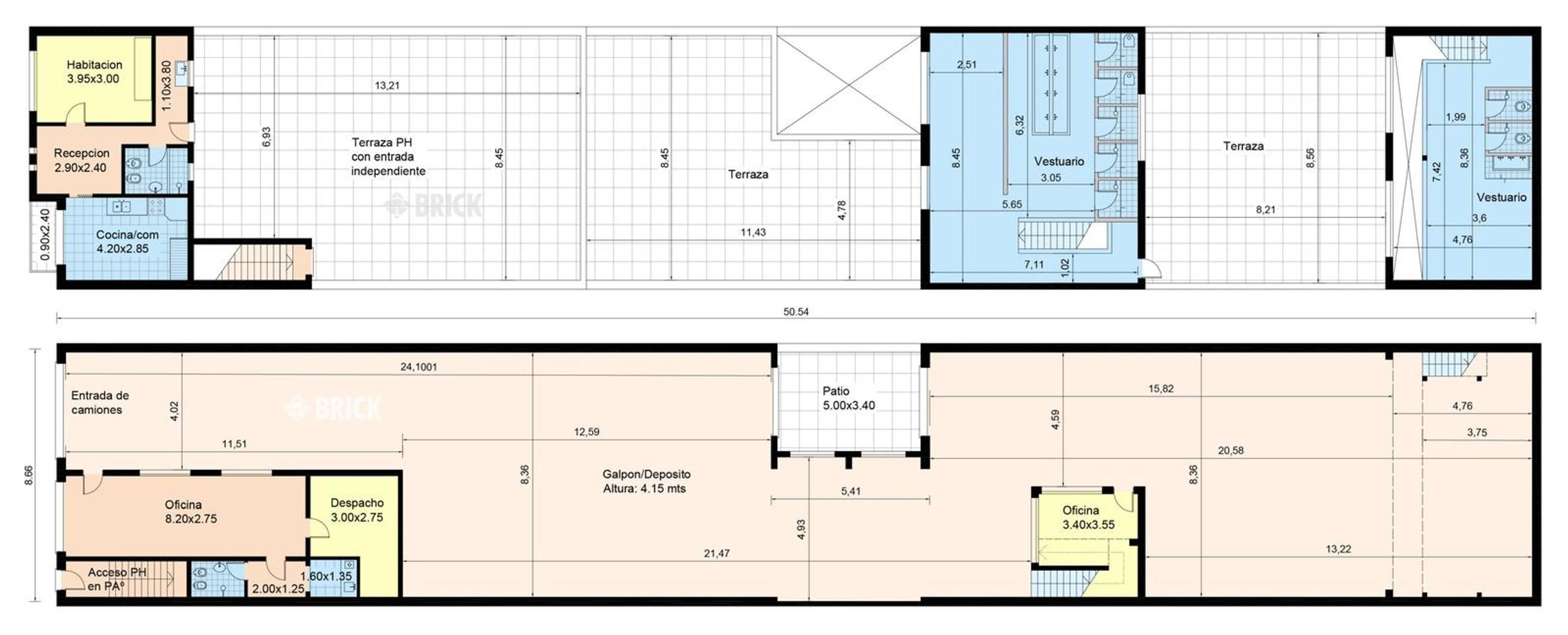
Terreno en Venta en Lanus Oeste, Lanus

Julieta Rodriguez Inmobiliaria
  • 361 m² Total
  • A Refac.

Amplio lote para construir

Casa/lote en venta en lanús oeste desarrollada sobre lote de 8,66 x 41,7 ms. A refaccionar! La propiedad consta de living comedor pisos de madera (pinotea), cocina completa con bajo mesada, mesada de granito y alacena, toilette en planta baja, escalera en madera a planta alta, distribuidor, baño completo, 3 dormitorios pisos de madera (s/placard), terraza con lavadero.- Planta baja al fondo, distribución antigua de 3 ambientes con baño y cocina fuera de la vivienda (todo para refaccionar) y fondo libre.- Ideal proyecto de viviendas en ph / duplex todos los servicios buena ubicación a 5 cuadras de la av. Hipólito irigoyen, a 10 cuadras de la estación lanus y a 20 minutos de caba. En comun con colega no apto credito servicios: cloacas, gas otros servicios: vivienda aviso legal: la información gráfica y escrita contenida en el presente aviso es meramente a título informativo y estimativo, no formando parte de ningún tipo de documentación contractual. Las medidas y superficies definitivas surgirán del título de propiedad, del plano y/o del estado parcelario actualizado del inmueble referido. Asimismo, los importes de impuestos, tasas y servicios aquí indicados fueron proporcionados por el propietario y pueden no estar actualizados al momento de la visualización de este aviso con lo cual pueden arrojar inexactitudes o discordancias con los que surjan de las facturas y/o liquidaciones correspondientes. Es responsabilidad del potencial interesado hacer las verificaciones respectivas previo a la realización de cualquier tipo de operación. El valor del inmueble indicado en el presente puede ser modificado sin previo aviso. Operación supeditada a que el propietario cumplimente con la r.G. N° 2371/07 coti.

Contactar