(1) (1)
  • Neuquen

Venta

Terreno

USD desde 260K

Buscar solo avisos en moneda:

Dorm|Amb

Más filtros Más filtros

Características

Superficie total

Nombre de calle y altura

Tipo de urbanización

Fot

Servicios

Tipo de anunciante

60 Terrenos en Venta en Neuquen

1/7
Visto

1

USD 2.700.000

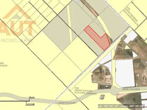
VENTA DE 20 HECTAREAS RUTA DEL PETROLEO RUTA 67 A 1,5KM DE AUTOVIA

Terreno en Venta en Neuquen, Confluencia

Grupo InHaut
  • 200.000 m² Total

VENTA DE 20 HECTAREAS RUTA DEL PETROLEO

En venta 20ha zona parque industrial neuquen 20 hectáreas en venta ubicada en parque industrial neuquén, nueva ruta 67 - ruta del petróleo ubicacion - el terreno se encuentra en parque industrial neuquén. Es una zona en desarrollo y se accede por ruta del petróleo provincial no67, por la av. Del libertador. - En cercanías se encuentran: entre base de la meseta de pluspetrol, la base meseta de halliburton, tipsa tubulares base z1, crexell base z, calfrac well services argentina y base pss - 1,5km la av. Circunvalación -a 10 kilómetros de la ciudad de neuquén. Condicion - permitir servidumbre de paso instrumentacion - escrituracion inmediata - boleto + escritura - seña + boleto + escritura formas de pago - efectivo se evaluan propuesta de contado - 70% firma del boleto + 30% a contra escritura mat 751 en cumplimiento de las leyes vigentes que regulan el corretaje inmobiliario, ley nacional 25.028, ley 22.802 de lealtad comercial, ley 24.240 de defensa al consumidor, las normas del código civil y comercial de la nación y constitucionales, los agentes/gestores/promotores no ejercen el corretaje inmobiliario. Todas las operaciones inmobiliarias son objeto de intermediación y conclusión por parte de un corredor público inmobiliario colegiado, cuyos datos se exhiben en la presente publicación. La presente publicación describe las características esenciales del inmueble, debiéndose consultar al corredor público inmobiliario responsable de la operación por la eventual actualización de las medidas, descripciones arquitectónicas y funcionales, valores de expensas, servicios, impuestos, precios y demás información, cuyos valores son aproximados.

Contactar
1/3
Visto

1

USD 395.000

Tronador al 100 (APTO DESARROLLO)

Terreno en Venta en Neuquen, Confluencia

ONLIPROP Inmobilibiaria
  • 900 m² Total
  • 30 mts Frente
  • 30 mts Fondo

ONLIPROP Vende Terreno Apto Desarrollo

Onliprop vende terreno apto desarrollo relativo a la edificacion fos: factor de ocupación del suelo: "0.7" fot. Factor de ocupación; total morfología cerrada: "vme" morfologia abierta: "vme" relativos a la morfologia urbana altura máxima de basamento (m): "6.6" lfi. Línea de frente lnterno (m): morfología cerrada: "25" morfologia abierta: "30" altura maxima: morfología cerrada: "15[7]" morfologia abierta: "21[7]" retiro lateral (m): construccion con basamento: hl/4 consultas al whatsapp +54 9 consultas al whatsapp +54 9 en cumplimiento de la leyes provinciales vigentes que regulan el corretaje inmobiliario, ley nacional 25.028, ley 22.802 de lealtad comercial, ley 24.240 de defensa al consumidor, las normas del código civil y comercial de la nación y constitucionales, los agentes no ejercen el corretaje inmobiliario. Todas las operaciones inmobiliarias son objeto de intermediación y conclusión por parte de la sra. Karen de trocchi, martillero y corredor público mat. Nqn. No760. El agente inmobiliario asociado es un intermediario entre los potenciales clientes y el martillero. Todas las operaciones inmobiliarias son promocionadas y concluidas por karen de trocchi mat n760. Todas las fotos, planos, proyecciones, son ilustrativas, carecen de rigor técnico y no son vinculantes.

Contactar
1/26
Visto

1

USD 1.500.000

VENTA EN PARQUE INDUSTRIAL DE NEUQUEN

Terreno en Venta en Neuquen, Confluencia

Red Inmobiliaria
  • 14.255 m² Total
  • 59 mts Frente
  • 202 mts Fondo

VENTA DE TERRENO EN PARQUE INDUSTRIAL, NEUQUÉN

Red inmobiliaria ingrid rahn - martillero y corredor publico cm y cpn mat 694 - neuquén. Vende o alquila en parque industrial de neuquen capital, importante terreno para el desarrollo de empresas, el mismo cuenta con los servicios de luz, agua y gas. Cuenta con un paredon perimetral en uno de los lados y un alambrado perimetral en el frente y en uno de los lados que es lindero a la propiedad contigua. Ubicación: parque industrial, pin oeste descripción superficie del terreno: 14,255 m2 superficie cubierta: - superficie semicubierta: - orientación de la propiedad: este forma de pago: contado se puede hacer una oferta por la mitad del predio valor de venta: usd 1.500.000 todas las propiedades que figuran en mi perfil se encuentran a cargo del profesional matriculado de la oficina, la intermediación y la conclusión de las operaciones serán llevadas exclusivamente por él. En cumplimiento de la ley 20.266 nacional, ley 22.802 de lealtad comercial, ley 24.240 de defensa al consumidor, las normas del código civil y comercial de la nación y constitucionales, los agentes no ejercen el corretaje inmobiliario. Todas las operaciones inmobiliarias son concluidas por los martilleros y corredores colegiados, cuyos datos se exhiben debajo del nombre de la inmobiliaria.

Contactar
1/19
Visto

1

USD 439.000

Calles Río Colorado y Chivilcoy, Neuquén

Terreno en Venta en Neuquen, Confluencia

Grupo InHaut
  • 16.629 m² Total
  • 55 mts Frente
  • 171 mts Fondo

Terreno Comercial sobre Calle Río Colorado, Neuquén

Venta parcela en forma de " l ", con frente a calle río colorado de 55,54 mts y frente a calle chivilcoy de 58,83 mts.el predio en total encierra una superficie de 16.629 m2. Esta ubicación le permite un gran abanico de posibilidades, tanto para desarrollo de viviendas, como para predio de empresas del sector industrial. Tiene salida rápida, tanto hacia ruta ex 22, como para ruta circunvalación y parque industrial de neuquén capital. - Superficie: 16.629mts2 - 55,54 mts x 171,71 mts x 183,33 mts x 58,83 mts - servicios: luz, agua, gas posee escritura en cumplimiento de las leyes vigentes que regulan el corretaje inmobiliario, ley nacional 25.028, ley 22.802 de lealtad comercial, ley 24.240 de defensa al consumidor, las normas del código civil y comercial de la nación y constitucionales, los agentes/gestores/promotores no ejercen el corretaje inmobiliario. Todas las operaciones inmobiliarias son objeto de intermediación y conclusión por parte de un corredor público inmobiliario colegiado, cuyos datos se exhiben en la presente publicación. La presente publicación describe las características esenciales del inmueble, debiéndose consultar al corredor público inmobiliario responsable de la operación por la eventual actualización de las medidas, descripciones arquitectónicas y funcionales, valores de expensas, servicios, impuestos, precios y demás información, cuyos valores son aproximados.

Contactar
1/11
Visto

1

USD 380.000

Rivadavia al 400

Terreno en Venta en Neuquen, Confluencia

LEWIT Bienes Inmuebles
  • 500 m² Total
  • 10 mts Frente
  • 50 mts Fondo

VENTA LOTE | 500m² | APTO DESARROLLO HASTA 12 PISOS | ZONA CENTRO | NEUQUEN

Lewit bienes inmuebles | matrícula 783 venta lote | apto desarrollo | 500m2 | zona centro | neuquen ideal para construir edificio hasta 12 pisos de altura ubicación sobre calle rivadavia 451 como llegar: https: maps.App.Goo.Gl/uixhzrhqf89pp9x2a?G_st=ic propiedad ubicada en el centro este de la ciudad, a 4 cuadras de avenida argentina entre las calles mendoza y tucumán. Superficie: -superficie terreno 500m2, (10m frente x 50m fondo) apto desarrollo: -datos urbanísticos cr6 zona corredor residencial fos: 0,70 fot: volumen maximo expandible altura basamento: 6m altura maxima: morfologia cerrada 21m - posesión inmediata formas de pago: - contado - anticipo + cuotas. - Otra forma de pago (consultar) -se reciben departamentos en forma de pago instrumentacion de venta: - firma de seña y posterior escritura. En cumplimiento de la leyes provinciales vigentes que regulan el corretaje inmobiliario, ley nacional 25.028, ley 22.802 de lealtad comercial, ley 24.240 de defensa al consumidor, las normas del código civil y comercial de la nación y constitucionales, los agentes no ejercen el corretaje inmobiliario. Todas las operaciones inmobiliarias son objeto de intermediación y conclusión por parte del matias pablo lewit, martillero y corredor público mat. Nqn nro 783. El agente inmobiliario asociado es un intermediario entre los potenciales clientes y el martillero. Todas las operaciones inmobiliarias son promocionadas y concluidas por martillero publico y corredor inmobiliario matias pablo lewit, mat. 783. Todas las fotos, planos, proyecciones, son ilustrativas, carecen de rigor técnico y no son vinculantes.

Contactar
1/16
Visto

1

USD 450.000

Independencia al 600

Terreno en Venta en Neuquen, Confluencia

LEWIT Bienes Inmuebles
  • 450 m² Total
  • 15 mts Frente
  • 30 mts Fondo

VENTA LOTE C/QUINCHO Y DPTO | 450m² | SUBDIVIDIDO EN 2 LOTES | ZONA CENTRO NEUQUEN

Lewit bienes inmuebles | matrícula 783 venta lote c/quincho y dpto | 450m2 | subdividido en 2 lotes | zona centro neuquen superficie: terreno total: 450m2 lotes: a1: 197m2 b1: 253m2 ubicación: - independencia al 600 en zona centro de neuquén. Servicios todos. Se pueden vender por seprado o juntos. Poseen; 1 departamento de 1 dormitorio y 1 quincho con 1 baño, pequeña cocina con calefactores y placard de guardado. Formas de pago: contado; financiación: anticipo 60%, saldo hasta en 24 cuotas; se aceptan propiedades en parte de pago a evaluar por el vendedor; se aceptan vehículos en parte de pago a evaluar por el vendedor. Consultar por otros medios de pago. En cumplimiento de la leyes provinciales vigentes que regulan el corretaje inmobiliario, ley nacional 25.028, ley 22.802 de lealtad comercial, ley 24.240 de defensa al consumidor, las normas del código civil y comercial de la nación y constitucionales, los agentes no ejercen el corretaje inmobiliario. Todas las operaciones inmobiliarias son objeto de intermediación y conclusión por parte del matias pablo lewit, martillero y corredor público mat. Nqn nro 783. El agente inmobiliario asociado es un intermediario entre los potenciales clientes y el martillero. Todas las operaciones inmobiliarias son promocionadas y concluidas por martillero publico y corredor inmobiliario matias pablo lewit, mat. 783. Todas las fotos, planos, proyecciones, son ilustrativas, carecen de rigor técnico y no son vinculantes.

Contactar
1/2
Visto

1

USD 530.000

Venta de lote apto desarrollo 800m2 centro de neuquen

Terreno en Venta en Neuquen, Confluencia

Grupo InHaut
  • 800 m² Total
  • 20 mts Frente
  • 40 mts Fondo

Venta de lote apto desarrollo 800m2 centro de neuquen

En venta! Terreno apto para desarrollo tierra del fuego al 300, neuquén capital ubicado el área del micro centro de la ciudad, a metros de la ruta 22 y a 5 cuadras de la avenida argentina, este terreno ofrece una excelente oportunidad para desarrolladores e inversores que buscan una propiedad con alto potencial constructivo en una zona estratégica de neuquén capital. Entorno el área centro se destaca por su crecimiento sostenido y su combinación de entorno residencial consolidado y cercanía a servicios clave. A pocos minutos se encuentran importantes centros comerciales, instituciones educativas, centros de salud, espacios verdes y accesos a las principales arterias de la ciudad. Es una zona de alta demanda, ideal para proyectos residenciales o de usos mixtos. Características del terreno ubicación: tierrra del fuego al 300, neuquén capital superficie total: 800m2 frente: 20 metros fondo: 40 metros fos (factor de ocupación del suelo): 0.85 fot (factor de ocupación total): vme (variable según morfología edilicia) altura máxima edificable: 24 metros servicios: cuenta con todos los servicios (agua, gas, electricidad, cloacas, internet) forma de pago contado permuta u$s 380.000 instrumentacion seña + boleto boleto escritura por tracto abreviado mat. 766 en cumplimiento de las leyes vigentes que regulan el corretaje inmobiliario, ley nacional 25.028, ley 22.802 de lealtad comercial, ley 24.240 de defensa al consumidor, las normas del código civil y comercial de la nación y constitucionales, los agentes/gestores/promotores no ejercen el corretaje inmobiliario. Todas las operaciones inmobiliarias son objeto de intermediación y conclusión por parte de un corredor público inmobiliario colegiado, cuyos datos se exhiben en la presente publicación. La presente publicación describe las características esenciales del inmueble, debiéndose consultar al corredor público inmobiliario responsable de la operación por la eventual actualización de las medidas, descripciones arquitectónicas y funcionales, valores de expensas, servicios, impuestos, precios y demás información, cuyos valores son aproximados.

Contactar
1/24
Visto

1

USD 1.500.000

Vende Hectarea en Parque Industrial Neuquen

Terreno en Venta en Neuquen, Confluencia

Red Inmobiliaria
  • 10.000 m² Total
  • 100 mts Frente
  • 100 mts Fondo

Vende Hectarea en Parque Industrial Neuquén

Red inmobiliaria vende ingrid rahn - martillero y corredor publico cm y cpn mat 694 - neuquén. Se vende 1 hectárea en zona parque industrial de neuquén capital, su frente es de 100 m2 por 100 m2 de fondo, cuenta con servicios de luz , agua y gas. Este lote es ideal para el desarrollo y visualización de su empresa, ya que da frente a la ruta 22 con empresas lindantes como shell, taraborelli (mercedez benz) , ypf y mas. Con gran retorno de inversión tanto para renta como para su empresa, otra de sus cualidades es la accesibilidad a ruta 7, 67, y 22 con destino a rincón de los sauces , añelo y vaca muerta la segunda reserva de gas natural no convencional del mundo. Ubicación privilegiada : acceso rápido a rutas principales y cercanía a centros logísticos clave. Servicios disponibles: luz, agua, gas, energía trifásica, alumbrado publico. Ideal para: logística, industria de servicios petroleros, almacenamiento o cualquier proyecto de gran envergadura. Se evalúan permutas , ofertas de contado , y financiación corta! Todas las propiedades que figuran en mi perfil se encuentran a cargo del profesional matriculado de la oficina, la intermediación y la conclusión de las operaciones serán llevadas exclusivamente por él. En cumplimiento de la ley 20.266 nacional, ley 22.802 de lealtad comercial, ley 24.240 de defensa al consumidor, las normas del código civil y comercial de la nación y constitucionales, los agentes no ejercen el corretaje inmobiliario. Todas las operaciones inmobiliarias son concluidas por los martilleros y corredores colegiados, cuyos datos se exhiben debajo del nombre de la inmobiliaria.

Contactar