(1) (1)
  • Otros barrios de Nordelta

Venta

Terreno

$ desde 3K

Buscar solo avisos en moneda:

Dorm|Amb

Más filtros Más filtros

Características

Superficie total

Nombre de calle y altura

Tipo de urbanización

Fot

Servicios

Tipo de anunciante

17 Terrenos en Venta en Otros barrios de Nordelta

1/24
Visto

0

USD 480.000

EL YACHT, Nordelta, Tigre

Terreno en Venta en Otros barrios de Nordelta, Nordelta

Juan Pablo Sanguinetti CMCPSI 6449 - CUCICBA 6630
  • 1.000 m² Total

El Yacht, Nordelta, Tigre lote en venta al agua

Excelente lote de 1000 m2 en el barrio el yacht, con salida a un amplio canal que desemboca a un canal mayor y este conecta con el rio lujan. Se encuentre en el último peine como para que no tardes tanto en estar disfrutando en el rio. Tiene una vista increíble con atardeceres como para contemplar desde tu jardín, piscina o regresando de navegar. El barrio: tiene todo lo que necesitas para hacer deporte, ya que cuenta con 2 canchas de tenis de polvo de ladrillo y 2 canchas rápidas, 1 multicancha (basket, futbol, volley), 2 canchas de paddle 360, 1 cancha de futbol césped, 1 gimnasio o lo básico como salir a caminar o correr por sus amplias calles escuchando el sonido de los pájaros. Por si esto fuera poco tiene también un club house con piscina y una reserva ecológica de 2 hectáreas reservada para sus habitantes. La mejor ubicación: esta rodeado de innumerables restaurants y bares, bancos, supermercados, shoppings/ malls, gimnasios, cines, centros médicos. Vení a verlo, construí y empezá a vivir como soñaste. Corredor interviniente: juan pablo sanguinetti cmcpsi 6449 la tasación, intermediación y la conclusión de las operaciones sobre esta propiedad son actividades exclusivas de este corredor matriculado, conforme las previsiones de la ley 20.266, la ley provincial 10.973 y sus modif. Y las normas reglamentarias dictadas por los colegios departamentales. Las oficinas asociadas a la red keller williams actúan en forma independiente, brindando servicios a corredores, agentes y al público en general, y su intervención se limita a la prestación de servicios inmobiliarios que no incluyen actos de corretaje ni intermediación inmobiliaria.

Contactar
1/17
Visto

0

USD 320.000

NORDELTA CASUARINAS

Terreno en Venta en Otros barrios de Nordelta, Nordelta

REMAX Class II
  • 770 m² Total
  • Excelente

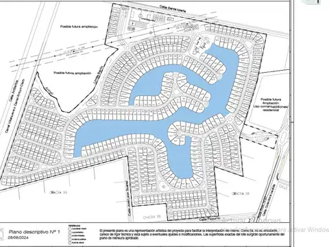
LOTE EN VENTA CASUARINAS NORDELTA AL AGUA FINANCIA

Corredor responsable: uno bienes raices s.R.L. - Nicolás sundblad cpi 7144 / csi 5821 - contacto: sergio alejandro alarcón lote en venta en barrio casuarinas - nordelta consulta por financiacion de anticipo y hasta 12 cuotas - lote al lago de 770 mts con excelente ubicacion y comodo acceso -entrega en 2027 el barrio casuarinas en nordelta se caracteriza por ser un barrio familiar con dos lagos, 350 lotes, y una ubicación estratégica cerca de colegios, centros comerciales y médicos. Ofrece un diseño de primer nivel, seguridad y naturaleza, con amenities pensados para toda la familia, incluyendo una pileta sobre el lago, canchas deportivas y plazas con juegos para niños. Además, se encuentra en una zona consolidada con una antigüedad de 25 años y con un futuro paseo de compras, oficinas y otros servicios en el acceso al barrio. Características principales: ubicación: está ubicado en una zona consolidada de nordelta, sobre la ruta 27, detrás de los barrios tipas y alisos. -Diseño: ofrece un diseño de primer nivel, con lotes que varían de 840 a 1800 m², algunos con costa de lago. -Seguridad: cuenta con seguridad las 24 horas. -Naturaleza: está rodeado de añosa vegetación, con senderos peatonales y cuatro lagunas, lo que permite disfrutar del paisaje natural. -Amenities: incluye un club house con pileta sobre el lago, dos canchas de pádel, una cancha de fútbol 9 y otra de fútbol 5, tres canchas de tenis, un playón multideportes y dos plazas con juegos para niños. -Servicios: además de los servicios básicos como agua, gas y electricidad, se proyecta un paseo de compras, oficinas y otros servicios en el acceso al barrio. -Familia: se promociona como un barrio ideal para familias, con espacios pensados para el disfrute de todos sus miembros. -Proximidad a servicios: se encuentra cerca de colegios, centros comerciales y centros médicos. Futuro: se espera la construcción de un paseo de compras, oficinas y otros servicios en el acceso al barrio. En resumen, casuarinas en nordelta ofrece un entorno familiar, seguro y con múltiples opciones de esparcimiento, en un barrio con una ubicación estratégica y en constante desarrollo. Te invito a que vengas a conocerlo si necesitas vender para comprar te ayudamos a lograrlo no dudes en consultarnos. * En remax estamos encantados de ayudarte a elegir el mejor hogar para tu familia. Las medidas son aproximadas y al solo efecto orientativo. Las medidas reales surgirán del título de propiedad respectivo. Esta publicidad respeta lo establecido en el art. 4 y 8 de la ley 24.240 en cumplimiento de las leyes provinciales vigentes que regulan el corretaje inmobiliario, ley nacional 25.028, ley 22.802 de lealtad comercial, ley 24.240 de defensa al consumidor, las normas del código civil y comercial de la nación y constitucionales, los agentes no ejercen el corretaje inmobiliario. Todas las operaciones inmobiliarias son objeto de intermediación y conclusión por parte de los martilleros y corredores colegiados, cuyos datos se exhiben debajo del nombre de la inmobiliaria. Corredor responsable: uno bienes raíces s.R.L. - Nicolás sundblad csi 5821 / cucicba 7144 rau s.R.L. No ejerce el corretaje inmobiliario. El presente sitio web es una plataforma en donde cada oficina inmobiliaria independiente que contrata los servicios re/max puede publicar las propiedades a su cargo. Cada oficina es de propiedad y gestión independiente, por lo que rau s.R.L. No interviene en los datos de la publicación, en la operación inmobiliaria, ni en la confección y/o firma del boleto de compraventa y/o escritura y/o contrato de alquiler. En cumplimiento de las leyes vigentes que regulan el corretaje inmobiliario, ley nacional 25.028, ley 22.802 de lealtad comercial, ley 24.240 de defensa al consumidor, las normas del código civil y comercial de la nación y constitucionales, los agentes/gestores no ejercen el corretaje inmobiliario. Todas las operaciones inmobiliarias son objeto de intermediación y conclusión por parte del corredor público inmobiliario colegiado a cargo de la publicación, cuyos datos se exhiben en la presente. La presente publicación describe las características esenciales del inmueble, debiéndose consultar al corredor público inmobiliario responsable de la operación por la eventual actualización de las medidas, descripciones arquitectónicas y funcionales, valores de expensas, servicios, impuestos, precios y demás información, cuyos valores son aproximados. Comprá la casa que querés! No la que podés. Accedé a un préstamo por hasta el 30% del valor de esta propiedad. Simulá tu cuota en lendar

Contactar
1/17
Visto

0

USD 330.000

NORDELTA CASUARINAS

Terreno en Venta en Otros barrios de Nordelta, Nordelta

REMAX Class II
  • 714 m² Total
  • Excelente

LOTE EN VENTA CASUARINAS NORDELTA AL AGUA FINANCIA

Corredor responsable: uno bienes raices s.R.L. - Nicolás sundblad cpi 7144 / csi 5821 - contacto: sergio alejandro alarcón lote al lago de 714 m² en venta en barrio casuarinas - nordelta consulta por financiacion de anticipo y hasta 12 cuotas ubicación privilegiada en un barrio familiar el barrio casuarinas en nordelta se caracteriza por su diseño de primer nivel, seguridad y entorno natural. Ubicado sobre la ruta 27, detrás de los barrios tipas y alisos, ofrece una zona consolidada con 25 años de antigüedad y un futuro paseo de compras, oficinas y servicios en el acceso al barrio. • Seguridad las 24 horas • rodeado de añosa vegetación, con senderos peatonales y cuatro lagunas • club house con pileta sobre el lago, canchas deportivas y plazas con juegos amenities pensados para el disfrute familiar • pileta sobre el lago • 2 canchas de pádel, 1 cancha de fútbol 9, 1 cancha de fútbol 5 • 3 canchas de tenis • playón multideportes • 2 plazas con juegos para niños ubicación estratégica cerca de servicios • próximo a colegios, centros comerciales y centros médicos • proyección de un paseo de compras, oficinas y otros servicios en el acceso al barrio entrega prevista para 2027 te invito a que vengas a conocerlo si necesitas vender para comprar te ayudamos a lograrlo no dudes en consultarnos. * En remax estamos encantados de ayudarte a elegir el mejor hogar para tu familia. Las medidas son aproximadas y al solo efecto orientativo. Las medidas reales surgirán del título de propiedad respectivo. Esta publicidad respeta lo establecido en el art. 4 y 8 de la ley 24.240 en cumplimiento de las leyes provinciales vigentes que regulan el corretaje inmobiliario, ley nacional 25.028, ley 22.802 de lealtad comercial, ley 24.240 de defensa al consumidor, las normas del código civil y comercial de la nación y constitucionales, los agentes no ejercen el corretaje inmobiliario. Todas las operaciones inmobiliarias son objeto de intermediación y conclusión por parte de los martilleros y corredores colegiados, cuyos datos se exhiben debajo del nombre de la inmobiliaria. Corredor responsable: uno bienes raíces s.R.L. - Nicolás sundblad csi 5821 / cucicba 7144 rau s.R.L. No ejerce el corretaje inmobiliario. El presente sitio web es una plataforma en donde cada oficina inmobiliaria independiente que contrata los servicios re/max puede publicar las propiedades a su cargo. Cada oficina es de propiedad y gestión independiente, por lo que rau s.R.L. No interviene en los datos de la publicación, en la operación inmobiliaria, ni en la confección y/o firma del boleto de compraventa y/o escritura y/o contrato de alquiler. En cumplimiento de las leyes vigentes que regulan el corretaje inmobiliario, ley nacional 25.028, ley 22.802 de lealtad comercial, ley 24.240 de defensa al consumidor, las normas del código civil y comercial de la nación y constitucionales, los agentes/gestores no ejercen el corretaje inmobiliario. Todas las operaciones inmobiliarias son objeto de intermediación y conclusión por parte del corredor público inmobiliario colegiado a cargo de la publicación, cuyos datos se exhiben en la presente. La presente publicación describe las características esenciales del inmueble, debiéndose consultar al corredor público inmobiliario responsable de la operación por la eventual actualización de las medidas, descripciones arquitectónicas y funcionales, valores de expensas, servicios, impuestos, precios y demás información, cuyos valores son aproximados. Comprá la casa que querés! No la que podés. Accedé a un préstamo por hasta el 30% del valor de esta propiedad. Simulá tu cuota en lendar

Contactar