(1) (1)
  • Portal De La Avenida

Venta

Terreno

$ desde 800K

Buscar solo avisos en moneda:

Dorm|Amb

Más filtros Más filtros

Características

Superficie total

Nombre de calle y altura

Tipo de urbanización

Fot

Servicios

Tipo de anunciante

27 Terrenos en Venta en Portal De La Avenida

1/1
Visto

0

USD 38.000

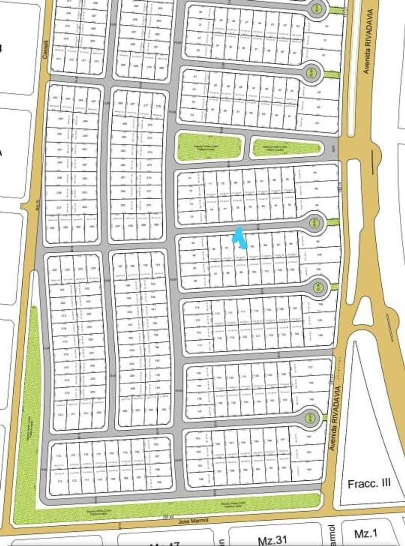
Lote 284, Barrio Portal La Avenida

Terreno en Venta en Portal De La Avenida, Campana

Lorenzo Inmobiliaria
  • 312 m² Total

LOTE EN VENTA, BARRIO PORTAL LA AVENIDA

Lote en venta en barrio portal la avenida, lote 284, etapa 1. ¡Escritura inmediata! El barrio posee todos los servicios menos gas, tiene calles asfaltadas, planta cloacal, iluminación. Es un barrio abierto en campana con características muy especiales cuyo proyecto prevé localizar 330 lotes en tres etapas, destinados a viviendas unifamiliares, multifamiliares y zonas comerciales. Una opción residencial, sin los costos de un barrio cerrado. Las restricciones en altura garantizan tranquilidad, visuales limpias y el relajado clima de un barrio residencial. El diseño con calles sin salida, terminadas en pintorescos cul de sac, hace que solo los vecinos transiten por ellas, logrando mayor control y seguridad. Barrio abierto con un cuidado diseño urbanístico y arquitectónico, cuenta con una amplia avenida para aquellas personas que disfrutan el ejercicio y la vida al aire libre. Planta depuradora propia, única en barrios abiertos de campana. Sistema de desagües pluviales con sumideros y caños de hormigón. Cordón cuneta en todas las calles. Un barrio ubicado estratégicamente, en el futuro centro de la ciudad. Viviendo en el portal vas a tener todo a tu alcance, desde escuelas funcionando cerca, el trabajo y hasta los trámites en el centro comercial. Toda la información y medidas provistas son aproximadas y no deberán ratificarse con la documentación pertinente y no compromete contractualmente a nuestra empresa. Los gastos expresados (expensas, abl-inmobiliario, etc.) Se refieren a la ultima información recibida y están sujetos a verificación y/o ajustes. Fotografías no vinculantes ni contractuales. Coti en tramite por el propietario.

Contactar