(1) (1)
  • San Sebastian

Venta

Terreno

USD 50K-75K

Buscar solo avisos en moneda:

Dorm|Amb

Más filtros Más filtros

Características

Superficie total

Nombre de calle y altura

Tipo de urbanización

Fot

Servicios

Tipo de anunciante

296 Terrenos en Venta en San Sebastian

1/21
Visto

200

USD 60.000

Barrio San Sebastian

Terreno en Venta en San Sebastian, Countries y Barrios Cerrados en Escobar

MARIANA RUBIANES Propiedades
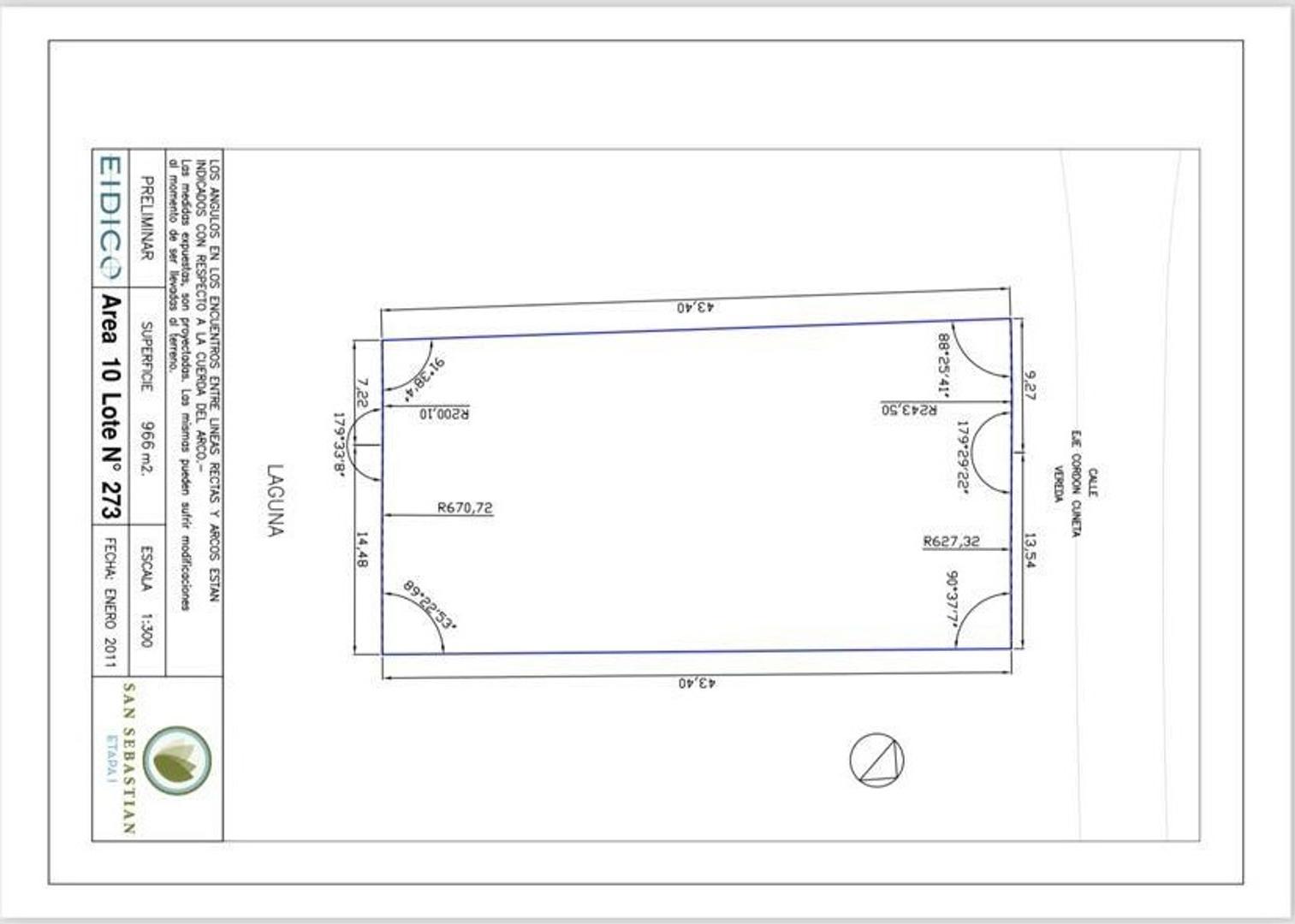
  • 966 m² Total
  • Excelente

LOTE EN VENTA EN SAN SEBASTIAN A LA LAGUNA

Lote a la venta en el barrio san sebastián. Ubicación: 62 km de capital federal partido de pilar, excelente ubicación área 10 nuestra señora de fátima excelente oportunidad dentro de san sebastián se encuentran los distintos barrios designados en áreas en las cuales se encuentra señora de fátima en área 10 san sebastián se encuentra en el partido de pilar, en el límite con escobar, a 50 minutos de la capital. Panamericana ramal escobar, kilómetro 54, entrando por calle boote y por ruta 25 y el camino matheu/zelaya. 3.622 lotes distribuidos en 13 barrios (9 de ellos con lagunas) 1.110 hectáreas. 65% de superficies de áreas comunes. 154 hectáreas de lagunas. Amenities: golf de 18 hoyos, zona deportiva con canchas de tenis, fútbol, voley, hípico, club house, actividades náuticas. No dudes en consultar por esta propiedad comunicarse con jorge al servicios: cloacas, gas otros servicios: alambrado perimetral nota importante: las imágenes en este anuncio son meramente ilustrativas no teniendo carácter contractual. El importe de expensas e impuestos anunciados ha sido extraído de la facturación y documentación aportada por el propietario, siendo orientativo y no vinculante, encontrándose sujeto a variaciones sin previa publicidad. Las medidas aportadas en esta publicación son aproximadas y a título informativo. La medida original surgirá de los respectivos planos y/o escritura del inmueble. En cumplimiento de la leyes vigentes que regulan el corretaje inmobiliario y las normas jurídicas contempladas en el código civil y comercial de la nación, todas las operaciones inmobiliarias serán objeto de intermediación y conclusión por parte del martillero público y corredor inmobiliario colegiado a cargo, cuyos datos se exhiben debajo del nombre de la inmobiliaria. Mariana rubianes propiedades - mariana rubianes cmzc n.º 603 to.Ii fo.002 pba - virginia renee rivas- cucicba n° 4166- c.A.Ba

Contactar
1/5
Visto

100

USD 72.000

San Sebastian Area 100

Terreno en Venta en San Sebastian, Countries y Barrios Cerrados en Escobar

SANTIAGO FERNANDEZ NEGOCIOS INMOBILIARIOS
  • 859 m² Total
  • 10 mts Frente
  • 10 mts Fondo

Excelente Lote A La Laguna En Area 8

¿Te gustaría vivir en un lugar de ensueño, rodeado de naturaleza, tranquilidad y belleza? Entonces no puedes perderte esta oportunidad única: un hermoso lote a la laguna, en una ubicación especial dentro del área 8 de san sebastián, el mejor complejo residencial de la zona. Este lote tiene todo lo que necesitas para construir tu casa ideal: una superficie de 859 m2, una orientación noreste que te brinda una excelente iluminación y ventilación, y un acceso directo a la laguna, donde podrás disfrutar de actividades acuáticas, pesca deportiva o simplemente relajarte con el sonido del agua. Además tendrás una panorámica privilegiada de uno de los paisajes más hermosos de la región, ya que detrás no hay construcción; con su flora y fauna autóctona, y una sensación de amplitud y libertad incomparable. San sebastián es un complejo residencial de primer nivel, que cuenta con una infraestructura de calidad, seguridad las 24 horas, servicios de luz, gas, agua, internet y telefonía, y una amplia oferta de amenities, como canchas de tenis, fútbol, club house, piscina, spa, gimnasio, restaurante y más. No dejes pasar esta oportunidad de invertir en tu futuro y el de tu familia, y de vivir en un lugar que te ofrece todo lo que siempre soñaste. Contacta con nosotros hoy mismo y reserva tu visita al lote. ¡Te aseguramos que te enamorarás a primera vista! Sf negocios inmobiliarios martillero responsable santiago fernández matricula c.M.C.P.S.I 6783

Contactar
1/1
Visto

36

USD 59.000

San Sebastian 201

Terreno en Venta en San Sebastian, Countries y Barrios Cerrados en Escobar

Vido Green Propiedades
  • 1.052 m² Total
  • Excelente

SAN SEBASTIAN | AREA 8 | AL AGUA

Lindismo lote al agua el área 8 es una de las mas grandes con 2 ingresos, la mejor ubicación con respecto a la entrada principal al barrio (a menos de 5 minutos de la entrada). Expensas incluyen: agua, arba, impuesto municipal, todos los deportes y amenities del barrio y seguridad 24 hs. Una gran oportunidad tanto como inversión como para construir (podes construir de inmediato). San sebastián cuenta con un masterplan de 13 barrios cerrados comunicados por un boulevard central, cuya principal virtud es que esta especialmente pensado para la vida en familiar en un entorno natural. Es por eso que hay barrios que tienen grandes lagunas, otros tienen cancha de golf y otros que cuentan con amplios espacios verdes. Además, en san sebastián hay más de 100 hectáreas destinadas a los deportes, un sector para un colegio y un lugar para centro comercial. Cuenta con seguridad permanente y todos los servicios tendidos de forma subterránea: luz agua y gas. En el barrio ya hay una gran cantidad de familias viviendo y casas en construcción, con gran expansión de la zona. Amenities: canchas de fútbol, tenis, deportes acuáticos no contamienanres en sus lagunas. Cancha de golf de 18 hoyos, club house con juegos para chicos. Pileta de natación, parrillas, proveduría. Red de fibra óptica para todos los barrios y red de riego domiciliaria. Sectores destinados a desarrollar actividades hípicas, comerciales y educativas. San sebastián se encuentra en el partido de pilar, en el límite con escobar, a 50 minutos de la capital. Panamericana ramal escobar, kilómetro 54, entrando por calle boote y por ruta 25 y el camino matheu/zelaya. Corredor responsable: josefina vido cmcpsi 6103 vido green propiedades. Aviso legal: i) las descripciones arquitectónicas y funcionales, fotos, renders, memorias descriptivas, medidas del inmueble, precios, valores de expensas, impuestos y servicios y fechas de entrega de los emprendimientos son aproximados y meramente orientativos, y no obligan contractualmente a corredor responsable vido green propiedades (josefina vido cmcpsi 6103 ni resultan vinculantes; ii) los datos fueron proporcionados pueden no estar actualizados a la hora de la visualización de este aviso por lo que pueden arrojar inexactitudes y discordancias respecto de los datos exactos, los cuales surgen de las facturas, títulos y planos legales del inmueble; iii) vido green propiedades (josefina vido cmcpsi 6103 recomienda y sugiere al usuario y/o al interesado realizar las verificaciones respectivas previamente a la realización de cualquier operación, requiriendo -a tal fin- por sí o a través de profesionales las copias necesarias de la documentación que estimen necesario conocer con exactitud; iv) vido green propiedades (josefina vido cmcpsi 6103 estamos a total disposición del interesado para proveerlo de toda información que nos requiera. Ante cualquier duda sobre la información recibida o sobre aquella disponible en nuestro sitio web, por favor consulte.

Contactar
1/18
Visto

11

USD 65.000

Barrio San Sebastián, Área 7 100

Terreno en Venta en San Sebastian, Countries y Barrios Cerrados en Escobar

Vinelli Inmobiliaria
  • 852 m² Total
  • 380 m² constr.
  • Excelente

Terreno venta a la laguna Barrio San Sebastián Área 7

[Vinelli-3689] terreno en venta a la laguna en el área 7, barrio san sebastián, pilar, bs. As., De 862 m2 totales. Fondo a noroeste (laguna). Casas vecinas ya construidas. Muy cercano a la entrada de acceso al área 7. Indicadores según reglamento interno del barrio, valores máximos: f.O.S. = 0,45 para construcciones en una planta, 0,35 para construcciones en dos plantas, f.O.T. = 0, 45, fos verde = 0.50, no existen incrementos o premios por sobre los valores arriba indicados. En la presente publicación hemos puesto fotos generales del barrio para dar una idea de sus virtudes y áreas comunes. Las medidas son aproximadas, las reales y los datos consignados serán verificados contra el título de propiedad. El barrio: san sebastián, ubicado en el límite de escobar y pilar, con un acceso en el km 54,5 de la autopista panamericana, cuenta con todos los servicios necesarios para que vivas la naturaleza de una forma diferente. Esta urbanización, que está compuesta por 13 barrios, abarca una superficie de 1.110 ha, los mismos están comunicados por un boulevard, lagunas, cancha de golf y más de 100 hectáreas destinadas a los deportes, lo que conforman un maravilloso ecosistema. 154 hectáreas de lagunas cancha de golf canchas de futbol y tenis seguridad 24hs club house las medidas son aproximadas, las reales y los datos consignados serán verificados contra la cesión de boleto de fideicomiso. Servicios: cloacas comercializan martilleros y corredores públicos: lic. Y mart. Matías vinelli, cucicba nº 2557 arq. Y mart. Federico vinelli, cmcpsi nº 6652

Contactar
1/2
Visto

7

USD 72.000

Boote

Terreno en Venta en San Sebastian, Countries y Barrios Cerrados en Escobar

Barrionuevo Propiedades
  • 911 m² Total

Terreno en Venta A la laguna en San Sebastían Área 8

Lote en venta a la laguna área 8, lote 390, en san sebastián, partido de pilar (límite con escobar). - Ubicado en cul de sac, ideal para quienes buscan tranquilidad. - Los lotes linderos ya están construidos. - Frente a la laguna, ofreciendo vistas inigualables. Características del barrio san sebastián: - superficie total del complejo: 1.110 hectáreas, con 154 hectáreas de lagunas interconectadas. - Áreas comunes: 65% del total, incluyendo zona de reserva de flora y fauna nativa. - Total de lotes: 3.615 divididos en 13 sub-barrios, optimizando costos y beneficios. Amenities y servicios: - canchas de fútbol, hockey, rugby y tenis (todas con iluminación). - Campo de equitación y deportes acuáticos no contaminantes. - Cancha de golf de 18 hoyos. - Club house con juegos infantiles. - Piscina y parrillas. Infraestructura: - proveeduría. - Red de fibra óptica y red de riego domiciliaria. - Áreas destinadas a sectores comerciales y educativos. Doble seguridad: control en el ingreso al complejo y en cada sub-barrio. Ubicación: - partido de pilar, a 50 minutos de capital federal. - Acceso por panamericana ramal escobar, kilómetro 54, calle boote o ruta 25. Un lote ideal para desarrollar una propiedad frente a la laguna, con acceso a amenities de primer nivel en un entorno natural privilegiado. Contacto: leticia

Contactar
1/9
Visto

3

USD 70.000

Boote 3000

Terreno en Venta en San Sebastian, Countries y Barrios Cerrados en Escobar

Jumerosky Propiedades
  • 966 m² Total

Lote al lago en San Sebastián

Lote al lago en área 9. Orientación este. San sebastián se encuentra en el partido de pilar, en el límite con escobar, a 50 minutos de la capital. Panamericana ramal escobar, kilómetro 54, entrando por calle boote y por ruta 25 y el camino matheu/zelaya. Árboles antiguos, más de 150 ha de lagunas intercomunicadas y las orillas del río lujan conforman el paisaje de este complejo. San sebastián goza de una geografía única que fusiona zonas quebradas con grandes desniveles, un paraíso para los ojos. Ésta urbanización, que está compuesta por 13 barrios, se encuentra dentro del partido de pilar, un área de gran crecimiento donde aún perduran las quintas con grandes terrenos, y abarca una superficie de 1.110 ha. Se caracteriza por una amplia infraestructura deportiva, comercial, educativa y de servicios que entusiasma a todos los que apuestan por este megaproyecto. El emprendimiento ya cuenta con un 85% del masterplan consolidado, 10 barrios están 100% suscriptos y otros 7 ya reciben sus primeros vecinos. Servicios: cloacas, gas nota: las medidas, superficies, imágenes y descripciones son al sólo efecto orientativo e ilustrativo, no poseen valor contractual. Las medidas y superficies definitivas surgirán del título de propiedad del inmueble referido. Los importes referentes a impuestos, expensas y servicios aquí indicados están sujetos a verificación por parte del potencial inquilino. El precio del alquiler del inmueble puede ser modificado sin previo aviso.

Contactar
1/5
Visto

2

USD 70.000

Boote

Terreno en Venta en San Sebastian, Countries y Barrios Cerrados en Escobar

Erro Propiedades -silvina Erro -mat 5803 CMCPSI
  • 923 m² Total

Excelente lote en venta de 923 m2 en San Sebastian, Escobar

Id 1114.- Excelente lote en venta en san sebastian, area 10, excelente ubicación. Medidas: frente: 27,33 m; contrafrente a la laguna: 16 m; laterales: 42,50 m. Superficie total 923 m2.- Area 10. Barrio nuestra señora de fatima. San sebastian se encuentra en el partido de pilar, al límite con escobar, a 50 minutos de la capital. Panamericana ramal escobar, kilómetro 54, entrando por calle boote y por ruta 25 y el camino matheu/zelaya. Árboles antiguos, más de 150 ha de lagunas intercomunicadas y las orillas del río lujan conforman el paisaje de este complejo. San sebastián goza de una geografía única que fusiona zonas quebradas con grandes desniveles, un paraíso para los ojos. Esta urbanización, que está compuesta por 13 barrios, se encuentra dentro del partido de pilar, un área de gran crecimiento donde aún perduran las quintas con grandes terrenos, y abarca una superficie de 1.110 ha. Se caracteriza por una amplia infraestructura deportiva, comercial, educativa y de servicios que entusiasma a todos los que apuestan por este proyecto. Venta sujeta a la tramitación del coti (código de transferencia de inmuebles), por parte del titular, de conformidad con la normativa vigente (res. Afip 2371/08, 2439/08 y ccs.). Servicios: cloacas, gas erro propiedades de silvina erro, mat. 5803 cmcpsi, con vasta experiencia en el mercado inmobiliario brinda a sus clientes profesionalismo, confianza y calidez, asesorandolos y acompañandolos durante toda su gestion.

Contactar
1/5
Visto

2

USD 72.000

Boote

Terreno en Venta en San Sebastian, Countries y Barrios Cerrados en Escobar

Erro Propiedades -silvina Erro -mat 5803 CMCPSI
  • 1.173 m² Total

Excelente lote en venta de 1173 m2 en San Sebastian, Escobar

Id 1116.- Excelente lote en venta en san sebastian, area 8, excelente ubicación. Medidas: frente: 12 m; contrafrente al lago: 48 m; laterales: 37,50 m. Superficie total 1173 m2.- Area 8. Barrio nuestra señora de torreciudad. San sebastian se encuentra en el partido de pilar, al límite con escobar, a 50 minutos de la capital. Panamericana ramal escobar, kilómetro 54, entrando por calle boote y por ruta 25 y el camino matheu/zelaya. Árboles antiguos, más de 150 ha de lagunas intercomunicadas y las orillas del río lujan conforman el paisaje de este complejo. San sebastián goza de una geografía única que fusiona zonas quebradas con grandes desniveles, un paraíso para los ojos. Esta urbanización, que está compuesta por 13 barrios, se encuentra dentro del partido de pilar, un área de gran crecimiento donde aún perduran las quintas con grandes terrenos, y abarca una superficie de 1.110 ha. Se caracteriza por una amplia infraestructura deportiva, comercial, educativa y de servicios que entusiasma a todos los que apuestan por este proyecto. Venta sujeta a la tramitación del coti (código de transferencia de inmuebles), por parte del titular, de conformidad con la normativa vigente (res. Afip 2371/08, 2439/08 y ccs.). Servicios: cloacas, gas erro propiedades de silvina erro, mat. 5803 cmcpsi, con vasta experiencia en el mercado inmobiliario brinda a sus clientes profesionalismo, confianza y calidez, asesorandolos y acompañandolos durante toda su gestion.

Contactar
1/18
Visto

2

USD 55.000

BOOTE al 100 SAN SEBASTIAN AREA 13

Terreno en Venta en San Sebastian, Countries y Barrios Cerrados en Escobar

KEYMEX PREMIER
  • 674 m² Total
  • 15 mts Frente
  • 23 mts Fondo

LOTE TERRENO VENTA SAN SEBASTIAN AREA 13 INTERNO POSESION INMEDIATA PARA CONSTRUIR YA

Construi ya en un lote con posesion inmediata estrategicamente ubicado san sebastian es el complejo de barrios privados mas grande de sudamerica unico en su estilo tiene vida propia podes resolver todo dentro del barrio tenes canchas de futbol tenis basquet voley multideportes piletas haras para caballos golf acceso a laguna para deportes nauticos como kayak remo optimis sntan up padel tambien tenes colonias de vacaciones para menores de edad juegos infantiles y todo lo podes utilizar desde el momento que adquiris el lote comenza a vivir una vida diferente desde el primer dia barrio san sebastian terreno venta está compuesta por 13 barrios, se encuentra dentro del partido de pilar. Se caracteriza por una amplia infraestructura deportiva, comercial y educativa, en el límite con escobar a 50 minutos de la capital. Panamericana ramal escobar, kilómetro 54 entrando por calle boote y por ruta 25 y el camino matheu/zelaya. Cuenta con una zona deportiva con cancha de tenis, fútbol, beach volley, club house, zona con cancha de golf de 18 hoyos. Oportunidad! Lote interno a metros de la entrada del area 13 en san sebastian. 674mts listos para construir. Orientación e. Mudate a la vida que queres mudate con keymex a un lote con tu casa propia en san sebastian el barrio con la infraestructura mas grande del pais.Es ahora el momento de construir tu casa propia de conformidad a las leyes provinciales vigentes que regulan el corretaje inmobiliario y a la ley nacional 25.028, la ley 22.802 de lealtad comercial, la ley 24.240 de defensa al consumidor, las normas del código civil y comercial de la nación y de la constitución provincial y nacional, los agentes/asesores inmobiliarios independientes no ejercen el corretaje inmobiliario. Todas las operaciones inmobiliarias y la documentación labrada objeto de la intermediación y los contratos que se realicen, son siempre realizados por parte del martillero y corredor público colegiado según su jurisdicción. Toda la información y medidas provistas son aproximadas y deberán ratificarse con la documentación pertinente y no compromete contractualmente a nuestra empresa. Los gastos (expensas, abl ) expresados refieren a la última información recabada y deberán confirmarse y ser actualizadas . Fotografías no contractuales ni vinculantes.

Contactar