(1) (1)
  • Santo Tome

Venta

Terreno

USD 100K-190K

Buscar solo avisos en moneda:

Dorm|Amb

Más filtros Más filtros

Superficie total

Nombre de calle y altura

Tipo de urbanización

Fot

Servicios

Tipo de anunciante

15 Terrenos en Venta en Santo Tome

1/1
Visto

0

USD 125.000

Country 2 Lagunas km al 100

Terreno en Venta en Santo Tome, Departamento de Santa Fe La Capital

Libertador Servicios Inmobiliarios
  • 1.461 m² Total

No dejes pasar esta oportunidad de hacer realidad tu sueño EN COUNTRY 2 LAGUNAS

*Oportunidad única! Terreno a la venta en country 2 lagunas* descubre este espectacular lote de 1461 m2, ubicado en el exclusivo country 2 lagunas. Con un entorno natural impresionante, este terreno ofrece la combinación perfecta de tranquilidad y seguridad, ideal para construir la casa de tus sueños. *Características del terreno:* - *antiguedad:* a estrenar - *superficie total del terreno:* 1500 m2 - *superficie vendible:* 1461 m2 *descripción:* este lote se encuentra rodeado de naturaleza y ofrece un ambiente sereno. Además, se ofrece la posibilidad de entrega del 30% y financiación, facilitando tu inversión. El country cuenta con todos los servicios necesarios: gas natural, agua potable y electricidad subterránea. Además, el proyecto de obras de cloacas ya está aprobado, lo que garantiza una infraestructura moderna. *Amenidades del country:* - dos lagunas artificiales que brindan un entorno recreativo. - Amplia forestación con especies como ibira pita y lapachos. - Seguridad permanente para tu tranquilidad. - Centro comercial para tus necesidades diarias. - Club house ideal para reuniones y actividades sociales. - Cancha de fútbol y canchas de tenis con iluminación nocturna. - Gimnasio completamente equipado. - Espacios recreativos y zonas de relax para disfrutar al máximo. No dejes pasar esta oportunidad de hacer realidad tu sueño en un entorno exclusivo y natural. Contáctanos para más información y consulta sobre los lotes disponibles!

Contactar
1/7
Visto

0

USD 150.000

Consultar dirección

Terreno en Venta en Santo Tome, Departamento de Santa Fe La Capital

  • 1.500 m² Total
  • Excelente

VENTA TERRENO 1500M2 - COUNTRY AIRES DEL LLANO

Corredor responsable: lorena de luca cci santa fe n° 0360 - contacto: leandro bosio se vende terreno en country aires del llano ubicado en el barrio 1 la brisa - manzana 10 - lote 14 con 1500 m2 de superficie se acepta financiación, posibilidad de entrega y cuotas no se aceptan propiedades como parte de pago. Rau s.R.L. No ejerce el corretaje inmobiliario. El presente sitio web es una plataforma en donde cada oficina inmobiliaria independiente que contrata los servicios re/max puede publicar las propiedades a su cargo. Cada oficina es de propiedad y gestión independiente, por lo que rau s.R.L. No interviene en los datos de la publicación, en la operación inmobiliaria, ni en la confección y/o firma del boleto de compraventa y/o escritura y/o contrato de alquiler. En cumplimiento de las leyes vigentes que regulan el corretaje inmobiliario, ley nacional 25.028, ley 22.802 de lealtad comercial, ley 24.240 de defensa al consumidor, las normas del código civil y comercial de la nación y constitucionales, los agentes/gestores no ejercen el corretaje inmobiliario. Todas las operaciones inmobiliarias son objeto de intermediación y conclusión por parte del corredor público inmobiliario colegiado a cargo de la publicación, cuyos datos se exhiben en la presente. La presente publicación describe las características esenciales del inmueble, debiéndose consultar al corredor público inmobiliario responsable de la operación por la eventual actualización de las medidas, descripciones arquitectónicas y funcionales, valores de expensas, servicios, impuestos, precios y demás información, cuyos valores son aproximados.

Contactar
1/8
Visto

0

USD 110.000

La Reserva Barrio Privado

Terreno en Venta en Santo Tome, Departamento de Santa Fe La Capital

REMAX Litoral
  • 1.000 m² Total
  • Excelente

VENTA LOTE 1000MTS LA RESERVA BARRIO PRIVADO

Corredor responsable: caroline hogner cci sta fe n 0042 - contacto: facundo garibay lote 111 en barrio privado \"la reserva\" - natural y diferente lote 1000,00 m2 ubicado en la reserva, barrio privado, con posibilidad de construcción. La reserva combina lo mejor de dos mundos: la tranquilidad de un entorno natural con la seguridad y comodidad de un barrio privado de categoría. Diseña tu hogar ideal en estos exclusivos lotes que ofrecen amplitud, privacidad y una conexión única con la naturaleza. ¡Es el momento de invertir en tu futuro! Ubicado a solo 7 minutos de la ciudad de santa fe, por au. Rosario – santa fe km 150,7. Su ingreso está sobre la colectora paralela a la autopista. Ubicación privilegiada: a pocos minutos del centro de santa fe, con acceso rápido a escuelas, centros comerciales y servicios. Seguridad y privacidad: barrio con ingreso controlado las 24 horas, cámaras de vigilancia y personal capacitado para brindar tranquilidad a tu familia. Entorno natural: espacios verdes amplios, arboledas autóctonas, lagunas y senderos diseñados para disfrutar de caminatas, ciclismo o simplemente relajarte. Infraestructura premium: ingreso con calle interna de espera para mayor seguridad y confort, servicios subterráneos (electricidad, agua, gas), y redes de fibra óptica para una conectividad de primer nivel. Oportunidad de inversión: la creciente demanda por lotes en barrios privados en santa fe asegura una valorización constante de tu inversión. El complejo tiene acceso de la autopista a sólo 100 mts, ademas se ubica junto al paseo comercial a cielo abierto las acacias (con supermercado el tunel, consultorios externos medicos del grupo mit, heladeria freddo, ferreteria, pintureria universo, fiambreria la ilusion, goipat, vanra, entre otros). Bajo la figura de conjunto inmobiliario, de acuerdo con el nuevo código civil. Lo último en tecnología. Rau s.R.L. No ejerce el corretaje inmobiliario. El presente sitio web es una plataforma en donde cada oficina inmobiliaria independiente que contrata los servicios re/max puede publicar las propiedades a su cargo. Cada oficina es de propiedad y gestión independiente, por lo que rau s.R.L. No interviene en los datos de la publicación, en la operación inmobiliaria, ni en la confección y/o firma del boleto de compraventa y/o escritura y/o contrato de alquiler. En cumplimiento de las leyes vigentes que regulan el corretaje inmobiliario, ley nacional 25.028, ley 22.802 de lealtad comercial, ley 24.240 de defensa al consumidor, las normas del código civil y comercial de la nación y constitucionales, los agentes/gestores no ejercen el corretaje inmobiliario. Todas las operaciones inmobiliarias son objeto de intermediación y conclusión por parte del corredor público inmobiliario colegiado a cargo de la publicación, cuyos datos se exhiben en la presente. La presente publicación describe las características esenciales del inmueble, debiéndose consultar al corredor público inmobiliario responsable de la operación por la eventual actualización de las medidas, descripciones arquitectónicas y funcionales, valores de expensas, servicios, impuestos, precios y demás información, cuyos valores son aproximados.

Contactar
1/5
Visto

0

USD 160.000

Club de Campo El Paso 300

Terreno en Venta en Santo Tome, Departamento de Santa Fe La Capital

REMAX Litoral
  • 800 m² Total
  • Excelente

VENTA TERRENO CLUB DE CAMPO EL PASO

Corredor responsable: caroline hogner cci sta fe n 0042 - contacto: mauro croce gran oportunidad, excelente terreno en club de campo el paso con muy buena ubicación. Medidas 20mts x 40mts.rau s.R.L. No ejerce el corretaje inmobiliario. El presente sitio web es una plataforma en donde cada oficina inmobiliaria independiente que contrata los servicios re/max puede publicar las propiedades a su cargo. Cada oficina es de propiedad y gestión independiente, por lo que rau s.R.L. No interviene en los datos de la publicación, en la operación inmobiliaria, ni en la confección y/o firma del boleto de compraventa y/o escritura y/o contrato de alquiler. En cumplimiento de las leyes vigentes que regulan el corretaje inmobiliario, ley nacional 25.028, ley 22.802 de lealtad comercial, ley 24.240 de defensa al consumidor, las normas del código civil y comercial de la nación y constitucionales, los agentes/gestores no ejercen el corretaje inmobiliario. Todas las operaciones inmobiliarias son objeto de intermediación y conclusión por parte del corredor público inmobiliario colegiado a cargo de la publicación, cuyos datos se exhiben en la presente. La presente publicación describe las características esenciales del inmueble, debiéndose consultar al corredor público inmobiliario responsable de la operación por la eventual actualización de las medidas, descripciones arquitectónicas y funcionales, valores de expensas, servicios, impuestos, precios y demás información, cuyos valores son aproximados.

Contactar
1/3
Visto

0

USD 188.000

Zona Urbana

Terreno en Venta en Santo Tome, Departamento de Santa Fe La Capital

REMAX Futuro
  • 15.697 m² Total
  • Excelente

REMAX VENDE TERRENO ZONA INDUSTRIAL SANTO TOME

Corredor responsable: marcos provvidenti cci sta fe n 0198 - contacto: mariano demonte remax vende terreno en zona industrial de santo tome. El terreno identificado como lote 1, se encuentra en la intersección de la autopista santa fe-rosario y la ruta 19, otorgando una ubicación estratégica para logística y distribución, posee un frente hacia la autopista, de 100 metros por 508 mts de fondo, con una salida a calle trasera . Ideal para salón comercial, exposición, industrias pesadas. Se encuentra a 7 km del aeropuerto de sauce viejo, 10 km de santa fe, 177 km de rosario, 337 km de cordoba. Ver notas de gestores rau s.R.L. No ejerce el corretaje inmobiliario. El presente sitio web es una plataforma en donde cada oficina inmobiliaria independiente que contrata los servicios re/max puede publicar las propiedades a su cargo. Cada oficina es de propiedad y gestión independiente, por lo que rau s.R.L. No interviene en los datos de la publicación, en la operación inmobiliaria, ni en la confección y/o firma del boleto de compraventa y/o escritura y/o contrato de alquiler. En cumplimiento de las leyes vigentes que regulan el corretaje inmobiliario, ley nacional 25.028, ley 22.802 de lealtad comercial, ley 24.240 de defensa al consumidor, las normas del código civil y comercial de la nación y constitucionales, los agentes/gestores no ejercen el corretaje inmobiliario. Todas las operaciones inmobiliarias son objeto de intermediación y conclusión por parte del corredor público inmobiliario colegiado a cargo de la publicación, cuyos datos se exhiben en la presente. La presente publicación describe las características esenciales del inmueble, debiéndose consultar al corredor público inmobiliario responsable de la operación por la eventual actualización de las medidas, descripciones arquitectónicas y funcionales, valores de expensas, servicios, impuestos, precios y demás información, cuyos valores son aproximados.

Contactar
1/4
Visto

0

USD 135.000

Maletti 3100

Terreno en Venta en Santo Tome, Departamento de Santa Fe La Capital

  • 722 m² Total
  • Excelente

Lote en Ochava sobre Bv. en Brisas del Luján

Corredor responsable: natalia magali lopez cci 664 - contacto: alexis galfre ¡Excelente oportunidad de inversión en una de las zonas con mayor proyección de crecimiento! Se venden en conjunto tres lotes contiguos (35, 36, y 37), formando un único lote de 721.92 m2 con ubicación estratégica en ochava sobre el boulevard principal del loteo brisas del lujan. Este terreno combina amplia superficie, frente sobre dos calles y una esquina destacada, ideal para uso residencial de categoría, desarrollo de housing o emprendimiento comercial. Ubicación privilegiada dentro del loteo, con entorno en pleno desarrollo y excelentes accesos. * Zona en crecimiento. * Lote nivelado * servicios en puerta consúltame para agendar una visita y conocer el potencial de este terreno único. Rau s.R.L. No ejerce el corretaje inmobiliario. El presente sitio web es una plataforma en donde cada oficina inmobiliaria independiente que contrata los servicios re/max puede publicar las propiedades a su cargo. Cada oficina es de propiedad y gestión independiente, por lo que rau s.R.L. No interviene en los datos de la publicación, en la operación inmobiliaria, ni en la confección y/o firma del boleto de compraventa y/o escritura y/o contrato de alquiler. En cumplimiento de las leyes vigentes que regulan el corretaje inmobiliario, ley nacional 25.028, ley 22.802 de lealtad comercial, ley 24.240 de defensa al consumidor, las normas del código civil y comercial de la nación y constitucionales, los agentes/gestores no ejercen el corretaje inmobiliario. Todas las operaciones inmobiliarias son objeto de intermediación y conclusión por parte del corredor público inmobiliario colegiado a cargo de la publicación, cuyos datos se exhiben en la presente. La presente publicación describe las características esenciales del inmueble, debiéndose consultar al corredor público inmobiliario responsable de la operación por la eventual actualización de las medidas, descripciones arquitectónicas y funcionales, valores de expensas, servicios, impuestos, precios y demás información, cuyos valores son aproximados.

Contactar
1/3
Visto

0

USD 100.000

Autopista Rosario - Santa Fe

Terreno en Venta en Santo Tome, Departamento de Santa Fe La Capital

REMAX Futuro
  • 1.000 m² Total

Venta terreno Nuevos Aires, frente a la laguna

Corredor responsable: marcos provvidenti cci sta fe n 0198 - contacto: agustina paolini re/max vende terreno exclusivo en el barrio la serena, el sector más buscado y cotizado de nuevos aires, con una ubicación privilegiada frente al lago. Se trata del lote 3 de la manzana 7, con una superficie de 1.000 m², ideal para proyectar tu casa soñada o realizar una inversión sólida. El barrio ya cuenta con casas construidas y familias viviendo, lo que permite comenzar a edificar de inmediato y asegurar tu lugar en un entorno consolidado. Además, ofrece canchas deportivas, sum con piscina, senderos aeróbicos, amplios espacios verdes con juegos para niños y seguridad 24 hs, garantizando calidad de vida en un espacio exclusivo y natural. Una oportunidad única en el barrio con mayor proyección y valorización de nuevos aires. Rau s.R.L. No ejerce el corretaje inmobiliario. El presente sitio web es una plataforma en donde cada oficina inmobiliaria independiente que contrata los servicios re/max puede publicar las propiedades a su cargo. Cada oficina es de propiedad y gestión independiente, por lo que rau s.R.L. No interviene en los datos de la publicación, en la operación inmobiliaria, ni en la confección y/o firma del boleto de compraventa y/o escritura y/o contrato de alquiler. En cumplimiento de las leyes vigentes que regulan el corretaje inmobiliario, ley nacional 25.028, ley 22.802 de lealtad comercial, ley 24.240 de defensa al consumidor, las normas del código civil y comercial de la nación y constitucionales, los agentes/gestores no ejercen el corretaje inmobiliario. Todas las operaciones inmobiliarias son objeto de intermediación y conclusión por parte del corredor público inmobiliario colegiado a cargo de la publicación, cuyos datos se exhiben en la presente. La presente publicación describe las características esenciales del inmueble, debiéndose consultar al corredor público inmobiliario responsable de la operación por la eventual actualización de las medidas, descripciones arquitectónicas y funcionales, valores de expensas, servicios, impuestos, precios y demás información, cuyos valores son aproximados.

Contactar
1/5
Visto

0

USD 100.000

Consultar dirección

Terreno en Venta en Santo Tome, Departamento de Santa Fe La Capital

  • 1.000 m² Total

Lote N°183 de 1000m2 en Barrio privado La Reserva

Corredor responsable: natalia magali lopez cci 664 - contacto: erika rudi se vende lote identificado como unidad funcional n° 183 (ciento ochenta y tres), de mil metros cuadrados (1.000 m2), ubicado dentro del lote “b”, parte del desarrollo inmobiliario integrante del fideicomiso “la reserva”. Este barrio privado se encuentra ubicado en la autopista rosario-santa fe en el km 150,7, localidad de santo tomé, a minutos de la ciudad. Tiene acceso por colectora y se encuentra próximo al paseo comercial a cielo abierto las acacias (el cual cuenta con supermercado, guardería infantil, gimnasio, restó, oficinas, etc). El barrio ofrece todos los servicios: gas natural, electricidad, cloaca e internet por fibra óptica. Además posee un sistema de monitoreo y seguridad las 24hs. La reserva es un entorno tranquilo y seguro, que combina la naturaleza con la proximidad a servicios esenciales y atracciones locales. Desarrollado bajo la figura de conjunto inmobiliario, de acuerdo con el nuevo código civil. Rau s.R.L. No ejerce el corretaje inmobiliario. El presente sitio web es una plataforma en donde cada oficina inmobiliaria independiente que contrata los servicios re/max puede publicar las propiedades a su cargo. Cada oficina es de propiedad y gestión independiente, por lo que rau s.R.L. No interviene en los datos de la publicación, en la operación inmobiliaria, ni en la confección y/o firma del boleto de compraventa y/o escritura y/o contrato de alquiler. En cumplimiento de las leyes vigentes que regulan el corretaje inmobiliario, ley nacional 25.028, ley 22.802 de lealtad comercial, ley 24.240 de defensa al consumidor, las normas del código civil y comercial de la nación y constitucionales, los agentes/gestores no ejercen el corretaje inmobiliario. Todas las operaciones inmobiliarias son objeto de intermediación y conclusión por parte del corredor público inmobiliario colegiado a cargo de la publicación, cuyos datos se exhiben en la presente. La presente publicación describe las características esenciales del inmueble, debiéndose consultar al corredor público inmobiliario responsable de la operación por la eventual actualización de las medidas, descripciones arquitectónicas y funcionales, valores de expensas, servicios, impuestos, precios y demás información, cuyos valores son aproximados.

Contactar
1/7
Visto

0

USD 105.000

RN 19

Terreno en Venta en Santo Tome, Departamento de Santa Fe La Capital

REMAX Futuro
  • 9.437 m² Total
  • Excelente

REMAX VENDE TERRENO A METROS DE RN19 SANTO TOME

Corredor responsable: marcos provvidenti cci sta fe n 0198 - contacto: mariano demonte remax vende terreno en zona industrial de santo tome. El terreno identificado como lote 3, se encuentra a 140 metros de la ruta 19, otorgando una ubicación estratégica para logística y distribución, posee un frente hacia el oeste de 47,50 metros y contrafrente de 46,89 metros, por 200 metros lado norte y 199,91 metros lado sur, con posibilidad de ampliar frente y tener una salida a rn 19. Ideal para salón comercial, exposición, industrias pesadas. Se encuentra a 9 km del aeropuerto de sauce viejo, 11 km de santa fe, 178 km de rosario, 336 km de cordoba. Rau s.R.L. No ejerce el corretaje inmobiliario. El presente sitio web es una plataforma en donde cada oficina inmobiliaria independiente que contrata los servicios re/max puede publicar las propiedades a su cargo. Cada oficina es de propiedad y gestión independiente, por lo que rau s.R.L. No interviene en los datos de la publicación, en la operación inmobiliaria, ni en la confección y/o firma del boleto de compraventa y/o escritura y/o contrato de alquiler. En cumplimiento de las leyes vigentes que regulan el corretaje inmobiliario, ley nacional 25.028, ley 22.802 de lealtad comercial, ley 24.240 de defensa al consumidor, las normas del código civil y comercial de la nación y constitucionales, los agentes/gestores no ejercen el corretaje inmobiliario. Todas las operaciones inmobiliarias son objeto de intermediación y conclusión por parte del corredor público inmobiliario colegiado a cargo de la publicación, cuyos datos se exhiben en la presente. La presente publicación describe las características esenciales del inmueble, debiéndose consultar al corredor público inmobiliario responsable de la operación por la eventual actualización de las medidas, descripciones arquitectónicas y funcionales, valores de expensas, servicios, impuestos, precios y demás información, cuyos valores son aproximados.

Contactar
1/3
Visto

0

USD 170.000

Autovia Santa Fe- Rosario

Terreno en Venta en Santo Tome, Departamento de Santa Fe La Capital

  • 800 m² Total
  • Excelente

VENTA - LOTE - CLUB DE CAMPO EL PASO

Corredor responsable: juan josé gómez cochia cci 174 - contacto: silvia scaparoni oportunidad en club de campo el paso ubicado en uno de los barrios privados más consolidados de la zona, este terreno de 800 m² ofrece el entorno ideal para construir tu próxima vivienda. Su ubicación dentro del club de campo no es perimetral, lo que garantiza tranquilidad y una excelente integración con el paisaje y las construcciones vecinas. Rodeado de lotes ya edificados, brinda un entorno completamente desarrollado, con vecinos permanentes y una infraestructura consolidada que potencia la calidad de vida y el valor de la inversión. Características principales: superficie total: 800 m² ubicación: club de campo el paso no perimetral terrenos linderos ya construidos entorno residencial consolidado acceso a todos los servicios del club (seguridad, áreas verdes, amenities) una excelente opción para quienes buscan un terreno listo para construir, en un entorno seguro, tranquilo y con alto valor de reventa. Coordiná una visita y descubrí el potencial de este lote en el paso. Oportunidad en club de campo el paso ubicado en uno de los barrios privados más consolidados de la zona, este terreno de 800 m² ofrece el entorno ideal para construir tu próxima vivienda. Su ubicación dentro del club de campo no es perimetral, lo que garantiza tranquilidad y una excelente integración con el paisaje y las construcciones vecinas. Rodeado de lotes ya edificados, brinda un entorno completamente desarrollado, con vecinos permanentes y una infraestructura consolidada que potencia la calidad de vida y el valor de la inversión. Características principales: superficie total: 800 m² ubicación: club de campo el paso no perimetral terrenos linderos ya construidos entorno residencial consolidado acceso a todos los servicios del club (seguridad, áreas verdes, amenities) una excelente opción para quienes buscan un terreno listo para construir, en un entorno seguro, tranquilo y con alto valor de reventa. Coordiná una visita y descubrí el potencial de este lote en el paso. Servicios del country - pileta - restaurante - despensa - seguridad las 24hs - 2 canchas de fútbol - 3 canchas de tennis - cancha de padel - plaza de juegos - campo de golf -gas -agua corriente -desagüe cloacal rau s.R.L. No ejerce el corretaje inmobiliario. El presente sitio web es una plataforma en donde cada oficina inmobiliaria independiente que contrata los servicios re/max puede publicar las propiedades a su cargo. Cada oficina es de propiedad y gestión independiente, por lo que rau s.R.L. No interviene en los datos de la publicación, en la operación inmobiliaria, ni en la confección y/o firma del boleto de compraventa y/o escritura y/o contrato de alquiler. En cumplimiento de las leyes vigentes que regulan el corretaje inmobiliario, ley nacional 25.028, ley 22.802 de lealtad comercial, ley 24.240 de defensa al consumidor, las normas del código civil y comercial de la nación y constitucionales, los agentes/gestores no ejercen el corretaje inmobiliario. Todas las operaciones inmobiliarias son objeto de intermediación y conclusión por parte del corredor público inmobiliario colegiado a cargo de la publicación, cuyos datos se exhiben en la presente. La presente publicación describe las características esenciales del inmueble, debiéndose consultar al corredor público inmobiliario responsable de la operación por la eventual actualización de las medidas, descripciones arquitectónicas y funcionales, valores de expensas, servicios, impuestos, precios y demás información, cuyos valores son aproximados.

Contactar
1/4
Visto

0

USD 105.000

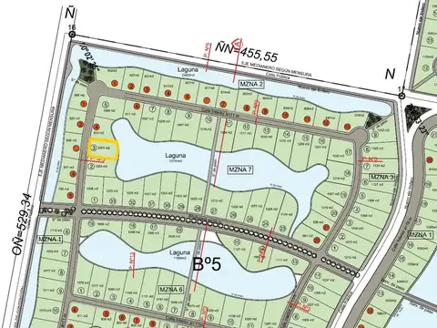
Autopista Rosario - Santa Fe LOTE 100

Terreno en Venta en Santo Tome, Departamento de Santa Fe La Capital

  • 1.000 m² Total

TERRENO EN VENTA EN SANTOMÁS. EXCEL. UBICACIÓN

Corredor responsable: felipe andrés gaitán cci 0839 - contacto: fernanda babbini remax vende terreno en loteo santomás. El terreno cuenta con una excelente ubicación ,frente al lago , lo que convierte al lote en un espacio aún más agradable y con un fondo para tu jardín, soñado. No dejes de ver la ubicación en plano dentro de las imágenes adjuntas. Rau s.R.L. No ejerce el corretaje inmobiliario. El presente sitio web es una plataforma en donde cada oficina inmobiliaria independiente que contrata los servicios re/max puede publicar las propiedades a su cargo. Cada oficina es de propiedad y gestión independiente, por lo que rau s.R.L. No interviene en los datos de la publicación, en la operación inmobiliaria, ni en la confección y/o firma del boleto de compraventa y/o escritura y/o contrato de alquiler. En cumplimiento de las leyes vigentes que regulan el corretaje inmobiliario, ley nacional 25.028, ley 22.802 de lealtad comercial, ley 24.240 de defensa al consumidor, las normas del código civil y comercial de la nación y constitucionales, los agentes/gestores no ejercen el corretaje inmobiliario. Todas las operaciones inmobiliarias son objeto de intermediación y conclusión por parte del corredor público inmobiliario colegiado a cargo de la publicación, cuyos datos se exhiben en la presente. La presente publicación describe las características esenciales del inmueble, debiéndose consultar al corredor público inmobiliario responsable de la operación por la eventual actualización de las medidas, descripciones arquitectónicas y funcionales, valores de expensas, servicios, impuestos, precios y demás información, cuyos valores son aproximados.

Contactar
1/8
Visto

0

USD 140.000

Camino Viejo 100

Terreno en Venta en Santo Tome, Departamento de Santa Fe La Capital

  • 1.335 m² Total
  • Excelente

Terreno en country Altos De La Ribera sobre el bv

Corredor responsable: natalia magali lopez cci 664 - contacto: ludmila molino terreno en venta en sobre el bv principal del country altos de la ribera medidas: 23,75x42,12 mts ubicado en bv. La ribera y los teros. Con proyecto aprobado. Ideal para construir tu vivienda. Consultar financiación. Ultimos lotes del barrio. Rau s.R.L. No ejerce el corretaje inmobiliario. El presente sitio web es una plataforma en donde cada oficina inmobiliaria independiente que contrata los servicios re/max puede publicar las propiedades a su cargo. Cada oficina es de propiedad y gestión independiente, por lo que rau s.R.L. No interviene en los datos de la publicación, en la operación inmobiliaria, ni en la confección y/o firma del boleto de compraventa y/o escritura y/o contrato de alquiler. En cumplimiento de las leyes vigentes que regulan el corretaje inmobiliario, ley nacional 25.028, ley 22.802 de lealtad comercial, ley 24.240 de defensa al consumidor, las normas del código civil y comercial de la nación y constitucionales, los agentes/gestores no ejercen el corretaje inmobiliario. Todas las operaciones inmobiliarias son objeto de intermediación y conclusión por parte del corredor público inmobiliario colegiado a cargo de la publicación, cuyos datos se exhiben en la presente. La presente publicación describe las características esenciales del inmueble, debiéndose consultar al corredor público inmobiliario responsable de la operación por la eventual actualización de las medidas, descripciones arquitectónicas y funcionales, valores de expensas, servicios, impuestos, precios y demás información, cuyos valores son aproximados.

Contactar
1/8
Visto

0

USD 170.000

Autovia Santa Fe- Rosario

Terreno en Venta en Santo Tome, Departamento de Santa Fe La Capital

  • 800 m² Total

VENTA HERMOSO LOTE EN CLUB DE CAMPO EL PASO

Corredor responsable: felipe andrés gaitán cci 0839 - contacto: sebastián giorsino lote de 800 metros cuadrados muy cercano al ingreso principal del country, ubicado en calle los geranios, no perimetral, forestacion lateral y magnifico entorno natural. Lote 12 calle los geranios- de 20 x 40 mts.- Servicios del country -pileta -restaurante -despensa -seguridad las 24hs -2 canchas de fútbol -3 canchas de tennis -cancha de padel -plaza de juegos -campo de golf rau s.R.L. No ejerce el corretaje inmobiliario. El presente sitio web es una plataforma en donde cada oficina inmobiliaria independiente que contrata los servicios re/max puede publicar las propiedades a su cargo. Cada oficina es de propiedad y gestión independiente, por lo que rau s.R.L. No interviene en los datos de la publicación, en la operación inmobiliaria, ni en la confección y/o firma del boleto de compraventa y/o escritura y/o contrato de alquiler. En cumplimiento de las leyes vigentes que regulan el corretaje inmobiliario, ley nacional 25.028, ley 22.802 de lealtad comercial, ley 24.240 de defensa al consumidor, las normas del código civil y comercial de la nación y constitucionales, los agentes/gestores no ejercen el corretaje inmobiliario. Todas las operaciones inmobiliarias son objeto de intermediación y conclusión por parte del corredor público inmobiliario colegiado a cargo de la publicación, cuyos datos se exhiben en la presente. La presente publicación describe las características esenciales del inmueble, debiéndose consultar al corredor público inmobiliario responsable de la operación por la eventual actualización de las medidas, descripciones arquitectónicas y funcionales, valores de expensas, servicios, impuestos, precios y demás información, cuyos valores son aproximados.

Contactar