(1) (1)
  • Santo Tome

Venta

Terreno

USD 75K-90K

Buscar solo avisos en moneda:

Dorm|Amb

Más filtros Más filtros

Características

Superficie total

Nombre de calle y altura

Tipo de urbanización

Fot

Servicios

Tipo de anunciante

22 Terrenos en Venta en Santo Tome

1/10
Visto

1

USD 84.000

7 Terrenos en Barrio Vecinal oeste, Santo Tomé

Terreno en Venta en Santo Tome, Departamento de Santa Fe La Capital

Coldwell Banker de la Vera Cruz
  • 4.018 m² Total
  • 69 mts Frente
  • 57 mts Fondo

Terreno Barrio Vecinal Oeste en Santo Tome

Loteo en venta barrio vecinal oeste, santo tomé oportunidad para invertir o construir tu vivienda en una ubicación tranquila y con excelente proyección. Se venden 7 lotes de 10 metros de frente por variable entre 57 y 58 metros de fondo cada uno, con generosas dimensiones que permiten múltiples posibilidades. Ubicación: calle pueyrredón, entre san martín y obispo gelabert, en el tradicional barrio vecinal oeste de santo tomé. Una zona residencial en crecimiento, con fácil acceso a las principales avenidas y cercana a comercios, escuelas, espacios verdes y transporte público. Servicios disponibles en la zona: energía eléctrica alumbrado público calles mejoradas ideal para quienes buscan amplitud, buena ubicación y una excelente relación preciometros cuadrados. Consultanos para conocer precios, opciones de compra por separados y facilidades de pago. 2025 coldwell banker. Todos los derechos reservados. Coldwell banker y los logotipos de coldwell banker son marcas de servicio de propiedad de coldwell banker real estate llc. El sistema coldwell banker está compuesto por oficinas propias de propiedad de una subsidiaria de realogy brokerage group llc y por oficinas adheridas al sistema coldwell banker que son de propiedad y operación independientes. En cumplimiento con la normativa vigente, los asesores no ejercen el corretaje inmobiliario. La intermediación y conclusión de las operaciones inmobiliarias es desarrollada por martilleros y corredores públicos. Esta oficina inmobiliaria se encuentra a cargo de carlos iovaldi, matrícula cci santa fe nro 0341 adherido al sistema coldwell banker de la vera cruz, -9, primera junta 2507, piso 7, oficina 1, santa fe.

Contactar
1/7
Visto

1

USD 84.000

Barrio La Reserva

Terreno en Venta en Santo Tome, Departamento de Santa Fe La Capital

Coldwell Banker de la Vera Cruz
  • 1.000 m² Total
  • 25 mts Frente
  • 40 mts Fondo

Terreno en Barrio privado La reserva

Venta de lote en esquina n168 en el exclusivo barrio privado la reserva! Este lote de 1000 m2 cuenta con planos aprobados tanto por la municipalidad como por el barrio, lo que te permitirá ahorrar tiempo y comenzar tu proyecto de inmediato! Características del barrio: expansión constante: el barrio privado está en pleno desarrollo, con nuevos proyectos y construcciones en marcha. Servicios completos: calles con cordón cuneta, pilar de luz y gas, y conexión de agua potable en cada lote. Seguridad y tecnología: sistema de seguridad de alta tecnología para la tranquilidad de todos los residentes. Áreas naturales: zonas de lago y bosque que ofrecen un entorno natural único. Proyectos en camino: planes para desarrollar condominios y un club house que elevarán aún más el valor de la zona. Ubicación privilegiada: centro comercial aledaño que brinda comodidad y acceso rápido a todo lo que necesitas. El lote se encuentra en una espectacular ubicación dentro del barrio, rodeado de naturaleza y nuevas construcciones. El lugar ideal para construir tu casa soñada. No dejes pasar esta oportunidad! Te invito a conocerlo y descubrir el futuro de tu nuevo hogar en la reserva. Precio negociable, y acepta permuta por casa en guadalupe este mas diferencia. 2025 coldwell banker. Todos los derechos reservados. Coldwell banker y los logotipos de coldwell banker son marcas de servicio de propiedad de coldwell banker real estate llc. El sistema coldwell banker está compuesto por oficinas propias de propiedad de una subsidiaria de realogy brokerage group llc y por oficinas adheridas al sistema coldwell banker que son de propiedad y operación independientes. En cumplimiento con la normativa vigente, los asesores no ejercen el corretaje inmobiliario. La intermediación y conclusión de las operaciones inmobiliarias es desarrollada por martilleros y corredores públicos. Esta oficina inmobiliaria se encuentra a cargo de carlos iovaldi, matrícula cci santa fe nro 0341 adherido al sistema coldwell banker de la vera cruz, -9, primera junta 2507, piso 7, oficina 1, santa fe.

Contactar
1/3
Visto

0

USD 85.000

Autopista Rosario - Santa Fe 1200, Piso 0

Terreno en Venta en Santo Tome, Departamento de Santa Fe La Capital

C21 Busaniche
  • 1.000 m² Total
  • 20 mts Frente
  • 50 mts Fondo

LOTE EN VENTA - LA RESERVA, BARRIO PRIVADO, SANTO TOME

Venta de lote en la reserva ,barrio privado unidad funcional n° 96 , 1000 m2 , medidas 20 x 50 , ubicado en lote b. Cercano al paseo las acacias, centro comercial a cielo abierto. Zona en expansión y gran desarrollo. Ubicado a 7 minutos de la ciudad de santa fe , por autopista rosario-santa fe busaniche julio matrícula mat. C.C.I. 150 teléfonos de contacto todas las propiedades que figuran en esta publicación se encuentran a cargo del profesional matriculado busaniche julio, matrícula mat. C.C.I. 150 por lo tanto la intermediación y la conclusión de las operaciones serán llevadas exclusivamente por él. En cumplimiento de la ley 10.973 de la provincia de buenos aires, ley nacional 25.028, ley nacional 20.266, ley 22.802 de lealtad comercial, ley 24.240 de defensa al consumidor, las normas del código civil y comercial de la nación y constitucionales, los asesores o agentes no ejercen el corretaje inmobiliario. Todas las operaciones inmobiliarias son objeto de intermediación y conclusión por parte del martillero y corredor colegiado, cuyos datos se exhiben en el nombre de la inmobiliaria. Ley 5115: excepto que en la descripción de la propiedad se indique lo contrario, el edificio puede no contar con rampa para personas con movilidad reducida, y no ser accesible para personas con discapacidades físicas. Venta sujeta a la obtención del coti por parte del propietario. Las medidas son aproximadas, las reales surgen del título o plano de mensura. Las reservas se toman exclusivamente en la inmobiliaria con el matriculado mat. C.C.I. 150

Contactar
1/7
Visto

0

USD 87.700

Santomás Pueblo Verde 100

Terreno en Venta en Santo Tome, Departamento de Santa Fe La Capital

REMAX Litoral
  • 877 m² Total
  • Excelente

GRAN OPORTUNIDAD TERRENO EN SANTOMÁS PUEBLO VERDE

Corredor responsable: caroline hogner cci sta fe n 0042 - contacto: mauro croce imperdible oportunidad, terreno en santomás pueblo verde ubicado en barrio cielo. Se trata de una planificación urbana con infraestructura de primer nivel, servicios accesibles e innovación tecnológica. Un desarrollo urbano de 150 hectáreas único y original en la región, en el que se proyectan novedosos estilos constructivos conviviendo en armonía en un entorno natural, abierto y seguro. Su diseño busca brindar el mayor confort a sus habitantes, basado en valores ecológicos y sostenibles. Superficie total de terreno: 877 m2 ofrece financiación: entrega 50% y 18 cuotas ajutables por cac. Rau s.R.L. No ejerce el corretaje inmobiliario. El presente sitio web es una plataforma en donde cada oficina inmobiliaria independiente que contrata los servicios re/max puede publicar las propiedades a su cargo. Cada oficina es de propiedad y gestión independiente, por lo que rau s.R.L. No interviene en los datos de la publicación, en la operación inmobiliaria, ni en la confección y/o firma del boleto de compraventa y/o escritura y/o contrato de alquiler. En cumplimiento de las leyes vigentes que regulan el corretaje inmobiliario, ley nacional 25.028, ley 22.802 de lealtad comercial, ley 24.240 de defensa al consumidor, las normas del código civil y comercial de la nación y constitucionales, los agentes/gestores no ejercen el corretaje inmobiliario. Todas las operaciones inmobiliarias son objeto de intermediación y conclusión por parte del corredor público inmobiliario colegiado a cargo de la publicación, cuyos datos se exhiben en la presente. La presente publicación describe las características esenciales del inmueble, debiéndose consultar al corredor público inmobiliario responsable de la operación por la eventual actualización de las medidas, descripciones arquitectónicas y funcionales, valores de expensas, servicios, impuestos, precios y demás información, cuyos valores son aproximados.

Contactar
1/4
Visto

0

USD 85.000

Consultar dirección

Terreno en Venta en Santo Tome, Departamento de Santa Fe La Capital

  • 717 m² Total
  • Excelente

Lote en Santomas - Barrio El Bosque

Corredor responsable: natalia magali lopez cci 664 - contacto: nahuel romero lote 18 de los cipreses barrio el bosque de 717,34 mt2 para construir la casa de tus sueños. Una planificación urbana con infraestructura de primer nivel, servicios accesibles e innovación tecnológica. Su diseño busca brindar el mayor confort a sus habitantes, basado en valores ecológicos y sostenibles. Un desarrollo urbano de 150 hectáreas único y original en la región, en el que se proyectan novedosos estilos constructivos conviviendo en armonía en un entorno natural, abierto y seguro. Rau s.R.L. No ejerce el corretaje inmobiliario. El presente sitio web es una plataforma en donde cada oficina inmobiliaria independiente que contrata los servicios re/max puede publicar las propiedades a su cargo. Cada oficina es de propiedad y gestión independiente, por lo que rau s.R.L. No interviene en los datos de la publicación, en la operación inmobiliaria, ni en la confección y/o firma del boleto de compraventa y/o escritura y/o contrato de alquiler. En cumplimiento de las leyes vigentes que regulan el corretaje inmobiliario, ley nacional 25.028, ley 22.802 de lealtad comercial, ley 24.240 de defensa al consumidor, las normas del código civil y comercial de la nación y constitucionales, los agentes/gestores no ejercen el corretaje inmobiliario. Todas las operaciones inmobiliarias son objeto de intermediación y conclusión por parte del corredor público inmobiliario colegiado a cargo de la publicación, cuyos datos se exhiben en la presente. La presente publicación describe las características esenciales del inmueble, debiéndose consultar al corredor público inmobiliario responsable de la operación por la eventual actualización de las medidas, descripciones arquitectónicas y funcionales, valores de expensas, servicios, impuestos, precios y demás información, cuyos valores son aproximados.

Contactar
1/5
Visto

0

USD 75.000

Autopista Rosario - Santa Fe

Terreno en Venta en Santo Tome, Departamento de Santa Fe La Capital

REMAX Rumbo
  • 717 m² Total

VENTA TERRENO EN SAN TOMÁS - ETAPA LAGO

Corredor responsable: manuel gonzález zurbriggen cci 684 - contacto: maría sol maciel se vende terreno en tercera etapa de urbanización lote 18 de 716.97 m2 ubicada en lago de santomás. Santomás es un desarrollo urbano de 150 hectáreas único y original en la región, en el que se proyectan novedosos estilos constructivos conviviendo en armonía en un entorno natural, abierto y seguro. -Cableado subterráneo -red cloacal -alumbrado publico led -monitoreo y seguridad -calles pavimentadas -cañería tritubo -agua corriente. Acepta financiacion - rau s.R.L. No ejerce el corretaje inmobiliario. El presente sitio web es una plataforma en donde cada oficina inmobiliaria independiente que contrata los servicios re/max puede publicar las propiedades a su cargo. Cada oficina es de propiedad y gestión independiente, por lo que rau s.R.L. No interviene en los datos de la publicación, en la operación inmobiliaria, ni en la confección y/o firma del boleto de compraventa y/o escritura y/o contrato de alquiler. En cumplimiento de las leyes vigentes que regulan el corretaje inmobiliario, ley nacional 25.028, ley 22.802 de lealtad comercial, ley 24.240 de defensa al consumidor, las normas del código civil y comercial de la nación y constitucionales, los agentes/gestores no ejercen el corretaje inmobiliario. Todas las operaciones inmobiliarias son objeto de intermediación y conclusión por parte del corredor público inmobiliario colegiado a cargo de la publicación, cuyos datos se exhiben en la presente. La presente publicación describe las características esenciales del inmueble, debiéndose consultar al corredor público inmobiliario responsable de la operación por la eventual actualización de las medidas, descripciones arquitectónicas y funcionales, valores de expensas, servicios, impuestos, precios y demás información, cuyos valores son aproximados.

Contactar
1/8
Visto

0

USD 85.000

Autopista Rosario - Santa Fe

Terreno en Venta en Santo Tome, Departamento de Santa Fe La Capital

  • 1.000 m² Total
  • Excelente

BARRIO PRIVADO LA RESERVA - LOTE

Corredor responsable: juan josé gómez cochia cci 174 - contacto: silvia scaparoni lote 00-07 lote 1000,00 m2 ubicado en la reserva, barrio privado, con posibilidad de construcción. La reserva combina lo mejor de dos mundos: la tranquilidad de un entorno natural con la seguridad y comodidad de un barrio privado de categoría. Diseña tu hogar ideal en estos exclusivos lotes que ofrecen amplitud, privacidad y una conexión única con la naturaleza. ¡Es el momento de invertir en tu futuro! Ubicado a solo 7 minutos de la ciudad de santa fe, por au. Rosario – santa fe km 150,7. Su ingreso está sobre la colectora paralela a la autopista. Ubicación privilegiada: a pocos minutos del centro de santa fe, con acceso rápido a escuelas, centros comerciales y servicios. Seguridad y privacidad: barrio con ingreso controlado las 24 horas, cámaras de vigilancia y personal capacitado para brindar tranquilidad a tu familia. Entorno natural: espacios verdes amplios, arboledas autóctonas, lagunas y senderos diseñados para disfrutar de caminatas, ciclismo o simplemente relajarte. Infraestructura premium: calles asfaltadas, servicios subterráneos (electricidad, agua, gas), y redes de fibra óptica para una conectividad de primer nivel. Oportunidad de inversión: la creciente demanda por lotes en barrios privados en santa fe asegura una valorización constante de tu inversión. El complejo tiene acceso de la autopista a sólo 100 mts, ademas se ubica junto al paseo comercial a cielo abierto las acacias (con supermercado el tunel, consultorios externos medicos del grupo mit, heladeria freddo, ferreteria, pintureria universo, fiambreria la ilusion, goipat, vanra, entre otros). Bajo la figura de conjunto inmobiliario, de acuerdo con el nuevo código civil. Lo último en tecnología. Rau s.R.L. No ejerce el corretaje inmobiliario. El presente sitio web es una plataforma en donde cada oficina inmobiliaria independiente que contrata los servicios re/max puede publicar las propiedades a su cargo. Cada oficina es de propiedad y gestión independiente, por lo que rau s.R.L. No interviene en los datos de la publicación, en la operación inmobiliaria, ni en la confección y/o firma del boleto de compraventa y/o escritura y/o contrato de alquiler. En cumplimiento de las leyes vigentes que regulan el corretaje inmobiliario, ley nacional 25.028, ley 22.802 de lealtad comercial, ley 24.240 de defensa al consumidor, las normas del código civil y comercial de la nación y constitucionales, los agentes/gestores no ejercen el corretaje inmobiliario. Todas las operaciones inmobiliarias son objeto de intermediación y conclusión por parte del corredor público inmobiliario colegiado a cargo de la publicación, cuyos datos se exhiben en la presente. La presente publicación describe las características esenciales del inmueble, debiéndose consultar al corredor público inmobiliario responsable de la operación por la eventual actualización de las medidas, descripciones arquitectónicas y funcionales, valores de expensas, servicios, impuestos, precios y demás información, cuyos valores son aproximados.

Contactar
1/8
Visto

0

Consultar precio

Zona Barrios Privados (3016), Santa Fe Capital, Santa Fe, Argentina

Terreno en Venta en Santo Tome, Departamento de Santa Fe La Capital

REMAX Litoral
  • 700 m² Total
  • Excelente

Lote en Barrio privado La Reserva Nro 26

Corredor responsable: caroline hogner cci sta fe n 0042 - contacto: nanci raquel jarisz lote de 700m² en venta en barrio privado la reserva, santo tomé, santa fe se trata del lote n°26 de 700m² (20m x 34,79m) ubicado en el exclusivo barrio privado la reserva, en la ciudad de santo tomé, santa fe. Cuenta con una excelente ubicación, con acceso por la colectora de la autopista rosario - santa fe, a minutos del centro de la ciudad. El barrio privado la reserva ofrece servicios de gas natural, electricidad, cloacas e internet por fibra óptica. Además, se encuentra en desarrollo el paseo comercial a cielo abierto las acacias, que ya cuenta con un supermercado, gimnasio, centro medico, entre otros comercios y servicios. El terreno se encuentra en excelente estado general y está desarrollado bajo la figura de conjunto inmobiliario, de acuerdo con el nuevo código civil, lo que garantiza las últimas tecnologías y estándares de calidad. Rau s.R.L. No ejerce el corretaje inmobiliario. El presente sitio web es una plataforma en donde cada oficina inmobiliaria independiente que contrata los servicios re/max puede publicar las propiedades a su cargo. Cada oficina es de propiedad y gestión independiente, por lo que rau s.R.L. No interviene en los datos de la publicación, en la operación inmobiliaria, ni en la confección y/o firma del boleto de compraventa y/o escritura y/o contrato de alquiler. En cumplimiento de las leyes vigentes que regulan el corretaje inmobiliario, ley nacional 25.028, ley 22.802 de lealtad comercial, ley 24.240 de defensa al consumidor, las normas del código civil y comercial de la nación y constitucionales, los agentes/gestores no ejercen el corretaje inmobiliario. Todas las operaciones inmobiliarias son objeto de intermediación y conclusión por parte del corredor público inmobiliario colegiado a cargo de la publicación, cuyos datos se exhiben en la presente. La presente publicación describe las características esenciales del inmueble, debiéndose consultar al corredor público inmobiliario responsable de la operación por la eventual actualización de las medidas, descripciones arquitectónicas y funcionales, valores de expensas, servicios, impuestos, precios y demás información, cuyos valores son aproximados.

Contactar
1/8
Visto

0

USD 85.000

Consultar dirección

Terreno en Venta en Santo Tome, Departamento de Santa Fe La Capital

REMAX Litoral
  • 1.000 m² Total

VENTA LOTE N°6, 1000 M2, BARRIO PRIVADO LA RESERVA

Corredor responsable: caroline hogner cci sta fe n 0042 - contacto: cinthia hadad unidad funcional n° 6, de 1000 m2. El barrio, cuenta con: - circuito cerrado de cámaras. - Puesto de control de acceso. - Vigilancia y seguridad privada 24 hs. - Id de empleados y mascotas. - Fibra óptica de alta velocidad. - Lago recreativo y reservorio hídrico. - Amenities: club house / pileta / cancha de fútbol 7. - Centro comercial. - Red de gas natural domiciliario. - Red de alumbrado interno. En la mejor ubicación, con los mejores accesos y pegado al paseo comercial las acacias (supermercado tunel , gimnasio, restó, oficinas, medicina etc). Bajo la figura de conjunto inmobiliario, de acuerdo con el nuevo código civil. Lo último en tecnología. Rau s.R.L. No ejerce el corretaje inmobiliario. El presente sitio web es una plataforma en donde cada oficina inmobiliaria independiente que contrata los servicios re/max puede publicar las propiedades a su cargo. Cada oficina es de propiedad y gestión independiente, por lo que rau s.R.L. No interviene en los datos de la publicación, en la operación inmobiliaria, ni en la confección y/o firma del boleto de compraventa y/o escritura y/o contrato de alquiler. En cumplimiento de las leyes vigentes que regulan el corretaje inmobiliario, ley nacional 25.028, ley 22.802 de lealtad comercial, ley 24.240 de defensa al consumidor, las normas del código civil y comercial de la nación y constitucionales, los agentes/gestores no ejercen el corretaje inmobiliario. Todas las operaciones inmobiliarias son objeto de intermediación y conclusión por parte del corredor público inmobiliario colegiado a cargo de la publicación, cuyos datos se exhiben en la presente. La presente publicación describe las características esenciales del inmueble, debiéndose consultar al corredor público inmobiliario responsable de la operación por la eventual actualización de las medidas, descripciones arquitectónicas y funcionales, valores de expensas, servicios, impuestos, precios y demás información, cuyos valores son aproximados.

Contactar
1/3
Visto

0

USD 75.000

Autopista Rosario - Santa Fe

Terreno en Venta en Santo Tome, Departamento de Santa Fe La Capital

REMAX Litoral
  • 1.028 m² Total

TERRENO EN VENTA, SOBRE BOULEVARD, FRENTE AL LAGO

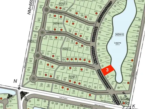
Corredor responsable: caroline hogner cci sta fe n 0042 - contacto: agustín borgna terreno en venta (1.028 m2) – barrio “la mansa”, nuevos aires country club se ofrece a la venta el lote 3, manzana 9, ubicado en el exclusivo barrio “la mansa” de nuevos aires country club. La localización de este terreno es inmejorable: sobre el boulevard principal y con vistas privilegiadas al lago, combinando accesibilidad y naturaleza en un mismo lugar. Entorno y amenities del country: espacios al aire libre: más de 8.000 m² de áreas verdes con juegos infantiles, bulevares arbolados, sendas peatonales y circuitos para bicicletas. Lagunas internas: más de 10 hectáreas de lagunas distribuidas entre los tres barrios, con circuitos aeróbicos y vistas únicas. Seguridad 24 hs: sistema de cámaras de vigilancia monitoreadas, para vivir con total tranquilidad. Ingresos diferenciados: tres portales de acceso, uno por cada barrio, que agilizan la circulación y brindan mayor control y seguridad. Infraestructura moderna: planta propia de tratamiento cloacal, que asegura higiene ambiental y evita el uso de pozos negros. Este lote ofrece una ubicación estratégica y privilegiada, ideal para quienes buscan construir su casa en un entorno seguro, natural y con la mejor calidad de vida. * Se escuchan propuestas, de modalidad de pago. (Entrega y financiación) rau s.R.L. No ejerce el corretaje inmobiliario. El presente sitio web es una plataforma en donde cada oficina inmobiliaria independiente que contrata los servicios re/max puede publicar las propiedades a su cargo. Cada oficina es de propiedad y gestión independiente, por lo que rau s.R.L. No interviene en los datos de la publicación, en la operación inmobiliaria, ni en la confección y/o firma del boleto de compraventa y/o escritura y/o contrato de alquiler. En cumplimiento de las leyes vigentes que regulan el corretaje inmobiliario, ley nacional 25.028, ley 22.802 de lealtad comercial, ley 24.240 de defensa al consumidor, las normas del código civil y comercial de la nación y constitucionales, los agentes/gestores no ejercen el corretaje inmobiliario. Todas las operaciones inmobiliarias son objeto de intermediación y conclusión por parte del corredor público inmobiliario colegiado a cargo de la publicación, cuyos datos se exhiben en la presente. La presente publicación describe las características esenciales del inmueble, debiéndose consultar al corredor público inmobiliario responsable de la operación por la eventual actualización de las medidas, descripciones arquitectónicas y funcionales, valores de expensas, servicios, impuestos, precios y demás información, cuyos valores son aproximados.

Contactar
1/12
Visto

0

USD 79.000

Autopista Rosario - Santa Fe

Terreno en Venta en Santo Tome, Departamento de Santa Fe La Capital

REMAX Rumbo
  • 1.006 m² Total
  • Excelente

VENTA TERRENO EN NUEVOS AIRES

Corredor responsable: manuel gonzález zurbriggen cci 684 - contacto: carina croatto venta lote en nuevos aires - barrio 5 - la serena barrio 5 la serena, manzana 4, lote 8 proyecto “nuevos aires” – country club oportunidad única de adquirir un lote en uno de los barrios privados más exclusivos de la ciudad de santa fe, donde el confort, la seguridad y la calidad de vida se combinan en un entorno natural y cuidadosamente planificado. Ubicación: a la vera de la autopista rosario–santa fe, km?150 este lote ofrece una excelente superficie y ubicación y está listo para construir la casa de tus sueños, en un entorno rodeado de verde, tranquilidad y arquitectura de primer nivel. Posesión inmediata. Infraestructura: * red de servicios completa: agua, cloacas, gas y energía eléctrica subterránea. * Vías con hormigón articulado en calles principales y enripiadas en secundarias. * Áreas recreativas: lagunas, plazas de hasta 4.000?M², juegos infantiles y espacios deportivos/recreativos, canchas de futbol y tenis, circuitos aerobicos, sum con piscina. * Plantas de tratamiento de efluentes modernas con reactor biológico y deshidratación de barros para abono. * Seguridad perimetral con tecnología avanzada para control de acceso. Rau s.R.L. No ejerce el corretaje inmobiliario. El presente sitio web es una plataforma en donde cada oficina inmobiliaria independiente que contrata los servicios re/max puede publicar las propiedades a su cargo. Cada oficina es de propiedad y gestión independiente, por lo que rau s.R.L. No interviene en los datos de la publicación, en la operación inmobiliaria, ni en la confección y/o firma del boleto de compraventa y/o escritura y/o contrato de alquiler. En cumplimiento de las leyes vigentes que regulan el corretaje inmobiliario, ley nacional 25.028, ley 22.802 de lealtad comercial, ley 24.240 de defensa al consumidor, las normas del código civil y comercial de la nación y constitucionales, los agentes/gestores no ejercen el corretaje inmobiliario. Todas las operaciones inmobiliarias son objeto de intermediación y conclusión por parte del corredor público inmobiliario colegiado a cargo de la publicación, cuyos datos se exhiben en la presente. La presente publicación describe las características esenciales del inmueble, debiéndose consultar al corredor público inmobiliario responsable de la operación por la eventual actualización de las medidas, descripciones arquitectónicas y funcionales, valores de expensas, servicios, impuestos, precios y demás información, cuyos valores son aproximados.

Contactar
1/9
Visto

0

USD 85.000

Autopista Rosario km 100

Terreno en Venta en Santo Tome, Departamento de Santa Fe La Capital

REMAX Rumbo
  • 838 m² Total

LOTE PARA ARRANCAR A CONSTRUIR EN SAN TOMAS

Corredor responsable: manuel gonzález zurbriggen cci 684 - contacto: marcos lorenz entorno tranquilo, en pleno crecimiento urbanístico. Ideal para quienes buscan construir o invertir en una zona ordenada con altísimo potencial, a minutos del centro de santo tome y con excelente acceso a santa fe capital venta de lote no perimetral en santomás de 837 m2 aprox en etapa 1 en las calandrias de cielo de santomás un lote que se identifica en el plano de mensura como un lote con una superficie aproximada de 837 metros cuadrados que forma parte de la primera etapa de la urbanización designado como lote 102 ubicado en las calandrias de cielo de santomás. Se desarrolla el proyecto urbanístico denominado santomás. Los servicios que posee energía eléctrica red local y planta de tratamiento agua corriente alumbrado público led calle pavimentadas con intertravado y cordón cuneta cableado subterráneo cañería trituvo que permite señales de ctv telefonía e internet y monitoreo y seguridad electrónica perimetral y urbana. Fecha de entrega estimada de la primera etapa de urbanización para el año 2025. Hoy ya se puede tomar tomar posesión y ya esta habilitado para la construcción. Rau s.R.L. No ejerce el corretaje inmobiliario. El presente sitio web es una plataforma en donde cada oficina inmobiliaria independiente que contrata los servicios re/max puede publicar las propiedades a su cargo. Cada oficina es de propiedad y gestión independiente, por lo que rau s.R.L. No interviene en los datos de la publicación, en la operación inmobiliaria, ni en la confección y/o firma del boleto de compraventa y/o escritura y/o contrato de alquiler. En cumplimiento de las leyes vigentes que regulan el corretaje inmobiliario, ley nacional 25.028, ley 22.802 de lealtad comercial, ley 24.240 de defensa al consumidor, las normas del código civil y comercial de la nación y constitucionales, los agentes/gestores no ejercen el corretaje inmobiliario. Todas las operaciones inmobiliarias son objeto de intermediación y conclusión por parte del corredor público inmobiliario colegiado a cargo de la publicación, cuyos datos se exhiben en la presente. La presente publicación describe las características esenciales del inmueble, debiéndose consultar al corredor público inmobiliario responsable de la operación por la eventual actualización de las medidas, descripciones arquitectónicas y funcionales, valores de expensas, servicios, impuestos, precios y demás información, cuyos valores son aproximados.

Contactar
1/12
Visto

0

USD 90.000

La Reserva Barrio Privado

Terreno en Venta en Santo Tome, Departamento de Santa Fe La Capital

REMAX Futuro
  • 1.000 m² Total

SE VENDE LOTE EN LA RESERVA de 1000 M2

Corredor responsable: marcos provvidenti cci sta fe n 0198 - contacto: rodrigo brussa remax futuro vende lote en la reserva, barrio privado. Lote de 20 x 50 (1000 m2) en una de las mejores ubicaciones. Lote nro. 127 este barrio privado se encuentra ubicado en la autopista rosario-santa fe en el km 150,7, localidad de santo tomé, a minutos de la ciudad. Tiene acceso por colectora y se encuentra próximo al paseo comercial a cielo abierto las acacias (el cual cuenta con supermercado, guardería infantil, gimnasio, restó, oficinas, etc). El barrio, cuenta con: - circuito cerrado de cámaras. - Puesto de control de acceso. - Vigilancia y seguridad privada 24 hs. - Id de empleados y mascotas. - Fibra óptica de alta velocidad. - Lago recreativo y reservorio hídrico. - Amenities: club house / pileta / cancha de fútbol 7. - Centro comercial. - Red de gas natural domiciliario. - Red de alumbrado interno. La reserva es un entorno tranquilo y seguro, que combina la naturaleza con la proximidad a servicios esenciales y atracciones locales. Rau s.R.L. No ejerce el corretaje inmobiliario. El presente sitio web es una plataforma en donde cada oficina inmobiliaria independiente que contrata los servicios re/max puede publicar las propiedades a su cargo. Cada oficina es de propiedad y gestión independiente, por lo que rau s.R.L. No interviene en los datos de la publicación, en la operación inmobiliaria, ni en la confección y/o firma del boleto de compraventa y/o escritura y/o contrato de alquiler. En cumplimiento de las leyes vigentes que regulan el corretaje inmobiliario, ley nacional 25.028, ley 22.802 de lealtad comercial, ley 24.240 de defensa al consumidor, las normas del código civil y comercial de la nación y constitucionales, los agentes/gestores no ejercen el corretaje inmobiliario. Todas las operaciones inmobiliarias son objeto de intermediación y conclusión por parte del corredor público inmobiliario colegiado a cargo de la publicación, cuyos datos se exhiben en la presente. La presente publicación describe las características esenciales del inmueble, debiéndose consultar al corredor público inmobiliario responsable de la operación por la eventual actualización de las medidas, descripciones arquitectónicas y funcionales, valores de expensas, servicios, impuestos, precios y demás información, cuyos valores son aproximados.

Contactar