(1) (1)
  • Santo Tome

Venta

Terreno

USD 90K-120K

Buscar solo avisos en moneda:

Dorm|Amb

Más filtros Más filtros

Características

Superficie total

Nombre de calle y altura

Tipo de urbanización

Fot

Servicios

Tipo de anunciante

23 Terrenos en Venta en Santo Tome

1/8
Visto

0

USD 90.000

Consultar dirección

Terreno en Venta en Santo Tome, Departamento de Santa Fe La Capital

REMAX Litoral
  • 1.000 m² Total

VENTA LOTE N°6, 1000 M2, BARRIO PRIVADO LA RESERVA

Corredor responsable: caroline hogner cci sta fe n 0042 - contacto: cinthia hadad unidad funcional n° 6, de 1000 m2. El barrio, cuenta con: - circuito cerrado de cámaras. - Puesto de control de acceso. - Vigilancia y seguridad privada 24 hs. - Id de empleados y mascotas. - Fibra óptica de alta velocidad. - Lago recreativo y reservorio hídrico. - Amenities: club house / pileta / cancha de fútbol 7. - Centro comercial. - Red de gas natural domiciliario. - Red de alumbrado interno. En la mejor ubicación, con los mejores accesos y pegado al paseo comercial las acacias (supermercado tunel , gimnasio, restó, oficinas, medicina etc). Bajo la figura de conjunto inmobiliario, de acuerdo con el nuevo código civil. Lo último en tecnología. Rau s.R.L. No ejerce el corretaje inmobiliario. El presente sitio web es una plataforma en donde cada oficina inmobiliaria independiente que contrata los servicios re/max puede publicar las propiedades a su cargo. Cada oficina es de propiedad y gestión independiente, por lo que rau s.R.L. No interviene en los datos de la publicación, en la operación inmobiliaria, ni en la confección y/o firma del boleto de compraventa y/o escritura y/o contrato de alquiler. En cumplimiento de las leyes vigentes que regulan el corretaje inmobiliario, ley nacional 25.028, ley 22.802 de lealtad comercial, ley 24.240 de defensa al consumidor, las normas del código civil y comercial de la nación y constitucionales, los agentes/gestores no ejercen el corretaje inmobiliario. Todas las operaciones inmobiliarias son objeto de intermediación y conclusión por parte del corredor público inmobiliario colegiado a cargo de la publicación, cuyos datos se exhiben en la presente. La presente publicación describe las características esenciales del inmueble, debiéndose consultar al corredor público inmobiliario responsable de la operación por la eventual actualización de las medidas, descripciones arquitectónicas y funcionales, valores de expensas, servicios, impuestos, precios y demás información, cuyos valores son aproximados.

Contactar
1/8
Visto

0

USD 110.000

La Reserva Barrio Privado

Terreno en Venta en Santo Tome, Departamento de Santa Fe La Capital

REMAX Litoral
  • 1.000 m² Total
  • Excelente

VENTA LOTE 1000MTS LA RESERVA BARRIO PRIVADO

Corredor responsable: caroline hogner cci sta fe n 0042 - contacto: facundo garibay lote 111 en barrio privado \"la reserva\" - natural y diferente lote 1000,00 m2 ubicado en la reserva, barrio privado, con posibilidad de construcción. La reserva combina lo mejor de dos mundos: la tranquilidad de un entorno natural con la seguridad y comodidad de un barrio privado de categoría. Diseña tu hogar ideal en estos exclusivos lotes que ofrecen amplitud, privacidad y una conexión única con la naturaleza. ¡Es el momento de invertir en tu futuro! Ubicado a solo 7 minutos de la ciudad de santa fe, por au. Rosario – santa fe km 150,7. Su ingreso está sobre la colectora paralela a la autopista. Ubicación privilegiada: a pocos minutos del centro de santa fe, con acceso rápido a escuelas, centros comerciales y servicios. Seguridad y privacidad: barrio con ingreso controlado las 24 horas, cámaras de vigilancia y personal capacitado para brindar tranquilidad a tu familia. Entorno natural: espacios verdes amplios, arboledas autóctonas, lagunas y senderos diseñados para disfrutar de caminatas, ciclismo o simplemente relajarte. Infraestructura premium: ingreso con calle interna de espera para mayor seguridad y confort, servicios subterráneos (electricidad, agua, gas), y redes de fibra óptica para una conectividad de primer nivel. Oportunidad de inversión: la creciente demanda por lotes en barrios privados en santa fe asegura una valorización constante de tu inversión. El complejo tiene acceso de la autopista a sólo 100 mts, ademas se ubica junto al paseo comercial a cielo abierto las acacias (con supermercado el tunel, consultorios externos medicos del grupo mit, heladeria freddo, ferreteria, pintureria universo, fiambreria la ilusion, goipat, vanra, entre otros). Bajo la figura de conjunto inmobiliario, de acuerdo con el nuevo código civil. Lo último en tecnología. Rau s.R.L. No ejerce el corretaje inmobiliario. El presente sitio web es una plataforma en donde cada oficina inmobiliaria independiente que contrata los servicios re/max puede publicar las propiedades a su cargo. Cada oficina es de propiedad y gestión independiente, por lo que rau s.R.L. No interviene en los datos de la publicación, en la operación inmobiliaria, ni en la confección y/o firma del boleto de compraventa y/o escritura y/o contrato de alquiler. En cumplimiento de las leyes vigentes que regulan el corretaje inmobiliario, ley nacional 25.028, ley 22.802 de lealtad comercial, ley 24.240 de defensa al consumidor, las normas del código civil y comercial de la nación y constitucionales, los agentes/gestores no ejercen el corretaje inmobiliario. Todas las operaciones inmobiliarias son objeto de intermediación y conclusión por parte del corredor público inmobiliario colegiado a cargo de la publicación, cuyos datos se exhiben en la presente. La presente publicación describe las características esenciales del inmueble, debiéndose consultar al corredor público inmobiliario responsable de la operación por la eventual actualización de las medidas, descripciones arquitectónicas y funcionales, valores de expensas, servicios, impuestos, precios y demás información, cuyos valores son aproximados.

Contactar
1/7
Visto

0

USD 90.000

La Reserva Barrio Privado

Terreno en Venta en Santo Tome, Departamento de Santa Fe La Capital

REMAX Futuro
  • 1.000 m² Total

SE VENDE LOTE EN LA RESERVA de 1000 M2

Corredor responsable: marcos provvidenti cci sta fe n 0198 - contacto: rodrigo brussa remax futuro vende lote en la reserva, barrio privado. Lote de 20 x 50 (1000 m2) en una de las mejores ubicaciones. Lote nro. 127 este barrio privado se encuentra ubicado en la autopista rosario-santa fe en el km 150,7, localidad de santo tomé, a minutos de la ciudad. Tiene acceso por colectora y se encuentra próximo al paseo comercial a cielo abierto las acacias (el cual cuenta con supermercado, guardería infantil, gimnasio, restó, oficinas, etc). El barrio, cuenta con: - circuito cerrado de cámaras. - Puesto de control de acceso. - Vigilancia y seguridad privada 24 hs. - Id de empleados y mascotas. - Fibra óptica de alta velocidad. - Lago recreativo y reservorio hídrico. - Amenities: club house / pileta / cancha de fútbol 7. - Centro comercial. - Red de gas natural domiciliario. - Red de alumbrado interno. La reserva es un entorno tranquilo y seguro, que combina la naturaleza con la proximidad a servicios esenciales y atracciones locales. Rau s.R.L. No ejerce el corretaje inmobiliario. El presente sitio web es una plataforma en donde cada oficina inmobiliaria independiente que contrata los servicios re/max puede publicar las propiedades a su cargo. Cada oficina es de propiedad y gestión independiente, por lo que rau s.R.L. No interviene en los datos de la publicación, en la operación inmobiliaria, ni en la confección y/o firma del boleto de compraventa y/o escritura y/o contrato de alquiler. En cumplimiento de las leyes vigentes que regulan el corretaje inmobiliario, ley nacional 25.028, ley 22.802 de lealtad comercial, ley 24.240 de defensa al consumidor, las normas del código civil y comercial de la nación y constitucionales, los agentes/gestores no ejercen el corretaje inmobiliario. Todas las operaciones inmobiliarias son objeto de intermediación y conclusión por parte del corredor público inmobiliario colegiado a cargo de la publicación, cuyos datos se exhiben en la presente. La presente publicación describe las características esenciales del inmueble, debiéndose consultar al corredor público inmobiliario responsable de la operación por la eventual actualización de las medidas, descripciones arquitectónicas y funcionales, valores de expensas, servicios, impuestos, precios y demás información, cuyos valores son aproximados.

Contactar
1/3
Visto

0

USD 100.000

Autopista Rosario - Santa Fe

Terreno en Venta en Santo Tome, Departamento de Santa Fe La Capital

REMAX Futuro
  • 1.000 m² Total

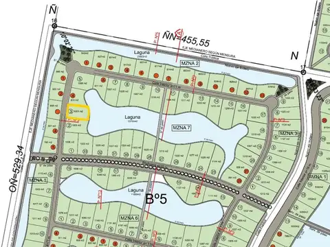
Venta terreno Nuevos Aires, frente a la laguna

Corredor responsable: marcos provvidenti cci sta fe n 0198 - contacto: agustina paolini re/max vende terreno exclusivo en el barrio la serena, el sector más buscado y cotizado de nuevos aires, con una ubicación privilegiada frente al lago. Se trata del lote 3 de la manzana 7, con una superficie de 1.000 m², ideal para proyectar tu casa soñada o realizar una inversión sólida. El barrio ya cuenta con casas construidas y familias viviendo, lo que permite comenzar a edificar de inmediato y asegurar tu lugar en un entorno consolidado. Además, ofrece canchas deportivas, sum con piscina, senderos aeróbicos, amplios espacios verdes con juegos para niños y seguridad 24 hs, garantizando calidad de vida en un espacio exclusivo y natural. Una oportunidad única en el barrio con mayor proyección y valorización de nuevos aires. Rau s.R.L. No ejerce el corretaje inmobiliario. El presente sitio web es una plataforma en donde cada oficina inmobiliaria independiente que contrata los servicios re/max puede publicar las propiedades a su cargo. Cada oficina es de propiedad y gestión independiente, por lo que rau s.R.L. No interviene en los datos de la publicación, en la operación inmobiliaria, ni en la confección y/o firma del boleto de compraventa y/o escritura y/o contrato de alquiler. En cumplimiento de las leyes vigentes que regulan el corretaje inmobiliario, ley nacional 25.028, ley 22.802 de lealtad comercial, ley 24.240 de defensa al consumidor, las normas del código civil y comercial de la nación y constitucionales, los agentes/gestores no ejercen el corretaje inmobiliario. Todas las operaciones inmobiliarias son objeto de intermediación y conclusión por parte del corredor público inmobiliario colegiado a cargo de la publicación, cuyos datos se exhiben en la presente. La presente publicación describe las características esenciales del inmueble, debiéndose consultar al corredor público inmobiliario responsable de la operación por la eventual actualización de las medidas, descripciones arquitectónicas y funcionales, valores de expensas, servicios, impuestos, precios y demás información, cuyos valores son aproximados.

Contactar
1/3
Visto

0

USD 100.000

Autopista Rosario - Santa Fe

Terreno en Venta en Santo Tome, Departamento de Santa Fe La Capital

REMAX Futuro
  • 1.000 m² Total

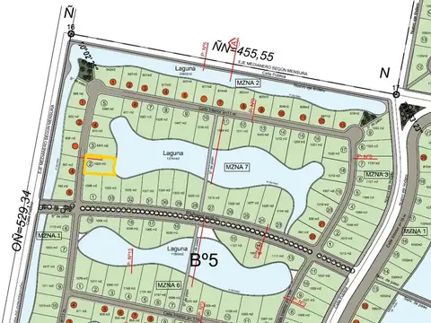
Venta terreno Nuevos Aires, frente a la laguna

Corredor responsable: marcos provvidenti cci sta fe n 0198 - contacto: agustina paolini re/max vende terreno exclusivo en el barrio la serena, el sector más buscado y cotizado de nuevos aires, con una ubicación privilegiada frente al lago. Se trata del lote 2 de la manzana 7, con una superficie de 1.000 m², ideal para proyectar tu casa soñada o realizar una inversión sólida. El barrio ya cuenta con casas construidas y familias viviendo, lo que permite comenzar a edificar de inmediato y asegurar tu lugar en un entorno consolidado. Además, ofrece canchas deportivas, sum con piscina, senderos aeróbicos, amplios espacios verdes con juegos para niños y seguridad 24 hs, garantizando calidad de vida en un espacio exclusivo y natural. Una oportunidad única en el barrio con mayor proyección y valorización de nuevos aires. Rau s.R.L. No ejerce el corretaje inmobiliario. El presente sitio web es una plataforma en donde cada oficina inmobiliaria independiente que contrata los servicios re/max puede publicar las propiedades a su cargo. Cada oficina es de propiedad y gestión independiente, por lo que rau s.R.L. No interviene en los datos de la publicación, en la operación inmobiliaria, ni en la confección y/o firma del boleto de compraventa y/o escritura y/o contrato de alquiler. En cumplimiento de las leyes vigentes que regulan el corretaje inmobiliario, ley nacional 25.028, ley 22.802 de lealtad comercial, ley 24.240 de defensa al consumidor, las normas del código civil y comercial de la nación y constitucionales, los agentes/gestores no ejercen el corretaje inmobiliario. Todas las operaciones inmobiliarias son objeto de intermediación y conclusión por parte del corredor público inmobiliario colegiado a cargo de la publicación, cuyos datos se exhiben en la presente. La presente publicación describe las características esenciales del inmueble, debiéndose consultar al corredor público inmobiliario responsable de la operación por la eventual actualización de las medidas, descripciones arquitectónicas y funcionales, valores de expensas, servicios, impuestos, precios y demás información, cuyos valores son aproximados.

Contactar
1/4
Visto

0

USD 95.000

Autopista Rosario - Santa Fe LOTE 100

Terreno en Venta en Santo Tome, Departamento de Santa Fe La Capital

  • 1.000 m² Total

TERRENO EN VENTA EN SANTOMÁS. EXCEL. UBICACIÓN

Corredor responsable: felipe andrés gaitán cci 0839 - contacto: fernanda babbini remax vende terreno en loteo santomás. El terreno cuenta con una excelente ubicación , a tan solo 50 mts del pórtico de ingreso. No dejes de ver la ubicación en plano dentro de las imágenes adjuntas. Rau s.R.L. No ejerce el corretaje inmobiliario. El presente sitio web es una plataforma en donde cada oficina inmobiliaria independiente que contrata los servicios re/max puede publicar las propiedades a su cargo. Cada oficina es de propiedad y gestión independiente, por lo que rau s.R.L. No interviene en los datos de la publicación, en la operación inmobiliaria, ni en la confección y/o firma del boleto de compraventa y/o escritura y/o contrato de alquiler. En cumplimiento de las leyes vigentes que regulan el corretaje inmobiliario, ley nacional 25.028, ley 22.802 de lealtad comercial, ley 24.240 de defensa al consumidor, las normas del código civil y comercial de la nación y constitucionales, los agentes/gestores no ejercen el corretaje inmobiliario. Todas las operaciones inmobiliarias son objeto de intermediación y conclusión por parte del corredor público inmobiliario colegiado a cargo de la publicación, cuyos datos se exhiben en la presente. La presente publicación describe las características esenciales del inmueble, debiéndose consultar al corredor público inmobiliario responsable de la operación por la eventual actualización de las medidas, descripciones arquitectónicas y funcionales, valores de expensas, servicios, impuestos, precios y demás información, cuyos valores son aproximados.

Contactar
1/5
Visto

0

USD 95.000

Lote 137

Terreno en Venta en Santo Tome, Departamento de Santa Fe La Capital

  • 1.000 m² Total
  • Excelente

Lote de 1000m2 en "La Reserva"- Nro 137

Corredor responsable: natalia magali lopez cci 664 - contacto: erika rudi se vende lote identificado como unidad funcional n° 137 (ciento treinta y siete), de mil metros cuadrados (1.000 m2), ubicado dentro del lote “b”, parte del desarrollo inmobiliario integrante del fideicomiso “la reserva”. Este barrio privado se encuentra ubicado en la autopista rosario-santa fe en el km 150,7, localidad de santo tomé, a minutos de la ciudad. Tiene acceso por colectora y se encuentra próximo al paseo comercial a cielo abierto las acacias (el cual cuenta con supermercado, guardería infantil, gimnasio, restó, oficinas, etc). El barrio ofrece todos los servicios: gas natural, electricidad, cloaca e internet por fibra óptica. Además posee un sistema de monitoreo y seguridad las 24hs. La reserva es un entorno tranquilo y seguro, que combina la naturaleza con la proximidad a servicios esenciales y atracciones locales. Desarrollado bajo la figura de conjunto inmobiliario, de acuerdo con el nuevo código civil. Rau s.R.L. No ejerce el corretaje inmobiliario. El presente sitio web es una plataforma en donde cada oficina inmobiliaria independiente que contrata los servicios re/max puede publicar las propiedades a su cargo. Cada oficina es de propiedad y gestión independiente, por lo que rau s.R.L. No interviene en los datos de la publicación, en la operación inmobiliaria, ni en la confección y/o firma del boleto de compraventa y/o escritura y/o contrato de alquiler. En cumplimiento de las leyes vigentes que regulan el corretaje inmobiliario, ley nacional 25.028, ley 22.802 de lealtad comercial, ley 24.240 de defensa al consumidor, las normas del código civil y comercial de la nación y constitucionales, los agentes/gestores no ejercen el corretaje inmobiliario. Todas las operaciones inmobiliarias son objeto de intermediación y conclusión por parte del corredor público inmobiliario colegiado a cargo de la publicación, cuyos datos se exhiben en la presente. La presente publicación describe las características esenciales del inmueble, debiéndose consultar al corredor público inmobiliario responsable de la operación por la eventual actualización de las medidas, descripciones arquitectónicas y funcionales, valores de expensas, servicios, impuestos, precios y demás información, cuyos valores son aproximados.

Contactar
1/5
Visto

0

USD 100.000

Consultar dirección

Terreno en Venta en Santo Tome, Departamento de Santa Fe La Capital

  • 1.000 m² Total

Lote N°183 de 1000m2 en Barrio privado La Reserva

Corredor responsable: natalia magali lopez cci 664 - contacto: erika rudi se vende lote identificado como unidad funcional n° 183 (ciento ochenta y tres), de mil metros cuadrados (1.000 m2), ubicado dentro del lote “b”, parte del desarrollo inmobiliario integrante del fideicomiso “la reserva”. Este barrio privado se encuentra ubicado en la autopista rosario-santa fe en el km 150,7, localidad de santo tomé, a minutos de la ciudad. Tiene acceso por colectora y se encuentra próximo al paseo comercial a cielo abierto las acacias (el cual cuenta con supermercado, guardería infantil, gimnasio, restó, oficinas, etc). El barrio ofrece todos los servicios: gas natural, electricidad, cloaca e internet por fibra óptica. Además posee un sistema de monitoreo y seguridad las 24hs. La reserva es un entorno tranquilo y seguro, que combina la naturaleza con la proximidad a servicios esenciales y atracciones locales. Desarrollado bajo la figura de conjunto inmobiliario, de acuerdo con el nuevo código civil. Rau s.R.L. No ejerce el corretaje inmobiliario. El presente sitio web es una plataforma en donde cada oficina inmobiliaria independiente que contrata los servicios re/max puede publicar las propiedades a su cargo. Cada oficina es de propiedad y gestión independiente, por lo que rau s.R.L. No interviene en los datos de la publicación, en la operación inmobiliaria, ni en la confección y/o firma del boleto de compraventa y/o escritura y/o contrato de alquiler. En cumplimiento de las leyes vigentes que regulan el corretaje inmobiliario, ley nacional 25.028, ley 22.802 de lealtad comercial, ley 24.240 de defensa al consumidor, las normas del código civil y comercial de la nación y constitucionales, los agentes/gestores no ejercen el corretaje inmobiliario. Todas las operaciones inmobiliarias son objeto de intermediación y conclusión por parte del corredor público inmobiliario colegiado a cargo de la publicación, cuyos datos se exhiben en la presente. La presente publicación describe las características esenciales del inmueble, debiéndose consultar al corredor público inmobiliario responsable de la operación por la eventual actualización de las medidas, descripciones arquitectónicas y funcionales, valores de expensas, servicios, impuestos, precios y demás información, cuyos valores son aproximados.

Contactar
1/7
Visto

0

USD 105.000

RN 19

Terreno en Venta en Santo Tome, Departamento de Santa Fe La Capital

REMAX Futuro
  • 9.437 m² Total
  • Excelente

REMAX VENDE TERRENO A METROS DE RN19 SANTO TOME

Corredor responsable: marcos provvidenti cci sta fe n 0198 - contacto: mariano demonte remax vende terreno en zona industrial de santo tome. El terreno identificado como lote 3, se encuentra a 140 metros de la ruta 19, otorgando una ubicación estratégica para logística y distribución, posee un frente hacia el oeste de 47,50 metros y contrafrente de 46,89 metros, por 200 metros lado norte y 199,91 metros lado sur, con posibilidad de ampliar frente y tener una salida a rn 19. Ideal para salón comercial, exposición, industrias pesadas. Se encuentra a 9 km del aeropuerto de sauce viejo, 11 km de santa fe, 178 km de rosario, 336 km de cordoba. Rau s.R.L. No ejerce el corretaje inmobiliario. El presente sitio web es una plataforma en donde cada oficina inmobiliaria independiente que contrata los servicios re/max puede publicar las propiedades a su cargo. Cada oficina es de propiedad y gestión independiente, por lo que rau s.R.L. No interviene en los datos de la publicación, en la operación inmobiliaria, ni en la confección y/o firma del boleto de compraventa y/o escritura y/o contrato de alquiler. En cumplimiento de las leyes vigentes que regulan el corretaje inmobiliario, ley nacional 25.028, ley 22.802 de lealtad comercial, ley 24.240 de defensa al consumidor, las normas del código civil y comercial de la nación y constitucionales, los agentes/gestores no ejercen el corretaje inmobiliario. Todas las operaciones inmobiliarias son objeto de intermediación y conclusión por parte del corredor público inmobiliario colegiado a cargo de la publicación, cuyos datos se exhiben en la presente. La presente publicación describe las características esenciales del inmueble, debiéndose consultar al corredor público inmobiliario responsable de la operación por la eventual actualización de las medidas, descripciones arquitectónicas y funcionales, valores de expensas, servicios, impuestos, precios y demás información, cuyos valores son aproximados.

Contactar
1/3
Visto

0

USD 99.000

Autopista Rosario - Santa Fe 100

Terreno en Venta en Santo Tome, Departamento de Santa Fe La Capital

REMAX BIG
  • 1.100 m² Total

¡ENTREGA Y CUOTAS! LOTE EN SOLARES DE PAUCKE 61

Corredor responsable: maria gisela di pangrazio cci santa fe n 0425 - contacto: agustina castro remax big vende lote en solares de paucke. Terreno de 1100m2 con frente al oeste sobre la calle de acceso principal del ingreso al country. Cuenta con todos los servicios: cloacas, electricidad, gas natural, alumbrado público, agua corriente y seguridad privada las 24 horas documentación al día para escriturar posesión inmediata, listo para construir. Rau s.R.L. No ejerce el corretaje inmobiliario. El presente sitio web es una plataforma en donde cada oficina inmobiliaria independiente que contrata los servicios re/max puede publicar las propiedades a su cargo. Cada oficina es de propiedad y gestión independiente, por lo que rau s.R.L. No interviene en los datos de la publicación, en la operación inmobiliaria, ni en la confección y/o firma del boleto de compraventa y/o escritura y/o contrato de alquiler. En cumplimiento de las leyes vigentes que regulan el corretaje inmobiliario, ley nacional 25.028, ley 22.802 de lealtad comercial, ley 24.240 de defensa al consumidor, las normas del código civil y comercial de la nación y constitucionales, los agentes/gestores no ejercen el corretaje inmobiliario. Todas las operaciones inmobiliarias son objeto de intermediación y conclusión por parte del corredor público inmobiliario colegiado a cargo de la publicación, cuyos datos se exhiben en la presente. La presente publicación describe las características esenciales del inmueble, debiéndose consultar al corredor público inmobiliario responsable de la operación por la eventual actualización de las medidas, descripciones arquitectónicas y funcionales, valores de expensas, servicios, impuestos, precios y demás información, cuyos valores son aproximados.

Contactar
1/5
Visto

0

USD 90.199

Autopista Rosario - Santa Fe

Terreno en Venta en Santo Tome, Departamento de Santa Fe La Capital

REMAX BIG
  • 1.002 m² Total

¡ENTREGA Y CUOTAS! LOTE EN SOLARES DE PAUCKE N°77

Corredor responsable: maria gisela di pangrazio cci santa fe n 0425 - contacto: agustina castro remax big vende lote en solares de paucke n°77. Terreno de 1002m2 con frente al norte. Cuenta con todos los servicios: cloacas, electricidad, gas natural, alumbrado público, agua corriente y seguridad privada las 24 horas documentación al día para escriturar posesión inmediata, listo para construir. Rau s.R.L. No ejerce el corretaje inmobiliario. El presente sitio web es una plataforma en donde cada oficina inmobiliaria independiente que contrata los servicios re/max puede publicar las propiedades a su cargo. Cada oficina es de propiedad y gestión independiente, por lo que rau s.R.L. No interviene en los datos de la publicación, en la operación inmobiliaria, ni en la confección y/o firma del boleto de compraventa y/o escritura y/o contrato de alquiler. En cumplimiento de las leyes vigentes que regulan el corretaje inmobiliario, ley nacional 25.028, ley 22.802 de lealtad comercial, ley 24.240 de defensa al consumidor, las normas del código civil y comercial de la nación y constitucionales, los agentes/gestores no ejercen el corretaje inmobiliario. Todas las operaciones inmobiliarias son objeto de intermediación y conclusión por parte del corredor público inmobiliario colegiado a cargo de la publicación, cuyos datos se exhiben en la presente. La presente publicación describe las características esenciales del inmueble, debiéndose consultar al corredor público inmobiliario responsable de la operación por la eventual actualización de las medidas, descripciones arquitectónicas y funcionales, valores de expensas, servicios, impuestos, precios y demás información, cuyos valores son aproximados.

Contactar
1/5
Visto

0

USD 98.456

Autopista Rosario - Santa Fe

Terreno en Venta en Santo Tome, Departamento de Santa Fe La Capital

REMAX BIG
  • 1.094 m² Total

¡ENTREGA Y CUOTAS! LOTE EN SOLARES DE PAUCKE N° 57

Corredor responsable: maria gisela di pangrazio cci santa fe n 0425 - contacto: agustina castro remax big vende lote en solares de paucke n°77. Terreno de 1002m2 con frente al norte. Cuenta con todos los servicios: cloacas, electricidad, gas natural, alumbrado público, agua corriente y seguridad privada las 24 horas documentación al día para escriturar posesión inmediata, listo para construir. Escritura inmediata. Rau s.R.L. No ejerce el corretaje inmobiliario. El presente sitio web es una plataforma en donde cada oficina inmobiliaria independiente que contrata los servicios re/max puede publicar las propiedades a su cargo. Cada oficina es de propiedad y gestión independiente, por lo que rau s.R.L. No interviene en los datos de la publicación, en la operación inmobiliaria, ni en la confección y/o firma del boleto de compraventa y/o escritura y/o contrato de alquiler. En cumplimiento de las leyes vigentes que regulan el corretaje inmobiliario, ley nacional 25.028, ley 22.802 de lealtad comercial, ley 24.240 de defensa al consumidor, las normas del código civil y comercial de la nación y constitucionales, los agentes/gestores no ejercen el corretaje inmobiliario. Todas las operaciones inmobiliarias son objeto de intermediación y conclusión por parte del corredor público inmobiliario colegiado a cargo de la publicación, cuyos datos se exhiben en la presente. La presente publicación describe las características esenciales del inmueble, debiéndose consultar al corredor público inmobiliario responsable de la operación por la eventual actualización de las medidas, descripciones arquitectónicas y funcionales, valores de expensas, servicios, impuestos, precios y demás información, cuyos valores son aproximados. Comprá la casa que querés! No la que podés. Accedé a un préstamo por hasta el 30% del valor de esta propiedad. Simulá tu cuota en lendar

Contactar
1/4
Visto

0

USD 105.000

Autopista Rosario - Santa Fe LOTE 100

Terreno en Venta en Santo Tome, Departamento de Santa Fe La Capital

  • 1.000 m² Total

TERRENO EN VENTA EN SANTOMÁS. EXCEL. UBICACIÓN

Corredor responsable: felipe andrés gaitán cci 0839 - contacto: fernanda babbini remax vende terreno en loteo santomás. El terreno cuenta con una excelente ubicación ,frente al lago , lo que convierte al lote en un espacio aún más agradable y con un fondo para tu jardín, soñado. No dejes de ver la ubicación en plano dentro de las imágenes adjuntas. Rau s.R.L. No ejerce el corretaje inmobiliario. El presente sitio web es una plataforma en donde cada oficina inmobiliaria independiente que contrata los servicios re/max puede publicar las propiedades a su cargo. Cada oficina es de propiedad y gestión independiente, por lo que rau s.R.L. No interviene en los datos de la publicación, en la operación inmobiliaria, ni en la confección y/o firma del boleto de compraventa y/o escritura y/o contrato de alquiler. En cumplimiento de las leyes vigentes que regulan el corretaje inmobiliario, ley nacional 25.028, ley 22.802 de lealtad comercial, ley 24.240 de defensa al consumidor, las normas del código civil y comercial de la nación y constitucionales, los agentes/gestores no ejercen el corretaje inmobiliario. Todas las operaciones inmobiliarias son objeto de intermediación y conclusión por parte del corredor público inmobiliario colegiado a cargo de la publicación, cuyos datos se exhiben en la presente. La presente publicación describe las características esenciales del inmueble, debiéndose consultar al corredor público inmobiliario responsable de la operación por la eventual actualización de las medidas, descripciones arquitectónicas y funcionales, valores de expensas, servicios, impuestos, precios y demás información, cuyos valores son aproximados.

Contactar
1/1
Visto

0

USD 90.000

Autopista Rosario - Santa Fe

Terreno en Venta en Santo Tome, Departamento de Santa Fe La Capital

REMAX BIG
  • 1.000 m² Total

TERRENO EN SANTOMAS

Corredor responsable: maria gisela di pangrazio cci santa fe n 0425 - contacto: matias amoser terreno listo para empezar a construir el desarrollo cuenta con servicios de primer nivel * calles 100% pavimentadas, cordón cuneta y diseño innovador * energía eléctrica * cableado subterráneo * red cloacal y planta de tratamiento * agua corriente y potable * desagües pluviales * retardadores hídricos y red de riego * implementación de energías alternativas * señales de ctv, telefonía e internet * geotermia para calefacción, agua caliente y refrigeración * monitoreo y seguridad electrónica perimetral y urbana las 24 horas * distritos comerciales y área de servicios * colegio, área de deportes y parque perimetral * club house y espacios de usos múltiples con pileta y asadores * entorno natural que respeta la biodiversidad autóctona rau s.R.L. No ejerce el corretaje inmobiliario. El presente sitio web es una plataforma en donde cada oficina inmobiliaria independiente que contrata los servicios re/max puede publicar las propiedades a su cargo. Cada oficina es de propiedad y gestión independiente, por lo que rau s.R.L. No interviene en los datos de la publicación, en la operación inmobiliaria, ni en la confección y/o firma del boleto de compraventa y/o escritura y/o contrato de alquiler. En cumplimiento de las leyes vigentes que regulan el corretaje inmobiliario, ley nacional 25.028, ley 22.802 de lealtad comercial, ley 24.240 de defensa al consumidor, las normas del código civil y comercial de la nación y constitucionales, los agentes/gestores no ejercen el corretaje inmobiliario. Todas las operaciones inmobiliarias son objeto de intermediación y conclusión por parte del corredor público inmobiliario colegiado a cargo de la publicación, cuyos datos se exhiben en la presente. La presente publicación describe las características esenciales del inmueble, debiéndose consultar al corredor público inmobiliario responsable de la operación por la eventual actualización de las medidas, descripciones arquitectónicas y funcionales, valores de expensas, servicios, impuestos, precios y demás información, cuyos valores son aproximados.

Contactar
1/6
Visto

0

USD 95.000

AUTOPISTA SANTA FE ROSARIO (COLECTORA)

Terreno en Venta en Santo Tome, Departamento de Santa Fe La Capital

REMAX Litoral
  • 1.042 m² Total
  • Excelente

Venta de Lote en La Reserva, Natural y Diferente

Corredor responsable: caroline hogner cci sta fe n 0042 - contacto: rodrigo de la fuente aldao lote 148 en barrio privado \"la reserva\" natural y diferente lote 1042 m2 ubicado en la reserva, barrio privado en la mejor ubicación, con los mejores accesos y pegado a un centro comercial a cielo abierto (supermercado heladería, ferretería, deco, peluquería, cafetería, gimnasio, pet shop, dietética, etc) en funcionamiento. Rau s.R.L. No ejerce el corretaje inmobiliario. El presente sitio web es una plataforma en donde cada oficina inmobiliaria independiente que contrata los servicios re/max puede publicar las propiedades a su cargo. Cada oficina es de propiedad y gestión independiente, por lo que rau s.R.L. No interviene en los datos de la publicación, en la operación inmobiliaria, ni en la confección y/o firma del boleto de compraventa y/o escritura y/o contrato de alquiler. En cumplimiento de las leyes vigentes que regulan el corretaje inmobiliario, ley nacional 25.028, ley 22.802 de lealtad comercial, ley 24.240 de defensa al consumidor, las normas del código civil y comercial de la nación y constitucionales, los agentes/gestores no ejercen el corretaje inmobiliario. Todas las operaciones inmobiliarias son objeto de intermediación y conclusión por parte del corredor público inmobiliario colegiado a cargo de la publicación, cuyos datos se exhiben en la presente. La presente publicación describe las características esenciales del inmueble, debiéndose consultar al corredor público inmobiliario responsable de la operación por la eventual actualización de las medidas, descripciones arquitectónicas y funcionales, valores de expensas, servicios, impuestos, precios y demás información, cuyos valores son aproximados.

Contactar