(1) (1)
  • Santo Tome

Venta

Terreno

USD 90K-130K

Buscar solo avisos en moneda:

Dorm|Amb

Más filtros Más filtros

Características

Superficie total

Nombre de calle y altura

Tipo de urbanización

Fot

Servicios

Tipo de anunciante

22 Terrenos en Venta en Santo Tome

1/1
Visto

0

USD 125.000

Country 2 Lagunas km al 100

Terreno en Venta en Santo Tome, Departamento de Santa Fe La Capital

Libertador Servicios Inmobiliarios
  • 1.461 m² Total

No dejes pasar esta oportunidad de hacer realidad tu sueño EN COUNTRY 2 LAGUNAS

*Oportunidad única! Terreno a la venta en country 2 lagunas* descubre este espectacular lote de 1461 m2, ubicado en el exclusivo country 2 lagunas. Con un entorno natural impresionante, este terreno ofrece la combinación perfecta de tranquilidad y seguridad, ideal para construir la casa de tus sueños. *Características del terreno:* - *antiguedad:* a estrenar - *superficie total del terreno:* 1500 m2 - *superficie vendible:* 1461 m2 *descripción:* este lote se encuentra rodeado de naturaleza y ofrece un ambiente sereno. Además, se ofrece la posibilidad de entrega del 30% y financiación, facilitando tu inversión. El country cuenta con todos los servicios necesarios: gas natural, agua potable y electricidad subterránea. Además, el proyecto de obras de cloacas ya está aprobado, lo que garantiza una infraestructura moderna. *Amenidades del country:* - dos lagunas artificiales que brindan un entorno recreativo. - Amplia forestación con especies como ibira pita y lapachos. - Seguridad permanente para tu tranquilidad. - Centro comercial para tus necesidades diarias. - Club house ideal para reuniones y actividades sociales. - Cancha de fútbol y canchas de tenis con iluminación nocturna. - Gimnasio completamente equipado. - Espacios recreativos y zonas de relax para disfrutar al máximo. No dejes pasar esta oportunidad de hacer realidad tu sueño en un entorno exclusivo y natural. Contáctanos para más información y consulta sobre los lotes disponibles!

Contactar
1/8
Visto

0

USD 110.000

La Reserva Barrio Privado

Terreno en Venta en Santo Tome, Departamento de Santa Fe La Capital

REMAX Litoral
  • 1.000 m² Total
  • Excelente

VENTA LOTE 1000MTS LA RESERVA BARRIO PRIVADO

Corredor responsable: caroline hogner cci sta fe n 0042 - contacto: facundo garibay lote 111 en barrio privado \"la reserva\" - natural y diferente lote 1000,00 m2 ubicado en la reserva, barrio privado, con posibilidad de construcción. La reserva combina lo mejor de dos mundos: la tranquilidad de un entorno natural con la seguridad y comodidad de un barrio privado de categoría. Diseña tu hogar ideal en estos exclusivos lotes que ofrecen amplitud, privacidad y una conexión única con la naturaleza. ¡Es el momento de invertir en tu futuro! Ubicado a solo 7 minutos de la ciudad de santa fe, por au. Rosario – santa fe km 150,7. Su ingreso está sobre la colectora paralela a la autopista. Ubicación privilegiada: a pocos minutos del centro de santa fe, con acceso rápido a escuelas, centros comerciales y servicios. Seguridad y privacidad: barrio con ingreso controlado las 24 horas, cámaras de vigilancia y personal capacitado para brindar tranquilidad a tu familia. Entorno natural: espacios verdes amplios, arboledas autóctonas, lagunas y senderos diseñados para disfrutar de caminatas, ciclismo o simplemente relajarte. Infraestructura premium: ingreso con calle interna de espera para mayor seguridad y confort, servicios subterráneos (electricidad, agua, gas), y redes de fibra óptica para una conectividad de primer nivel. Oportunidad de inversión: la creciente demanda por lotes en barrios privados en santa fe asegura una valorización constante de tu inversión. El complejo tiene acceso de la autopista a sólo 100 mts, ademas se ubica junto al paseo comercial a cielo abierto las acacias (con supermercado el tunel, consultorios externos medicos del grupo mit, heladeria freddo, ferreteria, pintureria universo, fiambreria la ilusion, goipat, vanra, entre otros). Bajo la figura de conjunto inmobiliario, de acuerdo con el nuevo código civil. Lo último en tecnología. Rau s.R.L. No ejerce el corretaje inmobiliario. El presente sitio web es una plataforma en donde cada oficina inmobiliaria independiente que contrata los servicios re/max puede publicar las propiedades a su cargo. Cada oficina es de propiedad y gestión independiente, por lo que rau s.R.L. No interviene en los datos de la publicación, en la operación inmobiliaria, ni en la confección y/o firma del boleto de compraventa y/o escritura y/o contrato de alquiler. En cumplimiento de las leyes vigentes que regulan el corretaje inmobiliario, ley nacional 25.028, ley 22.802 de lealtad comercial, ley 24.240 de defensa al consumidor, las normas del código civil y comercial de la nación y constitucionales, los agentes/gestores no ejercen el corretaje inmobiliario. Todas las operaciones inmobiliarias son objeto de intermediación y conclusión por parte del corredor público inmobiliario colegiado a cargo de la publicación, cuyos datos se exhiben en la presente. La presente publicación describe las características esenciales del inmueble, debiéndose consultar al corredor público inmobiliario responsable de la operación por la eventual actualización de las medidas, descripciones arquitectónicas y funcionales, valores de expensas, servicios, impuestos, precios y demás información, cuyos valores son aproximados.

Contactar
1/3
Visto

0

USD 100.000

Autopista Rosario - Santa Fe

Terreno en Venta en Santo Tome, Departamento de Santa Fe La Capital

REMAX Futuro
  • 1.000 m² Total

Venta terreno Nuevos Aires, frente a la laguna

Corredor responsable: marcos provvidenti cci sta fe n 0198 - contacto: agustina paolini re/max vende terreno exclusivo en el barrio la serena, el sector más buscado y cotizado de nuevos aires, con una ubicación privilegiada frente al lago. Se trata del lote 3 de la manzana 7, con una superficie de 1.000 m², ideal para proyectar tu casa soñada o realizar una inversión sólida. El barrio ya cuenta con casas construidas y familias viviendo, lo que permite comenzar a edificar de inmediato y asegurar tu lugar en un entorno consolidado. Además, ofrece canchas deportivas, sum con piscina, senderos aeróbicos, amplios espacios verdes con juegos para niños y seguridad 24 hs, garantizando calidad de vida en un espacio exclusivo y natural. Una oportunidad única en el barrio con mayor proyección y valorización de nuevos aires. Rau s.R.L. No ejerce el corretaje inmobiliario. El presente sitio web es una plataforma en donde cada oficina inmobiliaria independiente que contrata los servicios re/max puede publicar las propiedades a su cargo. Cada oficina es de propiedad y gestión independiente, por lo que rau s.R.L. No interviene en los datos de la publicación, en la operación inmobiliaria, ni en la confección y/o firma del boleto de compraventa y/o escritura y/o contrato de alquiler. En cumplimiento de las leyes vigentes que regulan el corretaje inmobiliario, ley nacional 25.028, ley 22.802 de lealtad comercial, ley 24.240 de defensa al consumidor, las normas del código civil y comercial de la nación y constitucionales, los agentes/gestores no ejercen el corretaje inmobiliario. Todas las operaciones inmobiliarias son objeto de intermediación y conclusión por parte del corredor público inmobiliario colegiado a cargo de la publicación, cuyos datos se exhiben en la presente. La presente publicación describe las características esenciales del inmueble, debiéndose consultar al corredor público inmobiliario responsable de la operación por la eventual actualización de las medidas, descripciones arquitectónicas y funcionales, valores de expensas, servicios, impuestos, precios y demás información, cuyos valores son aproximados.

Contactar
1/4
Visto

0

USD 95.000

Autopista Rosario - Santa Fe LOTE 100

Terreno en Venta en Santo Tome, Departamento de Santa Fe La Capital

  • 1.000 m² Total

TERRENO EN VENTA EN SANTOMÁS. EXCEL. UBICACIÓN

Corredor responsable: felipe andrés gaitán cci 0839 - contacto: fernanda babbini remax vende terreno en loteo santomás. El terreno cuenta con una excelente ubicación , a tan solo 50 mts del pórtico de ingreso. No dejes de ver la ubicación en plano dentro de las imágenes adjuntas. Rau s.R.L. No ejerce el corretaje inmobiliario. El presente sitio web es una plataforma en donde cada oficina inmobiliaria independiente que contrata los servicios re/max puede publicar las propiedades a su cargo. Cada oficina es de propiedad y gestión independiente, por lo que rau s.R.L. No interviene en los datos de la publicación, en la operación inmobiliaria, ni en la confección y/o firma del boleto de compraventa y/o escritura y/o contrato de alquiler. En cumplimiento de las leyes vigentes que regulan el corretaje inmobiliario, ley nacional 25.028, ley 22.802 de lealtad comercial, ley 24.240 de defensa al consumidor, las normas del código civil y comercial de la nación y constitucionales, los agentes/gestores no ejercen el corretaje inmobiliario. Todas las operaciones inmobiliarias son objeto de intermediación y conclusión por parte del corredor público inmobiliario colegiado a cargo de la publicación, cuyos datos se exhiben en la presente. La presente publicación describe las características esenciales del inmueble, debiéndose consultar al corredor público inmobiliario responsable de la operación por la eventual actualización de las medidas, descripciones arquitectónicas y funcionales, valores de expensas, servicios, impuestos, precios y demás información, cuyos valores son aproximados.

Contactar
1/7
Visto

0

USD 105.000

RN 19

Terreno en Venta en Santo Tome, Departamento de Santa Fe La Capital

REMAX Futuro
  • 9.437 m² Total
  • Excelente

REMAX VENDE TERRENO A METROS DE RN19 SANTO TOME

Corredor responsable: marcos provvidenti cci sta fe n 0198 - contacto: mariano demonte remax vende terreno en zona industrial de santo tome. El terreno identificado como lote 3, se encuentra a 140 metros de la ruta 19, otorgando una ubicación estratégica para logística y distribución, posee un frente hacia el oeste de 47,50 metros y contrafrente de 46,89 metros, por 200 metros lado norte y 199,91 metros lado sur, con posibilidad de ampliar frente y tener una salida a rn 19. Ideal para salón comercial, exposición, industrias pesadas. Se encuentra a 9 km del aeropuerto de sauce viejo, 11 km de santa fe, 178 km de rosario, 336 km de cordoba. Rau s.R.L. No ejerce el corretaje inmobiliario. El presente sitio web es una plataforma en donde cada oficina inmobiliaria independiente que contrata los servicios re/max puede publicar las propiedades a su cargo. Cada oficina es de propiedad y gestión independiente, por lo que rau s.R.L. No interviene en los datos de la publicación, en la operación inmobiliaria, ni en la confección y/o firma del boleto de compraventa y/o escritura y/o contrato de alquiler. En cumplimiento de las leyes vigentes que regulan el corretaje inmobiliario, ley nacional 25.028, ley 22.802 de lealtad comercial, ley 24.240 de defensa al consumidor, las normas del código civil y comercial de la nación y constitucionales, los agentes/gestores no ejercen el corretaje inmobiliario. Todas las operaciones inmobiliarias son objeto de intermediación y conclusión por parte del corredor público inmobiliario colegiado a cargo de la publicación, cuyos datos se exhiben en la presente. La presente publicación describe las características esenciales del inmueble, debiéndose consultar al corredor público inmobiliario responsable de la operación por la eventual actualización de las medidas, descripciones arquitectónicas y funcionales, valores de expensas, servicios, impuestos, precios y demás información, cuyos valores son aproximados.

Contactar
1/3
Visto

0

USD 99.000

Autopista Rosario - Santa Fe 100

Terreno en Venta en Santo Tome, Departamento de Santa Fe La Capital

REMAX BIG
  • 1.100 m² Total

¡ENTREGA Y CUOTAS! LOTE EN SOLARES DE PAUCKE 61

Corredor responsable: maria gisela di pangrazio cci santa fe n 0425 - contacto: agustina castro remax big vende lote en solares de paucke. Terreno de 1100m2 con frente al oeste sobre la calle de acceso principal del ingreso al country. Cuenta con todos los servicios: cloacas, electricidad, gas natural, alumbrado público, agua corriente y seguridad privada las 24 horas documentación al día para escriturar posesión inmediata, listo para construir. Rau s.R.L. No ejerce el corretaje inmobiliario. El presente sitio web es una plataforma en donde cada oficina inmobiliaria independiente que contrata los servicios re/max puede publicar las propiedades a su cargo. Cada oficina es de propiedad y gestión independiente, por lo que rau s.R.L. No interviene en los datos de la publicación, en la operación inmobiliaria, ni en la confección y/o firma del boleto de compraventa y/o escritura y/o contrato de alquiler. En cumplimiento de las leyes vigentes que regulan el corretaje inmobiliario, ley nacional 25.028, ley 22.802 de lealtad comercial, ley 24.240 de defensa al consumidor, las normas del código civil y comercial de la nación y constitucionales, los agentes/gestores no ejercen el corretaje inmobiliario. Todas las operaciones inmobiliarias son objeto de intermediación y conclusión por parte del corredor público inmobiliario colegiado a cargo de la publicación, cuyos datos se exhiben en la presente. La presente publicación describe las características esenciales del inmueble, debiéndose consultar al corredor público inmobiliario responsable de la operación por la eventual actualización de las medidas, descripciones arquitectónicas y funcionales, valores de expensas, servicios, impuestos, precios y demás información, cuyos valores son aproximados.

Contactar
1/5
Visto

0

USD 90.199

Autopista Rosario - Santa Fe

Terreno en Venta en Santo Tome, Departamento de Santa Fe La Capital

REMAX BIG
  • 1.002 m² Total

¡ENTREGA Y CUOTAS! LOTE EN SOLARES DE PAUCKE N°77

Corredor responsable: maria gisela di pangrazio cci santa fe n 0425 - contacto: agustina castro remax big vende lote en solares de paucke n°77. Terreno de 1002m2 con frente al norte. Cuenta con todos los servicios: cloacas, electricidad, gas natural, alumbrado público, agua corriente y seguridad privada las 24 horas documentación al día para escriturar posesión inmediata, listo para construir. Rau s.R.L. No ejerce el corretaje inmobiliario. El presente sitio web es una plataforma en donde cada oficina inmobiliaria independiente que contrata los servicios re/max puede publicar las propiedades a su cargo. Cada oficina es de propiedad y gestión independiente, por lo que rau s.R.L. No interviene en los datos de la publicación, en la operación inmobiliaria, ni en la confección y/o firma del boleto de compraventa y/o escritura y/o contrato de alquiler. En cumplimiento de las leyes vigentes que regulan el corretaje inmobiliario, ley nacional 25.028, ley 22.802 de lealtad comercial, ley 24.240 de defensa al consumidor, las normas del código civil y comercial de la nación y constitucionales, los agentes/gestores no ejercen el corretaje inmobiliario. Todas las operaciones inmobiliarias son objeto de intermediación y conclusión por parte del corredor público inmobiliario colegiado a cargo de la publicación, cuyos datos se exhiben en la presente. La presente publicación describe las características esenciales del inmueble, debiéndose consultar al corredor público inmobiliario responsable de la operación por la eventual actualización de las medidas, descripciones arquitectónicas y funcionales, valores de expensas, servicios, impuestos, precios y demás información, cuyos valores son aproximados.

Contactar
1/5
Visto

0

USD 98.456

Autopista Rosario - Santa Fe

Terreno en Venta en Santo Tome, Departamento de Santa Fe La Capital

REMAX BIG
  • 1.094 m² Total

¡ENTREGA Y CUOTAS! LOTE EN SOLARES DE PAUCKE N° 57

Corredor responsable: maria gisela di pangrazio cci santa fe n 0425 - contacto: agustina castro remax big vende lote en solares de paucke n°77. Terreno de 1002m2 con frente al norte. Cuenta con todos los servicios: cloacas, electricidad, gas natural, alumbrado público, agua corriente y seguridad privada las 24 horas documentación al día para escriturar posesión inmediata, listo para construir. Escritura inmediata. Rau s.R.L. No ejerce el corretaje inmobiliario. El presente sitio web es una plataforma en donde cada oficina inmobiliaria independiente que contrata los servicios re/max puede publicar las propiedades a su cargo. Cada oficina es de propiedad y gestión independiente, por lo que rau s.R.L. No interviene en los datos de la publicación, en la operación inmobiliaria, ni en la confección y/o firma del boleto de compraventa y/o escritura y/o contrato de alquiler. En cumplimiento de las leyes vigentes que regulan el corretaje inmobiliario, ley nacional 25.028, ley 22.802 de lealtad comercial, ley 24.240 de defensa al consumidor, las normas del código civil y comercial de la nación y constitucionales, los agentes/gestores no ejercen el corretaje inmobiliario. Todas las operaciones inmobiliarias son objeto de intermediación y conclusión por parte del corredor público inmobiliario colegiado a cargo de la publicación, cuyos datos se exhiben en la presente. La presente publicación describe las características esenciales del inmueble, debiéndose consultar al corredor público inmobiliario responsable de la operación por la eventual actualización de las medidas, descripciones arquitectónicas y funcionales, valores de expensas, servicios, impuestos, precios y demás información, cuyos valores son aproximados. Comprá la casa que querés! No la que podés. Accedé a un préstamo por hasta el 30% del valor de esta propiedad. Simulá tu cuota en lendar

Contactar
1/4
Visto

0

USD 105.000

Autopista Rosario - Santa Fe LOTE 100

Terreno en Venta en Santo Tome, Departamento de Santa Fe La Capital

  • 1.000 m² Total

TERRENO EN VENTA EN SANTOMÁS. EXCEL. UBICACIÓN

Corredor responsable: felipe andrés gaitán cci 0839 - contacto: fernanda babbini remax vende terreno en loteo santomás. El terreno cuenta con una excelente ubicación ,frente al lago , lo que convierte al lote en un espacio aún más agradable y con un fondo para tu jardín, soñado. No dejes de ver la ubicación en plano dentro de las imágenes adjuntas. Rau s.R.L. No ejerce el corretaje inmobiliario. El presente sitio web es una plataforma en donde cada oficina inmobiliaria independiente que contrata los servicios re/max puede publicar las propiedades a su cargo. Cada oficina es de propiedad y gestión independiente, por lo que rau s.R.L. No interviene en los datos de la publicación, en la operación inmobiliaria, ni en la confección y/o firma del boleto de compraventa y/o escritura y/o contrato de alquiler. En cumplimiento de las leyes vigentes que regulan el corretaje inmobiliario, ley nacional 25.028, ley 22.802 de lealtad comercial, ley 24.240 de defensa al consumidor, las normas del código civil y comercial de la nación y constitucionales, los agentes/gestores no ejercen el corretaje inmobiliario. Todas las operaciones inmobiliarias son objeto de intermediación y conclusión por parte del corredor público inmobiliario colegiado a cargo de la publicación, cuyos datos se exhiben en la presente. La presente publicación describe las características esenciales del inmueble, debiéndose consultar al corredor público inmobiliario responsable de la operación por la eventual actualización de las medidas, descripciones arquitectónicas y funcionales, valores de expensas, servicios, impuestos, precios y demás información, cuyos valores son aproximados.

Contactar
1/7
Visto

0

USD 105.000

La Reserva Barrio Privado

Terreno en Venta en Santo Tome, Departamento de Santa Fe La Capital

REMAX Litoral
  • 1.000 m² Total
  • Excelente

VENTA LOTE 1000MTS LA RESERVA BARRIO PRIVADO

Corredor responsable: caroline hogner cci sta fe n 0042 - contacto: facundo garibay lote 123 en barrio privado \"la reserva\" - natural y diferente lote 1000,00 m2 ubicado en la reserva, barrio privado, con posibilidad de construcción. La reserva combina lo mejor de dos mundos: la tranquilidad de un entorno natural con la seguridad y comodidad de un barrio privado de categoría. Diseña tu hogar ideal en estos exclusivos lotes que ofrecen amplitud, privacidad y una conexión única con la naturaleza. ¡Es el momento de invertir en tu futuro! Ubicado a solo 7 minutos de la ciudad de santa fe, por au. Rosario – santa fe km 150,7. Su ingreso está sobre la colectora paralela a la autopista. Ubicación privilegiada: a pocos minutos del centro de santa fe, con acceso rápido a escuelas, centros comerciales y servicios. Seguridad y privacidad: barrio con ingreso controlado las 24 horas, cámaras de vigilancia y personal capacitado para brindar tranquilidad a tu familia. Entorno natural: espacios verdes amplios, arboledas autóctonas, lagunas y senderos diseñados para disfrutar de caminatas, ciclismo o simplemente relajarte. Infraestructura premium: calles asfaltadas, servicios subterráneos (electricidad, agua, gas), y redes de fibra óptica para una conectividad de primer nivel. Oportunidad de inversión: la creciente demanda por lotes en barrios privados en santa fe asegura una valorización constante de tu inversión. El complejo tiene acceso de la autopista a sólo 100 mts, ademas se ubica junto al paseo comercial a cielo abierto las acacias (con supermercado el tunel, consultorios externos medicos del grupo mit, heladeria freddo, ferreteria, pintureria universo, fiambreria la ilusion, goipat, vanra, entre otros). Bajo la figura de conjunto inmobiliario, de acuerdo con el nuevo código civil. Lo último en tecnología. Rau s.R.L. No ejerce el corretaje inmobiliario. El presente sitio web es una plataforma en donde cada oficina inmobiliaria independiente que contrata los servicios re/max puede publicar las propiedades a su cargo. Cada oficina es de propiedad y gestión independiente, por lo que rau s.R.L. No interviene en los datos de la publicación, en la operación inmobiliaria, ni en la confección y/o firma del boleto de compraventa y/o escritura y/o contrato de alquiler. En cumplimiento de las leyes vigentes que regulan el corretaje inmobiliario, ley nacional 25.028, ley 22.802 de lealtad comercial, ley 24.240 de defensa al consumidor, las normas del código civil y comercial de la nación y constitucionales, los agentes/gestores no ejercen el corretaje inmobiliario. Todas las operaciones inmobiliarias son objeto de intermediación y conclusión por parte del corredor público inmobiliario colegiado a cargo de la publicación, cuyos datos se exhiben en la presente. La presente publicación describe las características esenciales del inmueble, debiéndose consultar al corredor público inmobiliario responsable de la operación por la eventual actualización de las medidas, descripciones arquitectónicas y funcionales, valores de expensas, servicios, impuestos, precios y demás información, cuyos valores son aproximados.

Contactar
1/12
Visto

0

USD 90.000

La Reserva Barrio Privado

Terreno en Venta en Santo Tome, Departamento de Santa Fe La Capital

REMAX Futuro
  • 1.000 m² Total

SE VENDE LOTE EN LA RESERVA de 1000 M2

Corredor responsable: marcos provvidenti cci sta fe n 0198 - contacto: rodrigo brussa remax futuro vende lote en la reserva, barrio privado. Lote de 20 x 50 (1000 m2) en una de las mejores ubicaciones. Lote nro. 127 este barrio privado se encuentra ubicado en la autopista rosario-santa fe en el km 150,7, localidad de santo tomé, a minutos de la ciudad. Tiene acceso por colectora y se encuentra próximo al paseo comercial a cielo abierto las acacias (el cual cuenta con supermercado, guardería infantil, gimnasio, restó, oficinas, etc). El barrio, cuenta con: - circuito cerrado de cámaras. - Puesto de control de acceso. - Vigilancia y seguridad privada 24 hs. - Id de empleados y mascotas. - Fibra óptica de alta velocidad. - Lago recreativo y reservorio hídrico. - Amenities: club house / pileta / cancha de fútbol 7. - Centro comercial. - Red de gas natural domiciliario. - Red de alumbrado interno. La reserva es un entorno tranquilo y seguro, que combina la naturaleza con la proximidad a servicios esenciales y atracciones locales. Rau s.R.L. No ejerce el corretaje inmobiliario. El presente sitio web es una plataforma en donde cada oficina inmobiliaria independiente que contrata los servicios re/max puede publicar las propiedades a su cargo. Cada oficina es de propiedad y gestión independiente, por lo que rau s.R.L. No interviene en los datos de la publicación, en la operación inmobiliaria, ni en la confección y/o firma del boleto de compraventa y/o escritura y/o contrato de alquiler. En cumplimiento de las leyes vigentes que regulan el corretaje inmobiliario, ley nacional 25.028, ley 22.802 de lealtad comercial, ley 24.240 de defensa al consumidor, las normas del código civil y comercial de la nación y constitucionales, los agentes/gestores no ejercen el corretaje inmobiliario. Todas las operaciones inmobiliarias son objeto de intermediación y conclusión por parte del corredor público inmobiliario colegiado a cargo de la publicación, cuyos datos se exhiben en la presente. La presente publicación describe las características esenciales del inmueble, debiéndose consultar al corredor público inmobiliario responsable de la operación por la eventual actualización de las medidas, descripciones arquitectónicas y funcionales, valores de expensas, servicios, impuestos, precios y demás información, cuyos valores son aproximados.

Contactar
1/6
Visto

0

USD 95.000

AUTOPISTA SANTA FE ROSARIO (COLECTORA)

Terreno en Venta en Santo Tome, Departamento de Santa Fe La Capital

REMAX Litoral
  • 1.042 m² Total
  • Excelente

Venta de Lote en La Reserva, Natural y Diferente

Corredor responsable: caroline hogner cci sta fe n 0042 - contacto: rodrigo de la fuente aldao lote 148 en barrio privado \"la reserva\" natural y diferente lote 1042 m2 ubicado en la reserva, barrio privado en la mejor ubicación, con los mejores accesos y pegado a un centro comercial a cielo abierto (supermercado heladería, ferretería, deco, peluquería, cafetería, gimnasio, pet shop, dietética, etc) en funcionamiento. Rau s.R.L. No ejerce el corretaje inmobiliario. El presente sitio web es una plataforma en donde cada oficina inmobiliaria independiente que contrata los servicios re/max puede publicar las propiedades a su cargo. Cada oficina es de propiedad y gestión independiente, por lo que rau s.R.L. No interviene en los datos de la publicación, en la operación inmobiliaria, ni en la confección y/o firma del boleto de compraventa y/o escritura y/o contrato de alquiler. En cumplimiento de las leyes vigentes que regulan el corretaje inmobiliario, ley nacional 25.028, ley 22.802 de lealtad comercial, ley 24.240 de defensa al consumidor, las normas del código civil y comercial de la nación y constitucionales, los agentes/gestores no ejercen el corretaje inmobiliario. Todas las operaciones inmobiliarias son objeto de intermediación y conclusión por parte del corredor público inmobiliario colegiado a cargo de la publicación, cuyos datos se exhiben en la presente. La presente publicación describe las características esenciales del inmueble, debiéndose consultar al corredor público inmobiliario responsable de la operación por la eventual actualización de las medidas, descripciones arquitectónicas y funcionales, valores de expensas, servicios, impuestos, precios y demás información, cuyos valores son aproximados.

Contactar
1/10
Visto

0

USD 98.000

Autopista Rosario - Santa Fe

Terreno en Venta en Santo Tome, Departamento de Santa Fe La Capital

REMAX Futuro
  • 1.013 m² Total
  • Excelente

Lote en Santomas de 1013 M2 aprox en etapa 1

Corredor responsable: marcos provvidenti cci sta fe n 0198 - contacto: carlos esquivel entorno tranquilo, en pleno crecimiento urbanístico. Ideal para quienes buscan construir o invertir en una zona ordenada con altísimo potencial, a minutos del centro de santo tome y con excelente acceso a santa fe capital venta de lote no perimetral en santomás de 1013 m2 aprox en etapa 1 en las calandrias de cielo de santomás un lote que se identifica en el plano de mensura como un lote con una superficie aproximada de 1013 metros cuadrados que forma parte de la primera etapa de la urbanización designado como lote 049 ubicado en las calandrias de cielo de santomás. Se desarrolla el proyecto urbanístico denominado santomás. Los servicios que posee energía eléctrica red local y planta de tratamiento agua corriente alumbrado público led calle pavimentadas con intertravado y cordón cuneta cableado subterráneo cañería trituvo que permite señales de ctv telefonía e internet y monitoreo y seguridad electrónica perimetral y urbana. Fecha de entrega estimada de la primera etapa de urbanización para el año 2025. Hoy ya se puede tomar tomar posesión y ya esta habilitado para la construcción. Rau s.R.L. No ejerce el corretaje inmobiliario. El presente sitio web es una plataforma en donde cada oficina inmobiliaria independiente que contrata los servicios re/max puede publicar las propiedades a su cargo. Cada oficina es de propiedad y gestión independiente, por lo que rau s.R.L. No interviene en los datos de la publicación, en la operación inmobiliaria, ni en la confección y/o firma del boleto de compraventa y/o escritura y/o contrato de alquiler. En cumplimiento de las leyes vigentes que regulan el corretaje inmobiliario, ley nacional 25.028, ley 22.802 de lealtad comercial, ley 24.240 de defensa al consumidor, las normas del código civil y comercial de la nación y constitucionales, los agentes/gestores no ejercen el corretaje inmobiliario. Todas las operaciones inmobiliarias son objeto de intermediación y conclusión por parte del corredor público inmobiliario colegiado a cargo de la publicación, cuyos datos se exhiben en la presente. La presente publicación describe las características esenciales del inmueble, debiéndose consultar al corredor público inmobiliario responsable de la operación por la eventual actualización de las medidas, descripciones arquitectónicas y funcionales, valores de expensas, servicios, impuestos, precios y demás información, cuyos valores son aproximados.

Contactar
1/5
Visto

0

USD 90.000

Autopista Rosario - Santa Fe

Terreno en Venta en Santo Tome, Departamento de Santa Fe La Capital

REMAX Futuro
  • 1.000 m² Total
  • Excelente

Venta Lote Santomas Pueblo Verde

Corredor responsable: marcos provvidenti cci sta fe n 0198 - contacto: marcelo christen remax vende lote en country santomas pueblo verde - etapa 1: el cielo - barrio las calandrias se ubica en el corazon de la zona de countries. Lote 27 con medidas de 20 metros de frente por 50 metros de fondo. Exclusivo para viviendas unifamiliares cuenta con todos los servicios posesión inmediata santomas pueblo verde es un desarrollo de pilay, cuenta con 150 hectareas distribuidadas en tres barrrios, a 10 minutos de la ciudad de santa fe. Listo para construir, posibilidad de financiacion rau s.R.L. No ejerce el corretaje inmobiliario. El presente sitio web es una plataforma en donde cada oficina inmobiliaria independiente que contrata los servicios re/max puede publicar las propiedades a su cargo. Cada oficina es de propiedad y gestión independiente, por lo que rau s.R.L. No interviene en los datos de la publicación, en la operación inmobiliaria, ni en la confección y/o firma del boleto de compraventa y/o escritura y/o contrato de alquiler. En cumplimiento de las leyes vigentes que regulan el corretaje inmobiliario, ley nacional 25.028, ley 22.802 de lealtad comercial, ley 24.240 de defensa al consumidor, las normas del código civil y comercial de la nación y constitucionales, los agentes/gestores no ejercen el corretaje inmobiliario. Todas las operaciones inmobiliarias son objeto de intermediación y conclusión por parte del corredor público inmobiliario colegiado a cargo de la publicación, cuyos datos se exhiben en la presente. La presente publicación describe las características esenciales del inmueble, debiéndose consultar al corredor público inmobiliario responsable de la operación por la eventual actualización de las medidas, descripciones arquitectónicas y funcionales, valores de expensas, servicios, impuestos, precios y demás información, cuyos valores son aproximados.

Contactar
1/3
Visto

0

USD 100.000

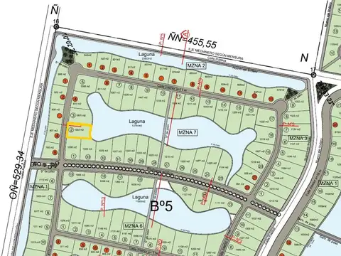
Autopista Rosario - Santa Fe

Terreno en Venta en Santo Tome, Departamento de Santa Fe La Capital

REMAX Futuro
  • 1.000 m² Total

Venta terreno Nuevos Aires, frente a la laguna

Corredor responsable: marcos provvidenti cci sta fe n 0198 - contacto: agustina paolini re/max vende terreno exclusivo en el barrio la serena, el sector más buscado y cotizado de nuevos aires, con una ubicación privilegiada frente al lago. Se trata del lote 2 de la manzana 7, con una superficie de 1.000 m², ideal para proyectar tu casa soñada o realizar una inversión sólida. El barrio ya cuenta con casas construidas y familias viviendo, lo que permite comenzar a edificar de inmediato y asegurar tu lugar en un entorno consolidado. Además, ofrece canchas deportivas, sum con piscina, senderos aeróbicos, amplios espacios verdes con juegos para niños y seguridad 24 hs, garantizando calidad de vida en un espacio exclusivo y natural. Una oportunidad única en el barrio con mayor proyección y valorización de nuevos aires. Rau s.R.L. No ejerce el corretaje inmobiliario. El presente sitio web es una plataforma en donde cada oficina inmobiliaria independiente que contrata los servicios re/max puede publicar las propiedades a su cargo. Cada oficina es de propiedad y gestión independiente, por lo que rau s.R.L. No interviene en los datos de la publicación, en la operación inmobiliaria, ni en la confección y/o firma del boleto de compraventa y/o escritura y/o contrato de alquiler. En cumplimiento de las leyes vigentes que regulan el corretaje inmobiliario, ley nacional 25.028, ley 22.802 de lealtad comercial, ley 24.240 de defensa al consumidor, las normas del código civil y comercial de la nación y constitucionales, los agentes/gestores no ejercen el corretaje inmobiliario. Todas las operaciones inmobiliarias son objeto de intermediación y conclusión por parte del corredor público inmobiliario colegiado a cargo de la publicación, cuyos datos se exhiben en la presente. La presente publicación describe las características esenciales del inmueble, debiéndose consultar al corredor público inmobiliario responsable de la operación por la eventual actualización de las medidas, descripciones arquitectónicas y funcionales, valores de expensas, servicios, impuestos, precios y demás información, cuyos valores son aproximados.

Contactar