Salguero y Gorriti - Unidad 4C

USD 578.235

Venta en Palermo, Capital Federal

USD 578.235

  • Departamento

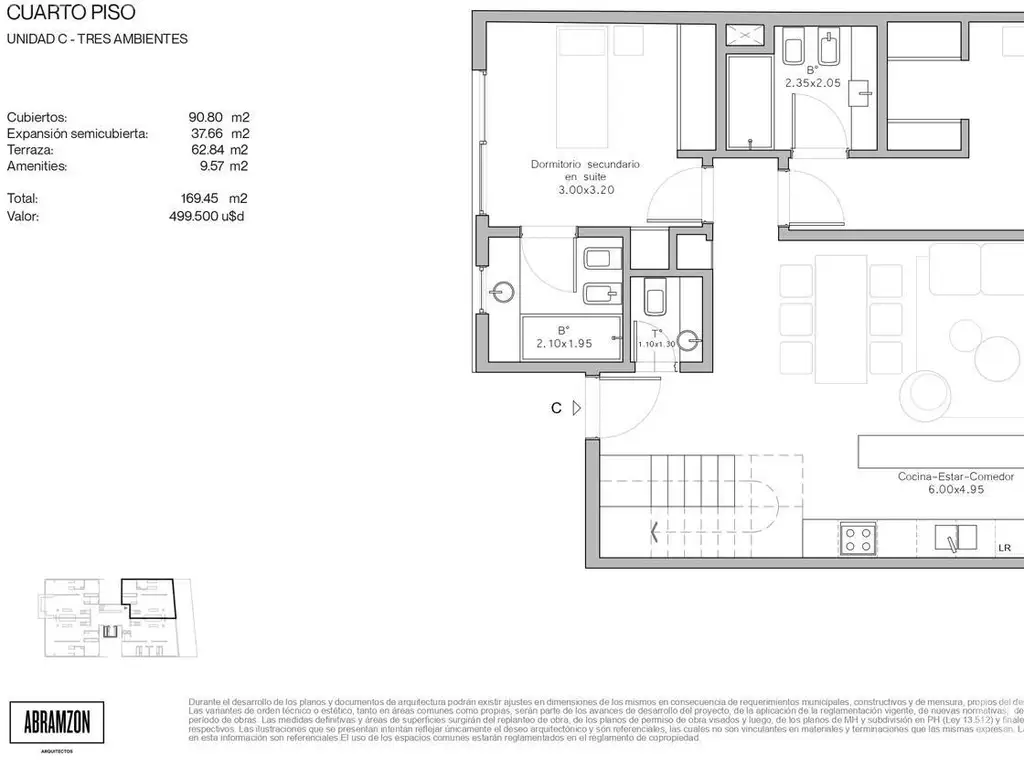
  • 90 m² Cubierta

  • 2 dormitorios

  • 1 año

  • 2 baños

  • 3 ambientes

  • 1 toilettes

Departamento - Palermo

Espectacular 3 ambientes al contrafrente con terraza, quincho y parrilla propia y con amplio balcón corrido. El mismo cuenta con dos dormitorios en suite, living comedor, cocina integrada y toilette de recepción.

CONSULTE POR OTRAS UNIDADES DE ESTE EMPRENDIMIENTO ( EN OTRO PISO, OTRA UBICACIóN Y OTRAS TIPOLOGíAS)

Todas las imágenes, planos, descripciones, y características indicadas son meramente referenciales e ilustrativas y podrán ser modificadas sin previo aviso. Las superficies indicadas son estimadas. Las superficies y medidas definitivas surgirán del plano de mensura final aprobado oportunamente por el GCBA. Las fechas de inicio de obra o posesión son estimadas, podrán ser reprogramadas por la Dirección de obra y dependerán a su vez de un proceso de aprobaciones municipales u otros organismos intervinientes. Los precios indicados podrán modificarse sin previo aviso. El interesado deberá realizar las verificaciones respectivas previamente a la realización de cualquier operación, requiriendo por sí o sus profesionales las copias necesarias de la documentación que corresponda.

Ubicación

Palermo, Capital Federal

Características

  • Cant. Ambientes: 3

  • Cant. Dormitorios: 2

  • Cant. Toilettes: 1

  • Cant. Baños: 2

  • Antiguedad: 0

  • Tipo de operación: Venta

  • Precio: USD 578.235

  • Sup. Cubierta: 90 m2

  • Sup. Total: 90 m2

Código de aviso: PRO-1028217

Contactá al anunciante

Interwin Marketing Inmobiliario

5275-