-
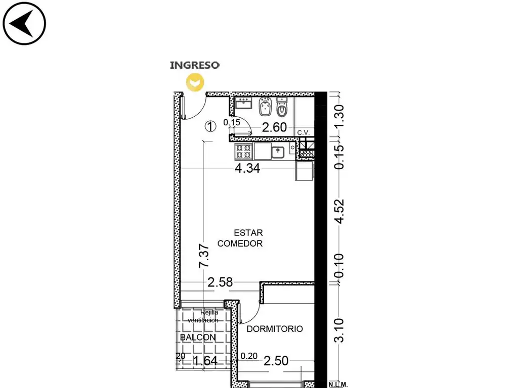
Departamento
-
43 m² Cubierta
-
1 dormitorio
-
1 baño
-
2 ambientes
-
1 cocheras
-
Frente
-
Oeste
Departamento - Centro
Ubicación
Centro, Rosario, Santa Fe
Características
-
Cant. Ambientes: 2
-
Cant. Dormitorios: 1
-
Cant. Baños: 1
-
Cant. Cocheras: 1
-
Disposición: Frente
-
Orientación: O
Datos básicos
-
Tipo de operación: Venta
-
Precio: USD 67.000
Superficie
-
Sup. Cubierta: 43 m2
-
Sup. Total: 43 m2
Ambientes del departamento
- Balcón
- Baño
- Cochera
- Cocina comedor
- Dormitorio
- Living comedor
Instalaciones del departamento
- Cable
- Electricidad
- Gas natural
Servicios del departamento
- Electricidad
- Gas natural
- Internet
- Video cable
Caracteristicas del edificio
-
Cant. Cocheras: 1
-
Antiguedad: -1
Servicios del edificio
- Electricidad
- Gas natural
- Internet
- Video cable
Código de aviso: PRO-1201560
Propiedades Similares
-
USD 79.000
+ $ 70000 expensas
Montevideo 1500 4°
- 60 m² Cubierta
- 2 dormitorios
- 42 años
-
USD 59.000
Montevideo 500
- 30,50 m² Cubierta
- 3 años
- 1 baño
-
USD 70.000
+ $ 58000 expensas
San Lorenzo 1100
- 54 m² Cubierta
- 2 dormitorios
- 45 años
-
USD 68.500
+ $ 52900 expensas
San Juan al 600
- 38 m² Cubierta
- 1 dormitorio
- 10 años