Ugarte y Montañeses - Unidad 9E

USD 385.954

Venta en Nuñez, Capital Federal

USD 385.954

  • Departamento

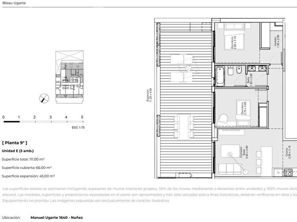
  • 66 m² Cubierta

  • 2 dormitorios

  • 1 año

  • 1 baño

  • 3 ambientes

  • 1 toilettes

Departamento - Nuñez

Espectacular departamento de 3 ambientes ubicado al contrafrente con terraza, el mismo cuenta con living comedor con cocina integrada, dormitorio principal con vestidor, segundo dormitorio, baño completo y toilette de recepción. Todos los ambientes cuentan con salida a terraza independiente.

CONSULTE POR OTRAS UNIDADES DE ESTE EMPRENDIMIENTO (EN OTRO PISO, OTRA UBICACION Y OTRAS TIPOLOGIAS).

Todas las imágenes, planos, descripciones, y características indicadas son meramente referenciales e ilustrativas y podrán ser modificadas sin previo aviso. Las superficies indicadas son estimadas. Las superficies y medidas definitivas surgirán del plano de mensura final aprobado oportunamente por el GCBA. Las fechas de inicio de obra o posesión son estimadas, podrán ser reprogramadas por la Dirección de obra y dependerán a su vez de un proceso de aprobaciones municipales u otros organismos intervinientes. Los precios indicados podrán modificarse sin previo aviso. El interesado deberá realizar las verificaciones respectivas previamente a la realización de cualquier operación, requiriendo por sí o sus profesionales las copias necesarias de la documentación que corresponda.

Ubicación

Nuñez, Capital Federal

Características

  • Cant. Ambientes: 3

  • Cant. Dormitorios: 2

  • Cant. Toilettes: 1

  • Cant. Baños: 1

  • Antiguedad: 0

  • Tipo de operación: Venta

  • Precio: USD 385.954

  • Sup. Cubierta: 66 m2

  • Sup. Total: 66 m2

Código de aviso: PRO-1437911

Contactá al anunciante

Interwin Marketing Inmobiliario

5275-