-
Casa
-
132 m² Cubierta
-
3 dormitorios
-
4 baños
-
4 ambientes
CASA DE PASILLO RECICLADA 3DORMI, PILE
Moderna propiedad desarrollada en 3 niveles, ubicada en el corazón de Barrio Pichincha, a pasos de todo lo que necesitás. Diseño funcional, detalles de categoría y amplios espacios verdes para disfrutar.
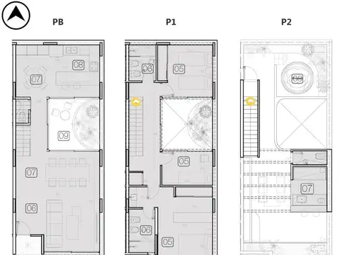
Distribución:
Ingreso a través de patio/jardín verde con paisajismo incorporado (césped natural y canteros).
Planta baja: Ambiente social integrado con cocina, living-comedor y baño toilette.
Primer piso: 3 dormitorios (uno en suite) y 2 baños completos.
Terraza: Azotea exclusiva con quincho cerrado, baño, parrillero, solárium y piscina
*Detalles destacados:
Superficie total: 178 m² (132 m² cubiertos + 46 m² descubiertos).
Terreno: 75 m² (8,55 x 8,81 m aprox).
Cocina de diseño de autor con mobiliario en MDF, mesada de silestone o similar, horno eléctrico y anafe a gas.
Quincho equipado: Parrillero, mesada, bacha y espacio para lavarropas.
Placares completos con interiores armados.
Baños con revestimientos de calidad, loza sanitaria y griferías de primeras marcas.
Terminaciones premium: Aberturas de aluminio, pisos de porcelanato o vinílico SPC (impermeables), cielorrasos y muros en yeso.
Instalaciones listas: Preinstalación para A/A, calefacción por radiadores (sin artefactos), agua caliente por caldera dual y tanque elevado.
Entrega: Septiembre 2025
Construcción a estrenar.
Posibilidad de financiación durante obra.
Opción de compra amoblada con interiorismo incluido.
No es PH.
Una oportunidad única para vivir o invertir en una zona privilegiada, con diseño, calidad y espacios pensados para disfrutar.
¿Querés coordinar una visita o recibir más info?
Ubicación
Pichincha, Rosario, Santa Fe
Características
-
Cant. Baños: 4
-
Cant. Ambientes: 4
-
Cant. Dormitorios: 3
-
Cant. Plantas: 2
Datos básicos
-
Tipo de Unidad: Casa
-
Tipo de operación: Venta
-
Precio: USD 311.500
Superficie
-
Sup. Cubierta: 132 m2
-
Sup. Total: 178 m2
Ambientes de la casa
- Terraza
Instalaciones de la casa
- Pavimento
Servicios de la casa
- Agua corriente
- Electricidad
- Gas natural
- Internet
- Teléfono
- Video cable
Código de aviso: 260999-6370386
Propiedades Similares
-
USD 376.783
Santa Fe y Pueyrredón
- 128 m² Cubierta
- 3 dormitorios
-
USD 377.036
Santa Fe y Pueyrredón
- 128 m² Cubierta
- 3 dormitorios
-
USD 311.500
Santiago al 100
- 132 m² Cubierta
- 3 dormitorios
- A Estrenar
-
USD 311.500
Santiago 143 | Santiago 100
- 132 m² Cubierta
- 3 dormitorios