Callao y 9 de Julio

USD 90.001

Venta en Centro, Rosario

USD 90.001

  • Departamento

  • 51 m² Cubierta

  • 1 dormitorio

  • 1 baño

  • 2 ambientes

  • 1 cocheras

  • Frente

  • Oeste

Departamento - Centro

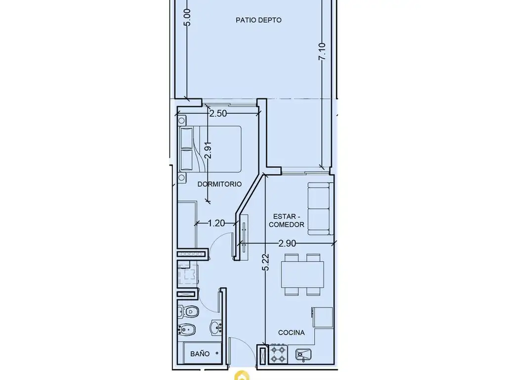
Departamento 1 dormitorio con ingreso a comedor amplio integrado a la cocina, con salida directa a patio al contra frente. El sector íntimo se compone un dormitorio y un baño completo. La distribución prioriza la ventilación e iluminación natural en todos los ambientes principales.

Ubicación

Centro, Rosario, Santa Fe

Características

  • Cant. Ambientes: 2

  • Cant. Dormitorios: 1

  • Cant. Baños: 1

  • Cant. Cocheras: 1

  • Disposición: Frente

  • Orientación: O

  • Tipo de operación: Venta

  • Precio: USD 90.001

  • Sup. Cubierta: 51 m2

  • Sup. Total: 51 m2

  • Baño
  • Cochera
  • Cocina comedor
  • Comedor diario
  • Dormitorio
  • Living comedor
  • Patio
  • Agua corriente
  • Cable
  • Calefacción
  • Electricidad
  • Gas natural
  • Instalación parrilla
  • Agua corriente
  • Calefacción
  • Electricidad
  • Gas natural
  • Internet
  • Video cable
  • Cant. Cocheras: 1

  • Antiguedad: -1

  • Agua corriente
  • Calefacción
  • Electricidad
  • Gas natural
  • Internet
  • Video cable
  • Pileta

Código de aviso: PRO-1590356

Contactá al anunciante

CRESTALE PROPIEDADES S.A.

+5403