MONTEVIDEO 900

USD 340.000

Venta en Monserrat, Capital Federal

USD 340.000

  • Local

  • 82 m² Total

  • Bueno

  • En edificio

Local - Venta - Argentina, Capital Federal - MONTEVIDEO 959

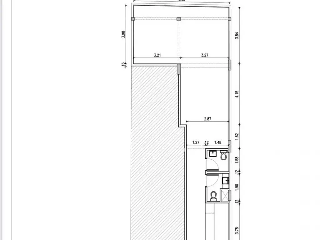
Venta de Local Comercial en Montevideo 959 - Capital Federal

Excelente oportunidad de inversión. Local comercial ubicado en una zona estratégica de Monserrat, sobre la calle Montevideo al 900, a metros de Av. 9 de Julio y Av. Córdoba, con gran flujo peatonal y vehicular.

El local cuenta con una superficie total de 82 m², distribuidos en planta baja de amplias dimensiones, ideal para diversos rubros comerciales, oficinas o servicios. Posee frente vidriado, lo que le brinda excelente visibilidad y luminosidad natural.

Características principales:

Superficie total: 82 m²

Planta libre adaptable a múltiples usos

Baño y kitchenette

Vidriera al frente

Excelente ubicación comercial

Transporte público cercano (líneas de colectivo y subte)

Ideal para emprendimientos gastronómicos, locales de atención al público, showrooms o estudios profesionales.

LEPORE Propiedades S.A. CUIT : -9 C.U.C.I.C.B.A. Matrícula Nº 931 (Sucursales Caballito - Palermo - Nuñez) Nota: Los materiales y especificaciones del plano están sujetos a modificaciones arquitectónicas y otras a la sola discreción del desarrollador, constructor o arquitecto, o que así se requiera por ley. Los planos de planta pueden no ser a escala. Cualquier mueble, electrodoméstico o artículo de decorado representado aquí se muestra únicamente con fines artísticos e ilustrativos y no está incluido en la compra y venta de la residencia. Las dimensiones indicadas se miden a los límites exteriores de la pared exterior y la línea central de las paredes interiores y, de hecho, varían de las dimensiones que se determinarían mediante el uso de la descripción y definición de la "unidad" que se establece en la declaración (que generalmente sólo incluye el espacio aéreo interno entre las paredes perimetrales y excluye los componentes estructurales interiores). Además, las mediciones de habitaciones establecidas en cualquier plano de planta se toman generalmente en los mayores puntos de cada habitación determinada (como si la habitación fuera un rectángulo perfecto), sin tener en cuenta las salidas del corte. En consecuencia, el área de la habitación real será típicamente menor que el producto obtenido multiplicando la longitud por la anchura declarados. Todas las dimensiones son aproximadas y todos los planos y planes de desarrollo están sujetos a cambios. Representaciones orales no pueden considerarse como correctas declaraciones del desarrollador. Propiedad según Ley 5115 La accesibilidad para las personas con discapacidades físicas. "accesible".

Características

  • Estado: Bueno

  • Sup. Cubierta: 82 m2

  • Precio: USD 340.000

Código de aviso: LEP-LE1-52719

Contactá al anunciante

LEPORE PROPIEDADES S.A.

4775