Rondeau 3200

USD 9.000.000

Venta en San Cristobal, Capital Federal

USD 9.000.000

  • Galpon

  • A Estrenar

  • A Refaccionar

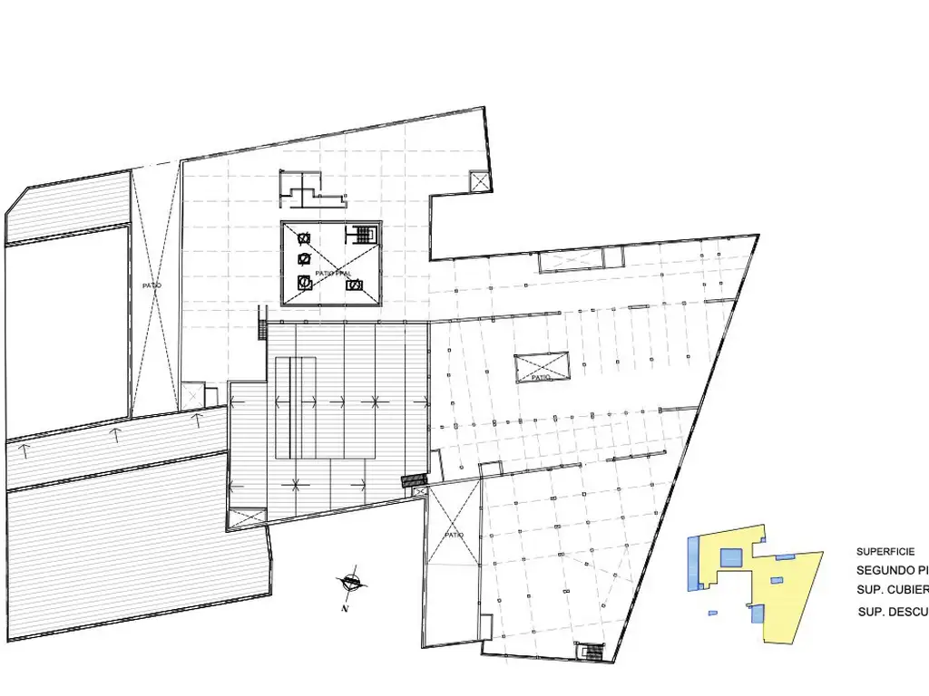
Depósito Galpón en Venta en Parque Patricios, Capital Federal, Buenos Aires

7800 m2 de Superficie de terreno , ex fábrica de papel para refaccionar .
18800m2 con edificio a demoler o recuperar para uso comercial e industrial.
Código Urbanistico mixtura de usos 4. Excelente para todo tipo de proyecto: Depósito- Vivienda- Carga y Descarga de Camiones x 3 calles.
5 ( cinco) Salidas aptas para camiones por las 3 calles - Sanchez de Loria, Rondeau y 24 de Noviembre.
Ideal para depósitos de todo tipo de mercadería.
Se vende en block. Posee anteproyecto para reciclar a un complejo multiespacio comercial con oficinas y centro de distribución.
Puede usarse como depósito para reciclar. Oficinas en 1 er piso ó 2do. piso
Características generales del complejo : Superficie cubierta total: 19.600 m² -
Desarrollo con depósitos en tres niveles - Áreas de oficinas administrativas -
Estructura apta para usos comerciales, logísticos, industriales livianos y tecnológicos. Superficies disponibles: Módulos desde 1.000 m² con posibilidad de tomar hasta 18.000 m² - flexibilidad para adaptar superficies según necesidades operativas.
Condiciones de alquiler / venta:
Superficies a refaccionar: se toma un tipo de dolar.
Ideal para empresas de distribución, industrias livianas, depósitos urbanos o sedes corporativas. En el Distrito tecnológico. El Distrito Tecnológico en Parque Patricios (CABA) ofrece importantes beneficios fiscales y desgravación impositiva a las empresas de tecnologías de la información y comunicación (TIC) radicadas allí hasta 2035. Incluye exención del 100% de Ingresos Brutos, exención de Impuesto de Sellos, Inmobiliario y ABL para los inmuebles de empresas inscriptas, además de créditos fiscales.. - Mat.

Ubicación

San Cristobal, Capital Federal

Características

  • Estado: A Refaccionar

  • Tipo de operación: Venta

  • Precio: USD 9.000.000

Código de aviso: BTS2532_LP815308_1

Contactá al anunciante

BTS PROPIEDADES

(11)