-
Departamento
-
40 m² Cubierta
-
1 dormitorio
-
1 año
-
1 baño
-
2 ambientes
-
1 toilettes
Departamento con balcón disponible en el corazón de Recoleta
|Generado por IA
Departamento - Recoleta
Descripción
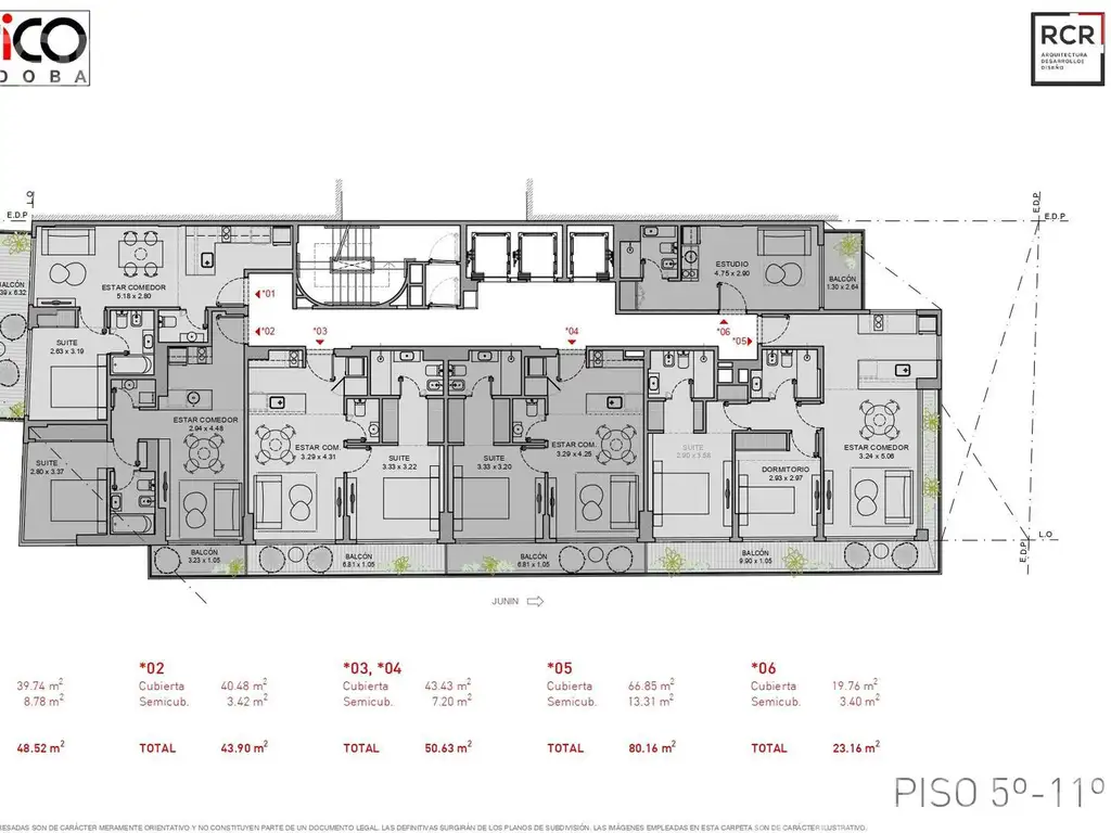
Departamento 2 ambientes sobre calle Junín, con balcón. La unidad cuenta con livingcomedor con cocina integrada, diseño funcional y moderno, dormitorio en suite y toilette de recepción.
Disponibilidad de unidades en otros pisos, orientaciones y tipologías dentro del mismo emprendimiento. Consúltanos para recibir más información y coordinar una visita.
Todas las imágenes, planos, descripciones, y características indicadas son meramente referenciales e ilustrativas y podrán ser modificadas sin previo aviso. Las superficies indicadas son estimadas. Las superficies y medidas definitivas surgirán del plano de mensura final aprobado oportunamente por el GCBA. Las fechas de inicio de obra o posesión son estimadas, podrán ser reprogramadas por la Dirección de obra y dependerán a su vez de un proceso de aprobaciones municipales u otros organismos intervinientes. Los precios indicados podrán modificarse sin previo aviso. El interesado deberá realizar las verificaciones respectivas previamente a la realización de cualquier operación, requiriendo por sí o sus profesionales las copias necesarias de la documentación que corresponda.
Disponibilidad de unidades en otros pisos, orientaciones y tipologías dentro del mismo emprendimiento. Consúltanos para recibir más información y coordinar una visita.
Todas las imágenes, planos, descripciones, y características indicadas son meramente referenciales e ilustrativas y podrán ser modificadas sin previo aviso. Las superficies indicadas son estimadas. Las superficies y medidas definitivas surgirán del plano de mensura final aprobado oportunamente por el GCBA. Las fechas de inicio de obra o posesión son estimadas, podrán ser reprogramadas por la Dirección de obra y dependerán a su vez de un proceso de aprobaciones municipales u otros organismos intervinientes. Los precios indicados podrán modificarse sin previo aviso. El interesado deberá realizar las verificaciones respectivas previamente a la realización de cualquier operación, requiriendo por sí o sus profesionales las copias necesarias de la documentación que corresponda.
Ubicación
Junín y Av. Córdoba - Unidad 1002, Recoleta, Capital Federal
Ampliar mapaCaracterísticas
-
Cant. Ambientes: 2
-
Cant. Dormitorios: 1
-
Cant. Toilettes: 1
-
Cant. Baños: 1
-
Antiguedad: 0
Datos básicos
-
Tipo de operación: Venta
-
Precio: USD 176.496
Superficie
-
Sup. Cubierta: 40 m2
-
Sup. Total: 46 m2
Instalaciones del departamento
-
Agua corriente
-
Desayunador
-
Electricidad
-
Muebles de cocina
-
Pavimento
Servicios del departamento
-
Agua corriente
-
Electricidad
Código de aviso: PRO-1855362
Junín y Av. Córdoba - Unidad 1002
USD 176.496
Departamento en Venta en Recoleta, Capital Federal
-
40 m² Cubierta
-
1 dormitorio
-
1 año
WhatsApp
Contactar