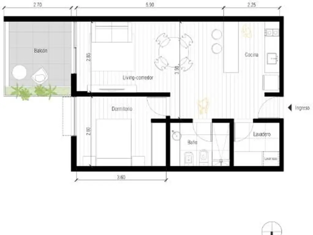
Brown 2745 | 1 dormitorio

USD 116.986

Venta en Pichincha, Rosario

USD 116.986

  • Departamento

  • 50 m² Cubierta

  • 1 dormitorio

  • 1 baño

  • 2 ambientes

  • Frente

  • Este

Departamento 1 dormitorio excelentes terminaciones al pozo Brown 2700 Pichincha

Abitare
Brown 2745 | 1 dormitorio con balcón (04-07)


La unidad se encuentra en el 4to piso, con orientación norte

Este proyecto forma parte de la línea Abitare, concebida con un propósito claro: priorizar la experiencia de habitar los espacios, asegurando que sean confortables y respondan a las necesidades actuales de vivienda.

En este lote de generosas dimensiones, la masa edificada se organiza en torno a un patio interior, que se convierte en el corazón del proyecto. El mismo se conforma como un espacio verde, de esparcimiento y recreación que busca complementar los espacios abiertos y semicubiertos de las unidades, y generar un ambiente de comunidad en un entorno seguro. A este patio se le suman variados amenties en la azotea, como quincho, gimnasio y pileta.

El proyecto ofrece diversas tipologías diseñadas para responder a distintas demandas y necesidades, desde unidades de 1, 2, 3 y 4 dormitorios con balcón, dúplex de 2 y 3 dormitorios con patio o balcón terraza, hasta unidades con azoteas exclusivas. Se utilizan materiales nobles como el hormigón y el ladrillo, para resolver la estructura y definir la expresión exterior del edificio, garantizando bajo mantenimiento y larga durabilidad.

Financiacion

Entrega 30% y 48 cuotas

CONSULTAR POR MAS UNIDADES DISPONIBLES

Imágenes de referencia de unidades terminadas de la misma constructora

Barrio Pichincha

Es un emblema de Rosario que ha sabido reinventarse a lo largo del tiempo, transformándose en un espacio vibrante donde lo histórico y lo contemporáneo conviven en armonía. Este icónico barrio, hoy convertido en un polo de gastronomía, cultura y vida nocturna, conserva una esencia única que se percibe en cada una de sus calles, marcada por su gente, sus historias y su valor patrimonial. En este entorno dinámico, el nuevo edificio Abitare Pichincha redefine el concepto de "habitar". Inspirado en la identidad del barrio, Abitare fusiona interiores y exteriores para crear espacios de convivencia auténticos, ideales para quienes buscan pertenencia y un estilo de vida único en Rosario.

Amenities

Abitare Pichincha invita a habitar de una manera distinta, en un entorno que combina diseño, funcionalidad y bienestar. Por eso, ofrece una variedad de amenities que enriquecen la experiencia de quienes lo habitan: numerosas cocheras y bicicleteros distribuidos en 2 subsuelos, local comercial y oficinas, además de coworking y un jardín central en planta baja pensado para el esparcimiento y la convivencia. En la azotea, espacios como el quincho, gimnasio y pileta aportan áreas de recreación con vistas al entorno urbano, sumando un valor especial al proyecto.

Sustentabilidad

La inclusión de áreas verdes es un sello distintivo de la línea Abitare. A través de estos espacios, buscamos mejorar la calidad de vida al crear áreas conectadas con la naturaleza, con el convencimiento de que esta integración tiene un impacto positivo en la vida cotidiana. Además, se generan parches ambientales en grandes lotes urbanos previamente impermeables, contribuyendo al equilibrio ecológico de la ciudad. Se pone especial énfasis en la incorporación de vegetación nativa, que no solo proporciona un servicio ecosistémico valioso para la ciudad, sino que también es más sustentable, ya que requiere menor mantenimiento al estar adaptada a las condiciones climáticas locales.

Terminaciones

Aberturas de aluminio color Anodizado Natural, con DVH (Doble Vidrio Hermético) según corresponda.

Porcelanato simil madera en departamentos, cerámico alto tránsito primera calidad en balcones

Revestimientos con porcelanatos de diseño

Losa sanitaria color blanca marca Roca o similar.

Grifería de baño c/ cierre cerámico.

Calefacción por sistema de losa radiante o radiadores.

Sistema central de Caldera y boiler con contabilización de consumo individualizado.

Preinstalación para sistema de splits en todos los ambientes.

Ubicación

Pichincha, Rosario, Santa Fe

Características

  • Cant. Ambientes: 2

  • Cant. Dormitorios: 1

  • Cant. Baños: 1

  • Disposición: Frente

  • Orientación: E

  • Tipo de operación: Venta

  • Precio: USD 116.986

  • Sup. Cubierta: 50 m2

  • Sup. Total: 50 m2

  • Baño
  • Dormitorio
  • Agua corriente
  • Cable
  • Caldera individual
  • Calefacción
  • Electricidad
  • Instalación parrilla
  • Teléfono
  • Agua corriente
  • Calefacción
  • Electricidad
  • Internet
  • Teléfono
  • Video cable
  • Antiguedad: -1

  • Agua corriente
  • Calefacción
  • Electricidad
  • Internet
  • Lavanderia
  • Teléfono
  • Video cable
  • Caldera
  • Gimnasio
  • Pileta

Código de aviso: PRO-1868232

Contactá al anunciante

SOLJAN INMOBILIARIA

+5434