Piedras 1300 , Piso 7

USD 96.000

Venta en San Telmo, Capital Federal

+ $312.000 expensas

USD 96.000

+ $312.000 expensas
  • Departamento

  • 104,27 m² Cubierta

  • 3 dormitorios

  • 57 años

  • 1 baño

  • 5 ambientes

  • Bueno

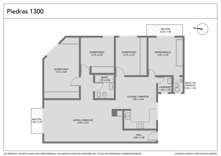
VENTA. DEPTO. 4 AMBIENTES A REFACCIONAR . BALCON. DEPENDENCIA. SANTELMO

Departamento cuatro ambientes a refaccionar con dependencia ubicado en piso alto. Ingreso por hall de recepción que conduce a un amplio living comedor con salida a balcón. Cocina comedor independiente, con buen espacio de guardado y sector de lavadero. Pasillo distribuidor que comunica con tres dormitorios, todos con ventilación natural. Baño completo. Dependencia de servicio con baño propio y salida a segundo balcón. Unidad luminosa y bien distribuida, con doble balcón y ambientes cómodos. Información adicional: Edificio de 9 pisos. Aire frío calor. Pisos de parquet. El edificio está ubicado sobre calle Piedras, a media cuadra de la Au Dr. Ricardo Balbin, a una cuadra de Av. Juan de Garay y a dos cuadras de Av. San Juan.

Toda la información del aviso, incluyendo medidas, precio, impuestos, servicios, etc. son estimativos, sujetos a modificación y no vinculantes, según lo dispuesto en el art. 973, Cód. Civ. y Com.Toda la información del aviso, incluyendo medidas, precio, impuestos, servicios, etc. son estimativos, sujetos a modificación y no vinculantes, según lo dispuesto en el art. 973, Cód. Civ. y Com.

- KP494232 - KPT040418 -
- Publicado usando KiteProp CRM Inmobiliario

Ubicación

San Telmo, Capital Federal

Características

  • Cant. Ambientes: 5

  • Cant. Dormitorios: 3

  • Cant. Baños: 1

  • Estado: Bueno

  • Antiguedad: 57

  • Expensas: $ 312.000

  • Apto Crédito

  • Tipo de operación: Venta

  • Precio: USD 96.000

  • Sup. Cubierta: 104,27 m2

  • Sup. Total: 109,82 m2

Código de aviso: 28KP494232

Contactá al anunciante

Ingenieros Inmobiliarios

54911