doblas 805 , Piso 5

USD 179.900

Venta en Caballito, Capital Federal

+ $300.000 expensas

USD 179.900

+ $300.000 expensas
  • Departamento

  • 95 m² Cubierta

  • 3 dormitorios

  • 17 años

  • 1 baño

  • 4 ambientes

  • Muy Bueno

VENTA- 4 AMBIENTES - BALCÓN - LUMINOSO - SUBTE E - CABALLITO

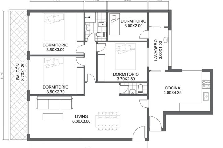
Impecable departamento de 4 ambientes + dependencia, con amplio y muy aprovechable balcón con hermosa vista, muy luminoso, con cercanía al subte E, en Caballito.

D E S C R I P C I O N

Ingresamos al departamento por un amplio living comedor, de 8 x 3 mts aproximadamente, que distribuye a las distintas áreas del departamento, cuenta con conexión a aire acondicionado y hermosos y muy bien mantenidos pisos de madera, Destaca por su luminosidad y ventilación, gracias a que conecta al frente con un importante balcón corrido de 7mts2, con hermosa vista.

A mano derecha de la entrada , tenemos una amplia cocina, con espacio para mesa desayunadora, múltiples espacios de guardados en excelentes condiciones, buena mesada de granito, conexión a gas y un importante espacio para la heladera. La cocina conecta con el área de lavadero, con conexión a lavarropa, área de tendedero y bacha, además, cuenta un una importante ventilación natural.

En medio del living, encontramos un hall que distribuye a los dormitorios, dos de ellos con ventanas al balcón, placares empotrados, hermosos pisos de parquet, conexión a aire acondicionado. El tercer dormitorio, también con placar empotrado y conexión a aire, conecta con el lavadero por una puerta corrediza. A la dependencia se accede a través del lavadero, siendo espaciosa, para usar como oficina o un dormitorio adicional.

La propiedad cuenta con un lindo baño completo con ducha, con buen espacio de guardado, y un baño tipo toilet.

Si buscas vivir en Caballito, en un acogedor departamento, con hermosa vista, esta es tu oportunidad!

Toda la información del aviso, incluyendo medidas, precio, impuestos, servicios, etc. son estimativos, sujetos a modificación y no vinculantes, según lo dispuesto en el art. 973, Cód. Civ. y Com.

- KP499525 - KPT042221 -
- Publicado usando KiteProp CRM Inmobiliario

Ubicación

Caballito, Capital Federal

Características

  • Cant. Ambientes: 4

  • Cant. Dormitorios: 3

  • Cant. Baños: 1

  • Estado: Muy Bueno

  • Antiguedad: 17

  • Expensas: $ 300.000

  • Tipo de operación: Venta

  • Precio: USD 179.900

  • Sup. Cubierta: 95 m2

  • Sup. Total: 102 m2

Código de aviso: 24KP499525

Contactá al anunciante

C.M. Ciarallo Bienes Raices

54911