-
Terreno
-
372 m² Total
Venta Lote zonificación AC Area Centro
Corredor Responsable: Micaela Perez CSI 6671 / Lucas Federico Delgado CUCICBA 6339 -
Contacto: Carla Berenice La Porta
Venta lote ideal para emprendimiento, aceptan permuta por vivienda a estrenar o de pocos años, edificada en planta baja en las zonas de Ituzaingó o Parque Leloir.
ZONIFICACIÓN AC- Area Centro
Usos predominante: Oficinas- Comercio
Usos complementarios: Vivienda multifamiliar
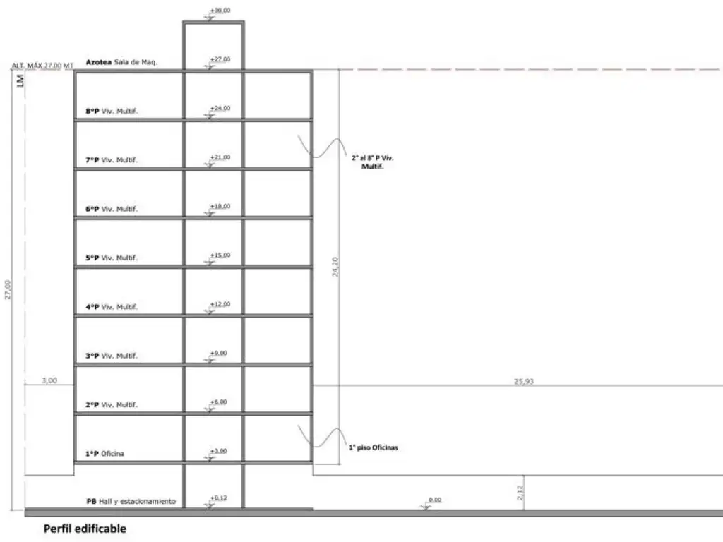
DESARROLLO
*Subsuelo
-6 módulos de cocheras proyectados
*Planta baja: Hall y cocheras
-9 módulos de cocheras proyectados
*1° piso: Oficina
-UF 1: Sup. Cubierta 100.70 m2, 6 habitantes. Requiere un modulo de cochera cada
100m2 de sup. cubierta.
*2° al 8° piso: VIVIENDA MULTIFAMILIAR
-UF 2: Sup. Cubierta 59.05 m2. 3 ambientes, 4 habitantes (dos dormitorios).
-UF 3: Sup. Cubierta 30.28 m2. Monoambiente, 2 habitantes.
TOTALES
-Total Unidades Funcionales: 15 UF (1 UF en1°P; 2 UF del 2°P al 8°P)
-Total habitantes: 48 hab.
-Estacionamiento vivienda multifamiliar 1 módulo por UF= 14 cocheras exigidas
-Estacionamiento oficina 1 módulo cada 100 m2= 1 cochera exigida
-Total cocheras exigidas: 15 módulos
-METROS VENDIBLES ESTIMATIVOS VIVIENDA MULTIF: 709.24M2- OFICINA:
100.70M2 - ÁREAS COMUNES, CIRCULACIONES, PLANTA BAJA LIBRE Y SUBSUELO:
513,98M2
INDICADORES URBANÍSTICOS AC
? FOS 0.6: 225.00 mt2 Sup. máxima a construir en Planta baja
? FOT 3: 1125.00 mt2 Sup. máxima a construir PB, 1°al 8° piso (sin aplicar
premios)
? Densidad neta poblacional residencial 1500 Hab./ ha: 56.25 (56 habitantes) sin
aplicar premios
? Altura máxima c/ retiro voluntario: 27 mt
? Altura sobre Línea municipal: 6 mt
? Retiro de fondo: centro libre de manzana art. 3.2.3.3- mínimo 8 mt.
? Estacionamiento: 1 módulos cochera por unidad funcional
? Superficie de suelo absorbente 50% de planta baja libre
? Subdivisión: Ancho: 17 mt
RAU S.R.L. no ejerce el corretaje inmobiliario. El presente sitio web es una plataforma en donde cada oficina inmobiliaria independiente que contrata los servicios RE/MAX puede publicar las propiedades a su cargo. Cada oficina es de propiedad y gestión independiente, por lo que RAU S.R.L. no interviene en los datos de la publicación, en la operación inmobiliaria, ni en la confección y/o firma del boleto de compraventa y/o escritura y/o contrato de alquiler. En cumplimiento de las leyes vigentes que regulan el corretaje inmobiliario, Ley Nacional 25.028, Ley 22.802 de Lealtad Comercial, Ley 24.240 de Defensa al Consumidor, las normas del Código Civil y Comercial de la Nación y Constitucionales, los agentes/gestores NO ejercen el corretaje inmobiliario. Todas las operaciones inmobiliarias son objeto de intermediación y conclusión por parte del corredor público inmobiliario colegiado a cargo de la publicación, cuyos datos se exhiben en la presente. La presente publicación describe las características esenciales del inmueble, debiéndose consultar al corredor público inmobiliario responsable de la operación por la eventual actualización de las medidas, descripciones arquitectónicas y funcionales, valores de expensas, servicios, impuestos, precios y demás información, cuyos valores son aproximados.
Comprá la casa que querés! No la que podés. Accedé a un préstamo por hasta el 30% del valor de esta propiedad. Simulá tu cuota en Lendar
Contacto: Carla Berenice La Porta
Venta lote ideal para emprendimiento, aceptan permuta por vivienda a estrenar o de pocos años, edificada en planta baja en las zonas de Ituzaingó o Parque Leloir.
ZONIFICACIÓN AC- Area Centro
Usos predominante: Oficinas- Comercio
Usos complementarios: Vivienda multifamiliar
DESARROLLO
*Subsuelo
-6 módulos de cocheras proyectados
*Planta baja: Hall y cocheras
-9 módulos de cocheras proyectados
*1° piso: Oficina
-UF 1: Sup. Cubierta 100.70 m2, 6 habitantes. Requiere un modulo de cochera cada
100m2 de sup. cubierta.
*2° al 8° piso: VIVIENDA MULTIFAMILIAR
-UF 2: Sup. Cubierta 59.05 m2. 3 ambientes, 4 habitantes (dos dormitorios).
-UF 3: Sup. Cubierta 30.28 m2. Monoambiente, 2 habitantes.
TOTALES
-Total Unidades Funcionales: 15 UF (1 UF en1°P; 2 UF del 2°P al 8°P)
-Total habitantes: 48 hab.
-Estacionamiento vivienda multifamiliar 1 módulo por UF= 14 cocheras exigidas
-Estacionamiento oficina 1 módulo cada 100 m2= 1 cochera exigida
-Total cocheras exigidas: 15 módulos
-METROS VENDIBLES ESTIMATIVOS VIVIENDA MULTIF: 709.24M2- OFICINA:
100.70M2 - ÁREAS COMUNES, CIRCULACIONES, PLANTA BAJA LIBRE Y SUBSUELO:
513,98M2
INDICADORES URBANÍSTICOS AC
? FOS 0.6: 225.00 mt2 Sup. máxima a construir en Planta baja
? FOT 3: 1125.00 mt2 Sup. máxima a construir PB, 1°al 8° piso (sin aplicar
premios)
? Densidad neta poblacional residencial 1500 Hab./ ha: 56.25 (56 habitantes) sin
aplicar premios
? Altura máxima c/ retiro voluntario: 27 mt
? Altura sobre Línea municipal: 6 mt
? Retiro de fondo: centro libre de manzana art. 3.2.3.3- mínimo 8 mt.
? Estacionamiento: 1 módulos cochera por unidad funcional
? Superficie de suelo absorbente 50% de planta baja libre
? Subdivisión: Ancho: 17 mt
RAU S.R.L. no ejerce el corretaje inmobiliario. El presente sitio web es una plataforma en donde cada oficina inmobiliaria independiente que contrata los servicios RE/MAX puede publicar las propiedades a su cargo. Cada oficina es de propiedad y gestión independiente, por lo que RAU S.R.L. no interviene en los datos de la publicación, en la operación inmobiliaria, ni en la confección y/o firma del boleto de compraventa y/o escritura y/o contrato de alquiler. En cumplimiento de las leyes vigentes que regulan el corretaje inmobiliario, Ley Nacional 25.028, Ley 22.802 de Lealtad Comercial, Ley 24.240 de Defensa al Consumidor, las normas del Código Civil y Comercial de la Nación y Constitucionales, los agentes/gestores NO ejercen el corretaje inmobiliario. Todas las operaciones inmobiliarias son objeto de intermediación y conclusión por parte del corredor público inmobiliario colegiado a cargo de la publicación, cuyos datos se exhiben en la presente. La presente publicación describe las características esenciales del inmueble, debiéndose consultar al corredor público inmobiliario responsable de la operación por la eventual actualización de las medidas, descripciones arquitectónicas y funcionales, valores de expensas, servicios, impuestos, precios y demás información, cuyos valores son aproximados.
Comprá la casa que querés! No la que podés. Accedé a un préstamo por hasta el 30% del valor de esta propiedad. Simulá tu cuota en Lendar
Ubicación
Ituzaingo, Partido de Ituzaingó, G.B.A. Zona Oeste
Datos básicos
-
Precio: USD 340.000
Superficie
-
Sup. Total: 372 m2
Código de aviso: AR.42.82.127.88.V16