-
Terreno
-
162 m² Total
-
A Refaccionar
Lote apto emprendimiento, hoy con propiedad 4 amb y local
Saenz Peña, Partido de Tres de Febrero,
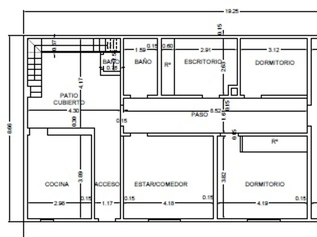
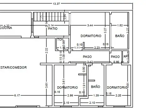
Vivienda de 4 amb, living comedor más cocina comedor, baño completo y toilette, terraza de 140 metros aproximados de loza uniforme con posibilidad de ampliación, mas local de 50 metros aprox, para actualizar, todo funciona, real oportunidad, por ubicación y valor, oportunidad inversores para emprendimiento inmobiliario
DIEGO LOPEZ PEREYRA PROPIEDADES CUCICBA 6539-CMCPSI 6290-
Se deja constancia que las medidas, superficie y m2 consignados son aproximados y al solo efecto orientativo. Las medidas reales surgirán del título de propiedad respectivo. En inmuebles con expensas, las mismas están sujetas a variación. Fotos de carácter no contractual.
Vivienda de 4 amb, living comedor más cocina comedor, baño completo y toilette, terraza de 140 metros aproximados de loza uniforme con posibilidad de ampliación, mas local de 50 metros aprox, para actualizar, todo funciona, real oportunidad, por ubicación y valor, oportunidad inversores para emprendimiento inmobiliario
DIEGO LOPEZ PEREYRA PROPIEDADES CUCICBA 6539-CMCPSI 6290-
Se deja constancia que las medidas, superficie y m2 consignados son aproximados y al solo efecto orientativo. Las medidas reales surgirán del título de propiedad respectivo. En inmuebles con expensas, las mismas están sujetas a variación. Fotos de carácter no contractual.
Ubicación
Villa Saenz Peña, Partido de Tres de Febrero, G.B.A. Zona Oeste
Datos básicos
-
Precio: USD 149.000
Superficie
-
Sup. Total: 162 m2
Código de aviso: 233339-6482599