Jorge Newbery y Av. Cordoba - Unidad 5B

USD 205.000

Venta en Chacarita, Capital Federal

USD 205.000

  • Departamento

  • 64 m² Cubierta

  • 2 dormitorios

  • 1 año

  • 1 baño

  • 3 ambientes

  • 1 toilettes

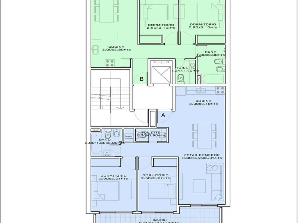
Departamento - Chacarita

Departamento de 3 ambientes ubicado sobre la calle Jorge Newbery 3525, en Chacarita, un barrio en pleno proceso de transformación que combina un perfil residencial con una destacada propuesta gastronómica y cultural, además de excelente conectividad.

La unidad cuenta con living comedor con salida a balcón, generando un espacio luminoso y confortable. La cocina se integra de manera funcional, acompañando una distribución cómoda y bien aprovechada.

Dispone de dos dormitorios de buenas dimensiones, junto a un baño completo y toilette, aportando practicidad y comodidad para la vida diaria.

Consulte por disponibilidad en otros pisos, orientaciones y tipologías dentro del mismo emprendimiento.
Todas las imágenes, planos, descripciones, y características indicadas son meramente referenciales e ilustrativas y podrán ser modificadas sin previo aviso. Las superficies indicadas son estimadas. Las superficies y medidas definitivas surgirán del plano de mensura final aprobado oportunamente por el GCBA. Las fechas de inicio de obra o posesión son estimadas, podrán ser reprogramadas por la Dirección de obra y dependerán a su vez de un proceso de aprobaciones municipales u otros organismos intervinientes. Los precios indicados podrán modificarse sin previo aviso. El interesado deberá realizar las verificaciones respectivas previamente a la realización de cualquier operación, requiriendo por sí o sus profesionales las copias necesarias de la documentación que corresponda.

Ubicación

Chacarita, Capital Federal

Características

  • Cant. Ambientes: 3

  • Cant. Dormitorios: 2

  • Cant. Toilettes: 1

  • Cant. Baños: 1

  • Antiguedad: 0

  • Tipo de Unidad: Departamento

  • Tipo de operación: Venta

  • Precio: USD 205.000

  • Sup. Cubierta: 64 m2

  • Sup. Total: 64 m2

Código de aviso: PRO-96-294013

Contactá al anunciante

Interwin Marketing Inmobiliario

+5411