(1) (1)
  • Centro

Venta

Cochera

Precio

Buscar solo avisos en moneda:

Dorm|Amb

Más filtros (1) Más filtros (1)

Superficie cubierta

Nombre de calle y altura

Estado de obra

Tipo de anunciante

Tipo de Cochera

Ver más

Ver menos

Tipo de Cobertura

Tipo de acceso

Tipo de Coche

21 Cocheras Fijas en Venta en Centro

1/12
Visto

1

USD 14.000

Dorrego 1586 1500

Cochera en Venta en Centro, Rosario

EIGEN Propiedades
  • Fija
  • cubie.
  • Mediano

Venta/Financiación Cocheras Cubiertas N 7. Zona Tribunales

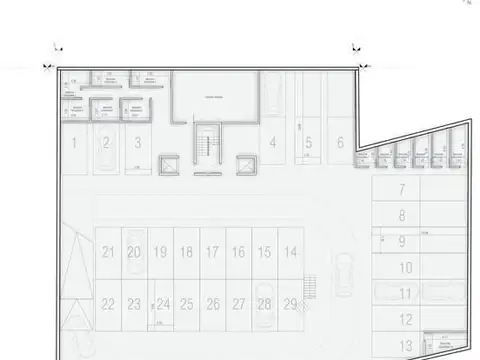
Venta/financiacion cocheras cubiertas en subuelo. Centro, rosario se ingresa por un montacoches de 5,50 metros de largo por 3 metros de ancho y 2,60 metros de altura. Hay cocheras subsuelo de cómodas dimensione, 2,70 metros de ancho por 5,50 metros de largo. La playa tiene un ancho total de 9,21 metros, lo que permite un buen radio de giro para estacionar ubicación equidistante a 100 mts de av. Pellegrini y a 100 mts.de los tribunales provinciales de rosario, se emplaza houser dorrego un edificio de de vanguardia inteligente. Calidad constructiva construcción de primera categoría. Con espacios para estacionar en subsuelo y planta baja, ocho pisos altos con cuatro unidades por nivel, y terraza con parrillero. Se posiciona como una opción diferencial de excelente diseño arquitectónico y acabados de alta calidad. Se destaca por su flexibilidad ocupacional pudiendo diseñarse de mil maneras distintas: un consultorio, una oficina, un departamento o un estudio de diseño pueden ser opciones de equipamiento adaptables a la perfección en estos espacios. Concepto el edificio se presenta con el uso casi exclusivo de dos materiales: hormigón y vidrio. Es así que sus medianeras son totalmente de hormigón visto y sus fachadas vidriadas, solo existe un movimiento aleatorio de balcones emergiendo del vidriado del este, al frente, como única y suficiente expresión de extensión del espacio interior al exterior, interrumpiendo el courtain wall. En busca de un mayor ingreso de iluminación natural se maximizaron las superficies vidriadas de las unidades y se dispusieron de piso a techo y de pared a pared, ya sea tanto al frente como al contra-frente del edificio, dándole idéntica categoría en ambas orientaciones. El ingreso al edificio es espacioso, toma mayor escala y jerarquía con su doble altura interior. Houser dorrego se encuentra en dorrego 1586, a metros del tribunal provincial de rosario y de av. Pellegrini. Espacios para estacionar en subsuelo y planta baja, ocho pisos altos con cuatro unidades por nivel, y terraza con parrillero componen este edificio de estética minimalista. Características edificio de diseño con amplio ingreso en doble altura. 32 studios apto profesionales de 36, 39 y 46 m2. 8 cocheras en planta baja y subsuelo c/monta coche, previsto generador eléctrico. Hall de ingreso con sector de espera y bar machine. Azotea de eventos con parrillero, barras y living exterior en deck. Frente en curtain wall (muro cortina) vidriado de piso a techo. Parasol vegetal al oeste. Ascensor con control de ingreso y cámaras de seguridad. Wifi en comunes. Unidades divisibles y agrupables, 100% adaptables según necesidad. Equipadas con kitchenette completo, anafe y termotanque eléctrico. Preinstalación de split. Cañerías para red de datos. Amenidades para profesionales financiacion en pesos escritura disponible

Contactar
1/32
Visto

0

USD 21.000

Montevideo 2000

Cochera en Venta en Centro, Rosario

FURIGO NEGOCIOS INMOBILIARIOS
  • Fija

VENTA | Cochera frente a tribunales

-Cochera- a las cocheras se accede por rampas fijas de hormigón, y cuenta con espacios para autos motos y archivos. Los espacios de estacionamiento tienen iluminación por sensores de movimiento, alarma contra incendio, sensores de humo y están monitoreados por un sistema de cámaras de video y alarma. Además el ingreso está controlado por personal de recepción y barreras de control de acceso. 3 niveles de cocheras ubicados en ss, 1º y 2º piso. -Edificio pacific montevideo 2010- el edificio está conformado por 3 niveles de cocheras ubicados en ss, 1º y 2º piso, pb con 2 locales comerciales, uno de ellos en esquina y otro sobre montevideo, y 6 plantas de oficinas. En cada piso de los niveles piso 3º a 7º hay 7 módulos de oficinas que se pueden ir uniendo hasta formar un piso completo. En el piso 8º hay 3 módulos de oficinas que también se pueden ir uniendo hasta formar un piso completo. Cada piso tiene un sector identificado como núcleo de servicios con baños para damas y caballeros, un office totalmente equipado, un depósito clasificador de residuos. Por lo expresado los metros de oficina son para uso exclusivo de las mismas no teniendo espacios o m2 ociosos para circulación y servicios. En el piso 5 hay dos salas de reuniones equipadas para 12 personas cada una con sus respectivas ante salas. Dichas salas se entregan equipadas con el mobiliario, iluminación, salidas de a/a y pantalla led, con capacidad para 12 personas cada una con sus respectivas ante salas. Se pueden reservar a través del sitio web de la empresa de manera on line. Amenities: si 2 salas de reuniones cantidad de oficinaspor piso:7 cantidad de ascensores:2 -terminaciones- ? Sistema de seguridad por cámaras y lectoras de ingreso, el ingreso al hall es por puertas automáticas corredizas. El paso a las oficinas es controlado por un sistema de molinetes de acceso y el ingreso a cocheras por barreras automatizadas para que el ingreso sea ágil. El cierre total del edificio es por persianas automatizadas, ? Dos ascensores con tecnología gen 2 confort para 9 personas cada uno de alta velocidad menor consumo energético, menor desgaste y mantenimiento y como su nombre lo indica mayor bienestar en su uso ? Un grupo electrógeno de encendido automático integral que abastece tanto a las partes comunes como a las oficinas ? Piel de vidrio con dvh compuesto por vidrios laminados de seguridad con tratamiento low e y vidrio exterior termo endurecido lo cual mejora el mantenimiento de la temperatura interior con menor consumo de energía y reduce los ruidos externos ? Cortinas roller sun screen solo en oficinas al frente sobre piel de vidrio ? Las divisiones entre oficinas son en mampostería, las oficinas no tienen divisiones internas ? Aire frio calor sólo las unidades externas, las salidas internas y el ramal de distribución en las oficinas bajo la modalidad baja silueta que permite el uso general en cada unidad de oficina es a cargo de cada propietario. Este sistema de aire llamado vrf o vrv permite un menor consumo energético. ? El techo desmontable y piso técnico elevado permiten mantener una oficina limpia de cables y modularlas de diferentes maneras sin necesidad de romper techos o pisos, con el cambio de las placas existentes de pisos o techos es suficiente. La terminación de los pisos es en alfombra también modulable lo que permite que en casos de roturas o manchas solo se cambie un paño, el pegamento que se utiliza es multi-contacto por lo que la alfombra se puede pegar y despegar varias veces. ? Sistema de detección de incendio, sensores de humo, y de temperatura. ? Sistema de telefonía integral que posibilita la comunicación con la recepción y entre las distintas oficinas y salas de reuniones -forma de pago- ? Contado ? Financiación todas las fotos publicadas son propiedad intelectual de furigo negocios inmobiliarios. No es permitida su utilización comercial. Furigo negocios inmobiliarios para vidas en movimiento! Pablo c. Furigo mat. 0334 cocir

Contactar
1/33
Visto

0

USD 21.000

Montevideo 2010 | Cocheras

Cochera en Venta en Centro, Rosario

FURIGO NEGOCIOS INMOBILIARIOS
  • Fija

VENTA | Cochera frente a tribunales

-Cochera- a las cocheras se accede por rampas fijas de hormigón, y cuenta con espacios para autos motos y archivos. Los espacios de estacionamiento tienen iluminación por sensores de movimiento, alarma contra incendio, sensores de humo y están monitoreados por un sistema de cámaras de video y alarma. Además el ingreso está controlado por personal de recepción y barreras de control de acceso. 3 niveles de cocheras ubicados en ss, 1º y 2º piso. -Edificio pacific montevideo 2010- el edificio está conformado por 3 niveles de cocheras ubicados en ss, 1º y 2º piso, pb con 2 locales comerciales, uno de ellos en esquina y otro sobre montevideo, y 6 plantas de oficinas. En cada piso de los niveles piso 3º a 7º hay 7 módulos de oficinas que se pueden ir uniendo hasta formar un piso completo. En el piso 8º hay 3 módulos de oficinas que también se pueden ir uniendo hasta formar un piso completo. Cada piso tiene un sector identificado como núcleo de servicios con baños para damas y caballeros, un office totalmente equipado, un depósito clasificador de residuos. Por lo expresado los metros de oficina son para uso exclusivo de las mismas no teniendo espacios o m2 ociosos para circulación y servicios. En el piso 5 hay dos salas de reuniones equipadas para 12 personas cada una con sus respectivas ante salas. Dichas salas se entregan equipadas con el mobiliario, iluminación, salidas de a/a y pantalla led, con capacidad para 12 personas cada una con sus respectivas ante salas. Se pueden reservar a través del sitio web de la empresa de manera on line. Amenities: si 2 salas de reuniones cantidad de oficinaspor piso:7 cantidad de ascensores:2 -terminaciones- ? Sistema de seguridad por cámaras y lectoras de ingreso, el ingreso al hall es por puertas automáticas corredizas. El paso a las oficinas es controlado por un sistema de molinetes de acceso y el ingreso a cocheras por barreras automatizadas para que el ingreso sea ágil. El cierre total del edificio es por persianas automatizadas, ? Dos ascensores con tecnología gen 2 confort para 9 personas cada uno de alta velocidad menor consumo energético, menor desgaste y mantenimiento y como su nombre lo indica mayor bienestar en su uso ? Un grupo electrógeno de encendido automático integral que abastece tanto a las partes comunes como a las oficinas ? Piel de vidrio con dvh compuesto por vidrios laminados de seguridad con tratamiento low e y vidrio exterior termo endurecido lo cual mejora el mantenimiento de la temperatura interior con menor consumo de energía y reduce los ruidos externos ? Cortinas roller sun screen solo en oficinas al frente sobre piel de vidrio ? Las divisiones entre oficinas son en mampostería, las oficinas no tienen divisiones internas ? Aire frio calor sólo las unidades externas, las salidas internas y el ramal de distribución en las oficinas bajo la modalidad baja silueta que permite el uso general en cada unidad de oficina es a cargo de cada propietario. Este sistema de aire llamado vrf o vrv permite un menor consumo energético. ? El techo desmontable y piso técnico elevado permiten mantener una oficina limpia de cables y modularlas de diferentes maneras sin necesidad de romper techos o pisos, con el cambio de las placas existentes de pisos o techos es suficiente. La terminación de los pisos es en alfombra también modulable lo que permite que en casos de roturas o manchas solo se cambie un paño, el pegamento que se utiliza es multi-contacto por lo que la alfombra se puede pegar y despegar varias veces. ? Sistema de detección de incendio, sensores de humo, y de temperatura. ? Sistema de telefonía integral que posibilita la comunicación con la recepción y entre las distintas oficinas y salas de reuniones -forma de pago- ? Contado ? Financiación todas las fotos publicadas son propiedad intelectual de furigo negocios inmobiliarios. No es permitida su utilización comercial. Furigo negocios inmobiliarios para vidas en movimiento! Pablo c. Furigo mat. 0334 cocir

Contactar