-
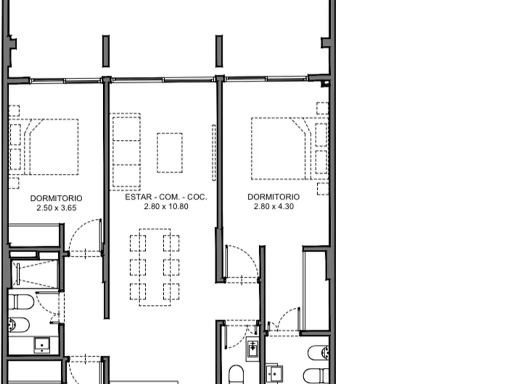
Departamento
-
89,95 m² Cubierta
-
3 dormitorios
-
1 año
-
2 baños
-
4 ambientes
-
1 cocheras
Venta Departamento 4 Ambientes V. Devoto C/ Jardín
Contacto: Maria Gabriela Assisi
¡Imponente Planta Baja con jardín propio, casi como vivir en una casa!
Único en zona.
Alegre y luminoso living comedor con vista y salida a jardín.
Cómoda cocina integrada.
Toilette de recepción.
Dormitorio principal en suite con vista al jardín.
Dos dormitorios más, uno de ellos con salida al jardín. Ambos comparten un baño completo.
Cochera no incluida en el valor.
Edificio muy canchero y funcional, super tecnológico con proyección a tener bajas expensas.
Amenities: terraza con parrilla, laundry, espacio bike-friendly, jacuzzi.
Terminaciones:
- Estructura de hormigón armado.
- Mamposterías de hormigón celular en medianeras y divisiones
interiores.
- Terminación interior: Yeso.
- Terminación exterior: Aislación hidrófuga, revoque grueso y
terminación de revestimiento plástico texturado, con detalles de
Hormigon Visto.
- Portero visor inteligente, marca HIPCAM o similar.
- 1 ascensor automático con cabina revestida en acero.
- Bicicleteros en Planta Baja.
- Cañerías eléctricas, cajas y cables de reconocida marca en plaza y de
acuerdo con las normas ENRE.
- Cañerías internas preparadas para el cableado de TV por cable y
teléfono.
- Cañerías de cloaca y pluvial AWADUCT o similar.
- Cañerías de agua en termofusión AQUASYSTEMS, IPS o similar.
- Agua caliente por medio de termotanques eléctricos Individuales.
Terminación en paredes con yeso y pintura blanca.
- Pisos de porcelanato rectificado de primera calidad.
- Cielorrasos generales de yeso aplicado y cielorraso armado en baños y
cocinas.
- Ventanas en Aluminio o PVC con DVH (doble vidrio con cámara de aire).
- Puertas interiores Oblak Tekstura o similar.
- Puertas de entrada a las unidades de chapa o madera.
- Preinstalación para equipos de Aire Acondicionado (No incluye la
provisión y colocación de equipos de Aire acondicionado)
- Calefacción por piso radiante eléctrico en departamentos de 3 amb y
4 amb.
Dormitorio:
- Pisos de porcelanato rectificado de primera calidad.
Frente de placard en melamina. Baños principales terminados:
- Pisos y revestimientos de paredes de porcelanato.
- Artefactos sanitarios FERRUM o ROCA.
- Vanitory.
- Grifería monocomando FV, HIDROMET o Similar.
Cocinas:
- Pileta de acero inoxidable JOHNSON, MI PILETA o SIMILAR.
- Revestimiento de cerámica o porcelanato sobre mesada.
- Mesada de cuarzo blanco PURESTONE o similar.
- Muebles bajo mesada y alacena en melamina.
- Grifería de cocina FV, HIDROMET o Similar.
Balcones:
- Pisos de porcelanato rectificado de primera calidad.
- Barandas de balcones compuestas (hormigón visto/aluminio y
vidrio).
RAU S.R.L. no ejerce el corretaje inmobiliario. El presente sitio web es una plataforma en donde cada oficina inmobiliaria independiente que contrata los servicios RE/MAX puede publicar las propiedades a su cargo. Cada oficina es de propiedad y gestión independiente, por lo que RAU S.R.L. no interviene en los datos de la publicación, en la operación inmobiliaria, ni en la confección y/o firma del boleto de compraventa y/o escritura y/o contrato de alquiler. En cumplimiento de las leyes vigentes que regulan el corretaje inmobiliario, Ley Nacional 25.028, Ley 22.802 de Lealtad Comercial, Ley 24.240 de Defensa al Consumidor, las normas del Código Civil y Comercial de la Nación y Constitucionales, los agentes/gestores NO ejercen el corretaje inmobiliario. Todas las operaciones inmobiliarias son objeto de intermediación y conclusión por parte del corredor público inmobiliario colegiado a cargo de la publicación, cuyos datos se exhiben en la presente. La presente publicación describe las características esenciales del inmueble, debiéndose consultar al corredor público inmobiliario responsable de la operación por la eventual actualización de las medidas, descripciones arquitectónicas y funcionales, valores de expensas, servicios, impuestos, precios y demás información, cuyos valores son aproximados.
El inmueble no es accesible para personas con discapacidades físicas.
El inmueble es accesible para personas con discapacidades físicas.
Comprá la casa que querés! No la que podés. Accedé a un préstamo por hasta el 30% del valor de esta propiedad. Simulá tu cuota en Lendar
Ubicación
Villa Devoto, Capital Federal
Características
-
Cant. Ambientes: 4
-
Cant. Dormitorios: 3
-
Cant. Baños: 2
-
Cant. Cocheras: 1
-
Antiguedad: 0
Datos básicos
-
Tipo de operación: Venta
-
Precio: USD 363.670
Superficie
-
Sup. Cubierta: 89,95 m2
-
Sup. Descubierta: 99,57 m2
-
Sup. Total: 212 m2
Código de aviso: AR.42.2.16.937
Propiedades Similares
-
USD 335.000
+ $ 3600 expensas
Pareja 3700
- 85 m² Cubierta
- 2 dormitorios
-
USD 395.000
+ $ 240000 expensas
Asuncion 4500
- 120 m² Cubierta
- 3 dormitorios
- 45 años
-
USD 275.000
Asuncion 4500
- 110 m² Cubierta
- 3 dormitorios
- 40 años
-
USD 290.000
Bahia Blanca al 4600
- 2 dormitorios