(1) (1)
  • Argentina

Venta

Departamento

USD desde 550K

Buscar solo avisos en moneda:

Dorm | 4 amb.

Dormitorios

  • 1
  • 2
  • 3
  • 4
  • 5+

Ambientes

  • Mono.
  • 2
  • 3
  • 4
  • 5+

Más filtros (2) Más filtros (1)

Dormitorios

  • 1
  • 2
  • 3
  • 4
  • 5+

Ambientes

  • Mono.
  • 2
  • 3
  • 4
  • 5+

Características

Superficie cubierta

Cocheras

Baños

Antiguedad

  • Indistinto
  • A estrenar
  • Hasta 5 años
  • Hasta 10 años
  • Hasta 20 años
  • Hasta 30 años
  • Más de 30 años

Disposición

Nombre de calle y altura

Expensas

$

Tipo de urbanización

Servicios

Tipo de departamento

Ver más

Ver menos

Tipos de ambientes

Estado de obra

Tipo de anunciante

36 Duplex en Venta en Argentina de 4 ambientes

1/28
Visto

7.005

USD 890.000 + $910.000 expensas

Tronador 3400

Departamento en Venta en Saavedra, Capital Federal

LOPEZ CASTROMIL PROPIEDADES
  • 250 m² cubie.
  • 3 dorm.
  • 15 años

DE REVISTA! Espectacular balcón terraza c/parrilla! AMOBLADO CON DISEÑO! Full amenities! 2 Cocheras! Vig24hs! ÚNICO! OPORT!

“Complejo tronador” espectacular duplex de revista! Balcón terraza con parrilla propia y vista abierta al complejo! Todo a nuevo! De categoría! Amoblado por estudio de arquitectura con diseño y domótica! Muy luminoso! Todo luz y sol! Excelente distribución! Planta baja: hall de entrada! Gran living-comedor! Toilette de recepción a nuevo! Escritorio! Cocina completa a nueva! Dependencia de servicio con su baño! Lavadero independiente! Planta alta: hall de distribución! Master suite con vestidor! Baño completo compartimentado + box de ducha a nuevo! 2 habitaciones! Baño completo a nuevo! Amplios placares! Pisos de madera! Calefacción por losa radiante! Refrigeración central! Iluminación domótica! Cerradura digital! Cortinas eléctricas! Full amenities: sala de juegos para niños, cine, piscina exterior, cancha de tenis, sum, piscina interior para natación, spa, gimnasio, espacio verde, restaurante quma. 2 cocheras fijas y cubiertas! Baulera! 2 ingresos: por calle tronador y por plaza! Vigilancia 24hs en ambos ingresos! Apto crédito! Único! Oportunidad! *Esta propiedad posee acceso para personas con movilidad reducida. *Las descripciones, medidas, superficies y proporciones consignadas en esta ficha son aproximadas, sólo se muestran a modo orientativo. Los montos de expensas e impuestos deben ser confirmados ya que dependen de la fecha en la que se obtuvo la información. * Matrícula cucicba 2204

Contactar
1/38
Visto

186

USD 799.000

Av. del Libertador 13400, Piso Uni

Departamento en Venta en Martinez Vias / Libertador, Martinez

Alec Hyland y Asociados
  • 141,20 m² cubie.
  • 3 dorm.
  • A Estrenar

ELEVIA

La unidad a de elevia es un exclusivo dúplex de 242,2 m² al contrafrente, diseñado bajo el concepto de casas en altura. Combina la amplitud y privacidad de una vivienda tradicional con el confort y la seguridad de un edificio moderno. En la planta baja se encuentran los espacios públicos: una cocina integrada con isla, equipada con electrodomésticos miele (horno, anafe y extractor), comedor y living con salida directa a un gran jardín privado. El exterior ofrece una galería con parrilla y piscina propia, logrando una conexión perfecta entre interior y exterior. En este nivel también se ubican un toilette de recepción y un lavadero independiente, aportando funcionalidad y comodidad a la vida diaria. En la planta alta se ubican tres dormitorios al contrafrente: la suite principal con vestidor, y dos habitaciones adicionales con baño completo compartido. Todos los ambientes cuentan con grandes ventanales y balcón corrido, garantizando luminosidad y vistas abiertas. Cada piso tiene un acceso independiente desde la circulación principal del edificio, lo que brinda mayor flexibilidad e independencia a la unidad. La unidad incluye 2 cocheras cubiertas en subsuelo y una baulera individual (4,5m2) entre los detalles de categoría se destacan: • cocinas con equipamiento miele • griferías hansgrohe y artefactos ferrum o similar • mesadas de silestone o similar en baños y cocina • pisos de porcelanato o madera prefinish roble americano • calefacción por piso radiante regulable y preinstalación de aire acondicionado split • carpinterías de pvc con dvh • fachada en hormigón visto y diseño contemporáneo • sistema de seguridad con portero eléctrico, reconocimiento facial y acceso automatizado manejado desde el celular elevia se encuentra en av. Del libertador 13.444, martínez, una de las zonas residenciales más buscadas de zona norte, con calles arboladas, cercanía al río, plazas, colegios y una completa oferta comercial y gastronómica. Esta unidad ofrece lo mejor de una casa con jardín y pileta propia, en un edificio exclusivo y con la privacidad de accesos independientes. Financiación: adelanto del 40% + cuotas cac (en pesos)-

Contactar
1/49
Visto

100

USD 1.990.000 + $3.200.000 expensas

Sucre 750

Departamento en Venta en Belgrano, Capital Federal

Palau Propiedades
  • 350 m² cubie.
  • 3 dorm.
  • 3 años

Espectacular departamento tipo Casa con Jardín y Pileta

Espectacular departamento tipo casa con jardín y pileta; cuenta en planta baja con living-comedor amplio, toilette, cocina con isla y comedor diario con doble bacha, conexión lavavajillas y lavarropas, ambos ambientes con salida a amplio jardín con piscina de travertino con borde infinito y parrilla (carpeta preparada para instalar el cerramiento del quincho); desde el jardín se ingresa por escalera al subsuelo donde se accede a las cocheras y se encuentra un playroom con baño completo de exterior, dependencia de servicio con baño y lavadero. (Tres cocheras con acceso independiente y directo a la unidad). En planta alta cuenta con gran hall de distribución hacia tres dormitorios en suite, más un escritorio/vestidor. La master suite con vestidor/placard y baño con hidromasaje (aquaglass), doble bacha, sanitarios y ducha compartimentada (ferrum y fv).  Equipamiento de la unidad: pisos italianos, tablero central schneider electric, aire central lg y calefacción central alre (control de temperatura por ambiente), muebles de cocina battista, anafe a gas franke, doble horno eléctrico glem, extractor de aire cata. Velvet bajo belgrano - en una de las zonas más exclusivas y tranquilas de la ciudad, a una cuadra de figueroa alcorta, es un emprendimiento único desarrollado por brodyfriedman, sobre un terreno de 35 metros de frente con sólo 30 lujosos departamentos que van desde los 200m2 hasta los 450 m2, llenos de luz y comodidades, cada uno con la esencia, el estilo y la privacidad de una casa, lo que brinda un nivel de exclusividad único. Amenities: posee un fitness center, solarium, piscina de 25 metros in-out integrada a amplio jardín, playroom para chicos, sala de adolescentes, microcine, importante sum, cocheras de cortesía y seguridad las 24 horas. Velvet sucre es sinónimo de exclusividad y detalles de real categoría y calidad constructiva. El inmueble cuenta con accesibilidad para personas con movilidad reducida (ley 5115). Ambientes: pileta quincho con parrilla toilette servicios: cloacas, gas otros servicios: sum, sauna, portero visor aviso legal: todas las propiedades que figuran en esta publicación se encuentran a cargo de los profesionales matriculados, cayetano palau, matrícula c.U.C.I.C.B.A 2893 o de nicolas jorge caballero, matrícula c.M.C.P.S.I. 6977, por lo tanto la intermediación y la conclusión de las operaciones serán llevadas exclusivamente por ellos. Palau propiedades s.R.L. No ejerce el corretaje inmobiliario. El presente sitio web es una plataforma en donde cada matriculado independiente que contrata los servicios de palau propiedades puede publicar las propiedades a su cargo, palau propiedades s.R.L no interviene en los datos de la publicación, en la operación inmobiliaria, ni en la confección y/o firma de documentación legal y/o contratos. En cumplimiento de las leyes vigentes que regulan el corretaje inmobiliario, ley 10.973 de la provincia de buenos aires, ley nacional 25.028 y 20.266, ley 22.802 de lealtad comercial, ley 24.240 de defensa al consumidor, las normas del código civil y comercial de la nación y constitucionales, los agentes/gestores no ejercen el corretaje inmobiliario. Las fotografías y videos no son contractuales, la presente publicación describe las características esenciales del inmueble, las medidas son meramente descriptivas y esquemáticas, pueden existir discordancias con las medidas exactas, expensas o impuestos que surgen de la realidad y/o de la escritura y/o de los planos del inmueble, debiéndose consultar al corredor público inmobiliario responsable de la operación por la eventual actualización de dicha información. Venta supeditada al cumplimiento por parte del propietario de los requisitos de la resolución general nº 2371 de la afip.

Contactar
1/28
Visto

11

USD 890.000 + $910.000 expensas

Tronador 3400

Departamento en Venta en Villa Urquiza, Capital Federal

LOPEZ CASTROMIL PROPIEDADES
  • 250 m² cubie.
  • 3 dorm.
  • 15 años

DE REVISTA! Espectacular balcón terraza c/parrilla! AMOBLADO CON DISEÑO! Full amenities! 2 Cocheras! Vig24hs! ÚNICO! OPORT!

“Complejo tronador” espectacular duplex de revista! Balcón terraza con parrilla propia y vista abierta al complejo! Todo a nuevo! De categoría! Amoblado por estudio de arquitectura con diseño y domótica! Muy luminoso! Todo luz y sol! Excelente distribución! Planta baja: hall de entrada! Gran living-comedor! Toilette de recepción a nuevo! Escritorio! Cocina completa a nueva! Dependencia de servicio con su baño! Lavadero independiente! Planta alta: hall de distribución! Master suite con vestidor! Baño completo compartimentado + box de ducha a nuevo! 2 habitaciones! Baño completo a nuevo! Amplios placares! Pisos de madera! Calefacción por losa radiante! Refrigeración central! Iluminación domótica! Cerradura digital! Cortinas eléctricas! Full amenities: sala de juegos para niños, cine, piscina exterior, cancha de tenis, sum, piscina interior para natación, spa, gimnasio, espacio verde, restaurante quma. 2 cocheras fijas y cubiertas! Baulera! 2 ingresos: por calle tronador y por plaza! Vigilancia 24hs en ambos ingresos! Apto crédito! Único! Oportunidad! *Esta propiedad posee acceso para personas con movilidad reducida. *Las descripciones, medidas, superficies y proporciones consignadas en esta ficha son aproximadas, sólo se muestran a modo orientativo. Los montos de expensas e impuestos deben ser confirmados ya que dependen de la fecha en la que se obtuvo la información. * Matrícula cucicba 2204

Contactar
1/40
Visto

1

USD 930.000 + $900.000 expensas

Juan Diaz de Solis 2200

Departamento en Venta en Olivos, Vicente Lopez

Susana Aravena Propiedades
  • 176 m² cubie.
  • 3 dorm.
  • 1 año

Departamento Dúplex en Venta en Olivos, Vicente López, G.B.A. Zona Norte

Venta dúplex de 4 ambientes – domus 2222, puerto de olivos exclusivo dúplex de 210 m² con vista panorámica al río de la plata, terraza privada y amenities premium. Ubicado sobre el boulevard juan díaz de solís, este espectacular dúplex ofrece un estilo de vida único en primera línea frente al río . Su diseño moderno y sofisticado combina elegancia, confort y materiales de primera calidad. Características destacadas: - living-comedor amplio y luminoso con carpintería de vidrio de piso a techo, que permite disfrutar de vistas inigualables al río y los jardines internos. - Cocina integrada con barra , muebles de guardado y detalles de diseño moderno. - 3 dormitorios con excelente iluminación natural, el principal en suite con vestidor y baño privado. - 3 baños completos con terminaciones de lujo. - Terraza privada con deck y parrilla , ideal para momentos al aire libre. - 2 cocheras cubiertas y 2 bauleras , para mayor comodidad y espacio de almacenamiento. - Losa radiante individual regulable en cada ambiente y aire acondicionado. Amenities de primer nivel: - piscina con vista panorámica al río. - Gimnasio moderno y totalmente equipado. - Sum (salón de usos múltiples) para eventos sociales. - Parrilla y espacios de relax al aire libre. - Seguridad 24 hs con acceso controlado. Con una ubicación privilegiada, cercano a opciones gastronómicas, espacios de esparcimiento y con rápido acceso a las principales avenidas , este dúplex es una opción ideal tanto para vivienda como para inversión. *Propiedad con renta hasta septiembre de 2025.* Jpm sua2645. - Mat.

Contactar
1/19
Visto

1

USD 655.000

MOSCONI, AV. 3800, Piso 3

Departamento en Venta en Villa Devoto, Capital Federal

ALVAREZ INMUEBLES
  • 126 m² cubie.
  • 3 dorm.
  • 1 año

Venta Departamento 4 ambientes Villa Devoto

Venta de departamento 4 ambientes en villa devoto, capital federal town house - singular y única unidad de 4 ambientes ubicada en el piso tercero, con disposición contra frente, con expansión propia de 135 m2. Cuenta con una inmensa cocina integrada al living comedor con salida al balcón corrido orientado al norte. La unidad cuenta con baño de recepción, 2 dormitorios amplios con placards, baño completo con bañera para los 2 dormitorios, y ademas cuenta con el dormitorio principal en suite con vestidor. Lavadero cubierto independiente. El diseño de esta unidad única contempla el acceso a la expansión propia (terraza con jardines) de manera interna con escalera interior. Cocheras opcionales. Unidad identificada internamente con la letra i. Town houses: amplias unidades en 2 niveles con espacios exteriores propios y expansiones privadas, ubicadas en la última planta del emprendimiento. Con los estándares de privacidad de una casa, estas unidades de 3 y 4 ambientes ofrecen comodidades y áreas de esparcimientos de uso particular, con la funcionalidad de la distribución y el diseño moderno en un entorno natural. Las cocinas integradas, grandes ventanales para las vistas como también el ingreso de aire y sol, con espacios flexibles que permiten diferentes usos en distintos momentos del día, son algunas de las características que tienen este tipo de unidades, que conjugan las ventajas de una casa y de un departamento al mismo tiempo. Amenities con diseños de calidad, amplios espacios verdes con piscina, sum, gimnasio, parrilla y vestuarios. Subsuelo de 43 cocheras cubiertas. Ingreso + saldo en cuotas en pesos ajustadas por cac - entrega en 12 meses materialización carpinterías de aluminio sistema high tech, que garantizan un alto confort de aislamiento. Calderas duales individuales para agua caliente y calefacción eco-sustentables, que permiten un verdadero ahorro energético. Las unidades contaran con preinstalaciones de aire acondicionados split. Sistema pasivo de aislación térmica y acústica que garantizan un uso energético eficiente, elevando el nivel de construcción de los emprendimientos de la zona. Cuenta con detalles innovadores de terminación, como las cerraduras de seguridad digitalizadas sistema "finger-lock". Mamposterías reales sin durlock y revoques finales en pintura plástica.Revestimientos, sanitarios, griferías y pisos de primeras marcas y calidad. Iluminación led en áreas comunes y circulaciones ventiladas. No dejes de consultar por mas opciones y formas de pago.... Solicita tu entrevista y obtene la informacióncompleta del proyecto.

Contactar
1/29
Visto

1

USD 685.000 + $1.200.000 expensas

Marinas Golf 100

Departamento en Venta en Marinas Golf, Countries y Barrios Cerrados en Tigre

MANNELLI PROPIEDADES
  • 210 m² cubie.
  • 3 dorm.
  • 17 años

Excelente departamento en duplex con amarra en Marinas Golf

Excelente departamento en piso alto y vistas al rio. Amplia recepción con placar y toilette. Cómodo y luminoso living comedor apaisado con grandes ventanales. Cocina con comedor diario y lavadero, el mismo tiene salida a un gran balcón, muebles de cocina bajo mesada y bacha, conexion oreoarada para la instalación de tv, tiene deck de madera , esta cerrado y posee roler screen, tanto en laterales como en el techo vidriado, todos los ventanales del cerramiento tienen red de protección, cuenta con a/a. Este se conecta a un balcón descubierto con doble baranda en altura y red de protección. Toda la planta baja tiene pisos de madera tarugada. En pa se encuentra la suite de grandes dimensiones con ventanales de piso a techo , vestidor a medida y baño con doble bacha y yacuzzi. Otros dormitorios con placar y un baño completo. El departamento se adapto a 3 dormitorios pero podría tener un 4to dormitorio, si se necesita. La unidad cuenta con cochera cubierta y de cortesía y una amarra muy bien ubicada. El complejo se encuentra en un barrio cerrado con costa al rio y con acceso a escasos metros del camino de los remeros y salida a la panamericana. El complejo cuenta con los siguientes servicios: dos restaurantes pileta climatizada cubierta y descubierta spa, sauna húmedo/seco gimnasio salón para eventos canchas de tenis, paddle y futbol. Plaza para niños cancha de golf de 9 hoyos amarras cocheras de cortesía. Seguridad 24 hs

Contactar
1/18
Visto

0

USD 900.000

ORTIZ DE OCAMPO AV. 3000, Piso 3

Departamento en Venta en Palermo Chico, Palermo

Nela Larrague
  • 135 m² cubie.
  • 3 dorm.
  • 20 años

DEPARTAMENTO 3 DORMITORIOS - PALERMO CHICO, CAPITAL FEDERAL

Excelente, único en su tipo en el palacio, lleno de luz. En planta baja un hall de entrada, living con salida a balcón terraza y vista hacia jardín y pileta semi olímpica, comedor separado por puertas corredizas, toilette, cocina con lavadero. En planta alta un hall distribuidor, master suite con vista al jardín y pileta de natación interior, segunda suite con vista al jardín interior y 3er dormitorio en suite u oficina con vista al aire y luz. 1 cochera y 1 baulera. El edificio cuenta con seguridad 24hs, gimnasio, pileta y laundry. Expensas incluyen abl, edenor y aysa nela larrague - matrícula cucicba 256 - matrícula cmcpsi 5280 las medidas son aproximadas, las reales y los datos consignados serán verificados contra el título de propiedad.- La presente oferta de venta está condicionada a la confección del coti por parte del propietario (res.-Afip 2371).- Superficie total uso propio uf: 157 m2 luminosidad: 10 cochera fija: si balcón terraza: si aire acondicionado: equipo individual split agua caliente: termotq.Indiv. Categoría del edificio: excelente desagües cloacales: si pavimento: si gimnasio: si solarium: si laundry: si ascensor: si vigilancia: si permite mascotas: si grupo electrógeno: si tipo de palier: s.Priv. Tipo de baulera: individual oferta provista por sistema som - codigo: nlr119

Contactar
1/21
Visto

0

USD 820.000

BULNES 2700, Piso 33

Departamento en Venta en Palermo Chico, Palermo

MARTA FLAMINI PROPIEDADES
  • 145 m² cubie.
  • 3 dorm.
  • 2 baños

DEPARTAMENTO 3 DORMITORIOS - PALERMO CHICO, CAPITAL FEDERAL

Venta espectacular duplex en torre de categoría en inmejorable ubicación - piso alto con vista al río y ciudad - todo luz - living comedor - balcón - toilette - cocina - dependencia de servicio o comedor diario - 2 dormitorios, el principal en suite - otro baño - sala de estar/ escritorio o tercer dormitorio - originalmente eran 3 dormitorios y puede volver a cerrarse - cocheras fijas y cubiertas - vigilancia 24 hs - cocheras de cortesía - tenis - laundry - piscina - solárium - plaza para chicos - gimnasio - salón de fiestas - s nota: la información gráfica y escrita contenida en el presente aviso es meramente a título informativo y no forma parte de ningún tipo de documentación contractual. Las medidas y superficies definitivas surgirán del título de propiedad del inmueble referido. Asimismo, los importes de tasas, servicios y expensas indicados están sujetos a verificación -la presente oferta de venta está condicionada a la obtención del coti por parte del propietario. Las medidas informadas son aproximadas y orientativas. Las medidas exactas surgirán del título de propiedad.- Superficie total uso propio uf: 155 m2 luminosidad: 10 cochera fija: si aire acondicionado: equip.Individ. Categoría del edificio: excelente desagües cloacales: si pavimento: si gimnasio: si hidromasaje: si solarium: si laundry: si ascensor: si vigilancia: si sum: si cancha de tenis: si area comercial: si plaza de juegos: si jardín: si grupo electrógeno: si acceso personas con movilidad reducida: si tipo de baulera: individual oferta provista por sistema som - codigo: mfl112

Contactar
1/9
Visto

0

USD 700.000

Teodoro Garcia 2690 , Piso 12

Departamento en Venta en Belgrano, Capital Federal

EGOMEZ PROPIEDADES
  • 124 m² cubie.
  • 3 dorm.
  • A Estrenar

Departamento a estrenar en Duplex de 5 Ambientes con Terraza

Impresionante departamento duplex de 5 ambientes con terraza ¡A estrenar! Te ofrecemos un exclusivo departamento duplex en un desarrollo inmobiliario de categoria, con un total de 177 m², de los cuales 124 m² son cubiertos y 53 m² corresponden a una magnífica terraza. Además, cuenta con dos cocheras cubiertas para tu comodidad. Ubicación privilegiada: situado a solo 3 cuadras de la intersección de av. Cabildo y av. Federico lacroze, este departamento goza de una ubicación inmejorable. Estás en el corazón de una zona vibrante y conectada, con acceso a todos los medios de transporte posibles, facilitando tu movilidad y conectividad en la ciudad. Descripción del propiedad: planta baja: al ingresar por el piso 12, serás recibido por un espacioso y luminoso living-comedor, que se abre a una espectacular terraza, ideal para disfrutar de momentos al aire libre. La cocina, integrada al área social, está equipada con modernos muebles bajo y sobre mesada, ofreciendo funcionalidad y estilo. Un elegante toilette de visitas completa esta planta. Planta superior: la planta inferior alberga el dormitorio principal, una verdadera suite que incluye un vestidor de amplias dimensiones y un baño completo en suite. Adicionalmente, encontrarás tres dormitorios adicionales y otro baño completo. Todos los ambientes en esta planta tienen acceso a la terraza, lo que garantiza una excelente circulación de luz natural y vistas abiertas. Características adicionales: vistas: el departamento ofrece vistas despejadas y una excelente iluminación natural. Detalles de categoría: cada rincón del departamento está diseñado con materiales y acabados de primera calidad, reflejando un estándar de lujo y confort. Amenidades exclusivas: piscina: relájate y disfruta en la piscina del edificio. Rooftop: un espacio común en la azotea para disfrutar de vistas panorámicas y eventos al aire libre. Información del proyecto: fecha de inicio de obra: enero 2022. Fecha de posesión: agosto 2024. Modalidad de pago: flexible y a convenir, adaptada a tus necesidades. Exclusivos detalles de terminación. - Cerradura samsung ezon digital - doble vidrio (dvh) - pisos de porcelanato - circuito cerrado de vigilancia - limpieza de lunes a lunes - super bajas expensas. Este departamento es ideal para quienes buscan un hogar moderno, elegante y lleno de comodidades en una ubicación inmejorable. ¡No pierdas la oportunidad de vivir en una de las mejores zonas con todos los lujos que mereces! Visita nuestra web cmcpsi 6721 cucicba 9206 las imágenes aquí contenidas han sido incluidas al solo y único efecto ilustrativo de esta presentación. Las medidas son aproximadas y han sido suministradas por los propietarios. Emilio gomez la presente unidad no posee condicion de accesibilidad para personas con discapacidades fisicas.

Contactar
1/9
Visto

0

USD 668.222

Honduras 4600, Piso 6

Departamento en Venta en Palermo Soho, Palermo

La Capitana Real Estate
  • 115 m² cubie.
  • 3 dorm.
  • A Estrenar

Departamento tipo duplex 4 ambientes con terraza 6/2026

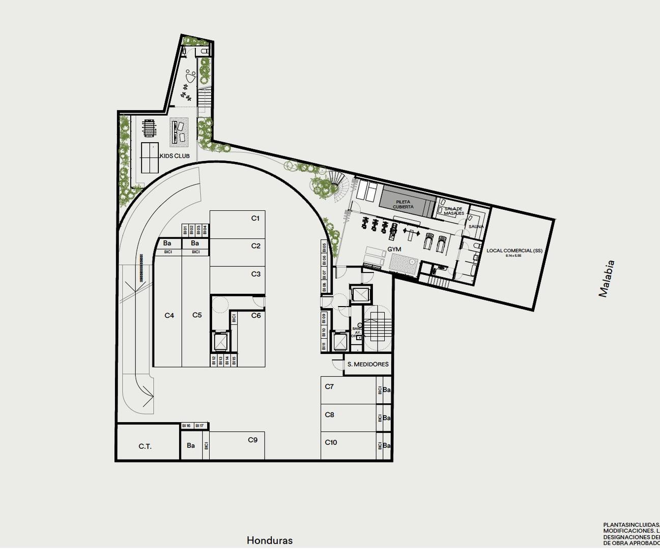
Honduras 4683 entrega 3/2026 duplex tipo casa al frente : cuatro ambientes al frente en dúplex con toilette, dormitorio en suite, familyy balcon terraza forma de pago:30%al boleto y el resto en cuotas hasta la entrega.. Casa aer palermo soho. Importante lote con triple frente sobre la calle honduras, y con un frente simple sobre la calle malabia. En la unión de los mismos, se genera un gran jardín con vegetación, donde se desarrollan la mayoría de los amenities del edificio: parque con pileta , workspace, lounge, kids club, gimnasio y spa con pileta cubierta climatizada -sum en una elevación de 9 pisos aer propone 35 unidades únicas: departamentos de 2, 3, 4 y 5 ambientes, que van de los 50 a los 313 m2, creados bajo el concepto de casas en altura, con terminaciones de la más alta calidad, imponentes espacios vivibles que brindan una sensación espacial única. Las unidades cuentan con amplios espacios que, gracias a un diseño de grandes ventanas y balcones aterrazados, se encuentran plenos de luminosidad. Tanto su diseño como sus terminaciones, son de la más alta calidad,utilizando materiales nobles que aseguran la durabilidad y la solidez. Cerradura digital complementos de tecnología & domótica calefacción por piso radiante eléctrico con control individual muebles de cocina de diseño completos carpinterías de aluminio de alta tecnología con doble vidriado hermético mesadas de granito y mármol en cocinas y baños piso flotante melamínico house workspace kids club pileta pileta cubierta solarium gimnasio spa sum el edificio control de acceso digital al edificio y amenities monitoreo por cctv vinculado con app mobile conectividad wi-fi en espacios comunes espacios comunes climatizados y equipados con mobiliario de diseño ascensores de última generación instalación preparada para recibir grupo electrógeno sistema constructivo estructura independiente de hormigón armado y cerramiento de mampostería tabiquería interior de mampostería de ladrillo hueco y/o común terminación con enlucido de yeso en locales secos cielorraso de yeso aplicado, yeso suspendido y/o hormigón visto instalaciones calefacción por piso radiante eléctrico con control y consumo individual instalación preparada para recibir equipos split y multi-split instalación de tv y telefonía en cada ambiente provisión central de agua caliente sanitaria instalaciónpara lavarropas y/o lavavajillas en todas las unidades. Complementos de tecnologia y domótica cerradura biométrica con huella digital en acceso de cada unidad portero visor con pantalla led tomacorrientes con entrada usb instalación preparada para control de aa, calefacción y cortinas por sistema domótica conectividad wifi en espacios comunes sustentabilidad sectores de cubierta y terrazas verdes envovente de alta eficiencia térmica - dvh y revoques térmicos alimentación individual para carga de autos híbridos estación de carga para bicis eléctricas carpinterías exteriores carpinterías de aluminio de alta tecnología con doble vidriado hermético barandas de hierro y vidrio laminado pisos y revestimientos piso flotante melamínico en estar, comedor y dormitorios piso de porcellanato en balcón pisos y revestimientos de porcellanato en cocinas y baños equipamiento muebles de cocina de diseño completos con bajo y sobre mesada placares y vestidores con interiores completos mueble vanitory de diseño en baños parrillas con herrería completa cocinas mesadas de granito negro griferías de primera línea piletas de acero inoxidable de primera línea cañería de salida para extractracción anafe vitroceramico y horno eléctrico baños griferías de diseño y alta tecnología artefactos sanitarios y bachas de primera línea bañeras de acero de primera línea mesadas de quarzo o mármol accesorios y espejos colocados servicios: cloacas otros servicios: balcón terraza, sum todas las medidas enunciadas son meramente orientativas, las medidas exactas serán las que se expresen en el respectivo título de propiedad de cada inmueble. Todas las fotos, imagenes y videos son meramente ilustrativos y no contractuales. Los precios enunciados son meramente orientativos y no contractuales.. 5633cmcpsi/3921cucicba

Contactar