(1) (1)
  • José Ignacio

Venta

Departamento

Precio

Buscar solo avisos en moneda:

Dorm|Amb

Dormitorios

  • 1
  • 2
  • 3
  • 4
  • 5+

Ambientes

  • Mono.
  • 2
  • 3
  • 4
  • 5+

Más filtros Más filtros

Dormitorios

  • 1
  • 2
  • 3
  • 4
  • 5+

Ambientes

  • Mono.
  • 2
  • 3
  • 4
  • 5+

Características

Superficie cubierta

Cocheras

Baños

Antiguedad

  • Indistinto
  • A estrenar
  • Hasta 5 años
  • Hasta 10 años
  • Hasta 20 años
  • Hasta 30 años
  • Más de 30 años

Disposición

Nombre de calle y altura

Expensas

$

Tipo de urbanización

Servicios

Tipo de departamento

Tipos de ambientes

Estado de obra

Tipo de anunciante

26 Departamentos en Venta en José Ignacio

1/12
Visto

0

USD 160.000

Republica Argentina 20402 - Juanita Beach II 'PB-D

Departamento en Venta en José Ignacio, Punta del Este

Vanzini Propiedades
  • 47 m² cubie.
  • 1 dorm.
  • 1 año

Departamento de 1 dormitorio a metros de la playa, en La Juanita

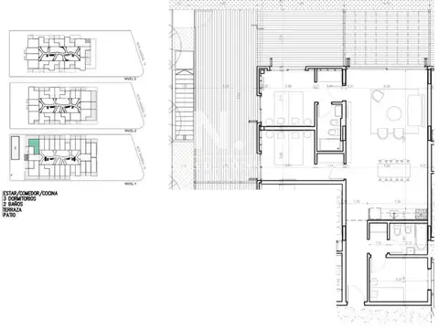
Juanita beach es un lugar ideal para disfrutar momentos únicos en tierras uruguayas: una noche estrellada, un fueguito prendido, buena compañía y aires de mar. Es un condominio con unidades residenciales apta renta temporaria. Departamento de 1 dormitorio con un mega ambiente social, cocina integrada al living comedor con salida directo al patio/jardín con césped natural, 1 baño y dormitorio con placar. Calidad de terminación moderna con sistema constructivo steel frame: paneles osb más lana de vidrio más aislación tyvek más revestimiento interior de madera texturada más revestimiento exterior en listones de madera, muros separadores de unidades doble de paneles osb, pisos de porcelanato en toda la unidad, carpintería de pvc negro con vidrios dvh 3+3+9+3+3 incoloro - low-e, vidrios simples 4+4, instalación de equipos de aire acondicionado split frío/calor, termotanque eléctrico de 60 litros, cocinas con mobiliario completo de bajo mesada, alacena, horno eléctrico james y anafe eléctrico james de 2 hornallas, mesada de silestone, bacha de acero inoxidable y espacio técnico para heladera. Baños con loza sanitaria y griferías de primeras marcas, duchador con mampara de vidrio, ventilación natural, vanitory, espejo y accesorios colocados más correcto revestimiento en paredes. Previsión directv+cable+te+wifi. Previsión de ubicación oculta de las unidades condensadoras de los equipos de aire acondicionado split. Proyecto: juanita beach ii, emprendimiento compuesto por 11 unidades. Las 5 unidades del nivel inferior cuentan con jardín privado. Las 6 superiores tienen acceso a una terraza privada con vista al mar. Ubicación: inmerso en el bosque de la juanita y a 100 metros de la playa de jose ignacio, la zona con mayor auge inmobiliario de sud américa. Observación: cuenta con patio. Se vende por compromiso de venta donde se adquiere un porcentaje de la sociedad y da el uso de goce de la unidad en cuestión. Se vende amoblado. 1 dormitorio con jardín exclusivo de 65m2. Superficie cubierta: 47.2m2. Jardín: 17.5m2. Antiguedad 2023. Consultar por financiación. Expensas incluyen ute, ose, gastos administrativos, servicios de cámaras, wifi, entre otros. Nota: las medidas informadas incluyen el 50% de los muros medianeros y el 100% de los muros interiores. Todas las fotos publicadas son propiedad intelectual de vanzini black s.A. No es permitida su utilización comercial. Las medidas y superficies expuestas son estimativas y a corroborar con sus respectivos planos y títulos. La publicación de este inmueble es a solo título informativo, la venta de la propiedad está supeditada a que el propietario cumplimente el trámite ante la afip para la obtención del número de coti correspondiente. La información no es contractual. Si querés saber el valor de tu propiedad, contactate con nosotros y tasamos tu propiedad en 48hs.

Contactar
1/9
Visto

0

USD 460.000

Consultar dirección

Departamento en Venta en José Ignacio, Punta del Este

Nicolas De Modena Inmobiliaria
  • 70 m² cubie.
  • 2 dorm.
  • 2026 años

Departamento en Jose Ignaico en venta, 2 dormitorios con 2 baños

Descubre tu refugio en josé ignacio: un apartamento a pasos del mar ubicado a tan solo 300 metros de las aguas cristalinas de josé ignacio, este encantador apartamento es el espacio ideal para disfrutar de la tranquilidad y el estilo de vida que ofrece la costa uruguaya. Con una orientación oeste que te permitirá deleitarte con atardeceres inolvidables, esta unidad de 2 dormitorios y 2 baños tiene capacidad para 4 personas, convirtiéndola en la opción perfecta para familias o grupos de amigos. El diseño del apartamento incluye una cocina integrada que se conecta armoniosamente con el living y el comedor, creando un ambiente acogedor y funcional. Equipado con placares en la cocina y en los dormitorios, cada rincón está pensado para maximizar el espacio y la comodidad. Además, disfrutarás de una variedad de amenities que complementan tu experiencia: una refrescante piscina, un gimnasio bien equipado, servicio de playa, barbacoa, vigilancia las 24 horas y un relajante sauna. Todo lo que necesitas para vivir momentos inolvidables en un entorno privilegiado. No dejes pasar la oportunidad de hacer de este apartamento tu nuevo hogar o tu refugio vacacional. Consulta con nuestros asesores y descubre cómo puedes convertir este sueño en realidad. ¡Te esperamos!

Contactar
  • Departamento de 1 dormitorio en venta en Jose Ignacio
0/0
Visto

0

USD 295.000

Consultar dirección

Departamento en Venta en José Ignacio, Punta del Este

Nicolas De Modena Inmobiliaria
  • 46 m² cubie.
  • 1 dorm.
  • 2025 años

Departamento de 1 dormitorio en venta en Jose Ignacio

Descubre tu refugio en josé ignacio: un apartamento a pasos del mar ubicado en el corazón de josé ignacio, este encantador apartamento de 1 dormitorio y 1 baño es el escape perfecto para quienes buscan disfrutar de la tranquilidad y la belleza de la costa uruguaya. A tan solo 300 metros del mar, podrás deleitarte con la brisa marina y los atardeceres inolvidables que este exclusivo destino tiene para ofrecer. Con una orientación este que garantiza luminosidad y calidez, la unidad cuenta con un diseño funcional que integra cocina, living y comedor, creando un ambiente acogedor y perfecto para relajarse. Equipado con placares tanto en la cocina como en el dormitorio, cada rincón ha sido pensado para maximizar el espacio y la comodidad. Los amenities de este complejo son un verdadero lujo: disfruta de una refrescante piscina, mantente activo en el gimnasio, y relájate en el sauna después de un día de playa. Además, contarás con servicio de playa y una barbacoa para compartir momentos inolvidables con amigos y familiares, todo bajo la vigilancia que te brinda seguridad y tranquilidad. No dejes pasar la oportunidad de hacer de este apartamento tu nuevo hogar o tu refugio vacacional. Consulta con nuestros asesores y descubre cómo este espacio puede convertirse en el lugar donde tus sueños se hacen realidad. ¡Te esperamos!

Contactar