(1) (1)
  • Fisherton

Venta

Galpón

Precio

Buscar solo avisos en moneda:

Dorm|Amb

Más filtros Más filtros

Características

Superficie cubierta

Nombre de calle y altura

Fot

Servicios

Tipo de anunciante

29 Galpones en Venta en Fisherton

1/6
Visto

900

USD 28.400

Av. San José de Calasanz al 8400

Galpón en Venta en Fisherton, Rosario

Inmobiliaria Sebastian Ramasco Padilla
  • 30 m² cubie.
  • 4 mts Frente
  • 7 mts Fondo

Galpón en venta barrio fisherton mercado de concentración

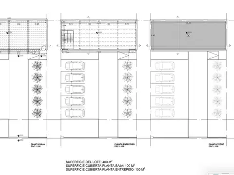
Av. San josé de calasanz 8480 disponibles : storages 11 - 12 - 13 -14 - 15 . Storage conocido como bodegas, son depósitos que se adaptan a la necesidad de cada persona o empresas, para resolver los problemas de almacenamiento de todo tipo de objetos de la forma más eficiente posible. La logística es la actividad económica de mayor crecimiento en la actualidad que planifica, gestiona, controla el almacenamiento y envío de bienes en una cadena de suministro, con el objetivo principal de gestionar todas las operaciones relacionadas con el movimiento de materias primas o productos de la forma más eficiente posible. Descripción la obra contempla la construcción de 16 unidades de galpones de 7 m x 4,4 m con un alto de 5 m, diseñados para satisfacer las necesidades de almacenamiento y logística. Cada galpón estará equipado con instalaciones eficientes, garantizando funcionalidad y durabilidad. Se construirá las divisiones de estos, de ladrillos huecos y columnas reforzadas para soportar la estructura metálica de la cubierta. Se realizarán instalaciones de agua y red eléctrica. Se proveerá un sistema de desagues con conexión a un pozo ciego para la construcción particular de baños en las unidades que se desee, al igual que la construcción de un entrepiso de la mitad de la superficie. Cada galpón estará equipado con persianas para un acceso seguro y práctico y todas las unidades contarán con acceso a la calle central. Observación entrega aprox. Mayo 2025. No se comparte comisión. Ubicación a 5 minutos de av. Circunvalación y a 3 minutos de la autopista rosario - córdoba.

Contactar
1/27
Visto

175

USD 350.000

Camino de las Carretas 8300

Galpón en Venta en Fisherton, Rosario

REMAX Exclusivo
  • 500 m² cubie.
  • 58 años
  • 4 baños

VENTA AMPLIO GALPON CON TERRENO DE 1500MTS

Corredor responsable: sebastian pellegrini ci mat n° 571 - contacto: mariana rodriguez peña venta de galpon de grandes dimensiones ubicado en calle las carretas y ezeisa, ex calle urquiza. Frente al jockey club de rosario a una cuadra de wilde. Espectacular galpon con oficina de 500 mts sobre un terreno de 1500mts con playa de estacionamiento para autos y camiones. Cuenta con 2 sisternas para combustible y para agua. Tiene doble ingreso por ambas calles. Garita de seguridad en el ingreso. Vestuarios y baños 2 fosas para autos. Son tres lotes de 500mts cada uno que suman una superficie de 1500mts estrategica ubicacion, ideal empresas de logistica, transporte, etc es apto credito hipotecario, acepta permuta y financiacion. Rau s.R.L. No ejerce el corretaje inmobiliario. El presente sitio web es una plataforma en donde cada oficina inmobiliaria independiente que contrata los servicios re/max puede publicar las propiedades a su cargo. Cada oficina es de propiedad y gestión independiente, por lo que rau s.R.L. No interviene en los datos de la publicación, en la operación inmobiliaria, ni en la confección y/o firma del boleto de compraventa y/o escritura y/o contrato de alquiler. En cumplimiento de las leyes vigentes que regulan el corretaje inmobiliario, ley nacional 25.028, ley 22.802 de lealtad comercial, ley 24.240 de defensa al consumidor, las normas del código civil y comercial de la nación y constitucionales, los agentes/gestores no ejercen el corretaje inmobiliario. Todas las operaciones inmobiliarias son objeto de intermediación y conclusión por parte del corredor público inmobiliario colegiado a cargo de la publicación, cuyos datos se exhiben en la presente. La presente publicación describe las características esenciales del inmueble, debiéndose consultar al corredor público inmobiliario responsable de la operación por la eventual actualización de las medidas, descripciones arquitectónicas y funcionales, valores de expensas, servicios, impuestos, precios y demás información, cuyos valores son aproximados.

Contactar
1/5
Visto

100

USD 30.000

Av. Calasanz 8400 - Storage Rosario 'U8

Galpón en Venta en Fisherton, Rosario

Vanzini Propiedades
  • 30 m² cubie.
  • 4 mts Frente
  • 7 mts Fondo

Deposito de 30m² pegado al Mercado de Concentración de Fisherton

Galpones tipo de depósito de 30m2 con un frente de 4.4m y un fondo de 7m, altura máxima de 5m. Storage rosario cuenta con 16 unidades, cada una de ellas estará equipado con instalaciones eficientes garantizando funcionalidad y durabilidad. Divisiones con ladrillo hueco y columnas reforzadas para soportar la estructura metálica de la cubierta, contrapiso de hormigón con films de 200 micrones para contradecir humedades. Se realizará instalaciones de agua y red eléctrica, además se proveerá un sistema de desagues con conexión a un pozo ciego para la construcción particular de baños en cada unidad. Posibilidad de realizar un entre piso. Persiana metálica en su frente. Paredes con revestimiento y calle central con pavimento. Ubicación: ubicado a 5 minutos de circunvalación y a 3 minutos de autopista rosario-cordoba. Próximo al mercado de concentración. Un punto logístico perfecto. Proyecto: storage rosario, comprende 16 unidades. Ph de galpones logísticos o depósitos. Observación: se vende por boleto de compra venta. Entrega octubre 2025. Posibilidad de compra con unidad conjunta o 2 unidades. Es ph. Cuenta con 30m2 aproximadamente. Nota: las medidas informadas incluyen el 50% de los muros medianeros y el 100% de los muros interiores. Todas las fotos publicadas son propiedad intelectual de vanzini black s.A. No es permitida su utilización comercial. Las medidas y superficies expuestas son estimativas y a corroborar con sus respectivos planos y títulos. La publicación de este inmueble es a solo título informativo, la venta de la propiedad está supeditada a que el propietario cumplimente el trámite ante la afip para la obtención del número de coti correspondiente. La información no es contractual. Si querés saber el valor de tu propiedad, contactate con nosotros y tasamos tu propiedad en 48hs.

Contactar
1/6
Visto

1

USD 130.000

Rosario - Fisherton - Av General de División Hernán Pujato

Galpón en Venta en Fisherton, Rosario

INMOBILIARIA SUSANA IPPOLITI
  • 100 m² cubie.
  • 16 mts Frente
  • 25 mts Fondo

Local comercial con deposito para usos mixtos en Fisherton

Nave comercial de 100 m2 para usos mixtos en fisherton ubicación estratégica sobre la zona: se encuentra en una ubicación de alto potencial, sobre la calle av. General de división hernán pujato, entre las calles lago puelo y sánchez de loria bis. Su cercanía con la av. Circunvalación y av. Jorge newbery garantiza un acceso rápido y directo a las principales arterias de la ciudad, brindando una conexión ágil a otros puntos clave de rosario y la región. Sobre el inmueble: cada unidad cuenta con 100 m2 está diseñado para usos mixtos, adaptándose a diversas necesidades comerciales o industriales. Se distribuye en dos niveles y cuenta con: -planta baja con amplio depósito ideal para almacenamiento o área de trabajo. -Baño/toilette y kitchenette para optimizar las tareas diarias. -Oficina en planta alta, con vistas a la zona de trabajo. Financiación: 30% de anticipo y el saldo financiado en 24 cuotas. Entrega: se estima para el año 2026, brindando tiempo para la planificación y adecuación del espacio según las necesidades del comprador. Una oportunidad única para empresas que buscan posicionarse en una zona estratégica, con excelente conectividad y un diseño funcional. Contáctanos para más detalles o para agendar una visita!

Contactar
1/5
Visto

0

USD 145.000

Bernheim al 9200

Galpón en Venta en Fisherton, Rosario

Imperia Propiedades
  • 185 m² cubie.
  • 6 mts Frente
  • 28 mts Fondo

Venta galpon comercial tierra nueva fisherton

Bernheim y calle 1633 galpon con local comercial 180 m2 zonificación: propiedad ubicada en inmejorable zona para destino logistica, zona periferica de la cuidad, a solo 4 cuadras del av mendoza, zona estadio mundialista de hockey accesos:r9 - au. Ros-cba - av. Calasanz - av. Wilde - av. Fuerza aérea tipología: galpon con local comercial, 40 m2 de local aprox + 140 m2 de galpon libres 7mts de altura . 6,33 mts de frente 30 de fondo. Distribución: se accede desde la calle 1633 a través de un ingreso exclusivo, al frente local comercial y al fondo galpon libre de 140m2. Características: terminaciones: piso hormigón llaneado, paredes de ladrillo con revoque y material de frente, color gris, techo de chapa a 1 agua. - Pre instalacion de baño - epe - categoría 2 para establecimientos industriales medidas: sup. Cubierta: 180m2 local: 40m2 galpon: 140m2 extras: - pre instalacion de baño - videovigilancia 24 hs para mas información no dudar en consultar. Nota: las medidas y superficies expuestas son estimativas y a corroborar con sus respectivos planos y títulos. Todas las fotos publicadas son propiedad intelectual de la inmobiliaria interviniente. No es permitida su utilización comercial. La publicación de este inmueble es a solo título informativo, la venta de la propiedad está supeditada a que el propietario cumplimente el trámite ante arca para la obtención del número de coti correspondiente. La información no es contractual.

Contactar