(1) (1)
  • La Tablada

Venta

Galpón

Precio

Buscar solo avisos en moneda:

Dorm|Amb

Más filtros Más filtros

Características

Superficie cubierta

Nombre de calle y altura

Fot

Servicios

Tipo de anunciante

8 Galpones en Venta en La Tablada

1/4
Visto

0

Consultar precio

Ayacucho 3810

Galpón en Venta en La Tablada, Rosario

Vanzini Propiedades
  • 250 m² cubie.
  • A Estrenar
  • Agua corri.

Fracción de 4600m² en Zona Sur

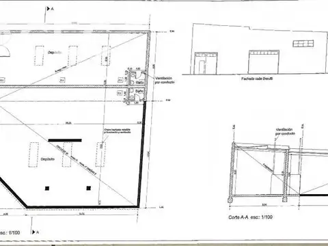
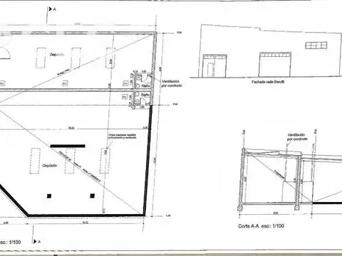
Ayacucho 3810 o biedma 315 (fracción estratégica en rosario) plano a disposición. Ubicado en ayacucho y biedma, o bien alem y biedma (a lo largo de toda la cuadra de biedma entre alem y ayacucho), a 2 cuadras de boulevard seguí y a 8/9 cuadras de la av. Circunvalación (o acceso ribereño sur) que es donde está el puerto rosario y la salida a buenos aires, córdoba, santa fe, etcétera. El acceso a av. Circunvalación es por dos calles amplias y en muy buen estado. El inmueble abarca media manzana aproximadamente, da a 3 calles, ayacucho, biedma y alem con 2 entradas independientes. Una por ayacucho y otra por biedma. Superficie: 4693 metros cuadrados. Superficie cubierta, aproximadamente 250 metros cuadrados. Entre oficinas, casa de casero, vestuarios, etcétera (estado a remodelar). Superficie semi-cubierta, aproximadamente 800 metros cuadrados, como para ingresar vehículos y que queden protegidos bajo techo. El resto de la superficie está descubierta. El piso está formado en algo más del 60% por hormigón y el resto del piso (del lado de alem) está hecho de un mejorado de piedras que hace al terreno que sea absorbente. Instalaciones: oficinas constituidas por 4 privados, una sala de espera, una sala de directorio, una sala administrativa, cocina y baño. Varios salones depósitos. Una casa de casero con cocina, comedor, baño y cochera. Baños y vestuarios. 4 fosas. (3 grandes y una mediana) galpones semi-cubiertos con techo de chapa; con más de la mitad nuevo y el resto en muy buen estado. Cabreadas de acero. 3 tanques de almacenamiento / carga de combustible (42.000 metros cúbicos en total). Surtidor de combustible de alto rendimiento. Lavadero con pistón neumático y manguera a presión. Cloacas. Electricidad. Gas natural. Si querés saber el valor de tu propiedad, contactate con nosotros y tasamos tu propiedad en 48hs.

Contactar
1/18
Visto

0

USD 100.000

Ayolas esquina Berutti

Galpón en Venta en La Tablada, Rosario

ACEC PROPIEDADES
  • 392 m² cubie.
  • 35 años
  • 2 baños

Venta / Permuta - Galpón - barrio La Tablada

Galpón en venta/ permuta ... Excelente esquina en zona sur de rosario a una cuadra de circunvalación ubicado en el corazón productivo de zona sur, este inmueble ofrece excelente conectividad y versatilidad para diversos rubros industriales o comerciales. Se trata de una estructura sólida con amplias dimensiones, ideal para logística, taller o depósito. Superficie: por calle ayolas encierra unos 18,68 m2. Por calle berutti aprox. 21 m2. Ingreso: portón con una alzada de piso a techo de aprox. 5,20 m. Apto ingreso de camiones/ utilitarios. Servicios: cuenta con los servicios básicos. La zona con acceso a todos los servicios esenciales. Ubicación estratégica: rápido acceso a circunvalación y zona portuaria condiciones de permuta departamentos ( de 1 o 2 dormitorios) a evaluar estado y zonificación de los mismos contactanos. Propiedad ubicada en el límite entre barrio ludueña sur y el área de influencia del barrio larrea. Dinámica comercial: los comercios son de escala barrial desde almacenes, kioscos y fundamentalmente talleres mecánicos. La información, medidas provistas, deberán ratificarse con la documentación correspondiente y no comprometen contractualmente a nuestra inmobiliaria. Así mismo los gastos expresados refieren a la última información recabada y deben confirmarse.

Contactar
1/18
Visto

0

USD 50.000

Berutti esquina Ayolas

Galpón en Venta en La Tablada, Rosario

ACEC PROPIEDADES
  • 200 m² cubie.
  • 35 años
  • 2 baños

Venta / Permuta - Galpón - barrio La Tablada

Galpón en venta/ permuta ... Excelente esquina en zona sur de rosario a una cuadra de circunvalación ubicado en el corazón productivo de zona sur, este inmueble ofrece excelente conectividad y versatilidad para diversos rubros industriales o comerciales. Se trata de una estructura sólida con amplias dimensiones, ideal para logística, taller o depósito. Superficie: encierra una superficie de 200 m2. Con opción de adquirir lote continuo, conformando la totalidad de la esquina. Ingreso: portón con una alzada de piso a techo de aprox. 5,20 m. Apto ingreso de camiones/ utilitarios. Servicios: cuenta con los servicios básicos. La zona con acceso a todos los servicios esenciales. Ubicación estratégica: rápido acceso a circunvalación y zona portuaria condiciones de permuta departamentos ( de 1 o 2 dormitorios) a evaluar estado y zonificación de los mismos. Vehículos . Abiertos a escuchas de ofrecimiento en permuta. Contactanos. No te pierdas esta oportunidad propiedad ubicada en el límite entre barrio ludueña sur y el área de influencia del barrio larrea. Dinámica comercial: los comercios son de escala barrial desde almacenes, kioscos y fundamentalmente talleres mecánicos. La información, medidas provistas, deberán ratificarse con la documentación correspondiente y no comprometen contractualmente a nuestra inmobiliaria. Así mismo los gastos expresados refieren a la última información recabada y deben confirmarse.

Contactar