(1) (1)
  • Monte Castro

Venta

Galpón

Precio

Buscar solo avisos en moneda:

Dorm|Amb

Más filtros Más filtros

Características

Superficie cubierta

Nombre de calle y altura

Fot

Servicios

Tipo de anunciante

22 Galpones en Venta en Monte Castro

1/46
Visto

3

USD 900.000

Santo Tome 5400

Galpón en Venta en Monte Castro, Capital Federal

Dg-inmobiliaria
  • 1.100 m² cubie.
  • 5 baños
  • Excelente

Edificio ind. de tres pisos en Monte Castro

Oportunidad única en monte castro: un edificio industrial de tres niveles desarrollado sobre terreno amplio, listo para ocupación inmediata. Ideal tanto para uso industrial liviano, depósito, operaciones logísticas o oficinas corporativas con showroom integrado. Ideal para: - empresa que requiere combinar oficinas admistrativas + operación en terreno (depósito + logística). - Marca que busca showroom de exhibición + depósito en la ciudad. - Inversor que busca una propiedad con buen perfil de reconversión o renta. -Uso profesional o artístico que requiere espacios amplios de doble altura y gran circulación características destacadas: - superficie total de 1.100 m² cubiertos, distribuidos en pb + primer piso + segundo piso. - Planta baja: acceso de camiones/cocheras, entrada vehicular, montacarga, área de depósito libre con patio/luz al contrafrente. - Primer piso: oficinas al frente + planta libre al contrafrente; baños instalados. - Segundo piso: planta libre frente y contrafrente para adecuar según necesidad (ideal expansión oficinas, laboratorios, showroom). Servicios completos: agua corriente, cloacas, electricidad industrial. Montacarga y estructura lista para uso intensivo. Estado: excelente. Listo para instalar operación. Zonificación estratégica: en caba, con buena accesibilidad a avenida general paz y demás accesos. Coordiná tu visita hoy para conocer en detalle la planta, la altura libre, accesos y posibilidades de adaptación. Este tipo de activos no abundan. Acepta permuta servicios: cloacas otros servicios: montacarga, oficina

Contactar
1/16
Visto

1

USD 200.000

Sanabria al 2100

Galpón en Venta en Monte Castro, Capital Federal

  • 176 m² cubie.
  • 8 mts Frente
  • 20 mts Fondo

Deposito en Monte Castro

Venta de local comercial en sanabria 2100, monte castro este local comercial en sanabria 2100, monte castro es una excelente oportunidad para establecer tu negocio en una zona estratégica. Doble cortina metálica. Aquí tienes una descripción detallada de la propiedad: superficie total: aproximadamente 176 m2, ofreciendo un amplio espacio para diversas actividades comerciales. Taller mecanico, anteriormente se alquilaba andamios y escaleras frente: 8,70 metros, proporcionando una buena visibilidad y acceso desde la calle. Fondo: 20,32 metros, permitiendo una distribución eficiente del espacio interior. Cocina: equipada para satisfacer las necesidades básicas de preparación de alimentos o como área de descanso para el personal. Oficina: un espacio dedicado para tareas administrativas o como sala de reuniones. Baño completo: funcional, adecuado para el uso de empleados y clientes. Descripción del barrio monte castro es un barrio residencial y comercial en la ciudad de buenos aires, conocido por su ambiente tranquilo y familiar. La ubicación en sanabria 2100 ofrece varias ventajas: comercios y servicios: la zona cuenta con una variedad de tiendas, supermercados, restaurantes y otros servicios esenciales a poca distancia. Transporte público: fácil acceso a varias líneas de colectivos, como las líneas 106, 114, 135, 85 y 531, que conectan con diferentes partes de la ciudad. Espacios verdes: cerca de plazas y parques, proporcionando áreas para el esparcimiento y actividades al aire libre. Este local comercial es ideal para una amplia gama de negocios, desde tiendas minoristas hasta oficinas profesionales. La combinación de un espacio amplio y bien distribuido con una ubicación estratégica en monte castro lo convierte en una opción atractiva para inversores y emprendedores. Te gustaría más información o coordinar una visita? Los metros son aproximados, comercializado por david blanco con matrícula del c.U.C.I.C.B.A. N 8573, tomo 2, folio 20 y matricula cmo n2884 tomo 6, folio 62, adherida al sistema coldwell banker lion team. C.U.I.T.: -7, av. Triunvirato 5177 ciudad autónoma de buenos aires y botticelli 4727, hurlingham, provincia de buenos aires. ? 2025 coldwell banker. Todos los derechos reservados. Coldwell banker y los logotipos de coldwell banker son marcas de servicio de propiedad de coldwell banker real estate llc. El sistema coldwell banker ? Está compuesto por oficinas propias de propiedad de una subsidiaria de anywhere advisors llc y por oficinas adheridas al sistema coldwell banker que son de propiedad y operación independientes. En cumplimiento con la normativa vigente, los asistentes no ejercen el corretaje inmobiliario. La intermediación y conclusión de las operaciones inmobiliarias es desarrollada por martilleros y corredores públicos. Esta oficina inmobiliaria se encuentra a cargo de david blanco con matrícula del c.U.C.I.C.B.A. N 8573, tomo 2, folio 20 y matricula - cmo n2884 tomo 6, folio 62, adherida al sistema coldwell banker lion team. C.U.I.T.: -7, av. Triunvirato 5177, piso 5, villa urquiza, ciudad autónoma de buenos aires.

Contactar
1/8
Visto

1

USD 520.000

Miranda al 4600

Galpón en Venta en Monte Castro, Capital Federal

  • 1.000 m² cubie.
  • 8 mts Frente
  • 56 mts Fondo

Deposito Galpon Lote en Monte Castro

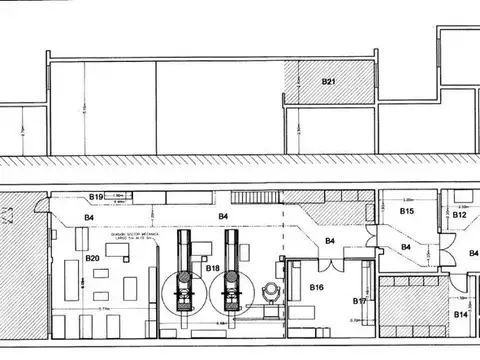
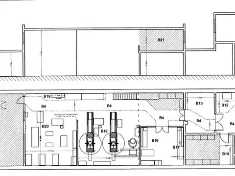
_ Ph en block de grandes dimensiones en espectacular zona de monte castro, tiene dos pisos como ph mas galpón en planta baja, muy buenas dimensiones. Galpón. Se trata de un galpón industrial con techo de losa de 200m2. Aprox. Luz trifasica. Oficina, cocina y baños.- Casa .-Se trata de una casa en planta alta con gran galpón en planta baja para múltiples rubros comerciales, sobre un lote de 8.65m de frente por 49m de fondo.- La propiedad de planta alta esta alquilada. . Ingresamos a hall recibidor de 2.55m x 3,14m hacia la calle tenemos living comedor de 4.88m x 3,63m. A continuación dormitorio principal de 3..80m x 4,01m más vestidor de 3,37m x 2,41m. Baño en suite de 2,56m x 2,50 metros . Balcón corrido a la calle del living comedor al dormitorio principal. Luego por pasillo de distribución de 1m x 10,87m ingresamos a segundo dormitorio de 3,62m x 3,55m . Otro baño completo de 2,47m x 2,25m. Tercer dormitorio de 3,63m x 3,55m. Lavadero de 2,48m x 1,40m.- Toilette de visitas. Gran cocina comedor de lujo de 7,54m x 5,29. Con salida a coqueto patio de 8,32m x 7,78m. Terraza. Quincho cerrado de 4,06m x 3,23m. Habitación de la terraza de 3m x 3m.. Detalles de calidad de materiales.-. Toda la cañeria de agua fria y caliente nueva desde el medidor de la calle al tanque de agua, termofusión marca aqua sistem. El recorrido de las cañerias es aéreo por el entretecho, permitiendo así el recambio de accesorios fácilmente. El tanque de agua es de 2000 litros, comercializamos este galpón el cual es ideal para empresas que necesiten un amplio espacio bien ubicado para actividades , logísticas o de almacenamiento. La combinación de su ubicación estratégica, infraestructura y servicios lo convierten en una opción excelente para diversas pymes, empresas y o gerenciamiento de comercios como puede ser un supermercado. Asimismo la opción de oficiar como deposito para acopio de insumos y o materiales. Excelente posibilidad para empresas medianas para poder gerenciar su negocio utilizando las plantas inferiores como taller y las plantas medias como superiores donde poder emplazar la parte de oficinas y corporativa. A continuación una breve descripción de las plantas : * planta baja: ingreso principal, portón de ingreso-egreso para vehículos con potencial funcionalidad de descargar y cargar (insumos, materiales ). Esta planta cuenta con su respectivo jardín con parrilla .Desde esta planta accedemos al sótano de la propiedad. En esta planta disponemos de espacio de comunicación aérea con el segundo piso siendo ideal para la implementacion de montacargas. *Primer piso: planta de deposito y almacenamiento, el cual puede oficiar de espacio para la implementación de maquinas livianas. Este espacio cuenta con baño-ducha y balcón con vista a la plaza. *Segundo piso: espacio consignado a 5 oficinas las cuales pueden oficiar de sala de juntas, showroom y despachos. En esta planta contamos con 3 baños. Asimismo contamos con aire acondicionado central. *Tercer piso: espacio de cocina ,comedor y su respectivo baño. Desde aquí se accede a la terraza del edificio. Todas las plantas cuentan con sus respectivas escaleras de comunicación entre los pisos. Servicios: *agua *electricidad esta propiedad es una excelente oportunidad por combinar generosos espacio muy bien distribuidos donde se pueda combinar la parte operativa con la parte de oficina , nucleando todo el proceso de la empresa en el mismo lugar. Te invito a concertar una entrevista y conocer esta propiedad los metros son aproximados, comercializado por david blanco con matrícula del c.U.C.I.C.B.A. N 8573, tomo 2, folio 20 y matricula cmo n2884 tomo 6, folio 62, adherida al sistema coldwell banker lion team. C.U.I.T.: -7, av. Triunvirato 5177 ciudad autónoma de buenos aires y botticelli 4727, hurlingham, provincia de buenos aires. ? 2025 coldwell banker. Todos los derechos reservados. Coldwell banker y los logotipos de coldwell banker son marcas de servicio de propiedad de coldwell banker real estate llc. El sistema coldwell banker ? Está compuesto por oficinas propias de propiedad de una subsidiaria de anywhere advisors llc y por oficinas adheridas al sistema coldwell banker que son de propiedad y operación independientes. En cumplimiento con la normativa vigente, los asistentes no ejercen el corretaje inmobiliario. La intermediación y conclusión de las operaciones inmobiliarias es desarrollada por martilleros y corredores públicos. Esta oficina inmobiliaria se encuentra a cargo de david blanco con matrícula del c.U.C.I.C.B.A. N 8573, tomo 2, folio 20 y matricula - cmo n2884 tomo 6, folio 62, adherida al sistema coldwell banker lion team. C.U.I.T.: -7, av. Triunvirato 5177, piso 5, villa urquiza, ciudad autónoma de buenos aires.

Contactar
1/18
Visto

0

USD 990.000

Santo Tome al 5400

Galpón en Venta en Monte Castro, Capital Federal

Cuno Propiedades
  • 1.200 m² cubie.
  • 8 mts Frente
  • 35 mts Fondo

Depósito en Monte Castro

Santo tome entre virgilio y moliere con habilitacion y montacargas ! A solo 1 cuadra de lope de vega y a 3 de álvarez jonte edificio comercial/galpón reciclado a nuevo, con excelente ubicación a metros de av. Gral paz. Acceso rápido a principales avenidas.Este edificio se encuentra completamente renovado, con materiales de alta calidad y optimizado para diferentes usos comerciales. Ideal para empresas que buscan un espacio amplio, moderno y bien conectado. Planta baja (pb): 300m2 ingreso independiente con puerta de doble altura y acceso vehicular. Espacio para estacionar hasta 4/5 autos. Cortina eléctrica nueva, recién instalada. Baño adaptado para personas con discapacidad + toilette adicional. Escalera interna con acceso a los pisos superiores. Ascensor montacargas con paradas en todos los niveles. Primer piso: 300m2 tres amplias oficinas, dos de ellas con frente a la calle y salida a balcón. Baño completo. Cocina equipada con mesada. Sector de vestuarios con dos baños diferenciados (hombre/mujer). Gran depósito libre en el contrafrente. Segundo piso: 300m2 toilette. Espacio amplio para depósito o posibilidad de ampliación con más oficinas. Grandes ventanales que proporcionan excelente ventilación natural y abundante luz. Tercer piso: 300m2 100% destinado a depósito, ideal para almacenamiento o logística. Equipamiento y condiciones generales: instalación eléctrica completamente nueva con sistema trifásico. Sistema de incendio actualizado según normativas vigentes. Pintura renovada en todo el edificio, tanto en el interior como en el exterior. Cemento alisado a nuevo en todo el inmueble. Iluminación moderna y eficiente, con lámparas de bajo consumo. Habilitación vigente para actividades comerciales.

Contactar
1/79
Visto

0

USD 1.500.000

Marcos Paz 1900

Galpón en Venta en Monte Castro, Capital Federal

REMAX Amazing
  • 1.900 m² cubie.
  • 39 años
  • Muy Bueno

DEPOSITO + OFICINAS 1900 m2 EN VENTA MONTECASTRO

Corredor responsable: daniel acosta cpi 2406 / cmcpsi 5953 - contacto: cesar augusto trivilino venta industria deposito y oficinas compementarias \"mixtura 2\" con una superficie total de 1900 m2, sobre lote de 1194 m2 en planta baja cuenta con entrada principal y puesto para oficina de seguridad con baño, más varias oficinas complementarias con una superficie de 210,5 m2 , depósito de 955m2 con entrada vehicular para descarga de mercadería , vestuarios y baños en el primer piso que se acceden desde el depósito. En primer piso cuenta con amplia oficina abierta para puestos de trabajo, 3 oficinas/ salas cerradas y 3 oficinas para el sector administrativo, baño completo para mujeres y caballeros. Superficie 1° piso de 239,08 m2, segundo piso de 104 ,43 m3 de oficinas, más amplia sala de reunión y baño completo. El tercer piso dispone de 5 oficinas, cocina, comedor, office y 2 baños completos, luego podemos acceder a gran terraza donde nos encontramos con los tanques elevados y cisterna en planta baja con bombas. Cuenta con parrillas. Todo el predio está equipado con hidrantes con tanque de reserva para 10.000 lts de agua, puerta contra incendios. Muy buenas condiciones y en funcionamiento. Coordina tu visita! Rau s.R.L. No ejerce el corretaje inmobiliario. El presente sitio web es una plataforma en donde cada oficina inmobiliaria independiente que contrata los servicios re/max puede publicar las propiedades a su cargo. Cada oficina es de propiedad y gestión independiente, por lo que rau s.R.L. No interviene en los datos de la publicación, en la operación inmobiliaria, ni en la confección y/o firma del boleto de compraventa y/o escritura y/o contrato de alquiler. En cumplimiento de las leyes vigentes que regulan el corretaje inmobiliario, ley nacional 25.028, ley 22.802 de lealtad comercial, ley 24.240 de defensa al consumidor, las normas del código civil y comercial de la nación y constitucionales, los agentes/gestores no ejercen el corretaje inmobiliario. Todas las operaciones inmobiliarias son objeto de intermediación y conclusión por parte del corredor público inmobiliario colegiado a cargo de la publicación, cuyos datos se exhiben en la presente. La presente publicación describe las características esenciales del inmueble, debiéndose consultar al corredor público inmobiliario responsable de la operación por la eventual actualización de las medidas, descripciones arquitectónicas y funcionales, valores de expensas, servicios, impuestos, precios y demás información, cuyos valores son aproximados. El inmueble no es accesible para personas con discapacidades físicas. Comprá la casa que querés! No la que podés. Accedé a un préstamo por hasta el 30% del valor de esta propiedad. Simulá tu cuota en lendar

Contactar
1/12
Visto

0

USD 68.000

JUAN AGUSTIN GARCIA 4900

Galpón en Venta en Monte Castro, Capital Federal

BLANCO VAZQUEZ SRL
  • 22,27 m² cubie.
  • 7 años
  • Muy Bueno

VENTA DEPOSITO/LOCAL EN MONTE CASTRO

Corredor responsable: blanco vazquez s.R.L. - Maria eugenia blanco cucicba 7834 / andrea vazquez cmcpsi 6257 - contacto: javier lionel salamone venta de deposito/local en muy bueno estado, amplio con persiana, al frente con entrada independiente (doble ingreso), bajas expensas, tiene las conexiones para agregar un bajo mesada para armar la cocina, actualmente se encuentra alquilado, esta la posiblidad de venderlo con renta (muy buen inquilino), funciona un centro de estetica vehicular. El edificio cuenta con sum en el ultimo piso con parrilla. Transportes cercanos colectivos: 25, 47, 107 datos útiles barrio: monte castro comuna: comuna 10 área hospitalaria: htal. Velez sarsfield rau s.R.L. No ejerce el corretaje inmobiliario. El presente sitio web es una plataforma en donde cada oficina inmobiliaria independiente que contrata los servicios re/max puede publicar las propiedades a su cargo. Cada oficina es de propiedad y gestión independiente, por lo que rau s.R.L. No interviene en los datos de la publicación, en la operación inmobiliaria, ni en la confección y/o firma del boleto de compraventa y/o escritura y/o contrato de alquiler. En cumplimiento de las leyes vigentes que regulan el corretaje inmobiliario, ley nacional 25.028, ley 22.802 de lealtad comercial, ley 24.240 de defensa al consumidor, las normas del código civil y comercial de la nación y constitucionales, los agentes/gestores no ejercen el corretaje inmobiliario. Todas las operaciones inmobiliarias son objeto de intermediación y conclusión por parte del corredor público inmobiliario colegiado a cargo de la publicación, cuyos datos se exhiben en la presente. La presente publicación describe las características esenciales del inmueble, debiéndose consultar al corredor público inmobiliario responsable de la operación por la eventual actualización de las medidas, descripciones arquitectónicas y funcionales, valores de expensas, servicios, impuestos, precios y demás información, cuyos valores son aproximados. El inmueble no es accesible para personas con discapacidades físicas. Comprá la casa que querés! No la que podés. Accedé a un préstamo por hasta el 30% del valor de esta propiedad. Simulá tu cuota en lendar

Contactar
1/50
Visto

0

USD 549.500

Elpidio González 4700

Galpón en Venta en Monte Castro, Capital Federal

REMAX MIRAGE
  • 607 m² cubie.
  • 44 años
  • 2 baños

VENTA FABRICA MONTE CASTRO OPORTUNIDAD

Corredor responsable: raul nerguizian cpi 4272 - cmzc 625 - contacto: agustín lamas venta fabrica monte castro oportunidad.- Ubicada a 4 cuadras de la plaza monte castro. Esta propiedad, antiguamente una fábrica de maquinaria para análisis médicos, dispone de amplios espacios ideales tanto para un galpón/depósito, como para la instalación de un proyecto productivo. El inmueble se desarrolla en planta baja (área de producción y depósito) y primer piso (área administrativa). Toda la instalación eléctrica se encuentra en excelente estado. Su sector de carga y descarga cuenta con una grua para 2 toneladas. El sector de taller/producción cuenta con un semipiso para depósito adicional. El sector administrativo cuenta con sala de reuniones, y separaciones para diferentes oficinas. Así como baños propios. Actualmente la propiedad cuenta con antena propia y puede solicitarse un excelente sistema de seguridad. Excelente zonificación, con una gran variedad de rubros a habilitar y posibilidad de expandir la construcción actual de la propiedad. No dudes en contactarnos! Rau s.R.L. No ejerce el corretaje inmobiliario. El presente sitio web es una plataforma en donde cada oficina inmobiliaria independiente que contrata los servicios re/max puede publicar las propiedades a su cargo. Cada oficina es de propiedad y gestión independiente, por lo que rau s.R.L. No interviene en los datos de la publicación, en la operación inmobiliaria, ni en la confección y/o firma del boleto de compraventa y/o escritura y/o contrato de alquiler. En cumplimiento de las leyes vigentes que regulan el corretaje inmobiliario, ley nacional 25.028, ley 22.802 de lealtad comercial, ley 24.240 de defensa al consumidor, las normas del código civil y comercial de la nación y constitucionales, los agentes/gestores no ejercen el corretaje inmobiliario. Todas las operaciones inmobiliarias son objeto de intermediación y conclusión por parte del corredor público inmobiliario colegiado a cargo de la publicación, cuyos datos se exhiben en la presente. La presente publicación describe las características esenciales del inmueble, debiéndose consultar al corredor público inmobiliario responsable de la operación por la eventual actualización de las medidas, descripciones arquitectónicas y funcionales, valores de expensas, servicios, impuestos, precios y demás información, cuyos valores son aproximados. El inmueble no es accesible para personas con discapacidades físicas. Comprá la casa que querés! No la que podés. Accedé a un préstamo por hasta el 30% del valor de esta propiedad. Simulá tu cuota en lendar

Contactar
1/21
Visto

0

USD 498.000

Sanabria 2300

Galpón en Venta en Monte Castro, Capital Federal

  • 406 m² cubie.
  • 16 años
  • 3 baños

Venta local en Monte Casto de 260 m + 2 dtos.

Corredor responsable: maria montserrat vera csi 5971 / gustavo alejandro browarski cpi 1674 - contacto: claudia karina sosa propiedad multifuncional en monte castro – ideal inversores excelente inmueble sobre lote de 260 m², con 406 m² cubiertos, 35 m² semicubiertos y 120 m² descubiertos. En planta baja cuenta con local/cochera con capacidad para 15 vehículos, sin columnas, ideal para renta o uso comercial. Sobre el local se desarrollan dos departamentos con entrada común: • primer piso: vivienda muy luminosa, 4 dormitorios, 2 baños, gran patio, quincho con parrilla y balcón. • Segundo piso: departamento independiente, 3 dormitorios, patio y lavadero. La propiedad dispone de 3 baños en total y ofrece excelente potencial de renta o uso mixto (comercial + residencial). Ubicada en una zona estratégica de monte castro (caba), con buenos accesos y servicios. Rau s.R.L. No ejerce el corretaje inmobiliario. El presente sitio web es una plataforma en donde cada oficina inmobiliaria independiente que contrata los servicios re/max puede publicar las propiedades a su cargo. Cada oficina es de propiedad y gestión independiente, por lo que rau s.R.L. No interviene en los datos de la publicación, en la operación inmobiliaria, ni en la confección y/o firma del boleto de compraventa y/o escritura y/o contrato de alquiler. En cumplimiento de las leyes vigentes que regulan el corretaje inmobiliario, ley nacional 25.028, ley 22.802 de lealtad comercial, ley 24.240 de defensa al consumidor, las normas del código civil y comercial de la nación y constitucionales, los agentes/gestores no ejercen el corretaje inmobiliario. Todas las operaciones inmobiliarias son objeto de intermediación y conclusión por parte del corredor público inmobiliario colegiado a cargo de la publicación, cuyos datos se exhiben en la presente. La presente publicación describe las características esenciales del inmueble, debiéndose consultar al corredor público inmobiliario responsable de la operación por la eventual actualización de las medidas, descripciones arquitectónicas y funcionales, valores de expensas, servicios, impuestos, precios y demás información, cuyos valores son aproximados. El inmueble no es accesible para personas con discapacidades físicas. Comprá la casa que querés! No la que podés. Accedé a un préstamo por hasta el 30% del valor de esta propiedad. Simulá tu cuota en lendar

Contactar
1/36
Visto

0

USD 395.000

Pasaje Luis Braille 5600

Galpón en Venta en Monte Castro, Capital Federal

REMAX MIRAGE
  • 860 m² cubie.
  • 85 años
  • A Refac.

VENTA DEPOSITO EN 5 PLANTAS C/MONTACARGA

Corredor responsable: raul nerguizian cpi 4272 - cmzc 625 - contacto: raul quereilhac venta depósito 860 m2 5 plantas monte castro capital federal depósito industrial estratégicamente ubicado en monte castro, capital federal, sobre pasaje luis braille. Propiedad de 860 m² construidos con potencial comercial y logístico excepcional, desarrollada en cinco plantas completamente funcionales. Inmueble construido en 1941, con estructura sólida y versatilidad para múltiples rubros comerciales e industriales. Zona categorizada como mixtura 1, permitiendo habilitaciones para diversos usos comerciales, gastronómicos, culturales y profesionales. Características principales: montacarga para ascenso y descenso entre plantas, portón de acceso para vehículos medianos, entradas independientes para oficinas y depósito. Cada planta ofrece espacios amplios y adaptables con diferentes configuraciones. Distribución por plantas: planta baja: acceso principal con portón para cargas/descargas primer piso: superficie integrada con potencial de subdivisión segundo piso: espacio versátil para adaptación comercial tercer piso: área amplia configurable según necesidades cuarto piso: cocina instalada con estanterías quinto piso: salida a dos terrazas, con antena en terraza superior con contrato vigente infraestructura complementaria: - sala de máquinas - conexión para gas industrial - cisterna en funcionamiento - siete baños distribuidos - oficina administrativa ubicación con excelente conectividad, próximo a vías principales como avenida juan b. Justo, avenida general paz y acceso oeste. Acceso ágil mediante transporte público. Propiedad a refaccionar, con potencial de inversión y desarrollo inmobiliario. Ideal para empresas que requieran integrar oficinas con depósito en una ubicación estratégica de capital federal. Superficie total: 860 m² construidos sobre terreno de 175 m². Rau s.R.L. No ejerce el corretaje inmobiliario. El presente sitio web es una plataforma en donde cada oficina inmobiliaria independiente que contrata los servicios re/max puede publicar las propiedades a su cargo. Cada oficina es de propiedad y gestión independiente, por lo que rau s.R.L. No interviene en los datos de la publicación, en la operación inmobiliaria, ni en la confección y/o firma del boleto de compraventa y/o escritura y/o contrato de alquiler. En cumplimiento de las leyes vigentes que regulan el corretaje inmobiliario, ley nacional 25.028, ley 22.802 de lealtad comercial, ley 24.240 de defensa al consumidor, las normas del código civil y comercial de la nación y constitucionales, los agentes/gestores no ejercen el corretaje inmobiliario. Todas las operaciones inmobiliarias son objeto de intermediación y conclusión por parte del corredor público inmobiliario colegiado a cargo de la publicación, cuyos datos se exhiben en la presente. La presente publicación describe las características esenciales del inmueble, debiéndose consultar al corredor público inmobiliario responsable de la operación por la eventual actualización de las medidas, descripciones arquitectónicas y funcionales, valores de expensas, servicios, impuestos, precios y demás información, cuyos valores son aproximados. El inmueble no es accesible para personas con discapacidades físicas. Comprá la casa que querés! No la que podés. Accedé a un préstamo por hasta el 30% del valor de esta propiedad. Simulá tu cuota en lendar

Contactar