USD 240.000
General Manuel Belgrano 21800
Terreno en Venta en Ituzaingo, Buenos Aires
OPORTUNIDAD INVERSOR LOTE A METROS DE ITUZAINGO
Corredor responsable: silvana inés palini cmcpm 2955 cpi 8862 -
contacto: florencia ponce
lote galpon en venta de 4 ambientes en ituzaingo, buenos aires
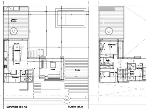
esta propiedad 475m2 se encuentra prácticamente demolida en su interior. El inmueble cuenta con un local en el frente que anteriormente funcionaba como una granja y una casa con losa de hormigón de 6 metros de altura, living comedor, cocina, dos dormitorios y baño, se pensó para instalar una cámara frigorífica. Acepta permutas y ofrece financiamiento.
El terreno es ideal para constructoras, ya que se puede vender en bloque junto a un lote contiguo de iguales dimensiones, sumando un total de 950 m2. Además, la normativa permite construir hasta 8 pisos en el predio. El propietario deja todos los materiales necesarios para terminarlo que lo que representa una ayuda muy importante para quienes lo adquieran y deseen reciclarlo a su gusto.
En el entrepiso encontramos un departamento a terminar, de aproximadamente 60 m2, que incluye instalaciones para baño, living, cocina y dos dormitorios. Ademas cuenta con dos amplias escaleras de material, una que lleva al segundo piso y otra a la terraza desde donde se puede apreciar la vista panorámica de la estación de ituzaingó. También tiene 50 m2 de parque y un galpón de grandes dimensiones para espacio de guardado.
Mira esta increíble propiedad en los videos
https:
https:
los datos técnicos de la propiedad son:
- fot: 3
- fos: 0.6
- superficie cubierta: 320,16 m2
- superficie descubierta: 245,60 m2
- superficie total: 475,76 m2
*7m2 por 5m2 correspondientes al local.
*8,66 por 22m2 (pb) a demoler.
*60m2 (planta alta) departamento.
*866 m2 por 4m2 de galpón
la ubicación es inmejorable, a metros del paso a nivel peatonal por donde cruzan quienes se dirigen al centro comercial de ituzaingó, con cafés, restaurantes y excelente acceso al transporte público.
Esta propiedad es ideal para inversores o desarrolladores que busquen un terreno con gran potencial de transformación, ya sea para usos comerciales, residenciales o mixtos. Así como también supermercados, pubs, restaurants, academias, peluquerías o para quienes quieren reciclar a su gusto.
No dejes de contactarme para hacer una visita .
Apta inversores
múdate a la vida que queres
si necesitas vender para adquirir la propiedad que estas buscando, te ayudamos con la operación encadenada.
También podes contar con créditos hipotecarios exclusivos para clientes re/max, los cuales te financian hasta el 30% del valor de la propiedad a adquirir, y podes cancelarlo hasta en 5 años, puedes simular tu crédito en, , consúltanos y te asesoramos
sabias que podemos representarte también como comprador?
Sea por algunas de las propiedades publicadas en la red remax o también con propiedades publicadas en cualquier otra inmobiliaria por eso....
En caso de que esta propiedad no cumpla con tus expectativas, podremos buscarte debido a tus requerimientos, esa propiedad que tanto estas buscando, filtrando en la red propia, externa o en posibles ingresos pendientes de publicación, siempre cuidando muy fuertemente tu operación para que compres y o vendas tranquilo y seguro, contáctanos al numero de contacto de esta publicación y te asesoramos personalmente...
Todas las medidas publicadas son aproximadas.
Equipo remax leven
silvana palini cpi8862-cmcpm2955
en cumplimiento de la leyes provinciales vigentes que regulan el corretaje inmobiliario, ley nacional 25.028, ley 22.802 de lealtad comercial, ley 24.240 de defensa al consumidor, las normas del código civil y comercial de la nación y constitucionales, los agentes/gestores no ejercen el corretaje inmobiliario. Todas las operaciones inmobiliarias son objeto de intermediación y conclusión por parte de los martilleros y corredores colegiados, cuyos datos se exhiben debajo del nombre de la inmobiliaria.
Rau s.R.L. No ejerce el corretaje inmobiliario. El presente sitio web es una plataforma en donde cada oficina inmobiliaria independiente que contrata los servicios re/max puede publicar las propiedades a su cargo. Cada oficina es de propiedad y gestión independiente, por lo que rau s.R.L. No interviene en los datos de la publicación, en la operación inmobiliaria, ni en la confección y/o firma del boleto de compraventa y/o escritura y/o contrato de alquiler. En cumplimiento de las leyes vigentes que regulan el corretaje inmobiliario, ley nacional 25.028, ley 22.802 de lealtad comercial, ley 24.240 de defensa al consumidor, las normas del código civil y comercial de la nación y constitucionales, los agentes/gestores no ejercen el corretaje inmobiliario. Todas las operaciones inmobiliarias son objeto de intermediación y conclusión por parte del corredor público inmobiliario colegiado a cargo de la publicación, cuyos datos se exhiben en la presente. La presente publicación describe las características esenciales del inmueble, debiéndose consultar al corredor público inmobiliario responsable de la operación por la eventual actualización de las medidas, descripciones arquitectónicas y funcionales, valores de expensas, servicios, impuestos, precios y demás información, cuyos valores son aproximados.
Comprá la casa que querés! No la que podés. Accedé a un préstamo por hasta el 30% del valor de esta propiedad. Simulá tu cuota en lendar