(1) (1)
  • Countries y Barrios Cerrados en Fisherton

Venta

Local

Precio

Buscar solo avisos en moneda:

Dorm|Amb

Más filtros Más filtros

Características

Superficie total

Nombre de calle y altura

Expensas

$

Tipo de urbanización

Plantas

Servicios

Tipos de ambientes

Estado de obra

Tipo de anunciante

11 Locales en Venta en Countries y Barrios Cerrados en Fisherton

1/14
Visto

1

USD 399.000

Schweitzer al 9100

Local en Venta en Aldea Lago, Countries y Barrios Cerrados en Fisherton

Di Maria Negocios Inmobiliarios
  • A Estrenar
  • 1 baño

Venta Locales a estrenar en el polo comercial de Fisherton

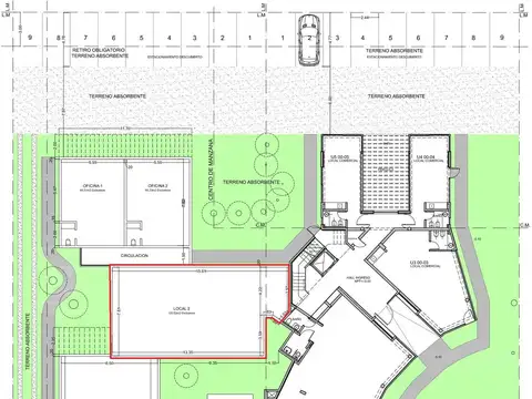
Locales comerciales en venta dentro del desarrollo buena vista aldea black, ubicados en el corazón de fisherton, frente al polo comercial greenes y rodeados de propuestas gastronómicas y de servicios. Su ubicación estratégica garantiza alto flujo peatonal y vehicular, ideal para emprendimientos que buscan visibilidad y una zona consolidada. El proyecto contempla planta baja más dos niveles superiores, con tres locales comerciales en la planta baja. Espacios amplios y vidriados, pensados para brindar máxima exposición y adaptarse a distintos rubros. El conjunto se integra con áreas verdes, circulaciones amplias y una arquitectura moderna diseñada para crear un entorno cómodo y atractivo. Un desarrollo ideal tanto para inversores como para quienes desean instalar su propio negocio en un área en constante crecimiento. Puntos importantes ubicación: greenes fisherton, a metros de locales gastronómicos, oficinas y comercios. Zona de alto tránsito y fuerte consolidación comercial. Proyecto: buena vista aldea black: planta baja con 3 locales comerciales + 2 niveles de oficinas. Concepto moderno, amplia vidriera y circulación verde. Observaciones: fideicomiso con unidades pensadas para diversos rubros. Terminaciones de calidad y excelente visibilidad. Etapa del desarrollo: en construcción. Método de pago: contado y financiación durante la obra mediante fideicomiso. El valor corresponde al local 1

Contactar
1/14
Visto

1

USD 380.000

Schweitzer al 9100

Local en Venta en Aldea Lago, Countries y Barrios Cerrados en Fisherton

Di Maria Negocios Inmobiliarios
  • A Estrenar
  • 1 baño

Venta de locales comerciales en desarrollo Aldea Fisherton

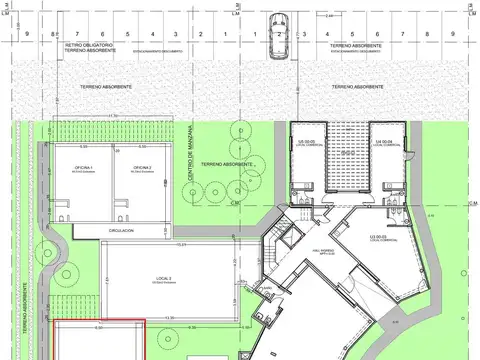
Locales comerciales en venta dentro del desarrollo buena vista aldea black, ubicados en el corazón de fisherton, frente al polo comercial greenes y rodeados de propuestas gastronómicas y de servicios. Su ubicación estratégica garantiza alto flujo peatonal y vehicular, ideal para emprendimientos que buscan visibilidad y una zona consolidada. El proyecto contempla planta baja más dos niveles superiores, con tres locales comerciales en la planta baja. Espacios amplios y vidriados, pensados para brindar máxima exposición y adaptarse a distintos rubros. El conjunto se integra con áreas verdes, circulaciones amplias y una arquitectura moderna diseñada para crear un entorno cómodo y atractivo. Un desarrollo ideal tanto para inversores como para quienes desean instalar su propio negocio en un área en constante crecimiento. Puntos importantes ubicación: greenes fisherton, a metros de locales gastronómicos, oficinas y comercios. Zona de alto tránsito y fuerte consolidación comercial. Proyecto: buena vista aldea black: planta baja con 3 locales comerciales + 2 niveles de oficinas. Concepto moderno, amplia vidriera y circulación verde. Observaciones: fideicomiso con unidades pensadas para diversos rubros. Terminaciones de calidad y excelente visibilidad. Etapa del desarrollo: en construcción. Método de pago: contado y financiación durante la obra mediante fideicomiso. El valor publicado corresponde al local 2.

Contactar
1/17
Visto

1

USD 50.000

Schweitzer al 9100

Local en Venta en Aldea Lago, Countries y Barrios Cerrados en Fisherton

Ramasco Padilla Propiedades
  • 18 m² Total
  • 1 planta

Local a la calle en Aldea - Fisherton

Aldea fisherton desing ii el nuevo anexo corporativo y comercial lindero a aldea fisherton design i en continuidad con la estética contemporánea y el concepto de diseño orgánico de aldea design i, nace un nuevo desarrollo lindero que amplía la propuesta comercial y profesional en el corazón de aldea. Ubicado estratégicamente en la esquina de schweitzer y saladillo, este nuevo edificio potencia el corredor urbano con mayor crecimiento del barrio. El proyecto: sobre un terreno en esquina un diferencial clave por su visibilidad y flujo peatonal el desarrollo se compone de: planta baja: 10 locales comerciales de diseño, con frentes vidriados y excelente exposición, ideales para servicios, gastronomía y retail de cercanía. Tres pisos superiores: plantas de oficinas desde 18 a 25 m2, funcionales y luminosas, perfectas para profesionales, freelancers, consultorios o pequeñas empresas. Al igual que aldea fisherton design i, el proyecto integra circulaciones fluidas, galerías abiertas 360, espacios verdes y lenguaje arquitectónico ondulante, generando una experiencia diferenciada en el entorno. Descripción de la unidad: p.B local 9. Local al frente con orientación oeste. Ambiente de 18,70 m2. Oficina vidriada con vistas hacia los jardines y pasajes peatonales en cada planta contamos con 1 ascensor de ultima generación. 2 baños y deposito. Ubicación estratégica: la esquina de schweitzer & saladillo es uno de los puntos más dinámicos de fisherton, rodeado de comercios, viviendas, colegios y accesos rápidos. Su cercanía inmediata con aldea fisherton design i crea un polo comercial y corporativo integrado, potenciando la demanda y el valor del conjunto. Financiación accesible: una oportunidad ideal para entrar al desarrollo con un ticket inicial bajo: anticipo de usd 5.000 saldo financiado en 30 cuotas un esquema pensado para que tanto inversores como usuarios finales puedan acceder a una propiedad con un potencial de renta y revalorización. Este nuevo proyecto mantiene el espíritu de aldea fisherton design i (materialidad, estética, funcionalidad) y amplía su oferta de locales y oficinas, creando un microdistrito moderno, verde y conectado, único en aldea - fisherton.

Contactar
1/10
Visto

1

USD 50.000

Schweitzer al 9100

Local en Venta en Aldea Lago, Countries y Barrios Cerrados en Fisherton

Ramasco Padilla Propiedades
  • 18 m² Total
  • 1 planta

Local comercial en Aldea con amplia financiación

Aldea fisherton desing ii el nuevo anexo corporativo y comercial lindero a aldea fisherton design i en continuidad con la estética contemporánea y el concepto de diseño orgánico de aldea design i, nace un nuevo desarrollo lindero que amplía la propuesta comercial y profesional en el corazón de aldea. Ubicado estratégicamente en la esquina de schweitzer y saladillo, este nuevo edificio potencia el corredor urbano con mayor crecimiento del barrio. El proyecto: sobre un terreno en esquina un diferencial clave por su visibilidad y flujo peatonal el desarrollo se compone de: planta baja: 10 locales comerciales de diseño, con frentes vidriados y excelente exposición, ideales para servicios, gastronomía y retail de cercanía. Tres pisos superiores: plantas de oficinas desde 18 a 25 m2, funcionales y luminosas, perfectas para profesionales, freelancers, consultorios o pequeñas empresas. Al igual que aldea fisherton design i, el proyecto integra circulaciones fluidas, galerías abiertas 360, espacios verdes y lenguaje arquitectónico ondulante, generando una experiencia diferenciada en el entorno. Descripción de la unidad: p.B local 8. Local al frente con orientación este. Ambiente de 18,70 m2. Oficina vidriada con vistas hacia los jardines y pasajes peatonales en cada planta contamos con 1 ascensor de ultima generación. 2 baños y deposito. Ubicación estratégica: la esquina de schweitzer & saladillo es uno de los puntos más dinámicos de fisherton, rodeado de comercios, viviendas, colegios y accesos rápidos. Su cercanía inmediata con aldea fisherton design i crea un polo comercial y corporativo integrado, potenciando la demanda y el valor del conjunto. Financiación accesible: una oportunidad ideal para entrar al desarrollo con un ticket inicial bajo: anticipo de usd 5.000 saldo financiado en 30 cuotas un esquema pensado para que tanto inversores como usuarios finales puedan acceder a una propiedad con un potencial de renta y revalorización. Este nuevo proyecto mantiene el espíritu de aldea fisherton design i (materialidad, estética, funcionalidad) y amplía su oferta de locales y oficinas, creando un microdistrito moderno, verde y conectado, único en aldea - fisherton.

Contactar
1/10
Visto

1

USD 50.000

Schweitzer al 9100

Local en Venta en Aldea Lago, Countries y Barrios Cerrados en Fisherton

Ramasco Padilla Propiedades
  • 18 m² Total
  • 1 planta

Local a la calle en Aldea - Fisherton

Aldea fisherton desing ii el nuevo anexo corporativo y comercial lindero a aldea fisherton design i en continuidad con la estética contemporánea y el concepto de diseño orgánico de aldea design i, nace un nuevo desarrollo lindero que amplía la propuesta comercial y profesional en el corazón de aldea. Ubicado estratégicamente en la esquina de schweitzer y saladillo, este nuevo edificio potencia el corredor urbano con mayor crecimiento del barrio. El proyecto: sobre un terreno en esquina un diferencial clave por su visibilidad y flujo peatonal el desarrollo se compone de: planta baja: 10 locales comerciales de diseño, con frentes vidriados y excelente exposición, ideales para servicios, gastronomía y retail de cercanía. Tres pisos superiores: plantas de oficinas desde 18 a 25 m2, funcionales y luminosas, perfectas para profesionales, freelancers, consultorios o pequeñas empresas. Al igual que aldea fisherton design i, el proyecto integra circulaciones fluidas, galerías abiertas 360, espacios verdes y lenguaje arquitectónico ondulante, generando una experiencia diferenciada en el entorno. Descripción de la unidad: p.B local 7. Local al frente con orientación oeste. Ambiente de 18,70 m2. Oficina vidriada con vistas hacia los jardines y pasajes peatonales en cada planta contamos con 1 ascensor de ultima generación. 2 baños y deposito. Ubicación estratégica: la esquina de schweitzer & saladillo es uno de los puntos más dinámicos de fisherton, rodeado de comercios, viviendas, colegios y accesos rápidos. Su cercanía inmediata con aldea fisherton design i crea un polo comercial y corporativo integrado, potenciando la demanda y el valor del conjunto. Financiación accesible: una oportunidad ideal para entrar al desarrollo con un ticket inicial bajo: anticipo de usd 5.000 saldo financiado en 30 cuotas un esquema pensado para que tanto inversores como usuarios finales puedan acceder a una propiedad con un potencial de renta y revalorización. Este nuevo proyecto mantiene el espíritu de aldea fisherton design i (materialidad, estética, funcionalidad) y amplía su oferta de locales y oficinas, creando un microdistrito moderno, verde y conectado, único en aldea - fisherton.

Contactar
1/10
Visto

1

USD 50.000

Schweitzer al 9100

Local en Venta en Aldea Lago, Countries y Barrios Cerrados en Fisherton

Ramasco Padilla Propiedades
  • 18 m² Total
  • 1 planta

Local comercial en Aldea con amplia financiación

Aldea fisherton desing ii el nuevo anexo corporativo y comercial lindero a aldea fisherton design i en continuidad con la estética contemporánea y el concepto de diseño orgánico de aldea design i, nace un nuevo desarrollo lindero que amplía la propuesta comercial y profesional en el corazón de aldea. Ubicado estratégicamente en la esquina de schweitzer y saladillo, este nuevo edificio potencia el corredor urbano con mayor crecimiento del barrio. El proyecto: sobre un terreno en esquina un diferencial clave por su visibilidad y flujo peatonal el desarrollo se compone de: planta baja: 10 locales comerciales de diseño, con frentes vidriados y excelente exposición, ideales para servicios, gastronomía y retail de cercanía. Tres pisos superiores: plantas de oficinas desde 18 a 25 m2, funcionales y luminosas, perfectas para profesionales, freelancers, consultorios o pequeñas empresas. Al igual que aldea fisherton design i, el proyecto integra circulaciones fluidas, galerías abiertas 360, espacios verdes y lenguaje arquitectónico ondulante, generando una experiencia diferenciada en el entorno. Descripción de la unidad: p.B local 6. Local al frente con orientación este. Ambiente de 18,10 m2. Oficina vidriada con vistas hacia los jardines y pasajes peatonales en cada planta contamos con 1 ascensor de ultima generación. 2 baños y deposito. Ubicación estratégica: la esquina de schweitzer & saladillo es uno de los puntos más dinámicos de fisherton, rodeado de comercios, viviendas, colegios y accesos rápidos. Su cercanía inmediata con aldea fisherton design i crea un polo comercial y corporativo integrado, potenciando la demanda y el valor del conjunto. Financiación accesible: una oportunidad ideal para entrar al desarrollo con un ticket inicial bajo: anticipo de usd 5.000 saldo financiado en 30 cuotas un esquema pensado para que tanto inversores como usuarios finales puedan acceder a una propiedad con un potencial de renta y revalorización. Este nuevo proyecto mantiene el espíritu de aldea fisherton design i (materialidad, estética, funcionalidad) y amplía su oferta de locales y oficinas, creando un microdistrito moderno, verde y conectado, único en aldea - fisherton.

Contactar
1/15
Visto

0

USD 119.000

Aldea | Schweitzer 9100 y Pje 1488 | Local

Local en Venta en Aldea Lago, Countries y Barrios Cerrados en Fisherton

SOLJAN INMOBILIARIA
  • 46 m² Total
  • 2 plantas
  • 1 baño

Local comercial en venta en Aldea Fisherton Buena vista black Excelente calidad

Local comercial en venta buena vista black aldea fisherton rosario la combinación perfecta entre las mejores opciones gastronómicas y un entorno de trabajo único. Ubicada en el corazón del distrito más exclusivo de aldea (schweitzer y pasaje 1488) en el polo comercial de greenes de fisherton, a metros de al volo café y de otros emprendimientos de oficinas. Buena vista black es un desarrollo mixto que combina locales gastronómicos en planta baja con oficinas de terminaciones premium distribuidas en los pisos superiores. Terminaciones: diseño elegante y distinguido. Mucho espacio de circulación verde, logrando un ambiente de tranquilidad y paz mientras uno trabaja. Gran palier con 1 ascensor, oficinas vidriadas, cada una cuenta con su propio baño privado y kitchenette, preinstalación para aire acondicionado, agua caliente por termotanque eléctrico, techo con yesería tradicional y pisos a confirmar por arquitecto (vinílico o porcelanato). Baños de diseño intimo con revestimiento en paredes, loza sanitaria y griferías de primeras marcas. Cocheras de cortesía publicas al frente del edificio. Cocheras disponibles a la venta dentro del desarrollo. Observaciones: edificio eléctrico. Algunas oficinas cuentan con balcón propio. Fecha de entrega estimada diciembre 2027 oportunidad, ya que se espera que su valor terminado sea de u$d 3000 m2 aproximadamente. Consutar por unidades disponibles y por financiacion imagenes de referencia de unidades terminadas de la misma constructora

Contactar