(1) (1)
  • Recoleta

Venta

Local

USD desde 315K

Buscar solo avisos en moneda:

Dorm|Amb

Más filtros Más filtros

Características

Superficie total

Nombre de calle y altura

Expensas

$

Tipo de urbanización

Plantas

Servicios

Tipos de ambientes

Estado de obra

Tipo de anunciante

82 Locales en Venta en Recoleta

1/11
Visto

440

USD 600.000 + $280.000 expensas

AV PUEYRREDON ESQUINA GUTIERREZ

Local en Venta en Recoleta, Capital Federal

PROMI Propiedades
  • 105 m² Total
  • 1 planta
  • 80 años

Venta Local de Esquina con Renta en Recoleta - Palermo

Oportunidad única! Se presenta en venta un local comercial en esquina, ubicado en una de las zonas más transitadas y comerciales de la ciudad, con un alto potencial de rentabilidad. Características destacadas: ubicación privilegiada: esquina estratégica en av. Pueyrredón 2100 y gutiérrez, con 30 metros de vidriera que garantizan visibilidad y exposición máxima. Espacios amplios: 90 m2 en planta baja + 15 m2 de entrepiso, totalizando 105 m2 cubiertos. Doble altura: aprovecha la altura de los techos que otorgan una sensación de amplitud y permiten usos versátiles para cualquier tipo de negocio. Rentabilidad asegurada: actualmente con una renta activa aproximada de $3,000 mensuales. (Renta real en renovacion de contrato u$5.000) ideal para todo tipo de rubro: apto para diversos usos comerciales, desde retail hasta oficinas o gastronomía. Precio de oportunidad: antes a u$ 990,000, ahora a solo u$ 600,000! Leíste bien! Una rebaja significativa para una propiedad de este calibre. No dejes pasar esta oportunidad de adquirir un local de alta exposición y rentabilidad en pleno corazón comercial de la ciudad. El mejor consejo de todos los tiempos - hay que ser codiciosos cuando los demás son miedosos y miedosos cuando los demás son codiciosos, o comprar cuando todos venden y vender cuando todos compran. W.B. Nota legal: las medidas y datos son a titulo informativo. Saul mizrahi / matricula 5599

Contactar
1/9
Visto

430

USD 790.000 + $70.000 expensas

Av. Coronel Diaz al 1400 esquina Soler

Local en Venta en Recoleta, Capital Federal

PROMI Propiedades
  • 146 m² Total
  • 50 años

Venta Local de Esquina con excelente Renta en Palermo

Inversión premium: local comercial en esquina estratégica con renta activaoportunidad única para inversores exigentes en una de las esquinas más codiciadas de la zona: av. Coronel díaz y soler. Este local refaccionado a nuevo, con 10 metros de vidriera lineal que maximizan la exposición, se presenta como una inversión segura y de alto rendimiento. Ubicación inmejorable: esquina de alta visibilidad, con altísima circulación peatonal y vehicular, y rodeado de la mayor densidad poblacional. Renta activa y sólida: posee un excelente inquilino actual, asegurando un flujo de ingresos inmediato. La renta actual es de $3.500, con un valor real de mercado proyectado de $5.000, lo que indica un significativo potencial de revalorización. Superficie ideal: 146m2 totales distribuidos en 110m2 en planta baja (ideales para la actividad comercial) y 36m2 de sótano (perfecto para depósito/oficina). Una inversión llave en mano con rentabilidad probada y potencial de crecimiento garantizado! El mejor consejo de todos los tiempos - hay que ser codiciosos cuando los demás son miedosos y miedosos cuando los demás son codiciosos, o comprar cuando todos venden y vender cuando todos compran. W.B. Nota legal: las medidas y datos son a titulo informativo. Saul mizrahi / matricula 5599

Contactar
1/5
Visto

200

USD 500.000 + $280.000 expensas

Av. Pueyrredon al 1000

Local en Venta en Recoleta, Capital Federal

PROMI Propiedades
  • 150 m² Total
  • 2 plantas
  • A Estrenar

Venta Local con Renta en Recoleta

Excelente oportunidad de inversión: local de 150 m2 en pueyrredón y córdoba este local comercial se ubica en una esquina de alto valor estratégico sobre la avenida pueyrredón, en el corazón de barrio norte / recoleta. Su ubicación es inmejorable, garantizando un tránsito peatonal masivo debido a la salida directa del subte línea h y la concentración de numerosas líneas de colectivo que conectan toda la ciudad. El inmueble cuenta con una superficie total aproximada de 150 m2, distribuidos de manera funcional: planta baja: 78 m2 con un frente de 7 metros y un fondo de 11 metros, ideal para la exhibición y atención al público, asegurando la máxima visibilidad en una arteria principal. Subsuelo/sótano: 72 m2 de superficie, perfectos para ser utilizados como amplio depósito, oficinas administrativas (back office) o zona de producción, optimizando el espacio comercial en planta baja. Potencial de rentabilidad actualmente, el local genera una renta de $2.500 (dólares), pero gracias a su ubicación premium y el tamaño de su estructura, posee un gran potencial de revalorización. Se estima que, en la próxima renovación contractual, la renta podría ascender a $3.500 (dólares), consolidando esta propiedad como un activo con excelente retorno de inversión a corto plazo. El mejor consejo de todos los tiempos - hay que ser codiciosos cuando los demás son miedosos y miedosos cuando los demás son codiciosos, o comprar cuando todos venden y vender cuando todos compran. W.B. Nota legal: las medidas y datos son a titulo informativo. Saul mizrahi / matricula 5599

Contactar
1/42
Visto

100

USD 1.650.000

Quintana 100

Local en Venta en Recoleta, Capital Federal

MIRANDA BOSCH - Real Estate - ART
  • Muy Bueno

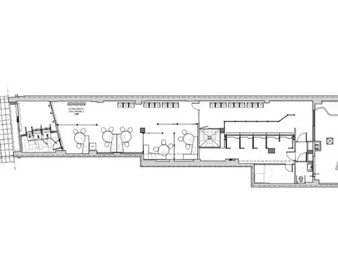
Local comercial en esquina – Quintana y Parera, Recoleta

Imponente local comercial ubicado en la emblemática esquina de av. Quintana y parera, en pleno corazón de recoleta. Con gran circulación peatonal y visibilidad gracias a su ubicación estratégica sobre una de las esquinas más reconocidas del barrio. El inmueble cuenta con un frente vidriado en ochava de 3,5 m y frente sobre av. Quintana de 11 m, lo que otorga una destacada exposición comercial. Desarrollado en tres niveles —subsuelo, planta baja y entrepiso— conectados por escalera de uso público. Superficies cubiertas propias: subsuelo (39,99 m²): actualmente acondicionado como tesoro bancario, con puerta de bóveda y sala privada de operaciones de cajas de seguridad. Planta baja (85,02 m²): planta libre con divisiones livianas de durlock y vidrio, fácilmente removibles. Entrepiso (189,31 m²): amplio espacio libre con baterías de sanitarios para ambos sexos, office, área de cajas y back office. Acceso a patio de uso exclusivo con sala de máquinas (equipos de aire acondicionado). El local se encuentra en muy buen estado general, con instalaciones en funcionamiento y una distribución adaptable a múltiples rubros. Ideal para entidad bancaria, financiera o empresa que requiera una ubicación destacada en recoleta. "Las medidas informadas son aproximadas y orientativas. Las medidas exactas surgirán del título de propiedad."

Contactar
1/18
Visto

56

USD 1.000.000

Junin al 1700

Local en Venta en Recoleta, Capital Federal

5411 Estate
  • 500 m² Total
  • 2 plantas
  • 15 años

Venta Local 500m2 ideal gastronomico zona turistica en Recoleta

Local único en recoleta inmejorable ubicación sin expensas! Ubicado sobre junín entre vicente lópez y guido, la mejor cuadra de la zona. A 1 cuadra de la emblemática confitería la biela, rodeado de shoppings, cines y con gran afluencia de turistas y residentes durante todo el día. Características principales superficie total: 500 m2 planta baja: 200 m2 patio interno propio: 100 m2 con toldos retráctiles (ideal para eventos, reuniones o sector gastronómico). Subsuelo: baños + amplio espacio multifuncional (depósito, oficinas, sala de capacitación, etc.). Frente: inicia en 4 m y se amplía a 8,66 m profundidad: 42 m uso de vereda habilitado: capacidad para 50/60 personas ideal para gastronomía (cuenta con tiraje a los 4 vientos) grandes marcas o uso profesional/comercial de distintos rubros ventajas sin expensas alto tránsito peatonal y turístico ubicación estratégica y de prestigio en recoleta transportes cercanos subte línea h: estación las heras (a 5 min. Caminando) subte línea d: estación callao (a 10 min.) Colectivos: 10, 17, 37, 59, 61, 62, 92, 93, 124, 129, 130, entre otros fácil acceso a avenida del libertador y av. Las heras en cumplimiento de la ley nacional 25.028, ley 22.802 de lealtad comercial, ley 24.240 de defensa al consumidor, junto con las normas del código civil y comercial de la nación y constitucionales, los asesores no ejercen el corretaje inmobiliario. Todas las operaciones inmobiliarias son objeto de intermediación y conclusión por parte de nuestro profesional matriculado. Corredor responsable capital federal: raul alvarez c.U.C.I.C.B.A nro: 8354 provincia buenos aires: ezequiel marcelo c.S.M. 2947

Contactar
1/16
Visto

50

USD 450.000 + $500.000 expensas

Av Del Libertador 1000

Local en Venta en Recoleta, Capital Federal

F Bentancur - Lj Aceto
  • 265 m² Total
  • 45 años
  • 2 baños

Del Libertador y Callao! Local +Oficinas , Se acepta permuta

Local comercial de 265 m2 totales , a metros de av del libertador y av. Callao , una de las emblemáticas esquinas de buenos aires ! Desarrollado en 3 plantas+1 cochera, planta baja: superficie de 56 m2 , se comunica con cómodas escaleras internas, entrada independiente desde av. Del libertador y desde hall del edificio. Primer piso: superficie de 143 m2: son 17 metros corridos de frente , amplios espacios, oficce, con 2 cómodas baterías de baños ( hombre y mujer ), 4 inodoros, 2 mingitorios. Planta sotano: superficie de 67 m2. Cercano a shopping patio bullrich , av 9 de julio , plaza francia , centro cultural recoleta , facultad de derecho . Alto transito de peatones y vehiculos .Excelente zona! 1 cochera grande con entrada desde planta baja. Tiene una excelente distribución, super luminoso por sus grandes ventanales. Pisos de granito en planta baja y primer piso, porcelanato en baños y cerámico importado en sótano . Agua caliente por termotanque eléctrico seguridad y cámaras las 24hs. Características interiores: baños para mujeres y para hombres calefacción: por estufas a gas natural balcón francés disposición: al frente estado de conservación: muy bueno gas natural seguridad 24 hs cámaras exteriores e interiores las 24 hs. Número cocheras: 1 se aceptan bienes de capital como parte de pago , consultar! Por informacion o visitas comunicarse al 11 56 57 36 97 ( llamado o whats app). Aviso legal: se hace saber que las características descriptas del inmueble publicado, calidades y cualidades constructivas y funcionales, valores de expensas, impuestos y servicios, y medidas y superficies, son aproximados y consignadas en base a datos que fueron proporcionados por el propietario y que pueden no ser exactos y/o no estar actualizados a la hora de la visualización de este aviso, pudiendo surgir discordancias con los datos que surgen de la documentación respectiva. Las medidas y superficies son estimativas, las exactas surgen de los títulos y planos legales del inmueble. Venta supeditada al cumplimiento por parte del propietario de los requisitos de la resolución general nº 2371 de la afip (pedido de coti). Servicios: gas

Contactar
1/10
Visto

40

USD 820.000 + $2.170.000 expensas

Avenida Callao 1270

Local en Venta en Recoleta, Capital Federal

Palau Propiedades
  • 230 m² Total
  • 45 años
  • 2 baños

Excelente local perteneciente al complejo LOS GALGOS

Excelente local perteneciente al complejo los galgos recoleta, con flujo peatonal constante, alta exposición y excelente conectividad. Cuenta con una superficie en pb de 205m2 y 25m2 de subsuelo, haciendo una superficie total de 230m2, un frente de 7 metros y una profundidad de 29 metros. Se distribuye en hall de acceso, salón de atención al público, boxes comerciales, oficina gerencial, office, batería de baños para hombres y mujeres, tesoro, archivos en el subsuelo y sala de máquinas. (Aire acondicionado y calefacción central). Pisos cerámicos, techos de losas de hormigón armado y cielorrasos suspendidos. Ultimo destino: sucursal bancaria en barrio de recoleta, ubicada sobre la avenida callao entre juncal y arenales, una de las principales arterias de la zona, a dos cuadras de la av. Santa fe y de la av. General las heras y de la plaza vicente lópez, a metros de universidades uade - fundación barceló uces el salvador uai sede recoleta. Salidas a autopista 25 de mayo - avenida callao - av. Pueyrredón.- Recoleta open mall cementerio de la recoleta paseo del pilar centro cultural recoleta museo de bellas artes plaza francia plaza vicente lópez. Nomenclatura catastral: circunscripción: 19 / sección: 11/ manzana: 78 / parcela: 1h / unidad funcional: 184 operación a realizarse en pesos al tipo de cambio vendedor del banco nación argentina del día anterior a la firma de la escritura traslativa de dominio. Servicios: cloacas otros servicios: oficina aviso legal: todas las propiedades que figuran en esta publicación se encuentran a cargo de los profesionales matriculados, cayetano palau, matrícula c.U.C.I.C.B.A 2893 o de nicolas jorge caballero, matrícula c.M.C.P.S.I. 6977, por lo tanto la intermediación y la conclusión de las operaciones serán llevadas exclusivamente por ellos. Palau propiedades s.R.L. No ejerce el corretaje inmobiliario. El presente sitio web es una plataforma en donde cada matriculado independiente que contrata los servicios de palau propiedades puede publicar las propiedades a su cargo, palau propiedades s.R.L no interviene en los datos de la publicación, en la operación inmobiliaria, ni en la confección y/o firma de documentación legal y/o contratos. En cumplimiento de las leyes vigentes que regulan el corretaje inmobiliario, ley 10.973 de la provincia de buenos aires, ley nacional 25.028 y 20.266, ley 22.802 de lealtad comercial, ley 24.240 de defensa al consumidor, las normas del código civil y comercial de la nación y constitucionales, los agentes/gestores no ejercen el corretaje inmobiliario. Las fotografías y videos no son contractuales, la presente publicación describe las características esenciales del inmueble, las medidas son meramente descriptivas y esquemáticas, pueden existir discordancias con las medidas exactas, expensas o impuestos que surgen de la realidad y/o de la escritura y/o de los planos del inmueble, debiéndose consultar al corredor público inmobiliario responsable de la operación por la eventual actualización de dicha información. Venta supeditada al cumplimiento por parte del propietario de los requisitos de la resolución general nº 2371 de la afip.

Contactar
1/12
Visto

25

USD 735.000 + $885.000 expensas

Avenida Pueyrredon 1855

Local en Venta en Recoleta, Capital Federal

Palau Propiedades
  • 385 m² Total
  • 43 años
  • 2 baños

Excelente local bajo propiedad horizontal

Excelente local bajo propiedad horizontal recoleta - con flujo peatonal constante, alta exposición y excelente conectividad. Cuenta con una superficie en pb de 177m2, semicubierta de 5m2 descubierta 44m2 de patio, y 159m2 de subsuelo haciendo una superficie total de 385m2, un frente de 5,5 metros y una profundidad de 29 metros. Se distribuye en hall de acceso, salón de atención al público, boxes comerciales, oficina gerencial, office, batería de baños para hombres y mujeres, tesoro, archivos y sala de máquinas. (Aire acondicionado y calefacción central). Ultimo destino: sucursal bancaria en barrio de recoleta, ubicada sobre la avenida pueyrredón entre french y peña, una de las principales arterias de la zona, a tres cuadras de la av. Santa fe y de la av. General las heras. Salidas a autopista 25 de mayo - avenida general las heras - av. Pueyrredón.- Recoleta open mall cementerio de la recoleta paseo del pilar centro cultural recoleta museo de bellas artes - estaciones de subte las heras y santa fe, línea h y pueyrredón, línea d y múltiples líneas de colectivos. Nomenclatura catastral: circunscripción: 19 / sección: 11/ manzana: 9 / parcela: 16 / unidad funcional: 1 operación a realizarse en pesos al tipo de cambio vendedor del banco nación argentina del día anterior a la firma de la escritura traslativa de dominio. Servicios: cloacas, gas otros servicios: oficina aviso legal: todas las propiedades que figuran en esta publicación se encuentran a cargo de los profesionales matriculados, cayetano palau, matrícula c.U.C.I.C.B.A 2893 o de nicolas jorge caballero, matrícula c.M.C.P.S.I. 6977, por lo tanto la intermediación y la conclusión de las operaciones serán llevadas exclusivamente por ellos. Palau propiedades s.R.L. No ejerce el corretaje inmobiliario. El presente sitio web es una plataforma en donde cada matriculado independiente que contrata los servicios de palau propiedades puede publicar las propiedades a su cargo, palau propiedades s.R.L no interviene en los datos de la publicación, en la operación inmobiliaria, ni en la confección y/o firma de documentación legal y/o contratos. En cumplimiento de las leyes vigentes que regulan el corretaje inmobiliario, ley 10.973 de la provincia de buenos aires, ley nacional 25.028 y 20.266, ley 22.802 de lealtad comercial, ley 24.240 de defensa al consumidor, las normas del código civil y comercial de la nación y constitucionales, los agentes/gestores no ejercen el corretaje inmobiliario. Las fotografías y videos no son contractuales, la presente publicación describe las características esenciales del inmueble, las medidas son meramente descriptivas y esquemáticas, pueden existir discordancias con las medidas exactas, expensas o impuestos que surgen de la realidad y/o de la escritura y/o de los planos del inmueble, debiéndose consultar al corredor público inmobiliario responsable de la operación por la eventual actualización de dicha información. Venta supeditada al cumplimiento por parte del propietario de los requisitos de la resolución general nº 2371 de la afip.

Contactar
1/12
Visto

2

USD 802.400 + $515.000 expensas

Uruguay al 1100

Local en Venta en Recoleta, Capital Federal

Bridge Argentina
  • 364 m² Total
  • 2 plantas
  • A Estrenar

Local en venta o alquiler en Recoleta

Local ubicado en la plata baja de un edificio dividido en propiedad horizontal, sobre la calle uruguay, entre av santa fe y arenales, en el barrio de recoleta. Cuenta con óptimos accesos vehiculares y peatonales dada su cercanía a importantes avenidas tales como av santa fe, callao, 9 de julio y córdoba. Por la zona circulan numerosas líneas de colectivos y además a seis cuadras se encuentra la estación "callao" de la línea "d" de subterráneos de manera que los accesos peatonales son buenos. La propiedad tiene una superficie cubierta total aproximada de 364 m2 distribuida en dos plantas. La planta baja tiene 164 m2 y el subsuelo 199 m2. La tipología de las plantas son semilibres con presencia de algunas columnas y divisiones removibles. Cuenta con sanitarios y office. Ultimo destino bancario. Buen estado de conservación. No tiene gas hernán pisarenko c.S.I. 6839 / c.P.I 8274 zufriategui 627, piso 5, vicente lópez, gba cerrito 1070, piso 11 dpto. 136, caba para el caso de publicación de venta, dejamos asentado que la venta de este inmueble está sujeta a la tramitación del código de transferencia de inmuebles (coti), de conformidad con la normativa vigente (res. Afip 2371/08, 2439/08 y ccs.) Por parte del propietario. Ley 5859 para los casos de locaciones de inmuebles con destino habitacional en los que el locatario sea una persona física, el monto máximo de la comisión a cobrar será el equivalente al cuatro con quince centésimos por ciento (4,15%) del valor total del respectivo contrato, a cargo del locador. Este aviso cumple con lo regulado en la ley 5115 de c.A.B.A. Los avisos publicados por corredores inmobiliarios por cualquier medio gráfico o informático, que promuevan operaciones inmobiliarias, deberán contener información acerca de las condiciones de accesibilidad para las personas con discapacidades físicas.

Contactar