(1) (1)
  • Tigre Centro

Venta

Local

USD desde 200K

Buscar solo avisos en moneda:

Dorm|Amb

Más filtros Más filtros

Características

Superficie total

Nombre de calle y altura

Expensas

$

Tipo de urbanización

Plantas

Servicios

Tipos de ambientes

Estado de obra

Tipo de anunciante

31 Locales en Venta en Tigre Centro

1/36
Visto

61

USD 480.000

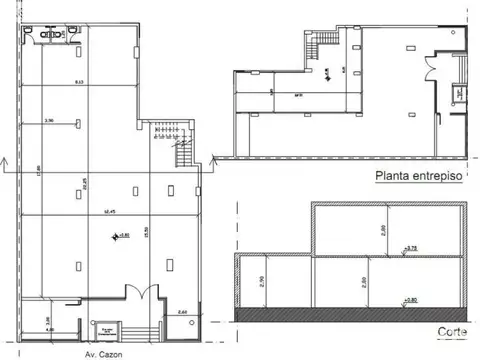
Av. Cazón al 200

Local en Venta en Tigre Centro, Tigre

Ariel Castilla - Relaciones Inmobiliarias
  • 579 m² Total
  • 2 plantas
  • 45 años

Local.579m2.Cazon al 200. Tigre

Propiedad desarrollada sobre lote de 8,60 metros de frente por 40 metros de fondo, con una superficie total de 332 m2 de terreno y 579 m2 cubiertos. El inmueble cuenta con un local comercial al frente, de 258 m2, con frente vidriado de 6 metros lineales, salón principal, baños para damas y caballeros, oficina y cocina equipada para uso gastronómico. En el primer piso sobre el local, se encuentra un sector de 75 m2, pasillo de 43 m2 con vista al salón y toilette. La vivienda, comunicada mediante un patio descubierto de 12 m2, se desarrolla en dos plantas: en planta baja, tres ambientes y un baño completo; en el primer piso, dos ambientes, espacio de cocina, baño y balcón. Construcción de estructura de hormigón, con instalaciones de electricidad, agua corriente y gas natural. Zonificación tc, con fot comercial 3.00, fot residencial 2.5, fos 0.60 y densidad neta de 2.000 hab./Ha. Esta propiedad tiene el código clo5002776 * la información gráfica y escrita contenida en el presente aviso es meramente a titulo estimativo y no forma parte de ningún tipo de documentación contractual. Las medidas y superficies definitivas surgirán del titulo de propiedad del inmueble referido. Asimismo los importes de tasas, servicios y expensas indicados están sujetos a verificación. El valor del inmueble indicado en el presente puede ser modificado sin previo aviso.

Contactar
1/14
Visto

50

USD 600.000

Avenida Cazón 1257

Local en Venta en Tigre Centro, Tigre

Godoy Asesores Inmobiliarios
  • 540 m² Total

Local Comercial en Venta en Tigre

Se presenta una propiedad de gran valor estratégico y comercial, ubicada sobre la avenida cazón en el corazón del centro de tigre. La ubicación privilegiada permite un fácil acceso a través de diversas opciones de transporte, incluyendo la estación de tren mitre a solo tres cuadras, la estación fluvial cercana y paradas de colectivos en la puerta, facilitando la movilidad tanto para residentes como para visitantes. La zona se caracteriza por su dinamismo comercial, con una amplia variedad de negocios, instituciones bancarias y colegios, consolidándose como uno de los principales centros comerciales de tigre. La propiedad cuenta en planta baja con un local comercial de 180 metros cuadrados, con entrada independiente y un pasillo que conduce hacia el fondo, ideal para actividades comerciales o institucionales. En el primer piso se encuentran seis oficinas comerciales, cada una con un tamaño aproximado de 20 metros cuadrados. Dos de estas oficinas disponen de balcón al frente, dos al contrafrente y dos en el lateral, todas ellas compartiendo dos baños ubicados en común. Este espacio resulta idóneo para consultorios, despachos o servicios profesionales. El segundo piso alberga dos departamentos: uno de tres ambientes, aproximadamente 60 metros cuadrados, con balcón hacia la avenida cazón; y otro de dos ambientes, de unos 50 metros cuadrados, ubicado al contrafrente y equipado con terraza y parrilla. Estos espacios ofrecen opciones residenciales o de alquiler adicional dentro del mismo inmueble. En conjunto, esta propiedad combina versatilidad comercial y residencial en una ubicación estratégica que favorece tanto actividades empresariales como habitacionales. Javier l. Godoy - csi 4784

Contactar
1/3
Visto

3

USD 875.000

Luis García Solís, B1648GDB Tigre, Provincia de Buenos Aires

Local en Venta en Tigre Centro, Tigre

CLICK APARTS
  • 1 planta
  • A Estrenar
  • 4 baños

Venta - Importante local en esquina a estrenar complejo Brickell - Tigre

Excelentes noticias! Como su broker local especializado en tigre, tengo el placer de presentarle una oportunidad de inversión y desarrollo profesional verdaderamente excepcional en el corazón del proyecto más emblemático y de vanguardia de la zona: brickell tigre.?Permítame detallarle esta inigualable unidad a estrenar, divisible y de 255 m2, estratégicamente ubicada para potenciar su negocio. ?Descripción minuciosa y profesional ?Ubicación premium y conectividad estratégica: esta oficina se encuentra en el prestigioso complejo brickell tigre, un desarrollo de usos mixtos que se ha consolidado como el nuevo ícono arquitectónico y polo de negocios de la región. La ubicación es inmejorable: en el portal de acceso a tigre centro, sobre la bajada del recientemente ampliado ramal tigre de la panamericana. Esto garantiza: ?Accesos rápidos: a minutos de la ciudad de buenos aires, a 5 minutos de la estación de tren y fluvial, y cerca de nordelta. ?Entorno dinámico: convive con un vibrante boulevard gastronómico y comercial, ofreciendo servicios de alta gama a su alcance. ?La unidad: 255 m2 de flexibilidad y categoría aaa: se trata de una planta de 255 metros cuadrados cubiertos, diseñada bajo un concepto de máxima flexibilidad y luminosidad, ideal para el corporativo moderno o para inversores que busquen un activo de renta premium. ?A estrenar: todos los beneficios de una propiedad nueva, con terminaciones de última generación y sin necesidad de reformas inmediatas. ?Divisibilidad total: su diseño de planta libre (o con mínima modulación estructural) permite una adaptación completa a las necesidades de su empresa. Puede configurarse como un gran open space, múltiples oficinas privadas, salas de reunión o, incluso, segregarse en dos o más unidades funcionales independientes para una futura venta o alquiler parcial (sujeto a reglamentos y planos). ?Luminosidad y vistas: el complejo brickell se caracteriza por su arquitectura imponente con amplios ventanales de piso a techo, utilizando carpintería de aluminio de alta prestación (línea a30 o similar) con doble vidrio hermético (dvh), lo que asegura una excelente aislación termoacústica y una entrada de luz natural excepcional, con vistas abiertas privilegiadas del entorno. ?Instalaciones de primer nivel: preparada para recibir la más alta tecnología, incluyendo sistemas de aire acondicionado central o vrv (a verificar según torre), provisión de agua caliente central y una instalación eléctrica acorde a las normas más rigurosas. ?Espacios comunes de lujo: su equipo y clientes accederán a un lobby de doble altura de categoría, con espíritu de hotelería 5 estrellas, que jerarquiza la imagen corporativa. ?Amenities y servicios exclusivos para el segmento corporativo: brickell tigre es un complejo de usos mixtos que eleva el estándar de vida y trabajo, ofreciendo servicios que impactan directamente en la calidad laboral: ?Centro de negocios / coworking: espacios profesionales dedicados para reuniones y trabajo flexible. ?Seguridad: control de acceso 24/7 y seguridad perimetral. ?Confort y lifestyle: acceso a coffee zone & food zone, gym, laundry y, en la mayoría de las torres, piscina en altura con vistas panorámicas, salones de usos múltiples (sum) con parrillas y más. ?Oportunidad de inversión única: esta unidad no es solo una oficina, es un activo estratégico en el sector de mayor crecimiento y revalorización de tigre. Su tamaño y divisibilidad la posicionan como una opción altamente líquida y rentable, ideal tanto para la instalación de su sede corporativa como para una inversión de capital sólida y diversificada. ?No demore en solicitar un dossier completo y coordinar una visita privada para experimentar la envergadura y el potencial de esta propiedad. Su próximo gran paso comienza en brickell tigre. Se deja constancia que las medidas, superficies, m2 y proporciones consignadas son aproximados, al igual que las medidas parciales y/o de los ambientes esta sujeto a verificación y/o ajuste. El valor indicado de expensas esta sujeto a variación. El precio del inmueble puede ser modificado sin previo aviso. Fotos de carácter no contractual. Ezequiel wierzba martillero publico, c.U.C.I.C.B.A 6383. Ezequiel wierzba negocios inmobiliarios / click aparts s.A.S, c.P..M.C.L.Z 4507 click aparts contáctenos : oficina : +-2541 celular : +54911 e-mail : web: / facebook: /click.Aparts instagram: /click.Aparts

Contactar
1/44
Visto

0

USD 320.000

Pedro Guareschi 70 entre San Juan y Saenz Peña

Local en Venta en Tigre Centro, Tigre

Dic Propiedades SA
  • 162 m² Total
  • 1 planta
  • 50 años

Local Venta - Tigre

Oportunidad baja valor de usd 350.000 a usd 320.000 venta en block de local con viviendas en muy buena zona de tigre centro excelente propiedad con potencial comercial y residencial, ubicada en pleno corazón de tigre. La propiedad cuenta con amplio local comercial al frente, con doble vidriera y doble persiana de seguridad. Actualmente se encuentra dividido en dos locales independientes, maximizando el uso del espacio y la rentabilidad. En la parte posterior, se encuentran dos construcciones a reciclar, una unidad de 2 ambientes y otra de 3 ambientes, que podrían utilizarse para vivienda, oficinas, depósitos o cualquier otro uso. Esta propiedad ofrece una excelente oportunidad de inversión, permitiendo diversificar riesgos gracias a sus unidades individuales, ideales para generar rentas separadas (comerciales y residenciales). Esto brinda mayor estabilidad económica y flexibilidad en el manejo de los alquileres. Ideal para inversores, comerciantes o desarrolladores que busquen una propiedad con varias fuentes de ingreso, en una zona en constante crecimiento. Sin reubicación! No dejes pasar esta oportunidad! "Se deja constancia que los m2 y la antiguedad son aproximados, al igual que las medidas parciales y el valor consignado de las expensas mensuales (en caso que corresponda pago de expensas) están sujetos a verificación y/o ajustes, el precio del inmueble puede ser modificado sin previo aviso. En el caso de tratarse de un inmueble en construcción los detalles de terminación y la fecha de entrega están sujetos a revisión. Fotos de carácter no contractual. Las unidades publicadas están sujetas a disponibilidad. Dic propiedades s.A. Actúa solamente en carácter de comercializadora de los inmuebles ofrecidos. En caso de tratarse de un terreno, la información de m2 construibles es orientativa, debiendo ser constatada por el interesado. Toda la información y medidas provistas son aproximadas y deberán ratificarse con la documentación pertinente y no compromete contractualmente a nuestra empresa. Los gastos (expensas, abl) expresados refieren a la última información recabada y deberán confirmarse. Fotografías no vinculantes ni contractuales." Código de propiedad: dot8266 ho7336246 javier del coro igarzabal cmcpsi mat no 4499 maría amparo coello cuciba mat n 5147 dic propiedades s.A. -

Contactar