(1) (1)
  • San Andres

Operación

Negocio Especial

Precio

Buscar solo avisos en moneda:

Dorm|Amb

Más filtros Más filtros

Nombre de calle y altura

Tipo de anunciante

9 Negocios Especiales en San Andres

1/11
Visto

4

USD 230.000

SAN LORENZO 3000

Negocio especial en Venta en San Andres, General San Martin

Inmobiliaria Lopez Lamas

Depósito 3 departamentos en block en plena zona comercial

Excelente oportunidad para inversores o emprendimientos comerciales en una ubicación privilegiada: san lorenzo al 3000, san andrés, en el corazón de la zona comercial, con gran movimiento y fácil acceso a transporte y servicios. La propiedad se desarrolla sobre un lote de 8,66 x 36 mts, con una superficie total de 310,60 m² y 515 m² cubiertos, ofreciendo la combinación ideal entre espacio productivo y renta asegurada gracias a sus múltiples unidades. En planta baja dispone de un amplio depósito de 225 m², perfecto para almacenamiento, logística o uso industrial, además de un sector libre de 85 m² que facilita maniobras, carga y descarga. En planta alta se ubican 3 departamentos con accesos independientes: dos unidades de 2 ambientes y una de 3 ambientes, ideales para vivienda, alquiler o renta a terceros. Características principales: - lote: 8,66 x 36 mts - superficie total: 310,60 m² - superficie cubierta: 515 m² - superficie descubierta: 85 m² - planta baja: depósito de 225 m² + espacio libre de 85 m² - planta alta: 3 departamentos (dos de 2 ambientes + uno de 3 ambientes) - accesos independientes para cada unidad ubicación estratégica en plena zona comercial una oportunidad única de inversión, con gran potencial de renta inmediata y versatilidad de uso, en una de las áreas más buscadas de san andrés. Precio de venta: u$d 230.000 se deja constancia que los m² y la antigüedad son aproximados, al igual que las medidas parciales y el valor consignado están sujetos a verificación y/o ajustes, el precio del inmueble puede ser modificado sin previo aviso. Fotos de carácter no contractual. Las unidades publicadas están sujetas a disponibilidad. Consultanos para más información o para coordinar una visita. Inmobiliaria lópez lamas - col. S.M. 1684

Contactar
1/3
Visto

3

USD 1.500.000

Joaquin V. Gonzalez 1400

Negocio especial en Venta en San Andres, General San Martin

EVR PROPIEDADES

San Martín - Planta Industrial Venta

Descripción características superficie total 6500 m superficie cubierta 4000 m baños 10 tipo de bodega nave industrial antigüedad 40 años número de oficinas 4 altura 8 m planta industrial con excepcional playa de maniobras que incluye un puente grúa en la misma playa, el galpón es de estilo shed. Servicio eléctrico con servicio de 13.200 v y transformador trifásico a 360 en el edificio, ideal industrias electro intensivas. Mas de 500 m2 de oficinas administrativas. Importante establecimiento industrial de aproximadamente unos 4000 m2 cubiertos aproximados, conformados un lote de terreno irregular de aproximadamente 6510 mts.el sector operativo comprende unos 3800 m2 operativos, posee una altura de 7 metros al apoyo de la cabreada y 10 mts al punto mas alto, pisos de hormigón armado h30 de alta resistencia que se encuentran en regular estado, mampostería de ladrillos hasta el apoyo de la cabreada, techos tipo shed de chapa fibrocemento, 2 estructura para puente grúa uno externo de 5 tns y otro de 5 tns interno. Los sectores auxiliares se encuentran fuera del sector operativo, comprenden unos 500 m2 cubiertos distribuidos entre baños, vestuarios con duchas ambos sexos, oficinas administrativas, y comedor para el personal, vivienda para sereno. Servicios: agua corriente, cloacas, trifásica t3, gas industrial 2 pulgadas zonificación: ir (apto para industria categoría 1 y 2 ,y deposito según aprobación municipal.) Ubicación: a tan solo 30 cuadras de la au panamericana, a 500 mts de av campos y a 10 cuadras de av constituyentes. Información básica. Baños: 10antigüedad: 40 superficies y medidas terreno: 6500 m cubierta: 4000 m servicios agua corriente gas natural electricidad oficinas [provista por sistema dixon | código ]

Contactar
1/40
Visto

1

USD 220.000

Jose Maria Campos

Negocio especial en Venta en San Andres, General San Martin

Denisse De Mey Tellado

Venta local montacarga vivienda San Andrés

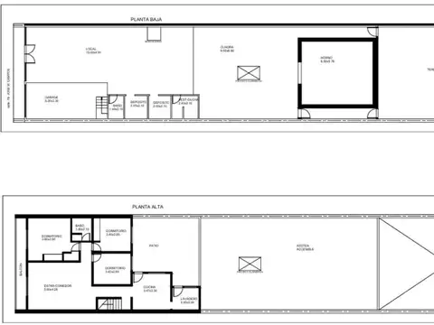
Venta local comercial + depósito + vivienda - san andrés - gran lote con montacarga y horno gran oportunidad comercial en san andrés! Sobre un lote de 8,66 m de frente x 45,51 m de fondo, esta propiedad ofrece un amplio local comercial, ideal para múltiples rubros, y además una vivienda de 4 ambientes completamente refaccionada, perfecta para residencia del dueño, personal o como renta adicional. Características principales del local y sector comercial: ? Local con acceso independiente y gran frente a la calle. ? Espacio libre de gran amplitud, adaptable para supermercado, depósito, showroom, taller mecánico, o emprendimientos gastronómicos. ? Montacarga operativo que conecta planta baja con vivienda en planta alta. ? Horno de panadería tradicional, listo para su uso o para readecuar. ? Dos baños para personal y clientes. ? Área de depósito y zonas de trabajo diferenciadas. ? Patio trasero/jardín, que permite expansión o utilización como área de carga y descarga. Vivienda en planta alta: ? Acceso privado desde el frente y conexión interna desde el local. ? Living comedor amplio y luminoso. ? Cocina independiente. ? Tres dormitorios, uno en suite con baño privado. ? Segundo baño completo. ? Balcón al frente y patio terraza interno. Superficies: ? Cubierta: 379,51 m² ? Semicubierta: 17 m² ? Espacio libre: 108 m² zonificación: ? Zona rmi1: habilita uso comercial, de servicios y residencial de baja y media intensidad. Ideal para: ? Supermercados ? Empresas logísticas ? Panaderías o emprendimientos gastronómicos ? Talleres livianos ? Comercios minoristas de gran superficie ubicación estratégica: en el corazón de san andrés, con excelente accesibilidad y cercanía a principales avenidas y medios de transporte. ¡Una propiedad que combina ubicación, metros y potencial para tu próximo negocio! Consultanos para coordinar una visita. Apto credito /consulta por permuta por departamentos/ un inmueble lleno de posibilidades como pocos denisse de mey tellado martillera pública y corredora inmobiliaria cmcpsm matrícula 2944 las descripciones, medidas y superficies consignadas en esta publicación son aproximadas y están sujetas a la confirmación con planos y/o titulo respectivo, sólo se muestran a modo orientativo ya que son provistos por los propietarios y en ningún caso son de carácter vinculante. Todas las operaciones inmobiliarias son realizadas por el corredor público responsable.

Contactar
1/26
Visto

0

USD 650.000

J M Campos 2700

Negocio especial en Venta en San Andres, General San Martin

REMAX IRON

VENTA EDIFICIO 2 PLANTAS 700 M2 BARRIO SAN ANDRES

Corredor responsable: emma andrea piersimoni cucicba 3877 / cmcpsi 6578 - contacto: analia veronica baratta venta edificio en block de 700 metros construidos ubicado sobre la calle juan manuel campos al 2700, en la localidad de san andrés, provincia de buenos aires, a metros de la cancha de golf y de la estación de tren. Apto crédito la propiedad se desarrolla en planta baja y primer piso, como clínica de salud, con habilitación para funcionar y cuenta con un ascensor camillero. De acuerdo con el código urbanístico municipal, la parcela posee frente a una vía principal, lo que le otorga condiciones preferenciales de edificabilidad y uso. Distrito urbanístico: zona de corredor comercial/residencial (según tramo, puede ser categoría comercial local o comercial secundario). Usos permitidos: vivienda multifamiliar y comercio en planta baja o en combinación, con flexibilidad para proyectos inmobiliarios de mediana y gran escala. Indicadores urbanísticos: fos (factor de ocupación del suelo): 0,60 fot (factor de ocupación total): hasta 2,0 (comercial local) o hasta 2,5 (comercial secundario). Altura máxima de edificación: entre 18 m y 27 m, según el tramo de corredor aplicable. Potencial constructivo si tenes que vender para comprar, podemos ayudarte y realizar la operación simultánea • beneficio para clientes: si te falta hasta un 30% del valor de esta propiedad, te ofrecemos solicitar un préstamo a través de lendar, servicio exclusivo para clientes re/max. Conoce tu cuota a través del simulador. Las medidas, superficies y expensas consignadas en la presente son aproximadas; y al solo efecto orientativo. Los datos definitivos son los que surgirán del título de la propiedad y de los comprobantes respaldatorios. Re/max iron corredora inmobiliaria emma andrea piersimoni cucicba 3877 y cmcpsi 6578. En cumplimiento de las normas legales aplicables, los agentes/gestores no ejercen el corretaje inmobiliario. Todas las operaciones son objeto de intermediación y conclusión por parte de los martilleros y corredores colegiados, cuyos datos se exhiben debajo del nombre de la inmobiliaria. Esta normativa habilita el desarrollo de un edificio de departamentos con planta baja comercial y hasta 6 a 9 niveles de construcción, según la clasificación exacta del tramo. Se trata de una localización con alta conectividad, servicios consolidados y un entorno residencial/comercial en crecimiento, ideal para inversores, desarrolladores y constructoras que busquen un producto de alta demanda en san andrés. Rau s.R.L. No ejerce el corretaje inmobiliario. El presente sitio web es una plataforma en donde cada oficina inmobiliaria independiente que contrata los servicios re/max puede publicar las propiedades a su cargo. Cada oficina es de propiedad y gestión independiente, por lo que rau s.R.L. No interviene en los datos de la publicación, en la operación inmobiliaria, ni en la confección y/o firma del boleto de compraventa y/o escritura y/o contrato de alquiler. En cumplimiento de las leyes vigentes que regulan el corretaje inmobiliario, ley nacional 25.028, ley 22.802 de lealtad comercial, ley 24.240 de defensa al consumidor, las normas del código civil y comercial de la nación y constitucionales, los agentes/gestores no ejercen el corretaje inmobiliario. Todas las operaciones inmobiliarias son objeto de intermediación y conclusión por parte del corredor público inmobiliario colegiado a cargo de la publicación, cuyos datos se exhiben en la presente. La presente publicación describe las características esenciales del inmueble, debiéndose consultar al corredor público inmobiliario responsable de la operación por la eventual actualización de las medidas, descripciones arquitectónicas y funcionales, valores de expensas, servicios, impuestos, precios y demás información, cuyos valores son aproximados. Comprá la casa que querés! No la que podés. Accedé a un préstamo por hasta el 30% del valor de esta propiedad. Simulá tu cuota en lendar

Contactar