(1) (1)
  • Ciudad Vieja

Venta

Negocio Especial

Precio

Buscar solo avisos en moneda:

Dorm|Amb

Más filtros Más filtros

Nombre de calle y altura

Tipo de anunciante

6 Negocios Especiales en Venta en Ciudad Vieja

1/7
Visto

10

USD 2.083.184

25 de Mayo entre Juncal y Ciudadela

Negocio especial en Venta en Ciudad Vieja, Montevideo

Soldati Conecta

Edificio Completo de Oficina en Venta - Ciudad Vieja, Montevideo

Zona veinticinco es un espacio para instalación de oficinas multifuncionales. La dimensión de sus unidades habilita a una real accesibilidad a profesionales de todo tipo. Ubicado en la calle 25 de mayo, la calle con mayor crecimiento edilicio en oficinas de este tipo. Se caracteriza por su luz, su confort y su ubicación. Las dimensiones acotadas del edificio propician de manera relevante su accesibilidad. Es un edificio destinado a oficinas y servicios afines, dentro de los cuales se cuentan salas de reuniones y un nivel de subsuelo destinado a estacionamientos y áreas de servicio. El edificio se organiza en dos crujías que ocupan todo el ancho del terreno, que se vinculan mediante un núcleo central que contiene las circulaciones verticales y las áreas de servicio. El área destinada a oficinas (área a comercializar) se entrega con piso técnico, cielo raso e instalación para aire acondicionado. El baño de cada oficina es completo incluyendo pisos, revestimientos, mesadas, aparatos, griferías, accesorios y espejos. Http: zona25.Net/ aviso legal: los valores de las expensas, impuestos y servicios, las fotos y medidas, y los datos sobre la arquitectura y funcionamiento de esta propiedad son todos aproximados. Pueden no estar actualizados al momento de su visualización, ya que fueron brindados por el propietario a la hora de su publicación. Todo interesado deberá comprobar los datos antes de realizar cualquier operación. Martillero leandro soldati cucicba 1544 martillero alejandro milhas cmcpsi 4437

Contactar
1/10
Visto

1

USD 500.000

Cerrito al 300

Negocio especial en Venta en Ciudad Vieja, Montevideo

Situar

Edificio comercial con cocheras en Montevideo Uruguay.

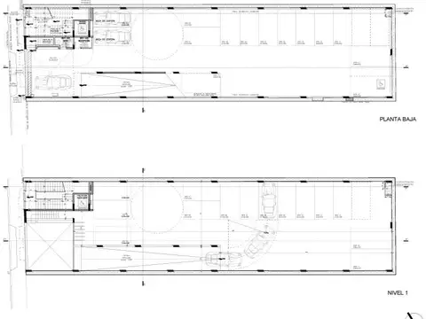
Garage en venta con disponibilidad para 28 cocheras, ciudad vieja, montevideo, uruguay. Excelente. Se vende importante parking en el corazón de la ciudad vieja de montevideo, zona histórica, rodeada de entidades financieras e instituciones gubernamentales. El parking cuenta con 28 sitios de estacionamientos desarrollados en 2 plantas, planta baja y nivel 1. Incluye servicio lavadero y se proveen lugares de carga para coches híbridos o eléctricos. El proyecto se diseñó recientemente, demoliendo una construcción en su totalidad y dando lugar a este moderno y funcional diseño. Descripción nivel 1. Planta baja 455?M2 en la planta baja se sitúan: estacionamientos cabina de control + servicio del personal 1 escalera interna del estacionamiento hueco para un ascensor (previsión por accesibilidad) reserva inferior de agua en el nivel 1 se sitúan: escalera de acceso a viviendas estacionamientos 1 escalera interna del estacionamiento hueco para un ascensor. Financiacion. Usd250.000 al contado y financiación de u$d250.000 en cuotas en dólares. 48 cuotas u$d6250 o 60 cuotas u$d5208 o 72 cuotas u$d4513.Con posibilidad de pagar/autofinanciarse con la explotación del lugar. *Situar tu lugar en el mundo. Juana manso 1626, puerto madero . Nota: situar propiedades s.A. No ejerce el corretaje inmobiliario. En cumplimiento de las leyes vigentes que regulan el corretaje inmobiliario, ley nacional 25.028, ley 22.802 de lealtad comercial, ley 24.240 de defensa al consumidor, las normas del código civil y comercial de la nación y constitucionales, los agentes/gestores no ejercen el corretaje inmobiliario. Todas las operaciones inmobiliarias son objeto de intermediación y conclusión por parte del corredor público inmobiliario colegiado a cargo de la publicación, cuyos datos se exhiben en la presente. Matrícula cpi 4.518. Situar tu lugar. Matrícula cpi 4.518. En cumplimiento de las leyes vigentes que regulan el corretaje inmobiliario, ley nacional 25.028, ley 22.802 de lealtad comercial, ley 24.240 de defensa al consumidos, las normas del código civil y comercial de la nación y constitucionales, los agentes/gestores no ejercen el corretaje inmobiliario. Todas las operaciones inmobiliarias son objeto de intermediación y conclusión por parte de los corredores públicos inmobiliarios colegiados, cuyos datos se exhiben en cada publicación de propiedad objeto de comercialización. Nota importante: toda la información y medidas provistas son aproximadas y deberán ratificarse con la documentación pertinente y no compromete contractualmente a nuestra empresa. Fotografías no vinculantes ni contractuales.

Contactar
1/26
Visto

0

USD 2.200.000

Plaza Independencia 700

Negocio especial en Venta en Ciudad Vieja, Montevideo

VENTA Edificio Histórico Patrimonial, Ciudad Vieja

Corredor responsable: - contacto: natalia lópez alvez edificio histórico construido a fines de s. Xix, posteriormente reformado y ampliado en el 2009 por los arqs. Rafael lorente y fernando giordano. Ubicado sobre la acera norte de plaza independencia. Se destaca su ubicación a pasos del ingreso a la ciudad vieja y su atractiva vista a la plaza independencia. Su inserción en una zona de alto desarrollo político, financiero, cultural y las características del edificio generan un amplio abanico de opciones programáticas a desarrollar en el mismo. Forma parte del inventario patrimonial bajo la tutela de la intendencia de montevideo, con un grado 3 de protección. Padrón único, en régimen común, se encuentra entre medianeras con orientación norte-sur, contra frente y frente respectivamente. Propiedad de buena construcción y materiales de calidad suma la totalidad de 2450m2 construidos sobre un lote de 450m2. Consta de 5 niveles, promediando los 400m2 cada uno y en su remate un nivel de aproximadamente 260 m2 construidos con una terraza de 40m2 con vista hacia plaza independencia. Una planta baja libre, con pilares de hierro fundido y grandes dimensiones, que puede albergar actividades gastronómicas, comerciales y/o culturales. Los siguientes dos niveles del edificio histórico, fueron renovados y se encuentran en muy buen estado de conservación. Tres niveles fueron incorporados en lo que comprendió parte de la reforma y ampliación realizada en el año 2009, con destino oficinas, en clave contemporánea pero dialogando de muy buena manera con las construcciones preexistentes. Contribución inmobiliaria $750.000 primaria $105.000 cada oficina es de propiedad, gestión y desarrollo independiente la presente publicación describe las características esenciales del inmueble, debiéndose consultar al responsable de la operación por la eventual actualización de las medidas, descripciones arquitectónicas y funcionales, servicios, impuestos, precios y demás información, cuyos valores son aproximados.

Contactar
1/30
Visto

0

USD 3.900.000

Misiones 1200

Negocio especial en Venta en Ciudad Vieja, Montevideo

Remax Costa

VENTA EDIFICIO HOTEL CON RENTA PARA INVERSORES

Corredor responsable: - contacto: julieta domina oportunidad para inversionistas! Propiedad actualmente en funcionamiento! La superficie total es de aprox. 1.800 m2. , Está totalmente equipado el edificio está subdividido en propiedad horizontal , son 26 unidades escriturables en forma independiente cada una , y además están las áreas comunes. 26 unidades de excelentes dimensiones (subdividido en propiedad horizontal) . (5 de las unidades tienen terraza propia). Dos locales en planta baja (sala directorio x reuniones) y gym y/o usos múltiples. Local salón bar/desayunador en planta baja con vista al mar. Amenitie gabinete de masaje con jacuzzi del tipo mini piscina x 4 personas. Toilette (2) en pb. Un ascensor para 8 personas y escalera general. Office de piso ( en 4 de los pisos ). Vestuario de personal y área técnica en planta baja. El edificio está localizado en la ciudad vieja de montevideo, a 40 mts de la rambla, y a pasos de la puerta de la ciudadela, próximo a todos los comercios. Excelente medios de locomoción en la zona que conectan todos los puntos de la ciudad. El edificio ha ganado el certificado de excelencia de tripadvisor los últimos 3 años consecutivos unidades de 35 a 40 mts2 super equipados, con mobiliario de gran categoría y diseño, aire acondicionado split frio calor, sistema inverter ,tv con cable ,wifi piso de madera flotante , frigo bar ,microondas, jarra eléctrica, vajilla, caja de seguridad, unidades con bañera de hidromasaje, vista al mar, terrazas cuenta con excelente sala de reuniones con capacidad para 50 personas, gimnasio, y restaurante. Compartimos con todas las inmobiliarias comisión inmobiliaria 3 % mas iva cada oficina es de propiedad, gestión y desarrollo independiente la presente publicación describe las características esenciales del inmueble, debiéndose consultar al responsable de la operación por la eventual actualización de las medidas, descripciones arquitectónicas y funcionales, servicios, impuestos, precios y demás información, cuyos valores son aproximados.

Contactar
1/20
Visto

0

USD 588.000

Consultar dirección

Negocio especial en Venta en Ciudad Vieja, Montevideo

Alpha Realtors

Ubicado en un punto estratégico de la ciudad vieja, a tan solo 2 cuadras de la emblemática plaza independencia, se encuentra este edificio en venta, ideal para inversionistas que buscan un retorno inmediato. Con una estructura sólida de hormigón y un excelente estado de conservación, la propiedad se distribuye en tres plantas más un subsuelo que alberga un local comercial de 200 m², equipado con un depósito y bodega de seguridad. En la planta baja, se presenta un amplio vestíbulo que da acceso a un área de oficinas, cocina- comedor, sala de reuniones y 2 baños, ofreciendo la opción de reformar este espacio y convertirlo en 2 apartamentos turísticos. El 1er piso cuenta con 3 oficinas funcionales, cada una con su propio baño, actualmente alquiladas, lo que garantiza una rentabilidad inmediata. En el 2do piso se encuentran 2 monoambientes amplios y luminosos, uno de los cuales también está alquilado la propiedad ofrece un total de 656 m² cubiertos, con servicios como agua corriente, internet, aire acondicionado, cámaras de cctv y un sistema de desagüe cloacal, lo que la convierte en un espacio apto para uso profesional y comercial. Además es apta para créditos, lo que facilita aún más su adquisición. Esta es una oportunidad única para aquellos que buscan invertir en una de las zonas más dinámicas de la ciudad. ¡Llámenos para conocer más en detalle esta propiedad! Tel: email: alpha realtors www.Alpharealtors.Uy

Contactar