(1) (1)
  • Munro

Venta

Negocio Especial

Precio

Buscar solo avisos en moneda:

Dorm|Amb

Más filtros Más filtros

Nombre de calle y altura

Tipo de anunciante

12 Negocios Especiales en Venta en Munro, Partido de Vicente López

1/30
Visto

20

USD 950.000

Armenia al 3000

Negocio especial en Venta en Munro, Partido de Vicente López

LUCIA CORTEZ NEGOCIOS INMOBILIARIOS

Nave Industrial en venta en Munro

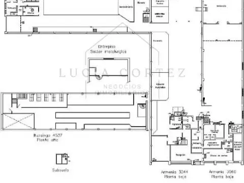
Importante complejo industrial en venta munro, vicente lópez frente a dos calles: armenia e ituzaingó superficie total: 1840m2 en 3 parcelas integradas ideal para industrias, centros logísticos o desarrollos mixtos 23 de frente por calle armenia, 42 de fondo y 8,66 de frente por calle ituzaingó. Posibilidad de vender en block con lote continuo con espacio para 30 autos. (10 x 42) edificio industrial estructurado en tres parcelas, con frentes a las calles armenia (acceso principal) e ituzaingó. Cuenta con ingreso peatonal y vehicular desde armenia y un segundo acceso vehicular desde ituzaingó. Superficie de terreno: 1.311,45 m2 superficie cubierta total: 1.840 m2 área administrativa: en planta baja: recepción, oficina de ventas con baño, escalera a planta alta, vestuarios y sanitarios diferenciados para personal masculino, femenino y supervisores. También cuenta con cámara de edenor con acceso independiente desde la calle. En planta alta: 9 oficinas de distintos tamaños, incluyendo un despacho presidencial con vista a la planta industrial y sanitarios para damas y caballeros. Área industrial: nave izquierda con doble altura, destinada a inyección y envasado de tarugos de nylon. Nave paralela para fabricación de tornillería metálica, con área de matricería al fondo. En planta alta de la nave izquierda: 8 oficinas adicionales conectadas por pasarela a las del frente. Sector descubierto interno para esparcimiento y usos técnicos. Acceso por ituzaingó 4537: ingreso vehicular, oficina de control, sanitario y sector de depósito en planta baja. En planta alta, depósito adicional con conexión directa al contrafrente del área de inyección. Excelente ubicación en zona industrial consolidada, con muy buenos accesos a panamericana, av. Mitre y av. General paz. Zonificación i1 fos 0.6 fot 1.2 oportunidad única para desarrolladores o empresas que requieran gran superficie operativa y estratégica ubicación. La información contenida en esta publicación (medidas, superficies, descripciones, valores, gastos e impuestos) es aproximada, referencial y está sujeta a verificación y/o actualización por parte del propietario. Las imágenes son de carácter ilustrativo y no constituyen documentación contractual. Disponibilidad y precios: el valor indicado puede ser modificado sin previo aviso y la propiedad permanecerá disponible hasta tanto un interesado manifieste su voluntad de compra/locación mediante reserva formal o boleto/contrato correspondiente. Martillero interviniente: lucia cortez - cucicba 9516 cmcpsi 6196

Contactar
  • Depósito - Munro
0/0
Visto

0

USD 460.000

Diaz Velez al 4600 entre Maquinista Carregal y Sargento Cabral

Negocio especial en Venta en Munro, Partido de Vicente López

Dic Propiedades SA

Depósito - Munro

Venta con renta. Depósito, galpón, industria, oficinas con excelentes espacios de trabajo desarrollado en tres plantas con un total de 560mts aproximadamente, de los cuales 524mts son cubiertos. Ubicado en un punto estratégico de zona norte a solo tres cuadras de panamericana y a dos de paraná. Próximo al shopping unicenter, metalúrgicas, laboratorios, empresas de repuestos, todo tipo de comercios, oficinas, bancos y un punto industrial inmejorable. Cuenta con un muy buen frente ideal para una excelente imagen corporativa. Se puede trabajar en dos sectores bien diagramados. Uno de oficinas al frente con entrada independiente y otro ideal para deposito, industria, logística con entrada de vehículos tipo camionetas, montacargas con llegada hasta hasta las dos plantas, baños, vestuarios en ambas plantas. En la planta baja se encuentras las oficinas, el acceso para vehículo, vestuarios y área de trabajo. En el primer piso un gran espacio de trabajo o depósito con muy buenas dimensiones y oficinas. En el segundo piso otra gran sala de trabajo, cocina, comedor y más comodidades para archivos o sectores de usos múltiples. La ubicación es inmejorable con accesos rápidos a zona norte y caba. Cerca de todo. Visitalo, está alquilado y cuenta con una buena renta. No te lo podés perder. Código de propiedad: dst4132606 con más de 40 años de experiencia, en dic propiedades entendemos el valor de tu búsqueda. Somos una empresa familiar liderada por sus dueños y respaldada por un equipo multidisciplinario de profesionales dedicados a concretar tus objetivos. Nuestros números avalan nuestro compromiso: 1.700 propiedades en comercialización. 137.000 tasaciones realizadas con precisión 950.000 m2 vendidos con éxito. 35.000 unidades de pozo comercializadas. Te esperamos de lunes a sábados en nuestras oficinas de caba y zona norte. * * * * * * * * Información importante y aviso legal * * * la presente publicación es de carácter orientativo. Se deja constancia que toda la información, las medidas (totales y parciales), superficies (m2), antiguedad y valores de expensas consignados son aproximados y están sujetos a verificación, ajuste y/o ratificación con la documentación pertinente. El precio del inmueble y su disponibilidad pueden ser modificados sin previo aviso. Inmuebles en construcción: los detalles de terminación y fechas de entrega están sujetos a revisión técnica y contractual. Terrenos: la información sobre metros construibles es meramente orientativa; el interesado deberá realizar las consultas pertinentes ante los organismos correspondientes. Documentación: los gastos expresados (expensas, abl, impuestos) refieren a la última información recabada y deben ser confirmados antes de cualquier operación. Material gráfico: las fotografías, planos y renders son de carácter ilustrativo, no vinculante ni contractual. Dic propiedades s.A. Actúa exclusivamente en carácter de comercializadora de los inmuebles ofrecidos. La información provista no compromete contractualmente a la empresa. Javier del coro igarzabal | cmcpsi mat. No 4499 maría amparo coello | cucicba mat. No 5147 dic propiedades s.A. |

Contactar
  • Nave Industrial - Munro
0/0
Visto

0

USD 460.000

Diaz Velez al 4600 entre Maquinista Carregal y Sargento Cabral

Negocio especial en Venta en Munro, Partido de Vicente López

Dic Propiedades SA

Nave Industrial - Munro

Venta con renta. Depósito, galpón, industria, oficinas con excelentes espacios de trabajo desarrollado en tres plantas con un total de 560mts aproximadamente, de los cuales 524mts son cubiertos. Ubicado en un punto estratégico de zona norte a solo tres cuadras de panamericana y a dos de paraná. Próximo al shopping unicenter, metalúrgicas, laboratorios, empresas de repuestos, todo tipo de comercios, oficinas, bancos y un punto industrial inmejorable. Cuenta con un muy buen frente ideal para una excelente imagen corporativa. Se puede trabajar en dos sectores bien diagramados. Uno de oficinas al frente con entrada independiente y otro ideal para deposito, industria, logística con entrada de vehículos tipo camionetas, montacargas con llegada hasta hasta las dos plantas, baños, vestuarios en ambas plantas. En la planta baja se encuentras las oficinas, el acceso para vehículo, vestuarios y área de trabajo. En el primer piso un gran espacio de trabajo o depósito con muy buenas dimensiones y oficinas. En el segundo piso otra gran sala de trabajo, cocina, comedor y más comodidades para archivos o sectores de usos múltiples. La ubicación es inmejorable con accesos rápidos a zona norte y caba. Cerca de todo. Visitalo, está ocupado por inquilinos con buena renta. No te lo podés perder. Código de propiedad: dot8288 st4132784 con más de 40 años de experiencia, en dic propiedades entendemos el valor de tu búsqueda. Somos una empresa familiar liderada por sus dueños y respaldada por un equipo multidisciplinario de profesionales dedicados a concretar tus objetivos. Nuestros números avalan nuestro compromiso: 1.700 propiedades en comercialización. 137.000 tasaciones realizadas con precisión 950.000 m2 vendidos con éxito. 35.000 unidades de pozo comercializadas. Te esperamos de lunes a sábados en nuestras oficinas de caba y zona norte. * * * * * * * * Información importante y aviso legal * * * la presente publicación es de carácter orientativo. Se deja constancia que toda la información, las medidas (totales y parciales), superficies (m2), antiguedad y valores de expensas consignados son aproximados y están sujetos a verificación, ajuste y/o ratificación con la documentación pertinente. El precio del inmueble y su disponibilidad pueden ser modificados sin previo aviso. Inmuebles en construcción: los detalles de terminación y fechas de entrega están sujetos a revisión técnica y contractual. Terrenos: la información sobre metros construibles es meramente orientativa; el interesado deberá realizar las consultas pertinentes ante los organismos correspondientes. Documentación: los gastos expresados (expensas, abl, impuestos) refieren a la última información recabada y deben ser confirmados antes de cualquier operación. Material gráfico: las fotografías, planos y renders son de carácter ilustrativo, no vinculante ni contractual. Dic propiedades s.A. Actúa exclusivamente en carácter de comercializadora de los inmuebles ofrecidos. La información provista no compromete contractualmente a la empresa. Javier del coro igarzabal | cmcpsi mat. No 4499 maría amparo coello | cucicba mat. No 5147 dic propiedades s.A. |

Contactar
1/26
Visto

0

USD 1.800.000

AV. BARTOLOMÉ MITRE al 3800

Negocio especial en Venta en Munro, Partido de Vicente López

Zipcode SA

Nave Industrial en Munro

Edificio industrial / depósito en venta con renta esquina estratégica sobre av. Mitre, munro se presenta esta imponente planta industrial ubicada sobre av. Mitre esquina comandante luis piedrabuena, en el corazón industrial y comercial de munro, a solo 400 metros de panamericana, rodeada de importantes empresas y con excelente conectividad para distribución y logística. Descripción general: - desarrollado en tres niveles: planta baja, primer y segundo piso. - Terreno en esquina de 778 m2 con 2.187 m2 cubiertos totales. - Construcción sólida de hormigón armado, con pisos de alta resistencia en muy buen estado. - Plantas libres en los niveles superiores, con divisiones internas de durlock removibles que facilitan su adaptación a distintos usos industriales, logísticos o de oficinas. - Ascensor montacargas que conecta los tres pisos, ideal para flujo eficiente de materiales y productos. - Dos accesos vehiculares y dos peatonales, con portones aptos para camiones. - Oficina de seguridad y baños en planta baja. - Baños y vestuarios para personal en el primer piso. - Cocina amplia y comedor para personal en el segundo piso, totalmente equipada y con ventilación natural. - Sistema completo de red contra incendios con bomba y reserva, visible en sala técnica (ver fotos). - Excelente luminosidad natural en todos los niveles gracias a su ubicación en esquina y ventanales perimetrales. Servicios e instalaciones: - energía trifásica (fuerza motriz) - agua corriente, gas natural y cloacas - red contra incendios activa - estructura portante de hormigón armado con techos de losa de gran altura destinos ideales: empresas de logística, distribución, laboratorios, industria liviana, textil, tecnología o como edificio corporativo con showroom y depósito integrado, maximizando su ubicación institucional sobre av. Mitre y su potencial operativo por zonificación e infraestructura. Ubicación estratégica: rápido acceso a panamericana y principales arterias de zona norte, ideal para distribución regional y operaciones con flota pesada. Estado general: excelente conservación y mantenimiento, listo para operar sin necesidad de refacciones estructurales. En cumplimiento de la ley 5115, se informa que el inmueble es accesible para personas con movilidad reducida o discapacidad física. Corredor interviniente: milagros sarachaga cucicba 7799 paolo menghi cucicba 9171 cmcpdjlm 1005 la tasación, intermediación y la conclusión de las operaciones sobre esta propiedad son actividades exclusivas de este corredor matriculado, conforme las previsiones de la ley 20.266, la ley caba 2340, la ley provincial 10.973 y sus modif. Y las normas reglamentarias dictadas por los colegios departamentales.

Contactar
1/24
Visto

0

USD 1.700.000

Eduardo Sívori 5100

Negocio especial en Venta en Munro, Partido de Vicente López

REMAX Titanium

VENTA COMERCIAL MUNRO ACCESO PANAMERICANA 3463 M2

Corredor responsable: francisco d\'atri cpmcal 45 / leonel d\'atri cucicba 6618 - contacto: leslie porcel inmueble industrial emplazado en zona i1 del partido de vicente lópez, munro. Actualmente configurado como base operativa para transporte automotor con infraestructura técnica específica para terminal de colectivos. Superficie de terreno: 3.468 m² superficie cubierta aprobada: 1.263 m² superficie libre descubierta: 2.309 m² ubicación: esquina con ochava estado general: muy bueno el inmueble se compone de: - 2 galpones - playa de maniobra y estacionamiento de gran superficie - taller mecánico con fosas - pañoles técnicos - oficinas administrativas sectorizadas con alarma - vestuarios y sanitarios - instalación eléctrica trifásica - sectores complementarios de apoyo operativo - 9 equipos de aires acondicionados - 16 camaras de seguridad zonificación: área industrial i1 indicadores de referencia: fos 0.6 fot 1.2 el inmueble registra antecedentes de habilitación municipal para terminal de transporte, talleres y actividades complementarias, lo que acredita compatibilidad histórica del uso. Las medidas consignadas son a titulo orientativo, las definitivas surgiran del titulo y/o estado parcelario. Fotos no contractuales. Rau s.R.L. No ejerce el corretaje inmobiliario. El presente sitio web es una plataforma en donde cada oficina inmobiliaria independiente que contrata los servicios re/max puede publicar las propiedades a su cargo. Cada oficina es de propiedad y gestión independiente, por lo que rau s.R.L. No interviene en los datos de la publicación, en la operación inmobiliaria, ni en la confección y/o firma del boleto de compraventa y/o escritura y/o contrato de alquiler. En cumplimiento de las leyes vigentes que regulan el corretaje inmobiliario, ley nacional 25.028, ley 22.802 de lealtad comercial, ley 24.240 de defensa al consumidor, las normas del código civil y comercial de la nación y constitucionales, los agentes/gestores no ejercen el corretaje inmobiliario. Todas las operaciones inmobiliarias son objeto de intermediación y conclusión por parte del corredor público inmobiliario colegiado a cargo de la publicación, cuyos datos se exhiben en la presente. La presente publicación describe las características esenciales del inmueble, debiéndose consultar al corredor público inmobiliario responsable de la operación por la eventual actualización de las medidas, descripciones arquitectónicas y funcionales, valores de expensas, servicios, impuestos, precios y demás información, cuyos valores son aproximados. Comprá la casa que querés! No la que podés. Accedé a un préstamo por hasta el 30% del valor de esta propiedad. Simulá tu cuota en lendar

Contactar
1/37
Visto

0

USD 5.000.000

Díaz Vélez 4100

Negocio especial en Venta en Munro, Partido de Vicente López

REMAX Data House

Venta Estudio TV Equipado a estrenar

Corredor responsable: mauro marvisi cmcpsi 5574 / cucicba 1762 - contacto: andrea rocca star tv stars estudios se encuentra emplazado en la zona norte muy cercano a la ciudad de buenos aires, cuenta con un moderno edificio de 1.200 metros cuadrados recientemente inaugurado. Su diseño es arquitectónicamente moderno, con amplias instalaciones; y construido especialmente para brindar servicios de televisión. El proyecto fue dirigido por especialistas de larga y reconocida trayectoria en la producción, dirección, y tecnología; en esta especialidad, opera en hd 2k y opcionalmente en 4k. Consta de 2 estudios dispuestos en dos plantas. Estudio n°1: está ubicado en planta baja tiene una superficie útil de 250 metros cuadrados con una parrilla para iluminación ubicada a 4,00 mts del piso, con el correspondiente conexionado para alimentación y control de dimers para los luminarias. La empresa dispone de una amplia variedad de artefactos, fresneles, panorámicos, softlite; y de luz fría bicolor desde 2700°k a 6500°k, un gran número de trípodes; para iluminación desde el piso, soportes extensibles para parrilla y una consola de control con programación de efectos, con protocolo dmx completan el sistema de iluminación. Dispone de un portón de acceso para la escenografía e inclusive vehículos y elementos de tamaño considerable. Cuenta con tratamiento acústico e insonorización perimetral incluyendo el portón de acceso a la calle, mediante paneles con un gran coeficiente de absorción acústico, además de ser ignífugos. El aire acondicionado dispone de 2 equipos del tipo split frío / calor de alto rendimiento garantizando el nivel térmico adecuado para el desarrollo de las tareas dentro del estudio. El estudio se encuentra interconectado mediante ductos y cajas de conexión dispuesta sobre sus paredes laterales, para las líneas de micrófonos, video y datos, con el control de sonido, control técnico y de dirección y producción. El control de producción y dirección consta de una amplia mesa, especialmente diseñada para el montaje de consolas, switcher y generador de caracteres. Un grupo de monitores permiten observar todas las señales que ingresan y salen al switcher, además de otras prestaciones que hacen al funcionamiento del control. El sistema de sonido está conformado por una consola sony de 40 canales modelo sr-332 y una serie de micrófonos de alta calidad sennheiser. Télex calidad; marcas sennheiser, telex, sony. El control dispone de energía eléctrica estabilizada con una ups de 15kva trifásica con suficiente autonomía para mantener un tiempo considerable el suministro de energía del equipamiento del control, sin interrupción de las operaciones. Estudio n° 2 ubicado en la primera planta, tiene una superficie útil de 450 cuadrados con una parrilla de iluminación ubicada a 4,60 metros del piso. El sistema de parrilla de iluminación está compuesto de estructuras tubulares que soportan los artefactos y las tomas de energía y control de dimers, éstas estructuras cubren todo el estudio permitiendo armar escenografías en cualquier espacio del mismo. Este estudio por sus dimensiones, espacios y construcción lo hacen apropiado para la realización de múltiples servicios que requieran el armado de una amplia y diversas escenografías. Está preparado para escenografía virtual, con fondo de cortinados monocromáticos de gran extensión, para la realización de tomas panorámicas y también con planos de cámaras más comprimidos. Dispone de un montacargas para el traslado de escenografía y otros elementos desde planta baja. Cuenta con un sistema de tratamiento acústico adecuado, con revestimiento en todo el perímetro del mismo, y la parte superior. El aire acondicionado es centralizado con frío / calor abarcando todo el perímetro del mismo, y la parte superior. El aire acondicionado es centralizado con sistema frio / calor por 2 equipos centrales instalados en la terraza y distribuido por ductos de tamaño apropiado para evitar el ingreso y generación de ruidos por los mismos. Similar al estudio 1 dispone de 4 tableros de conexionado ubicado en las paredes laterales, para los micrófonos, envíos y retornos al piso, tomas de video y red de datos. Estos están vinculados por ductos y cañerías con el control de audio. El anexo al control de dirección, cuenta con un tratamiento acústico diseñado especialmente para este ámbito, donde se instala, la consola marca allen & heat modelo qu-32 digital que dispone de 32 canales mono, 4 stereos, 28 mezclas de salida, además de equipos periféricos para musicalización, paneles de conmutación de señales e intercom con estudio, control de dirección y técnica. En el control de dirección y producción anexo al estudio, están instalados el switcher marca carbonite black 25 ultra de 2me y 24 entradas apto para trabajar en hd 2 y 4 k, el generador de caracteres y gráficos marca ross modelo x pression xpr1. Una línea de monitores ubicados frente a las consolas permiten observar todas las señales que operan en el control. Una matriz de intercom de 4 canales, para las cámaras, producción, órdenes al piso para periodistas y presentadores. Área técnica: para las cámaras, producción, órdenes al piso para periodistas y presentadores. Compuesto por rack profesional para el montaje de equipos donde se encuentra la posición del operador de video con monitor broadcast e instrumental de medición de excelente calidad y precisión, marca astrodesign. Matriz de video de 40 x 40 marca blackmagic con 4 remotos instalados en distintas áreas. Sistemas de grabación kipro de aja, hyperdeck studio blackmagic, control de reproducción slomo-mini. Cámaras sony hd modelo hsc-300 versión estudio, trípodes profesionales y con distintos tipos de lentes. El control central técnico (tom) interconectado con los 2 controles de estudio, con racks para montaje de equipos, de fibra, monitoreo, medición de señales y remoto de la matriz principal para el enrutamiento de las mismas. Cuenta con aire acondicionado y ups, como todas las áreas técnicas. Una grúa extensible para cámaras hasta 9mts marca jimmy jib modelo triangle con todos sus accesorios. Carro para traveling con soporte para montaje de cámara profesional con diversos rieles para desplazamiento lineal o circular. Amplia sala de reuniones, oficinas de producción camarines, vestuarios, maquillaje, vinculadas por una red interna de datos, aire acondicionado y mobiliario. Cuenta con 100 kva de energía de red primaria, y un grupo electrógeno de 100 kva, insonorizado instalado en la entrada al edificio con conmutación automática grupo electrógeno de 100 kva, insonorizado instalado dentro del edificio, con conmutación automática ante la falta de la red primaria, permitiendo con la continuidad de las tareas prácticamente sin cortes. El estudio está vinculado con todos los canales de tv de capital, productoras, emisoras de programas vía streaming o cualquier otro centro emisor de contenidos, vía fibra óptica de telecom, para el transporte de 2 señales de hd; simultáneas de ida y vuelta, posibilitando la transmisiones en vivo desde dicho centro de producción. Rau s.R.L. No ejerce el corretaje inmobiliario. El presente sitio web es una plataforma en donde cada oficina inmobiliaria independiente que contrata los servicios re/max puede publicar las propiedades a su cargo. Cada oficina es de propiedad y gestión independiente, por lo que rau s.R.L. No interviene en los datos de la publicación, en la operación inmobiliaria, ni en la confección y/o firma del boleto de compraventa y/o escritura y/o contrato de alquiler. En cumplimiento de las leyes vigentes que regulan el corretaje inmobiliario, ley nacional 25.028, ley 22.802 de lealtad comercial, ley 24.240 de defensa al consumidor, las normas del código civil y comercial de la nación y constitucionales, los agentes/gestores no ejercen el corretaje inmobiliario. Todas las operaciones inmobiliarias son objeto de intermediación y conclusión por parte del corredor público inmobiliario colegiado a cargo de la publicación, cuyos datos se exhiben en la presente. La presente publicación describe las características esenciales del inmueble, debiéndose consultar al corredor público inmobiliario responsable de la operación por la eventual actualización de las medidas, descripciones arquitectónicas y funcionales, valores de expensas, servicios, impuestos, precios y demás información, cuyos valores son aproximados. Comprá la casa que querés! No la que podés. Accedé a un préstamo por hasta el 30% del valor de esta propiedad. Simulá tu cuota en lendar

Contactar