(1) (1)
  • Puerto Madero

Venta

Negocio Especial

Precio

Buscar solo avisos en moneda:

Dorm|Amb

Más filtros Más filtros

Nombre de calle y altura

Tipo de anunciante

7 Negocios Especiales en Venta en Puerto Madero

1/11
Visto

100

USD 29.000.000

Olga Cossettini 1500

Negocio especial en Venta en Puerto Madero, Capital Federal

MIRANDA BOSCH - Real Estate - ART

Venta de Edificios en Block - Puerto Madero

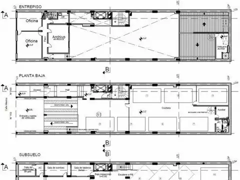
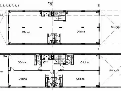
Edificios costeros ubicados al borde del dique 2 de puerto madero, sobre la calle olga cossettini , los edificios costeros se encuentran conformado por dos módulos (costeros a y b) sobre una superficie total de 10.913 m². Edificio vidriado. Seguridad 24hs. Palier individual y área de ascensores en cada piso. Cocina y baños. La altura interna de las unidades es de 3,30 m. Características generales del edificio: • cantidad de pisos: 2 módulos, 4 pisos, 1 ss con 69 cocheras de acceso por rampas. • Superficie total: 10.913 m² • seguridad 24 hs. Y cctv • control de accesos • cantidad de ascensores: 7 • antigüedad: 1997 balance de superficies: edificio costeros a superficie total propia: 3.222,49 m2 edificio costeros b superficie total propia: 3.150,55 m2 compuesta de: locales costeros a, superficie propia: 566,19 m2 locales costeros b. Superficie propia; 515,56 m2 oficinas costeros a, superficie propia: 2.656,30 m2 oficinas costeros b, superficie propia: 2.634,99 m2 características de las oficinas: • aire acondicionado: aire acondicionado central (frío & calor) • cielorraso: placas desmontables • cableado: piso técnico • sistema contra incendios: sprinklers y detectores de humo características de los locales: • 6 locales ente los dos edificios • superficie de locales 1.081 m2 vendibles • gran superficie de metros lineales de vidriera sobre el dique, laterales y olga cossettini. Renta actual: u$s 69.395,53 superficie rentable: 6.373 m2 superficie ocupada: 4.714 m2 superficie libre: 1.659 m2

Contactar
1/19
Visto

1

USD 3.950.000

Mexico 100

Negocio especial en Venta en Puerto Madero, Capital Federal

GERMAN SCOPEL SERVICIOS INMOBILIARIOS

Edificio en Puerto Madero, Capital Federal

Edificio en puerto madero, capital federal ideal uso empresarial, corporativo, institucional ; zonificación c2 ; tipologías de plantas flexibles permite diversos usos y destinos ; estratégica ubicación en nuevo madero (intersección de micro/macro centro, puerto madero y san telmo) mexico al 100 (entre av. Paseo colon y azopardo) rodeado de avenidas, corredores viales y acceso al amba de transporte publico (pasajeros y mercaderías) y futuro paseo del bajo, parques y diversas instituciones (educativas, organismos públicos, etc.) ; Edificio a estrenar importante estructura y solida construcción, estudiado y optimo uso de espacios y metros de alfombra (ver planos) ; con una superficie total aprox de 3.046m2 y sup total cub aprox de 2.633m2; repartidos en planta baja 1 subsuelo y 11 pisos (o entrepiso + 10 pisos) ; de 5 oficinas individuales, 7 plantas libres, 20 espacios guardacoches, vivienda o gerencial, expansiones de terrazas y jardín ecológico, totalizando una sup total de uso exclusivo de 1.906m2 y cub o de alfombra de aprox 1.805m2 + guardacoches y baulera (ver balance superficies). Actualmente desarrolla: 1.- En sector de pb; y ss, sup tot aprox 710m2: - consta de pequeño hall de entrada y circulación vertical + áreas utilizables para: a) 20 espacios guardacoches en pb y ss ; o , b) en ss 10 espacios guardacoches + sector de deposito/guarda de mercaderías y/o atención secundaria (gran parte de la pb tiene 4,60ml de altura) asimismo, c) en el ss actualmente cuenta con un área de fosa p/reparación mecánica de vehículos.- 2.- En sector de entrepiso + piso 1, sup tot aprox 452m2 - consta en planta 1er piso 4 oficinas divisibles c/baño y antebaño tipo quartier 2 al fte a gran terraza y 2 al cte, sup tot aprox 256m2, con aprox 212m2 cubiertos y 143m2 repartidos en 2 terraza al fte y cfte y aprox 185m2 de alfombra + circulación vertical ; en entrepiso de 97m2, repartido en oficina de 70m2 + amplia baulera (puede continuarse la losa hacia el cfte por basamento dotando de mayor expansión y terrazas al conjunto) 3.- En sector de plana pisos 2 al 8, sup tot aprox 1.484m2 - consta de 7 amplias plantas libres de arpox 212m2 totales y 199m2 aprox de alfombra c/u, preparadas para zocaloductos y/o piso técnico, con 2 baños (hombre / mujer c/antebaño) por piso.- 4.- En sector del piso 9, vivienda o gerencial, sup tot aprox 230m2 - consta de 1 amplio piso de vivienda de categoría o gerencial, de 3 dormit/despachos (1 en suite) 2 baños cpltos, toilette, gran estar/área de trabajo, cocina comedor, profusión de placares, 2 balcones terraza en l, sup. Tot cub aprox 170m2, de alfombra/viv 157m2 aprox y 60m2 de terrazas 5.- En sector de piso 10, terraza ecológica, sup tot aprox 170m2 - compuesto de aprox 141m2 de terraza verde (posible solarium/duchas) + circulación vertical con terminaciones de calidad y cumplimentando estándares de edificio ecológico, con ecoterraza o jardín verde en azotea, preparado con diente de losa sobresaliente de 40cm en la fachada y contrafachas para la instalación de equipos de a/acc t/split frio/calor, ascensor automatizado capacidad para 6 personas ; servicios individuales: agua caliente por termotanques individuales ; doble sistema de doble bomba ; tanque de 25.000 lts, posibilidad de preparar instalación para grupo electrógeno y/o cámaras o cctv; contribuciones aproximadas: abl $ 50.000, aysa $ 17.000.- Verdadera oportunidad por su estrategica ubicación, gran flexibilidad de usos (ideal uso empresarial/corporativo, institucional privado o publico, educativo, etc) , edificio ecológico, zonif c2 ; bajas contribuciones de abl y aysa. Merece visitarse. No dude en consultarnos. Detalle de ubicación: a) avenidas: paseo colón, ing. Huergo, chile, belgrano, independencia, alcia m. Moreau de justo ; b) corredores viales: paseo colon ; ing. Huergo ; futuro paseo del bajo (corredor integral de transporte pesado y de pasajeros) ; c) accesos autopistas: bsas la plata ; y, autopista 25 de mayo (au 1) ; d) próximo puentes / paso fluviales: puente pueyrredon, autopista bs.As la plata, puerto bsas (retiro) ; e) variadas lineas de colectivos: 2, 4, 8, 20, 22, 24, 28, 29, 33, 61, 62, 64, 74, 86, 93, 103, 111, 126, 129, 130, 143, 152, 159, 195, entre otras.- - - - - - - - Más información video: vista 360: www.Visita360 . Com. Ar/scopel/tour/mexico-100 telefono: 4 3 7 1 2 6 9 3 wspp: 1 1 5 0 0 1 5 4 9 2 email: i n f o @ s c o p e l . C o m . A r w w w . S c o p e l . Co m . A r - - - - - - - notas: inmueble sin acceso para personas con movilidad reducida. Los detalles, descripciones arquitectónicas y funcionales, valores de diversos gastos y contribuciones (expensas, impuestos, servicios, etc.) Fotos y medidas y superficies son aproximados, referenciales y de carácter no contractual. Los datos expresados en el aviso son informados por la parte vendedora y/o cotejado con la correspondiente documentación que puede/n no estar temporalmente actualizado/s al momento de su visualización pudiendo sufrir modificaciones, arrojar inexactitudes y/o discordancias con las que surgen de facturas, servicios, títulos y/o planimetría legal del inmueble, diversos cuadros tarifarios vigentes, etc. Venta supeditada al cumplimiento por parte del propietario de los requisitos de la resolución general nº 2371 de la afip (coti).

Contactar
1/5
Visto

0

USD 10.000

Juana Manso 600

Negocio especial en Venta en Puerto Madero, Capital Federal

VENTA DE BAULERA EN TORRES DEL YACHT

Corredor responsable: rene vera cucicba 6778 / csi 5848 - contacto: gisela miranda venta de baulera en torres del yacht baulera ubicada en el 3er subsuelo (3ss) de torres del yacht – puerto madero. Espacio ideal para almacenamiento de pertenencias, equipaje, bicicletas, documentos u objetos de poco uso. Acceso cómodo. Edificio con seguridad 24 hs consultanos rau s.R.L. No ejerce el corretaje inmobiliario. El presente sitio web es una plataforma en donde cada oficina inmobiliaria independiente que contrata los servicios re/max puede publicar las propiedades a su cargo. Cada oficina es de propiedad y gestión independiente, por lo que rau s.R.L. No interviene en los datos de la publicación, en la operación inmobiliaria, ni en la confección y/o firma del boleto de compraventa y/o escritura y/o contrato de alquiler. En cumplimiento de las leyes vigentes que regulan el corretaje inmobiliario, ley nacional 25.028, ley 22.802 de lealtad comercial, ley 24.240 de defensa al consumidor, las normas del código civil y comercial de la nación y constitucionales, los agentes/gestores no ejercen el corretaje inmobiliario. Todas las operaciones inmobiliarias son objeto de intermediación y conclusión por parte del corredor público inmobiliario colegiado a cargo de la publicación, cuyos datos se exhiben en la presente. La presente publicación describe las características esenciales del inmueble, debiéndose consultar al corredor público inmobiliario responsable de la operación por la eventual actualización de las medidas, descripciones arquitectónicas y funcionales, valores de expensas, servicios, impuestos, precios y demás información, cuyos valores son aproximados. El inmueble no es accesible para personas con discapacidades físicas. Comprá la casa que querés! No la que podés. Accedé a un préstamo por hasta el 30% del valor de esta propiedad. Simulá tu cuota en lendar

Contactar