-
Terreno
-
400 m² Total
-
Muy Bueno
Venta de Lote en Belén de Escobar 400m2
Corredor Responsable: Yanina Delacour CUCICBA 5626 / CMCPM 2958 -
Contacto: Gonzalo Botello
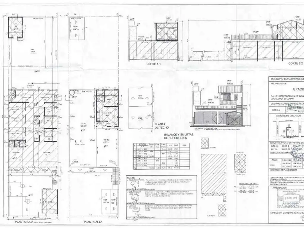
Se vende lote en excelente zona urbana con gran potencial de desarrollo. Ubicado en Independencia 245 entre Don Bosco y 25 de Mayo, Belén de Escobar, Provincia de Buenos Aires. A media cuadra de Av. 25 de Mayo y muy próximo al acceso a Ruta 9. Ubicación estratégica con fácil circulación y crecimiento constante de la zona comercial.
Superficie total del lote: 400 m², con 10 metros de frente por 40 metros de fondo.
Apto para múltiples proyectos: desarrollo de viviendas (cuenta con subdivisión edilicia apta para dúplex), vivienda unifamiliar, locales comerciales con vivienda, consultorios, galpón o emprendimientos profesionales.
Datos urbanísticos según normativa municipal: Zona Urbana, FOS 0,60 con 240 m² edificables en planta baja, FOT 2,50 con posibilidad de construir hasta 1.000 m² totales, densidad 700 hab/Ha.
Beneficios para desarrolladores e inversores: amplio potencial constructivo, excelente entorno, zona con alta circulación y fuerte crecimiento inmobiliario y comercial.
Consultar para mayor información y acompañamiento en proyecto.
RAU S.R.L. no ejerce el corretaje inmobiliario. El presente sitio web es una plataforma en donde cada oficina inmobiliaria independiente que contrata los servicios RE/MAX puede publicar las propiedades a su cargo. Cada oficina es de propiedad y gestión independiente, por lo que RAU S.R.L. no interviene en los datos de la publicación, en la operación inmobiliaria, ni en la confección y/o firma del boleto de compraventa y/o escritura y/o contrato de alquiler. En cumplimiento de las leyes vigentes que regulan el corretaje inmobiliario, Ley Nacional 25.028, Ley 22.802 de Lealtad Comercial, Ley 24.240 de Defensa al Consumidor, las normas del Código Civil y Comercial de la Nación y Constitucionales, los agentes/gestores NO ejercen el corretaje inmobiliario. Todas las operaciones inmobiliarias son objeto de intermediación y conclusión por parte del corredor público inmobiliario colegiado a cargo de la publicación, cuyos datos se exhiben en la presente. La presente publicación describe las características esenciales del inmueble, debiéndose consultar al corredor público inmobiliario responsable de la operación por la eventual actualización de las medidas, descripciones arquitectónicas y funcionales, valores de expensas, servicios, impuestos, precios y demás información, cuyos valores son aproximados.
Comprá la casa que querés! No la que podés. Accedé a un préstamo por hasta el 30% del valor de esta propiedad. Simulá tu cuota en Lendar
Contacto: Gonzalo Botello
Se vende lote en excelente zona urbana con gran potencial de desarrollo. Ubicado en Independencia 245 entre Don Bosco y 25 de Mayo, Belén de Escobar, Provincia de Buenos Aires. A media cuadra de Av. 25 de Mayo y muy próximo al acceso a Ruta 9. Ubicación estratégica con fácil circulación y crecimiento constante de la zona comercial.
Superficie total del lote: 400 m², con 10 metros de frente por 40 metros de fondo.
Apto para múltiples proyectos: desarrollo de viviendas (cuenta con subdivisión edilicia apta para dúplex), vivienda unifamiliar, locales comerciales con vivienda, consultorios, galpón o emprendimientos profesionales.
Datos urbanísticos según normativa municipal: Zona Urbana, FOS 0,60 con 240 m² edificables en planta baja, FOT 2,50 con posibilidad de construir hasta 1.000 m² totales, densidad 700 hab/Ha.
Beneficios para desarrolladores e inversores: amplio potencial constructivo, excelente entorno, zona con alta circulación y fuerte crecimiento inmobiliario y comercial.
Consultar para mayor información y acompañamiento en proyecto.
RAU S.R.L. no ejerce el corretaje inmobiliario. El presente sitio web es una plataforma en donde cada oficina inmobiliaria independiente que contrata los servicios RE/MAX puede publicar las propiedades a su cargo. Cada oficina es de propiedad y gestión independiente, por lo que RAU S.R.L. no interviene en los datos de la publicación, en la operación inmobiliaria, ni en la confección y/o firma del boleto de compraventa y/o escritura y/o contrato de alquiler. En cumplimiento de las leyes vigentes que regulan el corretaje inmobiliario, Ley Nacional 25.028, Ley 22.802 de Lealtad Comercial, Ley 24.240 de Defensa al Consumidor, las normas del Código Civil y Comercial de la Nación y Constitucionales, los agentes/gestores NO ejercen el corretaje inmobiliario. Todas las operaciones inmobiliarias son objeto de intermediación y conclusión por parte del corredor público inmobiliario colegiado a cargo de la publicación, cuyos datos se exhiben en la presente. La presente publicación describe las características esenciales del inmueble, debiéndose consultar al corredor público inmobiliario responsable de la operación por la eventual actualización de las medidas, descripciones arquitectónicas y funcionales, valores de expensas, servicios, impuestos, precios y demás información, cuyos valores son aproximados.
Comprá la casa que querés! No la que podés. Accedé a un préstamo por hasta el 30% del valor de esta propiedad. Simulá tu cuota en Lendar
Ubicación
Belen De Escobar, Escobar, G.B.A. Zona Norte
Datos básicos
-
Precio: USD 230.000
Superficie
-
Sup. Total: 400 m2
Código de aviso: AR.42.175.57.4