(1) (1)
  • Campos De Roca

Operación

Terreno

Precio

Buscar solo avisos en moneda:

Dorm|Amb

Más filtros Más filtros

Características

Superficie total

Nombre de calle y altura

Tipo de urbanización

Fot

Servicios

Tipo de anunciante

39 Terrenos en Campos De Roca

1/13
Visto

1

USD 65.000

Campos de Roca Ruta 2 km 65

Terreno en Venta en Campos De Roca, Countries y Barrios Cerrados en La Plata

Keymex City Bell
  • 5.000 m² Total

VENTA TERRENO EN CAMPOS DE ROCA

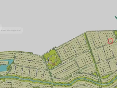
Campos de roca - barrio cerrado - ruta 2 km 65se encuentra ubicado a sólo 40 minutos de buenos aires y 20 de la plata. El barrio se caracteriza por sus amplios lotes. Cuenta con 230 hectáreas donde se delimitaron 550 terrenos de 17000 a 3500 m2; en 40 ha, dominados por el verde, los árboles y áreas comunes para el descanso y el entretenimiento. Recibe su nombre por haber sido parte de una de las estancias de julio argentino roca. Posee especies arbóreas de más de 100 años como sauces, álamos y eucaliptos; y animales autóctonos como zorros, liebres, pavos reales, garzas, teros, y patos entre otros . Esta totalmente desarrollado con seguridad 24hs, alumbrado. Instalaciones (proveeduría, instalaciones deportivas, gas natural, mantenimiento de espacios verdes comunes, recolección de residuos, servicios de emergencias, telefonía digital, internet por fibra óptica, banda ancha y tv digital.) La mayor actividad es social, deportiva y recreativa, incluyendo los caminos sin pavimentar. - Gas natural - superficie total del terreno : 5.000 m2 de conformidad a las leyes provinciales vigentes que regulan el corretaje inmobiliario y a la ley nacional 25.028, la ley 22.802 de lealtad comercial, la ley 24.240 de defensa al consumidor, las normas del código civil y comercial de la nación y de la constitución provincial y nacional, los agentes/asesores inmobiliarios independientes no ejercen el corretaje inmobiliario. Todas las operaciones inmobiliarias y la documentación labrada objeto de la intermediación y los contratos que se realicen, son siempre realizados por parte del martillero y corredor público colegiado según su jurisdicción. .

Contactar
1/15
Visto

1

USD 68.000

Campos de Roca Ruta 2 km 65

Terreno en Venta en Campos De Roca, Countries y Barrios Cerrados en La Plata

Keymex City Bell
  • 5.000 m² Total
  • 50 mts Frente
  • 100 mts Fondo

VENTA DE TERRENO / LOTE EN CAMPOS DE ROCA

Campos de roca - barrio cerrado - ruta 2 km 65 se encuentra ubicado a sólo 40 minutos de buenos aires y 20 de la plata. El barrio se caracteriza por sus amplios lotes. Cuenta con 230 hectáreas donde se delimitaron 550 terrenos de 17000 a 3500 m2; en 40 ha, dominados por el verde, los árboles y áreas comunes para el descanso y el entretenimiento. Recibe su nombre por haber sido parte de una de las estancias de julio argentino roca. Posee especies arbóreas de más de 100 años como sauces, álamos y eucaliptos; y animales autóctonos como zorros, liebres, pavos reales, garzas, teros, y patos entre otros . Esta totalmente desarrollado con seguridad 24hs, alumbrado. Instalaciones (proveeduría, instalaciones deportivas, gas natural, mantenimiento de espacios verdes comunes, recolección de residuos, servicios de emergencias, telefonía digital, internet por fibra óptica, banda ancha y tv digital.) La mayor actividad es social, deportiva y recreativa, incluyendo los caminos sin pavimentar. - Gas natural - superficie total del terreno : 5.000 m2 " ideal para quienes disfrutan de un verdadero homenaje a la naturaleza ..." Superficie terreno: 5000 mts2 de conformidad a las leyes provinciales vigentes que regulan el corretaje inmobiliario y a la ley nacional 25.028, la ley 22.802 de lealtad comercial, la ley 24.240 de defensa al consumidor, las normas del código civil y comercial de la nación y de la constitución provincial y nacional, los agentes/asesores inmobiliarios independientes no ejercen el corretaje inmobiliario. Todas las operaciones inmobiliarias y la documentación labrada objeto de la intermediación y los contratos que se realicen, son siempre realizados por parte del martillero y corredor público colegiado según su jurisdicción. .

Contactar
1/12
Visto

1

USD 30.000

Campos de Roca Ruta 2 Km 65

Terreno en Venta en Campos De Roca, Countries y Barrios Cerrados en La Plata

Keymex City Bell
  • 5.880 m² Total

VENTA TERRENO / LOTE EN CAMPOS DE ROCA

A sólo 40 minutos de buenos aires y 30 minutos de la plata, descubrí campos de roca, un barrio que cuenta con espacios exclusivos dedicados exclusivamente para el descanso y el entretenimiento, inmerso en 230 hectáreas dominadas por árboles y aves autóctonas. Nuestras 230 hectáreas que mantienen un equilibrio entre casuarinas, sauces, álamos y eucaliptos de más de 100 años, animales de distintas especies que coexisten naturalmente con quienes disfrutan siendo parte del barrio. Viví rodeado por la naturaleza, sus aromas y sonidos. Calidad de vida, para vos y tu familia. Superficie terreno: 5880 mts2 matias falcioni - departamento judicial de la plata: col nro 6963. De conformidad a las leyes provinciales vigentes que regulan el corretaje inmobiliario y a la ley nacional 25.028, la ley 22.802 de lealtad comercial, la ley 24.240 de defensa al consumidor, las normas del código civil y comercial de la nación y de la constitución provincial y nacional, los agentes/asesores inmobiliarios independientes no ejercen el corretaje inmobiliario. Todas las operaciones inmobiliarias y la documentación labrada objeto de la intermediación y los contratos que se realicen, son siempre realizados por parte del martillero y corredor público colegiado según su jurisdicción. De conformidad a las leyes provinciales vigentes que regulan el corretaje inmobiliario y a la ley nacional 25.028, la ley 22.802 de lealtad comercial, la ley 24.240 de defensa al consumidor, las normas del código civil y comercial de la nación y de la constitución provincial y nacional, los agentes/asesores inmobiliarios independientes no ejercen el corretaje inmobiliario. Todas las operaciones inmobiliarias y la documentación labrada objeto de la intermediación y los contratos que se realicen, son siempre realizados por parte del martillero y corredor público colegiado según su jurisdicción. .

Contactar
1/13
Visto

1

USD 55.000

Campos de Roca Ruta 2 km65

Terreno en Venta en Campos De Roca, Countries y Barrios Cerrados en La Plata

Keymex City Bell
  • 4.460 m² Total

VENTA DE TERRENO / LOTE EN CAMPOS DE ROCA

A sólo 40 minutos de buenos aires y 30 minutos de la plata, descubrí campos de roca ii, un barrio que cuenta con espacios exclusivos dedicados exclusivamente para el descanso y el entretenimiento, inmerso en 230 hectáreas dominadas por árboles y aves autóctonas. Nuestras 230 hectáreas que mantienen un equilibrio entre casuarinas, sauces, álamos y eucaliptos de más de 100 años, animales de distintas especies que coexisten naturalmente con quienes disfrutan siendo parte del barrio. Viví rodeado por la naturaleza, sus aromas y sonidos. Calidad de vida, para vos y tu familia. Superficie terreno: 4460 mts2 matias falcioni - departamento judicial de la plata: col nro 6963. De conformidad a las leyes provinciales vigentes que regulan el corretaje inmobiliario y a la ley nacional 25.028, la ley 22.802 de lealtad comercial, la ley 24.240 de defensa al consumidor, las normas del código civil y comercial de la nación y de la constitución provincial y nacional, los agentes/asesores inmobiliarios independientes no ejercen el corretaje inmobiliario. Todas las operaciones inmobiliarias y la documentación labrada objeto de la intermediación y los contratos que se realicen, son siempre realizados por parte del martillero y corredor público colegiado según su jurisdicción. De conformidad a las leyes provinciales vigentes que regulan el corretaje inmobiliario y a la ley nacional 25.028, la ley 22.802 de lealtad comercial, la ley 24.240 de defensa al consumidor, las normas del código civil y comercial de la nación y de la constitución provincial y nacional, los agentes/asesores inmobiliarios independientes no ejercen el corretaje inmobiliario. Todas las operaciones inmobiliarias y la documentación labrada objeto de la intermediación y los contratos que se realicen, son siempre realizados por parte del martillero y corredor público colegiado según su jurisdicción. .

Contactar
1/18
Visto

1

USD 65.000

Campos de Roca Ruta 2 km 65

Terreno en Venta en Campos De Roca, Countries y Barrios Cerrados en La Plata

Keymex City Bell
  • 4.800 m² Total

VENTA DE TERRENO / LOTE EN CAMPOS DE ROCA

Hermoso lote en campos de roca i, ruta 2 km 65 a sólo 40 minutos de buenos aires y 20 de la plata, el barrio cuenta con 230 hectáreas donde se delimitaron 550 terrenos de 17000 a 3500 m2; en 40 ha, dominados por el verde, los árboles y áreas comunes para el descanso y el entretenimiento. El barrio está totalmente desarrollado con seguridad 24hs, alumbrado. Instalaciones (proveeduría, instalaciones deportivas, gas natural, mantenimiento de espacios verdes comunes, recolección de residuos, servicios de emergencias, telefonía digital, internet, banda ancha y tv digital.) Además el barrio posee especies arbóreas de más de 100 años como sauces, álamos y eucaliptos; y animales autóctonos como zorros, liebres, pavos reales, garzas, teros, y patos entre otros que para quienes viven allí, disfrutarán de un verdadero homenaje a la naturaleza. El terreno está ubicado en el corazán del barrio tiene salida a dos calles, una de ellas podemos conciderar como una de las calles mas lindas del barrio, el terreno tiene casi un bosque privado de una variedad increible de arboles añosos, un verdadero paraíso. - Medidas: 38,64 x 124,36. Mts2 - superficie: 4800 mts2 - servicio de luz y de gas matias falcioni - departamento judicial de la plata: col nro 6963. De conformidad a las leyes provinciales vigentes que regulan el corretaje inmobiliario y a la ley nacional 25.028, la ley 22.802 de lealtad comercial, la ley 24.240 de defensa al consumidor, las normas del código civil y comercial de la nación y de la constitución provincial y nacional, los agentes/asesores inmobiliarios independientes no ejercen el corretaje inmobiliario. Todas las operaciones inmobiliarias y la documentación labrada objeto de la intermediación y los contratos que se realicen, son siempre realizados por parte del martillero y corredor público colegiado según su jurisdicción. De conformidad a las leyes provinciales vigentes que regulan el corretaje inmobiliario y a la ley nacional 25.028, la ley 22.802 de lealtad comercial, la ley 24.240 de defensa al consumidor, las normas del código civil y comercial de la nación y de la constitución provincial y nacional, los agentes/asesores inmobiliarios independientes no ejercen el corretaje inmobiliario. Todas las operaciones inmobiliarias y la documentación labrada objeto de la intermediación y los contratos que se realicen, son siempre realizados por parte del martillero y corredor público colegiado según su jurisdicción. .

Contactar
1/10
Visto

1

USD 60.000

Campos de Roca Ruta 2 Km65

Terreno en Venta en Campos De Roca, Countries y Barrios Cerrados en La Plata

Keymex City Bell
  • 4.000 m² Total

VENTA DE TERENO / LOTE EN CAMPOS DE ROCA

Campos de roca - barrio cerrado - ruta 2 km 65 lote 280 se encuentra ubicado a sólo 40 minutos de buenos aires y 20 de la plata. El barrio se caracteriza por sus amplios lotes. Cuenta con 230 hectáreas donde se delimitaron 550 terrenos de 17000 a 3500 m2; en 40 ha, dominados por el verde, los árboles y áreas comunes para el descanso y el entretenimiento. Recibe su nombre por haber sido parte de una de las estancias de julio argentino roca. Posee especies arbóreas de más de 100 años como sauces, álamos y eucaliptos; y animales autóctonos como zorros, liebres, pavos reales, garzas, teros, y patos entre otros . Esta totalmente desarrollado con seguridad 24hs, alumbrado. Instalaciones (proveeduría, instalaciones deportivas, gas natural, mantenimiento de espacios verdes comunes, recolección de residuos, servicios de emergencias, telefonía digital, internet, banda ancha y tv digital.) La mayor actividad es social, deportiva y recreativa, incluyendo los caminos sin pavimentar. - Gas natural - superficie total del terreno : 4.000 m2 - medidas 40 x 100 m2 - valor 100.000 dólares " ideal para quienes disfrutan de un verdadero homenaje a la naturaleza ..." De conformidad a las leyes provinciales vigentes que regulan el corretaje inmobiliario y a la ley nacional 25.028, la ley 22.802 de lealtad comercial, la ley 24.240 de defensa al consumidor, las normas del código civil y comercial de la nación y de la constitución provincial y nacional, los agentes/asesores inmobiliarios independientes no ejercen el corretaje inmobiliario. Todas las operaciones inmobiliarias y la documentación labrada objeto de la intermediación y los contratos que se realicen, son siempre realizados por parte del martillero y corredor público colegiado según su jurisdicción. .

Contactar
1/7
Visto

1

USD 50.000

Campos de Roca, Partido de Brandsen, Buenos Aires, Argentina

Terreno en Venta en Campos De Roca, Countries y Barrios Cerrados en la Plata

PATRICIO VILLARES PROPIEDADES
  • 2.346,36 m² Total
  • Bueno

"¡Adquiere tu lote en el barrio Campos de Roca II con financiación y opción de parte de pa...

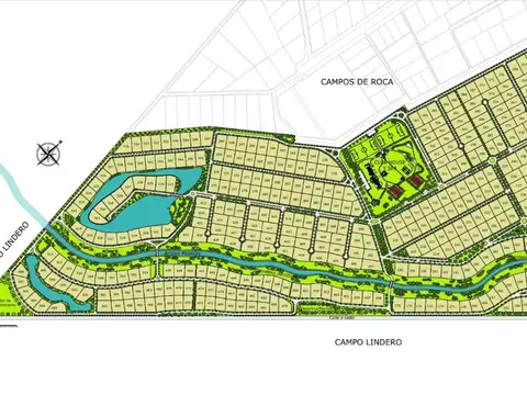
¡Terreno en venta en el exclusivo barrio cerrado campos de roca ii! Este terreno ofrece una ubicación privilegiada sobre la ruta 2, en coronel brandsen, buenos aires. Con una superficie total aproximada de 2346.38mts2. El barrio cerrado campos de roca ii ofrece una amplia gama de comodidades y actividades para disfrutar: - club house: un espacio elegante y exclusivo para reuniones y eventos. - Complejo deportivo: canchas de paddle, vóley, tenis, básquet y fútbol para mantenerse activo y disfrutar del deporte. - Lagunas aptas para actividades náuticas sin motor: un entorno natural ideal para practicar actividades acuáticas tranquilas. - Piletas interiores y exteriores in-out con solarium: disfruta del sol y relájate en las piscinas tanto en verano como en invierno. - Plaza deportiva: espacio al aire libre para practicar diferentes deportes y ejercicios al aire libre. - Plaza de juegos infantiles: un área especial para que los más pequeños se diviertan y jueguen en un entorno seguro. - Sala de reuniones y sala de lectura: espacios tranquilos y cómodos para reuniones o momentos de lectura y estudio. - Gimnasio: mantén tu rutina de ejercicios en el gimnasio completamente equipado. - Salón de usos múltiples: un espacio versátil para eventos, reuniones o actividades sociales. - Restaurant el caldén: disfruta de una deliciosa comida en el restaurante exclusivo del barrio cerrado. - Spa: relájate y rejuvenece en el spa, que cuenta con baño turco, sauna seco, ducha escocesa, sala de relax y sala de masajes. ¡No pierdas la oportunidad de adquirir este terreno en campos de roca ii! Se acepta financiación y permuta, lo que brinda aún más opciones para hacer realidad tu sueño de vivir en un entorno exclusivo y con todas las comodidades. - Kp426499 - kpt021711 - - publicado usando kiteprop crm inmobiliario

Contactar
1/10
Visto

0

USD 66.000

Ruta 2 , Piso 0

Terreno en Venta en Campos De Roca, Countries y Barrios Cerrados en La Plata

C21 Metronova SA
  • 5.000 m² Total
  • 50 mts Frente
  • 100 mts Fondo

Venta de lote de 5000 metros en campos de roca 1 barrio cerrado

Lote en venta ubicado en el barrio privado campos de roca i, ruta 2 km 65, estación gómez, la plata. -Frente de 50 x 100, medidas totales 5000 metros cuadrados, ubicados frente a la plaza del barrio. -Acceso por asfalto, servicios de electricidad, perforación para bomba sumergible, gas natural, fibra óptica. -Ante proyecto aprobado y estudio de suelo ya realizado. -Escriturado amenities: -piscinas -plaza deportiva -canchas de futbol 11, 2 canchas de tenis de polvo de ladrillo, 2 canchas de paddle, playón multideportes, cancha de básquet, vóley, área de juegos infantiles. -Club house -centro de reuniones -sala de lectura y de reuniones -sala de juegos para adultos -sala para niños -sum -gimnasio -restaurante -spa, baño turco, sauna seco, ducha escocesa -sala de relax -sala de masajes -aceptar permuta de departamento o auto. Corredor inmobiliario responsable: padin daniel col: 7231 cci: cmcidjlp en cumplimiento de las leyes vigentes que regulan el corretaje inmobiliario, ley nacional 25.028, ley 22.802 de lealtad comercial, ley 24.240 de defensa al consumidor, las normas del código civil y comercial de la nación y constitucionales, los agentes inmobiliarios (art. 1479 ccycn) no ejercen el corretaje inmobiliario y será el martillero responsable quién suscribirá todos los documentos de ley. La información suministrada en el presente aviso no forma parte de ningún tipo de documentación contractual y es meramente a título informativo. Las medidas, superficies, usos permitidos/no permitidos, y unidades complementarias, si las hubiere, deberán cotejarse con la escritura traslativa de dominio y con el reglamento de copropiedad. Asimismo, todos los importes de gastos, en especial las expensas, están sujetos a verificación. El valor del inmueble indicado en el presente puede ser modificado sin previo aviso. Todo lo adherido a la unidad, incluyendo los aires acondicionados, no forma parte de la oferta. La operación queda supeditada a que el propietario cumpla con la resol. 2371 coti.

Contactar
1/23
Visto

0

USD 17.500

Ruta 2 km 65 , Piso 0

Terreno en Venta en Campos De Roca, Countries y Barrios Cerrados en la Plata

  • 2.297 m² Total

VENTA LOTE CAMPOS DE ROCA II

Venta lote de 2297 m2 campos de roca ii coronel brandsen lote en venta en campos de roca ii de 2297 m2 ¡Oportunidad!, Estratégicamente ubicado sobre la colectora de la autopista buenos aires-la plata, con acceso privilegiado. El barrio ofrece una consolidada infraestructura con amenities y seguridad las 24 horas. El lote ofrece hermosas vistas y atardeceres. Barrio con posesión inmediata, en un lugar listo para construir. Disfruta de vivir en un entorno seguro, con amplias opciones de recreación y tranquilidad, cerca de todo lo que necesitas. No pierdas esta oportunidad de inversión! Sus diferenciales son: barrio consolidado excelente ubicación seguridad 24 hs conexión con otros barrios como miralagos, campos de roca i y haras del sur y acceso al centro comercial de otros barrios campos de roca ii cuenta con restaurante, club house, spa, canchas de fútbol 11, canchas de tenis, canchas de basquet, gimnasio, piscinas, lago artificial para circular con bote, además, en época de vacaciones hay múltiples actividades para realizar. Maria alejandra paoletich matrícula col. 7672 teléfonos de contacto todas las propiedades que figuran en esta publicación se encuentran a cargo del profesional matriculado maria alejandra paoletich, matrícula col. 7672 por lo tanto la intermediación y la conclusión de las operaciones serán llevadas exclusivamente por él. En cumplimiento de la ley 10.973 de la provincia de buenos aires, ley nacional 25.028, ley nacional 20.266, ley 22.802 de lealtad comercial, ley 24.240 de defensa al consumidor, las normas del código civil y comercial de la nación y constitucionales, los asesores o agentes no ejercen el corretaje inmobiliario. Todas las operaciones inmobiliarias son objeto de intermediación y conclusión por parte del martillero y corredor colegiado, cuyos datos se exhiben en el nombre de la inmobiliaria. Ley 5115: excepto que en la descripción de la propiedad se indique lo contrario, el edificio puede no contar con rampa para personas con movilidad reducida, y no ser accesible para personas con discapacidades físicas. Venta sujeta a la obtención del coti por parte del propietario. Las medidas son aproximadas, las reales surgen del título o plano de mensura. Las reservas se toman exclusivamente en la inmobiliaria con el matriculado col. 7672

Contactar
1/12
Visto

0

USD 18.000

Ruta Provincial 2 100

Terreno en Venta en Campos De Roca, Countries y Barrios Cerrados en La Plata

  • 2.135 m² Total
  • Excelente

Campos de Roca II Lote N°516 Fondo a la laguna

Corredor responsable: daniel guindani cmcpdjlp 7463 / maria delia piñeiro cpi 8976 - contacto: maximiliano comai campos de roca ii, ruta 2, lote número 516. Lote en venta de 2135m2. Lote 516 con fondo a la laguna. Ver plano. Excelente orientacion respecto al sol. Primer escritura. Oportunidad! Consultanos y agenda tu visita! Si tenés que vender para comprar, y no sabes por donde empezar, no dudes en contactarnos que te asesoramos sin costo! Llamanos! Rau s.R.L. No ejerce el corretaje inmobiliario. El presente sitio web es una plataforma en donde cada oficina inmobiliaria independiente que contrata los servicios re/max puede publicar las propiedades a su cargo. Cada oficina es de propiedad y gestión independiente, por lo que rau s.R.L. No interviene en los datos de la publicación, en la operación inmobiliaria, ni en la confección y/o firma del boleto de compraventa y/o escritura y/o contrato de alquiler. En cumplimiento de las leyes vigentes que regulan el corretaje inmobiliario, ley nacional 25.028, ley 22.802 de lealtad comercial, ley 24.240 de defensa al consumidor, las normas del código civil y comercial de la nación y constitucionales, los agentes/gestores no ejercen el corretaje inmobiliario. Todas las operaciones inmobiliarias son objeto de intermediación y conclusión por parte del corredor público inmobiliario colegiado a cargo de la publicación, cuyos datos se exhiben en la presente. La presente publicación describe las características esenciales del inmueble, debiéndose consultar al corredor público inmobiliario responsable de la operación por la eventual actualización de las medidas, descripciones arquitectónicas y funcionales, valores de expensas, servicios, impuestos, precios y demás información, cuyos valores son aproximados.

Contactar
1/6
Visto

0

USD 18.000

RUTA 2 100

Terreno en Venta en Campos De Roca, Countries y Barrios Cerrados en La Plata

  • 2.500 m² Total

Lote en venta Campos de Roca 2

Corredor responsable: luis ayardi 7690 - contacto: valerio ameijeiras ruta 2 km 65. Lote en club de campo, campos de roca 2. Lote céntrico ubicado en cercanías de amenities a 30 minutos de la ciudad de la plata y a 40 minutos de buenos aires. Un contexto que permite disfrutar de un entorno seguro y natural se destaca por su ubicación, servicios y el club house cuenta con diferentes salas de uso común: living room / sala de lectura / sala de juegos para adultos y para niños. A continuación el parque central, en sus diez hectáreas se encuentra el área deportiva con dos canchas de fútbol de 11, dos canchas de tenis construídas de polvo de ladrillo, dos canchas de paddle. Playón multideportes para la práctica de básquet, voley y patín. - Piscina descubierta y climatizada con solarium - vestuarios - área de juegos infantiles - restaurant y cafetería ¨el caldén¨ - salón de usos múltiples - gimnasio - spa: sala de masajes, ducha escocesa, sauna seco, baño turco, sala de rélax, jacuzzi y piscina acepta permuta. Rau s.R.L. No ejerce el corretaje inmobiliario. El presente sitio web es una plataforma en donde cada oficina inmobiliaria independiente que contrata los servicios re/max puede publicar las propiedades a su cargo. Cada oficina es de propiedad y gestión independiente, por lo que rau s.R.L. No interviene en los datos de la publicación, en la operación inmobiliaria, ni en la confección y/o firma del boleto de compraventa y/o escritura y/o contrato de alquiler. En cumplimiento de las leyes vigentes que regulan el corretaje inmobiliario, ley nacional 25.028, ley 22.802 de lealtad comercial, ley 24.240 de defensa al consumidor, las normas del código civil y comercial de la nación y constitucionales, los agentes/gestores no ejercen el corretaje inmobiliario. Todas las operaciones inmobiliarias son objeto de intermediación y conclusión por parte del corredor público inmobiliario colegiado a cargo de la publicación, cuyos datos se exhiben en la presente. La presente publicación describe las características esenciales del inmueble, debiéndose consultar al corredor público inmobiliario responsable de la operación por la eventual actualización de las medidas, descripciones arquitectónicas y funcionales, valores de expensas, servicios, impuestos, precios y demás información, cuyos valores son aproximados.

Contactar