-
Departamento
-
66,59 m² Cubierta
-
2 dormitorios
-
A Estrenar
-
2 baños
-
3 ambientes
Venta Departamento 3 Ambientes Devoto Balcón
Contacto: Maria Gabriela Assisi
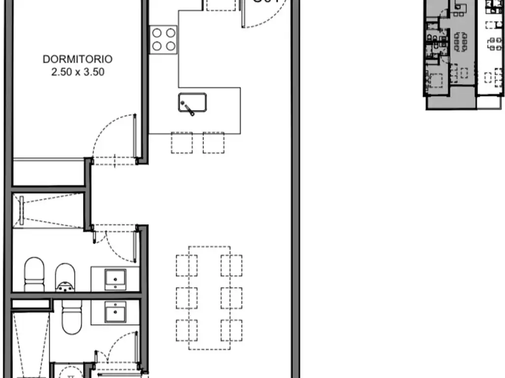
¡Amplio y cómodo tres ambientes al frente!
Lleno de luz y sol con salida a balcón.
Living comedor con cocina integrada.
Dormitorio principal en suite.
Segundo dormitorio.
Baño completo que también actúa como toilette de recepción.
Edificio muy canchero y funcional, super tecnológico con proyección a tener bajas expensas.
Amenities: terraza con parrilla, laundry, espacio bike-friendly, jacuzzi.
OPCIÓN DE FINANCIACIÓN DIRECTA EN 60 MESES.
Terminaciones:
- Estructura de hormigón armado.
- Mamposterías de hormigón celular en medianeras y divisiones
interiores.
- Terminación interior: Yeso.
- Terminación exterior: Aislación hidrófuga, revoque grueso y
terminación de revestimiento plástico texturado, con detalles de
Hormigon Visto.
- Portero visor inteligente, marca HIPCAM o similar.
- 1 ascensor automático con cabina revestida en acero.
- Bicicleteros en Planta Baja.
- Cañerías eléctricas, cajas y cables de reconocida marca en plaza y de
acuerdo con las normas ENRE.
- Cañerías internas preparadas para el cableado de TV por cable y
teléfono.
- Cañerías de cloaca y pluvial AWADUCT o similar.
- Cañerías de agua en termofusión AQUASYSTEMS, IPS o similar.
- Agua caliente por medio de termotanques eléctricos Individuales.
Terminación en paredes con yeso y pintura blanca.
- Pisos de porcelanato rectificado de primera calidad.
- Cielorrasos generales de yeso aplicado y cielorraso armado en baños y
cocinas.
- Ventanas en Aluminio o PVC con DVH (doble vidrio con cámara de aire).
- Puertas interiores Oblak Tekstura o similar.
- Puertas de entrada a las unidades de chapa o madera.
- Preinstalación para equipos de Aire Acondicionado (No incluye la
provisión y colocación de equipos de Aire acondicionado)
- Calefacción por piso radiante eléctrico en departamentos de 3 amb y
4 amb.
Dormitorio:
- Pisos de porcelanato rectificado de primera calidad.
Frente de placard en melamina. Baños principales terminados:
- Pisos y revestimientos de paredes de porcelanato.
- Artefactos sanitarios FERRUM o ROCA.
- Vanitory.
- Grifería monocomando FV, HIDROMET o Similar.
Cocinas:
- Pileta de acero inoxidable JOHNSON, MI PILETA o SIMILAR.
- Revestimiento de cerámica o porcelanato sobre mesada.
- Mesada de cuarzo blanco PURESTONE o similar.
- Muebles bajo mesada y alacena en melamina.
- Grifería de cocina FV, HIDROMET o Similar.
Balcones:
- Pisos de porcelanato rectificado de primera calidad.
- Barandas de balcones compuestas (hormigón visto/aluminio y
vidrio).
RAU S.R.L. no ejerce el corretaje inmobiliario. El presente sitio web es una plataforma en donde cada oficina inmobiliaria independiente que contrata los servicios RE/MAX puede publicar las propiedades a su cargo. Cada oficina es de propiedad y gestión independiente, por lo que RAU S.R.L. no interviene en los datos de la publicación, en la operación inmobiliaria, ni en la confección y/o firma del boleto de compraventa y/o escritura y/o contrato de alquiler. En cumplimiento de las leyes vigentes que regulan el corretaje inmobiliario, Ley Nacional 25.028, Ley 22.802 de Lealtad Comercial, Ley 24.240 de Defensa al Consumidor, las normas del Código Civil y Comercial de la Nación y Constitucionales, los agentes/gestores NO ejercen el corretaje inmobiliario. Todas las operaciones inmobiliarias son objeto de intermediación y conclusión por parte del corredor público inmobiliario colegiado a cargo de la publicación, cuyos datos se exhiben en la presente. La presente publicación describe las características esenciales del inmueble, debiéndose consultar al corredor público inmobiliario responsable de la operación por la eventual actualización de las medidas, descripciones arquitectónicas y funcionales, valores de expensas, servicios, impuestos, precios y demás información, cuyos valores son aproximados.
El inmueble no es accesible para personas con discapacidades físicas.
Comprá la casa que querés! No la que podés. Accedé a un préstamo por hasta el 30% del valor de esta propiedad. Simulá tu cuota en Lendar
Ubicación
Villa Devoto, Capital Federal
Características
-
Cant. Ambientes: 3
-
Cant. Dormitorios: 2
-
Cant. Baños: 2
Datos básicos
-
Tipo de operación: Venta
-
Precio: USD 205.127
Superficie
-
Sup. Cubierta: 66,59 m2
-
Sup. Total: 77 m2
Código de aviso: AR.42.2.16.940
Propiedades Similares
-
USD 85.000
+ $ 190000 expensas
Cnel F Allende 3800
- 37 m² Cubierta
- 1 dormitorio
- 60 años
-
USD 81.000
+ $ 95000 expensas
Nogoyá 4000
- 36 m² Cubierta
- 13 años
- 1 baño
-
USD 170.000
AV MOSCONI 3800
- 44 m² Cubierta
- 1 dormitorio
-
USD 80.000
Lascano 4300
- 34 m² Cubierta
- 10 años
- 1 baño