-
Casa
-
3 dormitorios
-
A Estrenar
-
3 baños
-
5 ambientes
-
1 cochera
-
Noreste
-
630 m² Terreno
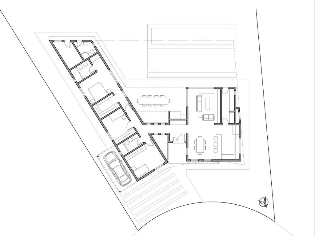
Casa en Rumencó Joven
Se trata de una propiedad de estilo contemporáneo que está iniciando su etapa de construcción, lo que permite al comprador proyectar su futuro hogar con la flexibilidad de elegir las terminaciones.
Características del proyecto:
La casa se desarrolla íntegramente en un solo nivel, priorizando la comodidad y la integración de los ambientes.
Cuenta con 3 dormitorios (el principal en suite con baño propio) y un total de 3 baños completos, distribuidos estratégicamente.
Living-comedor amplio, lavadero independiente y garage con entrada para vehículos.
Lote de 630 m2 aprox, superficie ideal para un gran parque y galería.
Condiciones de venta:
El precio corresponde a la obra en gris (estructura e instalaciones básicas, sin aberturas ni terminaciones finales).
Existe la posibilidad de acordar con el constructor la finalización total de la obra, permitiendo al comprador elegir materiales y detalles según su gusto personal.
Es el momento ideal para entrar en el proyecto y asegurar una propiedad moderna en un entorno seguro y natural.
Información importante
El valor del inmueble puede ser modificado sin previo aviso.
Los impuestos, tasas, servicios y expensas mencionados están sujetos a verificación.
Las medidas y superficies definitivas estarán detalladas en el título de propiedad del inmueble.
La información gráfica y escrita es estimativa y no forma parte de ninguna documentación contractual.
Algunas imagenes de los desarrollos y propiedades en construcción estan procesadas digitalmente para reflejar resultado final.
Las fotografías son propiedad de Bessone estudio inmobiliario y no pueden ser utilizadas sin autorización expresa (Ley 11.723).
Ubicación
Mar del Plata, Partido de General Pueyrredón, Costa Atlantica
Características
-
Cant. Baños: 3
-
Cant. Ambientes: 5
-
Cant. Dormitorios: 3
-
Cant. Plantas: 1
-
Cant. Cocheras: 1
-
Orientación: NE
Datos básicos
-
Tipo de operación: Venta
-
Precio: USD 170.000
Superficie
-
Sup. Terreno: 630 m2
Ambientes de la casa
- Baño
- Cochera
- Comedor diario
- Dormitorio
- Lavadero
- Living comedor
Instalaciones de la casa
- Agua cloaca
- Agua corriente
- Caldera
- Gas natural
Servicios de la casa
- Agua corriente
- Gas natural
Código de aviso: PRO-1885971
Propiedades Similares
-
USD 210.000
Genova 1800
- 297 m² Cubierta
- 3 dormitorios
- A Estrenar
-
USD 160.000
Darraguerira 2900
- 200 m² Cubierta
- 3 dormitorios
-
USD 160.000
Aldo 693
- 142 m² Cubierta
- 3 dormitorios
- 30 años
-
USD 220.000
CHALET 5 AMB AL FRENTE RECICLADA EN SU TOTALIDAD
- 220 m² Cubierta
- 6 dormitorios
- 43 años