(1) (1)
  • Centro

Venta

Negocio Especial

Precio

Buscar solo avisos en moneda:

Dorm|Amb

Más filtros Más filtros

Nombre de calle y altura

Tipo de anunciante

66 Negocios Especiales en Venta en Centro

1/48
Visto

562

USD 7.447.000

Paraná al 300

Negocio especial en Venta en Centro, Capital Federal

Sosa Vivanco Negocios Inmobiliarios

Edificio Comercial en Microcentro

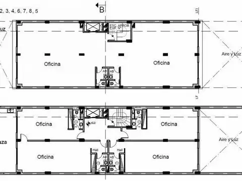
Edificio comercial de categoría a estrenar en venta completo o por piso. Descubrí este imponente edificio comercial en el centro, donde la vida cultural y comercial se entrelaza en cada esquina. Situado a una cuadra de la icónica avenida corrientes. Se ubica en el corazón de la zona tradicional de teatros, librerías, cafés y restaurantes y bares que mantienen. Una zona vibrante y atractiva a cualquier hora del día. Características del edificio: valor por m2 por debajo del mercado: una oportunidad sin comparación. Ubicación premium: en pleno centro porteño, con acceso inmediato a la estación de subte uruguay de la línea b y cercanía a múltiples líneas de colectivo. Ideal para todo tipo de rubros: desde oficinas hasta establecimientos comerciales. Amplios espacios: cada piso cuenta con áreas amplias y adaptables para diversas necesidades comerciales. Equipamiento de primera categoría: equipos de aire acondicionado vrv lg, baños y kitchenette en cada planta. Autonomía eléctrica: grupo electrógeno y piso técnico para asegurar comodidad y funcionalidad. Distribución por planta: planta baja: 45 m2 cubiertos 1 piso: 456 m2 cubiertos. 2 piso: 970 m2 cubiertos 3 piso: 693 m2 cubiertos + 277 m2 descubiertos. 4 y 5 pisos: 693 m2 cubiertos cada uno terraza: 693 m2 descubiertos total cubierto: 3.550 m2 total descubierto: 970 m2 opción de cocheras en alquiler con ingreso privado dentro del edificio. Este edificio es una excelente opción tanto para empresas en expansión como para inversores que buscan un espacio en uno de los barrios más emblemáticos y conectados de buenos aires.

Contactar
1/101
Visto

350

USD 1.850.000

Tucumán al 400

Negocio especial en Venta en Microcentro, Centro

Polaris Real Estate Consulting

Edificio Comercial - Microcentro

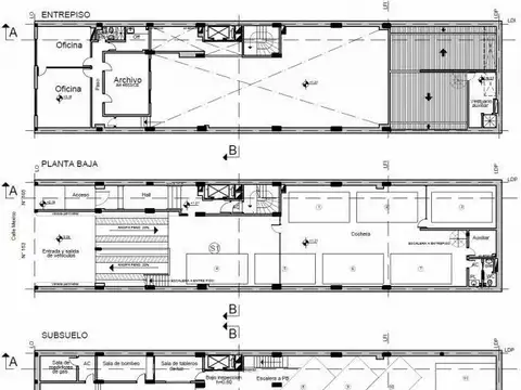
Edificio comercial de casi 2.000m2 de 6 plantas ubicado a pocas cuadras de puerto madero, galerías pacífico, y de fácil acceso de avenidas lugones, alem y autopista buenos aires la plata. La propiedad ha sido reciclada pero mantiene la fachada, aberturas, escaleras y hasta algunos salones con el estilo original. Plantas: -sótano - planta baja de 419m2: gran hall de recepción + sectores de trabajo - primer piso: 5 oficinas + 3 salones de usos múltiples + baños - segundo piso: 8 oficinas + 3 salones de usos múltiples + baños - tercer piso: 8 oficinas + 3 salones de usos múltiples + baños - cuarto piso: 11 oficinas + espacio de 14 x 4.35 (para boxes) - mezzanina - azotea cocina lockers comedores baños ascensores grupo electrógeno ideal para destino comercial o turístico. La presente oferta está condicionada a la confección del coti por parte del propietario (res. Afip 2371). Las medidas, superficies y expensas consignadas en la presente son aproximadas y no resultan vinculantes. Los datos definitivos son los que surgen del título de propiedad y del recibo de expensas. Corredor responsable: sandra viviana tournier cuccicba: matr. 7679 para los casos de alquiler de vivienda, el monto máximo de comisión que se le puede requerir a los propietarios será el equivalente al cuatro con quince centésimos por ciento (4,15%) del valor total del respectivo contrato. Se encuentra prohibido cobrar a los inquilinos que sean personas físicas comisiones inmobiliarias y gastos de gestoría de informes".- La propiedad no es accesible (ley 5115). Aviso legal: las descripciones arquitectónicas y funcionales, valores de expensas, impuestos y servicios, fotos y medidas de este inmueble son aproximados. Los datos fueron proporcionados por el propietario y pueden no estar actualizados a la hora de la visualización de este aviso por lo cual pueden arrojar inexactitudes y discordancias con las que surgen de los impuestos, tasas y facturas. Las medidas exactas surgirían de los planos aprobados y del título de propiedad. El interesado deberá realizar las verificaciones respectivas previamente a la realización de cualquier operación, requiriendo por sí o sus profesionales las copias necesarias de la documentación que corresponda.

Contactar
1/12
Visto

55

USD 1.200.000

Avenida Sarmiento 900

Negocio especial en Venta en Microcentro, Centro

RAUL PITA Inmuebles

Venta de Edificio en Block - Oficinas del Obelisco - Micro Centro

Edificio en block -microcentro sarmiento y diagonal norte a 50m carlos pellegrini y subtes lineas a/b/c/d/e en su entorno se encuentran varios de los principales monumentos y puntos de interés turístico : el cabildo histórico, la casa rosada, la av.Corrientes con sus teatros y también puerto madero a 500m del nuevo polo gastronómico " previsto para el 2028 "edificio del plata" enmarca dentro del plan del gobierno de la ciudad para renovar el microcentro de buenos aires. Edificio ideal para su adaptación a viviendas, ubicado dentro del polígono delimitado por la ley 6.508 que establece beneficios impositivos para fomentar la transformación urbana del microcentro, promoviendo los usos de vivienda y actividades económicas complementarias. Superficie total : 1430m2 superf del local : 100m2 + subsuelo categoría :muy buena antigüedad : 70 años ubicación : frente orientación : norte deptos.X piso : 2 pisos : 7 subsuelo : si agua caliente : individual ascensores : 1 calefacción :aire acondicionado estado : muy bueno planos aprobados : si observaciones: el edificio no tiene gas./ Las unidades tienen medidas distintas todas tienen 1 baño /las unidades arrancan de los 55m2 a 105m2 . Ideal petit hotel, coworking, alquiler temporario etc raul pita inmuebles mat 1128 cucicba 1128

Contactar
1/37
Visto

20

Consultar precio

Reconquista 300

Negocio especial en Venta en Microcentro, Centro

Palau Propiedades

Pago en Pesos - Edificio en Block de 13.634m2

Operación a realizarse en pesos. Edificio en block en microcentro, cuenta con una superficie de 13.634 m2 totales, el cual incluye un local de 1.742m2, compuesto de nueve pisos, un entre piso, planta baja y un subsuelo. Cuenta con doble ingreso, con grupo electrógeno (1260kva), 5 ascensores marca schindler, detectores de humo e hidrantes. Lo pisos principalmente se componen de plantas libres, con cielorrasos desmontables, cableado por psicoducto, sistema de aire acondicionado vrv marca daikin, office y batería de baños. (Auditorio para 100 personas). Historia: edificio británico, proyectado por el estudio de los arquitectos paul bell chambers y louis newbery thomas, asociados a lionel u. Grace, y construido por la firma scott & hume, en 1914, para la royal mail steam packet com, compañía inglesa de navegación, también fue sede de la embajada y consulados británicos y tiempo después fue inaugurado en 1969 con el nombre de banco federal argentino. Barrio: san nicolás comuna:1 sección policial:1 región sanitaria: (este) área hospitalaria: htal. Dr. C. Argerich zonas cpu:aph 51, aph 51 ubicado dentro del polígono delimitado por la ley 6.508 que establece beneficios impositivos para fomentar la transformación urbana del microcentro, promoviendo los usos de vivienda y actividades económicas complementarias. El inmueble cuenta con accesibilidad para personas con movilidad reducida (ley 5115). Servicios: cloacas, gas otros servicios: piso ducto, servicio contra incendios aviso legal: todas las propiedades que figuran en esta publicación se encuentran a cargo de los profesionales matriculados, cayetano palau, matrícula c.U.C.I.C.B.A 2893 o de nicolas jorge caballero, matrícula c.M.C.P.S.I. 6977, por lo tanto la intermediación y la conclusión de las operaciones serán llevadas exclusivamente por ellos. Palau propiedades s.R.L. No ejerce el corretaje inmobiliario. El presente sitio web es una plataforma en donde cada matriculado independiente que contrata los servicios de palau propiedades puede publicar las propiedades a su cargo, palau propiedades s.R.L no interviene en los datos de la publicación, en la operación inmobiliaria, ni en la confección y/o firma de documentación legal y/o contratos. En cumplimiento de las leyes vigentes que regulan el corretaje inmobiliario, ley 10.973 de la provincia de buenos aires, ley nacional 25.028 y 20.266, ley 22.802 de lealtad comercial, ley 24.240 de defensa al consumidor, las normas del código civil y comercial de la nación y constitucionales, los agentes/gestores no ejercen el corretaje inmobiliario. Las fotografías y videos no son contractuales, la presente publicación describe las características esenciales del inmueble, las medidas son meramente descriptivas y esquemáticas, pueden existir discordancias con las medidas exactas, expensas o impuestos que surgen de la realidad y/o de la escritura y/o de los planos del inmueble, debiéndose consultar al corredor público inmobiliario responsable de la operación por la eventual actualización de dicha información. Venta supeditada al cumplimiento por parte del propietario de los requisitos de la resolución general nº 2371 de la afip.

Contactar
1/20
Visto

2

USD 3.950.000

Mexico 100

Negocio especial en Venta en Centro, Capital Federal

GERMAN SCOPEL SERVICIOS INMOBILIARIOS

Edificio en Puerto Madero, Capital Federal

Edificio en puerto madero, capital federal  ideal uso empresarial, corporativo, institucional ; zonificación c2 ; tipologías de plantas flexibles permite diversos usos y destinos ; estrategica ubicación en nuevo madero (intersección de micro/macro centro, puerto madero y san telmo) mexico al 100 (entre av. Paseo colon y azopardo) rodeado de avenidas, corredores viales y acceso al amba de transporte publico (pasajeros y mercaderías) y futuro paseo del bajo, parques y diversas instituciones (educativas, organismos públicos, etc.) ; Edificio a estrenar importante estructura y solida construcción, estudiado y optimo uso de espacios y metros de alfombra (ver planos) ; con una superficie total aprox de 3.046m2 y sup total cub aprox de 2.633m2; repartidos en planta baja 1 subsuelo y 11 pisos (o entrepiso + 10 pisos) ; de 5 oficinas individuales, 7 plantas libres, 20 espacios guardacoches, vivienda o gerencial, expansiones de terrazas y jardín ecológico, totalizando una sup total de uso exclusivo de 1.906m2 y cub o de alfombra de aprox 1.805m2 + guardacoches y baulera (ver balance superficies) . Actualmente desarrolla:  1.- En sector de pb; y ss, sup tot aprox 710m2: - consta de pequeño hall de entrada y circulación vertical + áreas utilizables para: a) 20 espacios guardacoches en pb y ss ; o , b) en ss 10 espacios guardacoches + sector de deposito/guarda de mercaderías y/o atención secundaria (gran parte de la pb tiene 4,60ml de altura) asimismo, c) en el ss actualmente cuenta con un área de fosa p/reparación mecánica de vehículos.-  2.- En sector de entrepiso + piso 1, sup tot aprox 452m2 - consta en planta 1er piso 4 oficinas divisibles c/baño y antebaño tipo quartier 2 al fte a gran terraza y 2 al cte, sup tot aprox 256m2, con aprox 212m2 cubiertos y 143m2 repartidos en 2 terraza al fte y cfte y aprox 185m2 de alfombra + circulación vertical ; en entrepiso de 97m2, repartido en oficina de 70m2 + amplia baulera (puede continuarse la losa hacia el cfte por basamento dotando de mayor expansión y terrazas al conjunto)  3.- En sector de plana pisos 2 al 8, sup tot aprox 1.484m2 - consta de 7 amplias plantas libres de arpox 212m2 totales y 199m2 aprox de alfombra c/u, preparadas para zocaloductos y/o piso técnico, con 2 baños (hombre / mujer c/antebaño) por piso.-  4.- En sector del piso 9, vivienda o gerencial, sup tot aprox 230m2 - consta de 1 amplio piso de vivienda de categoría o gerencial, de 3 dormit/despachos (1 en suite) 2 baños cpltos, toilette, gran estar/área de trabajo, cocina comedor, profusión de placares, 2 balcones terraza en ?L?, Sup. Tot cub aprox 170m2, de alfombra/viv 157m2 aprox y 60m2 de terrazas  5.- En sector de piso 10, terraza ecológica, sup tot aprox 170m2 - compuesto de aprox 141m2 de terraza verde (posible solarium/duchas) + circulación vertical con terminaciones de calidad y cumplimentando estándares de edificio ecológico, con ecoterraza o jardín verde en azotea, preparado con diente de losa sobresaliente de 40cm en la fachada y contrafachas para la instalación de equipos de a/acc t/split frio/calor, ascensor automatizado capacidad para 6 personas ; servicios individuales: agua caliente por termotanques individuales ; doble sistema de doble bomba ; tanque de 25.000 lts, posibilidad de preparar instalación para grupo electrógeno y/o cámaras o cctv; contribuciones aproximadas: abl $ 50.000, aysa $ 17.000.- Verdadera oportunidad por su estrategica ubicación, gran flexibilidad de usos (ideal uso empresarial/corporativo, institucional privado o publico, educativo, etc) , edificio ecológico, zonif c2 ; bajas contribuciones de abl y aysa. Merece visitarse. No dude en consultarnos. Detalle de ubicación: a) avenidas: paseo colón, ing. Huergo, chile, belgrano, independencia, alcia m. Moreau de justo ; b) corredores viales: paseo colon ; ing. Huergo ; futuro paseo del bajo (corredor integral de transporte pesado y de pasajeros) ; c) accesos autopistas: bsas la plata ; y, autopista 25 de mayo (au 1) ; d) próximo puentes / paso fluviales: puente pueyrredon, autopista bs.As la plata, puerto bsas (retiro) ; e) variadas lineas de colectivos: 2, 4, 8, 20, 22, 24, 28, 29, 33, 61, 62, 64, 74, 86, 93, 103, 111, 126, 129, 130, 143, 152, 159, 195, entre otras.-  Notas: inmueble sin acceso para personas con movilidad reducida. Los detalles, descripciones arquitectónicas y funcionales, valores de diversos gastos y contribuciones (expensas, impuestos, servicios, etc.) Fotos y medidas y superficies son aproximados, referenciales y de carácter no contractual. Los datos expresados en el aviso son informados por la parte vendedora y/o cotejado con la correspondiente documentación que puede/n no estar temporalmente actualizado/s al momento de su visualización pudiendo sufrir modificaciones, arrojar inexactitudes y/o discordancias con las que surgen de facturas, servicios, títulos y/o planimetría legal del inmueble, diversos cuadros tarifarios vigentes, etc. Venta supeditada al cumplimiento por parte del propietario de los requisitos de la resolución general nº 2371 de la afip (coti) - - - - - - - videos: https: https: https: https: https: 360: http: www . Visita360 . Com.Ar/scopel/tour/mexico-100 mas info: telefono: 4 3 7 1 2 6 9 3  wspp: 1 1 5 0 0 1 5 4 9 2  email: i n f o @ s c o p e l . C o m . A r - - - - - - -  (scp-scp-20)

Contactar
1/15
Visto

1

USD 11.000.000

SAN MARTIN 200

Negocio especial en Venta en Microcentro, Centro

BERRUETA INMOBILIARIA

Edificio - Venta - Argentina, Capital Federal - SAN MARTIN 200

Venta de edificio en centro / microcentro, capital federal "edificio lanusse" ubicado en san martin al 200 este edificio fue inaugurado en el año 1922, obra del arquitecto coni molina, como edificio corporativo, possee caracteristicas arquitectónicas, dentro del estilo italianizante, se distingue por la simetría en la composición de su fachada, el almohadillado en su superficie muraria, y sus puertas y ventanas rectangulares con arcos y frontis. La puesta en valor de la fachada, concluyó en mayo 2014, se trató de la restauración del basamento edilício, recuperando las características tectónicas y estilísticas de las carpinterías, del almohadillado murario y del basamento granítico. El edificio es de una gran estructura ornamentada y de estilo, habiendo pertenecido a la empresa de pedro y antonio lanusse. Desarrollado en dos cuerpos, con doble entrada independiente, importante hall de entrada con tres arcadas, sector destinado a vigilancia y un importante local con nave central. Posee planta baja, 2 subsuelos, entrepiso y seis pisos. Cuerpo 1: entrada por san martin 240 , por esta entrada se accede a los 2 subsuelos, planta baja, entrepiso y primer piso. Con ascensor. Tres arcadas revestidas de marmol se presentan para el ingreso al imponente salon, con techo de doble altura, ya que el primer piso posee balcones sobre el mismo. Cuerpo 2: entrada por san martin 232, por aqui se accede a los pisos 2º al 6º por 2 ascensores. Instalaciones: aire acondicionado central:2 equipos para el primer subsuelo. 1 equipo para planta baja. 2 equipos para el 1º piso calefacción : " calderas para vapor y/o agua caliente para gas natural. El edificio cuenta con: 3 ascensores manuales - automaticos y escalera principal. 1 escalera principal que recorre desde el 1º subsuelo al 1º piso. Sanitario en palier de todas las plantas. Frente: 17,45 m2 fondo: 60.62 m2 superficie del 1er. Cuerpo san martin 240 pb: 1.045.87 entrepiso, 1ºpisoy 2 subsuelo: 2.543,70 m2 total:3.525,24 m2 propia 2.865,06 m2 superficie del 2º cuerpo: san martin 232: pisos 2º,3º, 4º, 5º y 6º total: 3.481 m2 propia: 2.576.42 m2 venta: u$s 11.000.000 se deja constancia que las descripciones arquitectónicas y funcionales, fotos, memorias descriptivas, medidas de este inmueble, valores de expensas, impuestos y servicios son aproximados a título orientativo sujetos a verificación y/o ajustes. Los datos fueron proporcionados por el propietario y pueden no estar actualizados a la hora de la visualización de este aviso por lo cual pueden arrojar inexactitudes y discordancias con las que surgen de los las facturas, títulos y planos legales del inmueble. El interesado deberá realizar las verificaciones respectivas previamente a la realización de cualquier operación, requiriendo por sí o sus profesionales las copias necesarias de la documentación que corresponda. Berrueta inmobiliaria está a su total disposición para proveerlo de toda información que nos requiera. Si tuviese la mínima duda sobre cualquier información recibida, por favor consultar.

Contactar