-
PH
-
50 m² Cubierta
-
2 dormitorios
-
46 años
-
1 baño
-
3 ambientes
-
Bueno
-
5 m² Descubierta
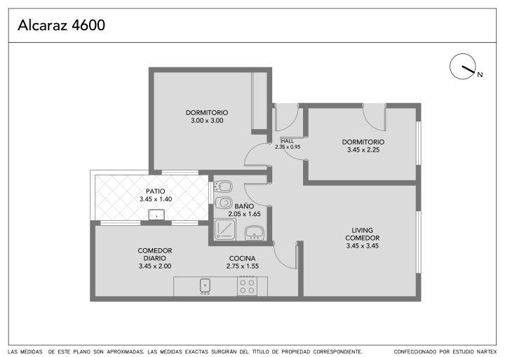
VENTA DE PH 3 AMBIENTES C/PATIO SIN EXPENSAS EN MONTE CASTRO
La propiedad está ubicada en la calle Alcaráz al 4600 entre Bernaldes y Marcos Paz en el barrio porteño de Monte Castro en la Ciudad Autónoma de Buenos Aires.
Excelente PH al frente, ubicado en el barrio de Monte Castro. La propiedad se desarrolla en planta baja.
Cuenta con 55 m² totales, distribuidos en 2 dormitorios, living, cocina con alacenas y bajo mesada y espacio para sectorizar en comedor, baño completo, refaccionado con mampara, ducha y mueble de guardado, hall de distribución y patio, ideal para disfrutar del aire libre o sumar un espacio de esparcimiento. Sector de lavado.
La unidad posee muy buena luminosidad, orientación noroeste, y se encuentra en buen estado general, con cañerías renovadas de agua y gas. Agua caliente por termotanque.
Edificio: De sólo 4 unidades, sin expensas, lo que lo convierte en una opción ideal tanto para vivienda familiar como para inversión. Tiene 2 pisos, dos departamentos por nivel, haciendo un total de 4 unidades funcionales. A.B.L. $ 8500 aprox. (Dic.'25).
Ubicación estratégica, en zona residencial tranquila, con cercanía a medios de transporte, comercios y servicios.
Oportunidad por ubicación, distribución y potencial
Superficie Cubierta: 50 m2 aprox.
Superficie Descubierta: 5 m2 aprox.
Superficie Total: 55 m2 aprox.
Barrio: Tranquilo, de casas bajas. Muy cerca del Hospital de Rehabilitación Manuel Rocca, la Plaza Monte Castro, la calle Segurola, centros educativos y médicos, negocios de cercanía y cafés.
Líneas de colectivos: 106, 114, 53, 135, 25, 107, entre otras.
Ferrocarril: Línea Sarmiento (estación Villa Luro).
Subterráneos: Línea A (estación San Pedrito).
Si te interesa la propiedad y necesitás vender para comprar, también podemos ayudarte.
La propiedad cuenta con plano digital, tour virtual 360° y video recorrido a pie.
Los metros aquí publicados son aproximados. Los reales surgen de la escritura o plano de mensura. Accesible: No (Ley 5115).
Toda la información del aviso, incluyendo medidas, precio, impuestos, servicios, etc. son estimativos, sujetos a modificación y no vinculantes, según lo dispuesto en el art. 973, Cód. Civ. y Com.
- KP480202 - KPT022101 -
- Publicado usando KiteProp CRM Inmobiliario
Ubicación
Monte Castro, Capital Federal
Características
-
Cant. Ambientes: 3
-
Cant. Dormitorios: 2
-
Antiguedad: 46
-
Estado: Bueno
-
Cant. Plantas: 2
Datos básicos
-
Tipo de operación: Venta
-
Precio: USD 90.000
Superficie
-
Sup. Cubierta: 50 m2
-
Sup. Descubierta: 5 m2
-
Sup. Total: 55 m2
Código de aviso: 36KP480202
Propiedades Similares
-
USD 115.000
Renque Cura 1800
- 95 m² Cubierta
- 3 dormitorios
-
USD 115.000
Renque Cura 1800
- 96 m² Cubierta
- 3 dormitorios
-
USD 79.000
+ $ 70000 expensas
Bermúdez 2100
- 52,14 m² Cubierta
- 2 dormitorios
- 50 años
-
USD 109.000
Lascano 5600
- 52 m² Cubierta
- 2 dormitorios
- 70 años